年产500万支制斑素注射液车间工艺设计毕业论文
2020-04-06 13:07:54
摘 要
从中药补骨脂素中提取出来的制斑素注射液,通过其光敏作用,促进黑色素细胞的形成,从而用于治疗后天性色素脱失的皮肤病:白癜风。在世界的不同地区均可见白癜风病症的发生,发病的机率最高可达4%。白癜风不会影响患者的身体健康,可是会带来极大的心理压力,因为白癜风极其影响患者形貌。
本设计旨在设计年产500万支制斑素注射液的车间工艺设计。内容包含工艺流程的选择、物料和能量的有关衡算、设备型号的选择、设备的初步布置和厂房建筑形式和尺寸。本次设计以《药品生产质量管理规范》(GMP)中相关规定为依据,进行车间工艺设计。通过查看阅读国内外关于制斑素和注射液车间工艺设计等相关文献资料,选择了合适的工艺过程并在衡算的基础上选取了操作设备的型号,完成了平面布置设计。
关键词:制斑素;注射液;车间设计
Abstract
The Psoralen injection which is extracted from the traditional Chinese medicine psoralen, promotes the formation of melanocytes through its photosensitizing effect, and thus is used for the treatment of vitiligo, a skin disease with acquired depigmentation.Vitiligo can occur anywhere in the world with the incidence rate up to 4%. Vitiligo does not affect the physical health of patients, but it brings great psychological pressure, because of the affection of appearance .
The aim is to design the workshop process design with an annual output of 5 million psoralen injections.The content includes the selection of process flow, the balance of materials and energy.Also includes the selection of equipment types, the preliminary layout of the equipment, and the form and size of the building.This design strictly follows the requirements of GMP requirements for workshop process design.By reading the relevant domestic and international literature on spectin and injection workshop process design, the process flow was determined and the production equipment was selected on the basis of material and energy balance. And the layout design of the workshop was completed.
Key words:psoralen ; injection; workshop design
目 录
第1章 概述 1
1.1 制斑素注射液简介 1
1.1.1 制斑素注射液的背景及来源 1
1.1.2 药理作用 1
1.1.3 剂型选择及其特点 2
1.1.4 本设计的目的与意义 2
1.2 产品方案 3
1.2.1 产品方案的要求和安排 3
1.2.2 处方 3
1.3 产品设计 3
1.3.1 设计要求 3
1.3.2 设计原则 3
1.3.3 工艺及其质量要求 3
第2章 工艺设计 4
2.1 工艺流程图 4
2.2 原料前处理 5
2.2.1 中药材的预处理 5
2.2.2 提取与纯化 5
2.3 注射用水的制备 5
2.4 注射液的容器与处理 5
2.5 注射液的配制 6
2.6 注射液的滤过 6
2.7 注射液的灌封 6
2.8 注射液的灭菌和检漏 7
2.9 注射液的质量检查 7
2.10 印字与包装 7
第3章 工艺计算 8
3.1 物料衡算 8
3.1.1 衡算基础 8
3.1.2 安瓿、原料计算 8
3.1.3 生产用水计算 9
3.2能量衡算 10
3.2.1 衡算基础 10
3.2.2 基本参数 10
3.2.3 衡算过程 11
第4章 设备选型与计算 12
4.1 配液罐 12
4.2 安瓿洗烘灌联动生产线 13
4.3 多效蒸馏水机 14
4.4 安瓿水浴灭菌器 15
4.5 灯检机 15
4.6 安瓿印字包装联动机 16
4.7 主要设备一览表 17
第5章 车间布置 18
5.1 厂址选择 18
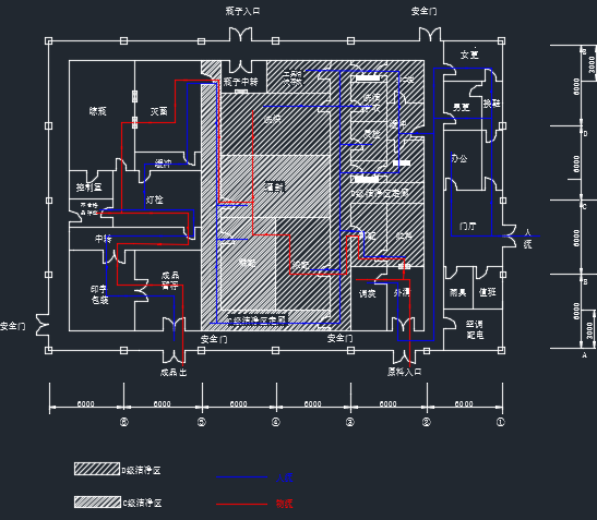
5.2 车间布置 18
5.3 洁净区 19
5.4定岗定员 19
5.5通风、空调与净化 20
5.5.1 送风方式及其选择 20
5.5.2 空气来源选择 20
5.6 管道计算 21
5.7 防火与防爆 21
参考文献 23
附录A 24
附录B 25
附录C 26
附录D 27
附录E 28
致谢 29
第1章 概述
1.1 制斑素注射液简介
1.1.1 制斑素注射液的背景及来源
白癜风是一种色素性疾病,又称白驳风。其特征在于功能性黑素细胞逐渐消失导致的表皮色素脱去[1]。在世界各地均可见白癜风病症的发生,白癜风可以在任何年龄阶段出现,约50%的病人在20岁前身上出现白斑[2],世界各地的发病率在0.1%—4%之间[3]。虽然其不会影响患者的正常身体状况,但是会在皮肤表面形成白斑,极为影响容貌外观,会使患者变得消极,感到自卑,生活的质量受到影响,甚至影响自己的生理活动。
白癜风诊断虽然容易但医治起来有一定困难,由于其犯病机理的不确定。在中医药医治钻研范畴中,首要是从调节免疫功能的药物、使酪氨酸酶活性被激起的药物、加强光敏感的药物和增加黑素细胞构成的药物等方面进行钻研。制斑素来源于中药补骨脂素,在临床上应用于治疗白癜风时收到了良好的效果。
补骨脂具备补肾虚、温脾胃、止泻之功能。市面上相关药品包含了制斑素注射液、祛白素和补骨脂酊等。
补骨脂素长波紫外线(PUVA)是治疗白癜风的主要支柱,但其不良反应如恶心、持续需要保护眼睛以及年龄和怀孕等问题限制了它的使用。之前的研究表明宽频长波紫外线(BBUVA)可以诱导两种不同的色素沉着机制:通过DNA损伤(UVA2)或通过氧依赖机制(UVA1),与PUVA相比,BBUVA效果更好,副作用发生率明显降低[4]。最新研究发现补骨脂素-窄带中波紫外线(P -NBUVB)更安全、可靠,但任需进一步的研究来确保P -NBUVB的长期疗效和安全性[5]。白藜芦醇,一种活化剂和潜在的抗氧化剂可减少氧化应激,是引发白癜风的触发因素之一。相关研究发现补骨脂素和白藜芦醇共同加载的超变形脂质体(UDL)通过双重作用机制即黑素和酪氨酸酶活性的刺激作用来治疗白癜风。这些发现表明,补骨脂素和白藜芦醇共载UDL具有治疗白癜风的潜力[6]。
除此之外联合治疗法也是较常用的临床医治模式。各国治疗指南中均有表明联合疗法的是一种比较有效地用于治疗白癜风的方法,联合疗法的治疗周期短、副作用小。激光、他克莫司和系统激素三线疗法对于局部进展期的白癜风疗效非常明显,窄带紫外线B联合阿法诺肽对于稳定期作用比较好[7]。
1.1.2 药理作用
制斑素用于治疗白癜风,主要是通过其对代谢的影响,其有效成分为8—甲氧补骨脂素和异补骨脂素。人体内合成黑素的关键是酪氨酸酶,补骨脂能很好地使其被激活[8]。制斑素不仅可以提高酪氨酸酶的活性,还可以通过其光敏作用使黑素细胞数目、密度变大,促进黑素细胞的形成和转移,从而使患者恢复正常的肤色[9]。
1.1.3 剂型选择及其特点
药物剂型是一种把药品加工成适用于医生治疗用途的和方便患者治疗的给药形式[10]。一种药物可以制成不同的剂型。剂型的差异、制备过程中的差别都会使药物的疗效产生很大的区别。因此为了最大限度的发挥药物的疗效,我们需要根据不同药物的性质和用药的目的,将药物制成合适的剂型[11]。
本设计所选用的剂型为注射液。每次注射体积在1—50ml之间[10],即按注射体积分类的话,本次设计采用小体积注射液。注射剂是常用的临床给药剂型,应用极为广泛,当抢救重危患者时,注射剂的使用最常见。
注射剂的优点如下:
- 吸收快,效果好。当使用注射剂时,药品以液体形式注入人体组织、血液或器官内,它们能被快速接收,起效快,功能可靠。当救治重危患者时,可通过静脉注射使药物直接进入血液循环,达到快速有效的目的[12]。
- 适用于不方便口服的药品和不能口服的病人。某些药物在人体内不易吸收或被分解,或具有刺激性,这些药物可采用注射给药的形式以发挥药效,对于术后不可以进食或消化系统障碍的病人也建议用注射液[13]。
- 易于存储。在注射剂的生产过程中,一般都会经过灭菌或无菌处理,因此注射剂相对其他液体制剂更易储存[10]。
同时,注射剂也存在使用不方便、注射疼痛和成本高等不良特点。注射剂一般不能自己使用。为保障病人的生命安全,注射时需要专业的医护职员和专业的设备。注射剂的制备流程较长,对车间设备要求高,价格昂贵[10]。
1.1.4 本设计的目的与意义
本设计的目的是通过研究制斑素注射液的生产过程,设计出一种大批量生产的车间蓝图。另外,还对制斑素注射液的生产工艺进行了探究,从而保证了制斑素注射液的质量。因此,设计了一种严格按照GMP要求生产的车间布局。此外,这种设计使我们能够从最基本的生产车间工艺规划、理论和制药工业生产实践的使用中了解制药企业的理论和方法,在考虑到各种因素和条件后,包括生产车间设计、制备注射液流程中可能遇到的突发事件,找到解决办法,实现车间设计内容全面细致的设计方案。
本设计是一种基于药剂学、GMP的科学性、技术性的应用型设计。将严格按照要求进行设计,力求设计一个良好的质量,高效的生产、安全的运行、经济又实用的制斑素注射液车间生产工艺。
1.2 产品方案
1.2.1 产品方案的要求和安排
(1)符合制斑素注射液产量要求。
(2)符合原料补骨脂素最大化使用要求。
(3)符合生产淡旺季需求。
(4)符合经济收益需求。
(5)符合水电气符合平衡要求。
1.2.2 处方
处方中各成分及含量如下:
表1.1 处方成分含量表
成分 | 补骨脂素 | 丙二醇 | 乙醇 | 聚山梨酯80 | 苯甲醇 | 注射用水 |
含量 | 500mg | 400ml | 100ml | 20ml | 15ml | 加至1000ml |
有效成分为补骨脂素,丙二醇、乙醇、苯甲醇是注射溶剂,聚山梨酯80为增溶剂,起到分散药物的作用。
1.3 产品设计
1.3.1 设计要求
用文字进行产品设计过程中的要点阐述时,要有逻辑、条理要分明,采用表格和图片的形式可使说明更完善。工艺过程的计算要精准,设计要严密,避免三废的产生。在对设备、管路进行选型时,需要选择合适度高、经济性好的型号。
1.3.2 设计原则
在获得最高生产率的情况下,减少本金即取得最大效果和收益。
1.3.3 工艺及其质量要求
工艺要求:选择最佳的工艺流程。
质量要求:按照GMP要求进行设计。
第2章 工艺设计
2.1 工艺流程图
原料前处理
配液
粗滤
安瓿
精滤
洗、烘、灌联动机组组
理瓶
灭菌
检漏
质量检查
印字
包装
D级洁净区
制斑素注射液
C级洁净区 图2.1 工艺流程图
2.2 原料前处理
2.2.1 中药材的预处理
制斑素注射液以补骨脂的提取物质为原料。补骨脂是天然的植物,因此原料本身会带有一些泥土、尘埃、等杂质,这些杂质将会对药物的安全、可靠和有效产生很大影响。对补骨脂原料进行前期加工处理就成了工艺过程中必不可少的步骤。在挑了高质量的补骨脂的后,对其进行洗涤、切制和干燥等操作,通过清洗可以去除诸如泥土、灰尘之类的杂质异物,切制和干燥可以减少补骨脂的含菌量,为药品的生产提供质量保障[13]。
2.2.2 提取与纯化
为了提高药物的质量可控性,需要通过考虑到制斑素注射液的剂量、作用部位和制备时间等问题,来选择合适的提取、纯化的方法,以最大可能性地去除杂质,存留活性部分,制作成原料药提取液[14]。
- 绿色环保,对环境污染小。
- 超临界CO2萃取简单明了,效率好。
- 用无毒、无残留的CO2代替有机溶剂,可避免有机残留的问题,提高制斑素注射液的有效性。
- 补骨脂具有光敏作用,传统的提取方法因温度过高会使有效成分损失,超临界CO2萃取技术可在室温下进行,有效地避免了这一问题。
2.3 注射用水的制备
本设计采取综合法制取注射用水,具体步骤如下:
过滤 电渗析 阳离子树脂床 脱气塔 阴离子树脂床
原水 一级纯化水
混合树脂 蒸馏
二级纯化水 注射用水[15]
2.4 注射液的容器与处理
安瓿是常用的注射液容器。安瓿通常可以分为有颈安瓿和粉末安瓿。体积规格为1ml、2ml、5ml、10ml、20ml。国家标准GB2637-1995中标明易折型曲颈安瓿是水针剂必须使用的注射液容器。补骨脂有光敏作用,所以本设计拟用琥珀色玻璃安瓿,其规格为2ml。为保障药品的安全性与可靠性,作为制斑素注射液容器的安瓿必须符合《中国药典》和《药品生产质量管理规范》中的相关规定。
常用的安瓿洗涤方法有以下几种:甩水洗涤法一般使用离子交换水煮沸,然后用甩水机反复把水抛甩出去,质量比较差的安瓿要用0.5%的乙酸水溶液在100︒C下进行30分钟的冲洗和煮沸等相关热处理,以达到清洗注射液容器的目的。加压喷射器水洗涤法采用了洗涤水和压缩空气反复交替的原理达到强力冲洗的目的。一般需要进行最少4次冲洗。加压喷射器水洗涤法的洗涤效果明显,较实用于曲颈安瓿的清洗。洗涤结合法的原理:超声波发生器发出超声波后,使安瓿上面附着的污物掉落,再用加压喷射器进行冲洗。
洗涤干净之后,需要完成安瓿的干燥过程和灭菌过程。一般需要在烘箱内130︒C左右干燥1小时。若安瓿内药品为低温灭菌药物,则需在170-180︒C下进行干燥,时间为1小时及以上[12]。灭菌后的24小时内,安瓿可以在存放柜中放置,但其需有净化空气保护装置。
2.5 注射液的配制
在物料的准备过程中,按制斑素注射液的处方准确求出原料的需求量,计算依据如下:
原料量=实际配液量× 成品含量%
其中,实际上所需的配液量包括了灌入的量及损失的量。本设计的目的是进行大批量的制斑素注射液的生产,因此采用浓配法进行配液。具体步骤如下:
按5mg:4ml的比例,将补骨脂加入丙二醇中,再加入乙醇、聚山梨酯80、苯甲醇,比例为丙二醇:乙醇:聚山梨酯80:苯甲醇=80:20:4:3,搅拌使其溶解均匀,冷藏后过滤。用注射用水稀释至每毫升药液含0.5mg补骨脂,检查合格后进行滤过、灌封。
2.6 注射液的滤过
过滤是利用多孔性介质拦截液体中混合的固体物质而达到固-液分离的效果的一种操作。在制备制斑素注射液的过程中,过滤是不可或缺的单元操作。
为确保药品的澄清度,需要进行粗滤和精滤两个步骤。在粗滤的过程当中,选择砂滤棒作为粗滤的装置设备。砂滤棒具有价格便宜、过滤速度迅速的优点,适合于大产量过程中的过滤操作。微孔滤膜过滤器是采取高分子材料微孔滤膜作为过滤介质的装置。微孔滤膜过滤器截留固体能力优良,不会改变药品的酸碱值,也不会产生交叉污染的影响,因此被普遍应用于注射剂的精滤过程中。本设计在精滤过程中选择微孔滤膜过滤器作为精滤的装置。
2.7 注射液的灌封
灌封是注射液进入安瓿的最后一个工艺操作。具体可以分为灌注药液和封口两个步骤,完成灌注药液操作后需要马上封口,以避免污染。灌注药液时,要按照《中国药典》(2015年版)中的要求进行药液的装量增加,以补偿在给药时的各种损失,保证药液的剂量。
拉封封口是较经常使用的安瓿封口方式,具备封口严密、不容易出现毛细孔的优点。在注射液的灌封时,也许会有药液剂量偏差大、封口不够严密、瘪头等问题。可采用逐一排查的办法,进行分析、找出原因并解决好。
2.8 注射液的灭菌和检漏
以上是毕业论文大纲或资料介绍,该课题完整毕业论文、开题报告、任务书、程序设计、图纸设计等资料请添加微信获取,微信号:bysjorg。
相关图片展示:









