自升式平台水密门布置设计及强度校核毕业论文
2020-04-11 17:59:20
摘 要
水密门是保障船体内部水密完整性重要船体属具之一,对船舶安全有着重大意义。水密门布置的目的是保证平台内部的连通性,并且优化成本。最重要的是保证在船体进水时,可以快速正确的关闭各个水密门,阻止海水继续浸入其他舱室。
本文对600T自升式风电安装平台进行了水密门布置设计及强度校核。根据任务书要求,采取理论与实际相结合的方法,在招商船厂的指导下,完成相关设计。本文基于规范要求对水密门进行布置设计,确定水密门开口位置以及对水密门进行尺寸选取。包括对水密门板厚以及加强筋进行规范计算。通过阅读相关规范,了解船厂水密门布置设计的生产流程,总结了水密门在布置和安装时需要注意的事项。利用Auto CAD绘制了布置设计图纸与舱壁开口图,完成水密门结构手绘图。
在布置设计的基础上对水密门开孔舱壁进行强度校核。通过对其进行规范计算得到相关构件参数,以此为基础进行三维建模。采用FEMAP软件对其进行网格划分,有限元分析计算。最终,得出应力云图,并依据计算结果对其进行分析。
关键词:水密门、水密完整性、有限元分析
Abstract
The watertight door is one of the important hull tools to ensure the watertight integrity of the hull, which is of great significance to the safety of the ship. The purpose of the watertight door arrangement is to ensure the connectivity of the platform and optimize the cost. The most important thing is to make sure that the watertight doors can be closed quickly and correctly to prevent the seawater from flooding into other compartments.
This paper presents the watertight door layout design and strength check for the 600T jack-up wind power installation platform. According to the requirements of the task book,under the guidance of China Merchants Heavy Industry, a combination of theory and practice is adopted to complete the design. In this paper, the watertight door is designed based on the regulation. Determine the position of the watertight door opening and size selection of watertight doors. Including the calculation of watertight door thickness and stiffeners. By reading the relevant regulation, understand the production process of shipyards on watertight door layout design. Summarized the matters needing attention in the arrangement and installation of watertight doors. The watertight door layout design drawing and the bulkhead opening drawing were drawn by using Auto CAD, and the hand-drawn drawing of the watertight door structure was completed.
Based on the layout design, the strength check of the watertight door opening bulkheads is carried out. The related component parameters are obtained by regulation calculation, and the three-dimensional modeling is carried out on the basis of this. Using FEMAP software for meshing and finite element analysis and calculation. Finally, a stress cloud map is obtained and analyzed based on the results of the cloud map.
Keywords: watertight doors, watertight integrity, finite element analysis
目录
第1章 绪论 1
1.1 研究背景及意义 1
1.1.1 研究背景 1
1.1.2 研究意义 1
1.2 国内外现状 1
1.2.1 滑动式水密门 2
1.2.2 铰链式水密门 3
1.3本文研究内容 3
第2章 平台水密门布置 4
2.1 自升式平台概述 4
2.1.1 平台主要参数 4
2.1.2平台载荷 5
2.2 轮机布置 6
2.3水密分隔 7
2.4 逃生通道 8
2.5水密门尺寸确定 10
2.6防火等级 10
2.7舱壁开孔 12
2.8设计水压 13
2.9 水密门确定 13
第3章 水密门计算与安装 16
3.1水密门承受压头 16
3.2 规范校核 16
3.2.1 门板厚度校核 16
3.2.2 扶强材剖面模数的校核 17
3.3水密门安装及检测 17
3.3.1水密性试验 18
3.3.2机械性能检查 18
3.3.3安装注意事项 18
3.4水密门布置要求 18
第4章 水密舱壁规范计算 20
4.1 钢材参数 20
4.2 平台外边界计算 20
4.2.1 甲板 20
4.2.2平台甲板 21
4.2.3 底板 21
4.2.4舷侧板 21
4.3水密舱壁 21
4.4 甲板结构 22
4.4.1 甲板扶强材 22
4.4.2 甲板桁材 23
4.4.3 双层底甲板扶强材 23
4.5 船底结构 24
4.5.1 船底扶强材 24
4.6 纵横舱壁结构 24
4.6.1 水密横壁水平扶强材 24
4.6.2水密纵壁水平扶强材 25
4.6.3 水密横壁垂直桁 25
4.6.4水密纵壁垂直桁 26
第5章 开孔处分段有限元分析 27
5.1有限元法 27
5.2 FEMAP 27
5.3 模型选取 27
5.4 坐标系统 27
5.5 单位以及单元 27
5.6 距船中10800分段建模 28
5.6.1 模型建立 28
5.6.2载荷以及约束 30
5.7 77号肋位分段 33
5.8 计算结果 35
5.9 开口处加强 36
第6章 结语 38
6.1 主要结论 38
6.2 工作展望 38
参考文献 39
致谢 40
附录: 41
第1章 绪论
1.1 研究背景及意义
1.1.1 研究背景
自上世纪90年代起,随着人们对海洋的认识,海洋资源成为了世界各国关注的重点。应运而生的海洋经济开始了爆发式的增长,海洋成为了世界经济关注的焦点。如何有效利用海洋资源成为了国家发展经济发展的重心。发展海洋经济,加快开发海洋资源是国家经济发展的战略选择[1]。
随着不断开发海洋,仅近海海域已满足不了人类对海洋资源的需求。目前,人类正在向深海海域进军。海上作业变得越来越多,海洋平台作为海洋能源开发的主要工具之一,是在海上作业,提供海上生产和生活设施的构筑物。一般对其他常规船舶来说,在航行过程中,位于载重线以下区域布置的水密门必须要保持常闭状态,但海洋平台为了满足自身操作功能要求,平台上的工作人员需要经常使用水密门在不同的工况以及天气下进入出不同的工作区域,因此设置在平台的水密门不可能像船舶上一样保持常闭状态。海洋平台区别于其他常规船舶的地方主要在于它需要在海上保持长期工作[2]。深海海域海上情况复杂多变,遭遇事故的可能性也较大。一旦发生海难事故不仅会造成船员伤亡和庞大经济损失,而且造成的海洋环境污染也很严重。为了海上人命以及平台安全考虑,优良的水密门布置设计尤为重要[3]。
1.1.2 研究意义
海洋平台在海上作业时,为了保证船体内部结构的连通性,平台内部的水密舱壁上往往会开设水密门。水密门不仅可以用作船员通过的通道,在发生灾害时,水密门还可以起到隔绝水、火、毒气的作用。若水密门安装不当,可能会影响到所在舱室的水密完整性和结构强度,不能保障航行安全。水密门布置设计的目的是保证内部连通,确保舱壁强度,并且优化成本。最重要的是保证在船体进水时,可以快速正确的关闭各个水密门,阻止海水继续浸入其他舱室。提高船舶的生存力, 即当船体部分遭到损坏并进水时,船舶依然能够保持正常航行。
水密门布置对提高船舶安全,延长使用寿命有着关键作用。
1.2 国内外现状
从国外舰船水密门的发展可以看出,美国舰船水密门的设计和应用有一个相对标准的规范[5]。且国外对水密门的研发更新速度快。对比国内水密门标准规范中,水密门的
尺寸大小和各项参数指标没有明确的一个系列。究其主要原因是不同位置对水密门有着不同的标准。船上水密门没有一个统一的标准,这种复杂的情况为船上水密门的使用和维护带来了巨大负担。
目前按照市面上使用比较广泛的有铰链式、滑动式两种水密门。前一种结构简单、使用方便;后者主要用于有耐水压要求和地位受限制的地方、结构牢固,但需配置控制系统。
1.2.1 滑动式水密门
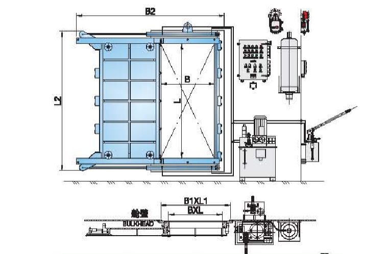
在船舶上一些通道和一些重要区域使用的都是滑动式水密门,应用较广。按滑动门的操作方式可分为液压式、电动式以及手动式三种。按滑动形式可分为竖动和横动式两种。滑动式水密门除了门板、门框、以外,它还由轨道、锁紧滚轮装置、填料等部件组成[6]。由这些构件组成的水密门,结构牢固,操作方便,在国内外应用广泛,但造价较高。开孔尺寸大、需要通过较大体积的水密门一般也采用滑动式水密门。水密门结构如图1.1所示。
图1.1 滑动式水密门结构图
1.2.2 铰链式水密门
规范要求铰链门在其两侧都能够迅速的开启和闭合。它主要由挂锁、自闭器、门框、门板、铰链等主要构件组成。特点是门框的外边四周有内凸边,该内凸边的厚度大于门框的厚度。这种水密门,耐压性好,生产成本低,目前在船厂使用很多。铰链门结构如图1.2所示。
图1.2 铰链式水密门结构图
1.3本文研究内容
本课题主要是通过研究水密门的规范布置要求,先对水密门进行一个系统的认识。结合生产实际,对600T自升式风电平台进行水密门布置设计及强度校核。按照招商船厂实际设计流程,在船厂给定的初始资料基础上对其进行设计,包括水密门的定位及尺寸确定。之后根据规范对水密门进行参数选取,完成平台水密门规范布置。设计中考虑水密舱壁开孔后的强度以及水密完整性,包括对水密门所在舱壁分段进行结构强度计算。主要包含整个舱壁结构分段的规范计算,待确定具体尺寸后,采用有限元对其分析。包含三维建模与有限元计算等。根据计算结果其进行分析优化。
第2章 平台水密门布置
2.1 自升式平台概述
本文研究对象为600T自升式风电安装平台。该平台是一艘非自航自升式风电安装平台,可在最大水深50m范围内的泥砂质海底海域或相类似海域按自升式平台型式进行作业。主要任务是完成海上结构物的高精度吊装,包括大型海上风机的塔架、叶片、机舱以及其他海上结构物的吊装及运营维护。本平台可采用拖带方式远洋调遣,也可在风场内短距离自行迁移。平台为全焊接式钢质船体,主要由艏艉消斜的矩形主船体、四条圆柱形桩腿和升降系统组成。具有一层连续主甲板,船艏设置5层生活楼, 可以提供100人左右的就餐、住宿、医疗、办公及健身娱乐等。
本船为双底单甲板箱型结构钢质平台,全船肋距为0.6m。结构主要分为主船体、升降塔、甲板室、主起重机基座以及桩腿和桩靴。艏艉左右舷为四根圆柱形桩腿结构,机舱,辅机间及其左右临近舱室双层底高为1200mm,艏部厨房及餐厅双层底高2400mm。本船船底、承载甲板、平台甲板、甲板室、舷侧及纵舱壁采用纵骨架式。主船体设6道全通水密横舱壁和2道贯通首尾的纵舱壁。横向强框架间距均为2.4m,纵骨间距为0.6m。
2.1.1 平台主要参数
平台主视图如图2.1,主尺度如表2.1所示:
表2.1 平台尺度表
总长 | 106,m |
型长 | 76.8m |
型宽 | 38.4m |
型深 | 6.6m |
肋骨间距 | 0.6m |
最大作业水深 | 50m |
甲板载货能力 | 1000T |
可变载荷 | 2000T |
载重线吃水 | 4.0m |
桩腿总长(含桩靴) | 85m |
桩腿直径 | 3.6m |
桩腿尺寸(长x宽) | 10.4m x 8.0m |
台升框架尺寸(长x宽x高) | 8.4m x 8.4m x 10.5m |
图2.1 平台主视图
2.1.2平台载荷
固定载荷:包括下列永久固定在作业风电平台上并构成作业风电平台的一部分的设施:生活区、基座、起重机、绞车、柴油机、发电机、电气设备、电缆、底座、管汇以及正常作业时上述设备管线中的液体。可变载荷:淡水、燃油、润滑油、绳索、工作人员、生活供应品、饮用水、船东设备、压载水、货物等。
以上是毕业论文大纲或资料介绍,该课题完整毕业论文、开题报告、任务书、程序设计、图纸设计等资料请添加微信获取,微信号:bysjorg。
相关图片展示:









