7800车位汽车运输船船体生产设计(船艉区域2)毕业论文
2021-03-11 22:15:46
摘 要
本文首先介绍了本次毕业设计的研究内容和指导思想,对7800车位汽车运输船的基本情况和浙江舟山东海岸船业有限公司的生产能力进行总结;在此基础上,对7800PCTC主船体进行生产设计。内容包括主船体建造方案的选择、分段划分方案的制定、分段重量估算、船台安装顺序设计及余量布置、船台安装周期计算;并以船艉典型分段为例,利用Tribon软件进行三维建模及组立图出图,制定典型分段的生产设计方案。
关键词:汽车运输船;生产设计;船体建模
Abstract
This paper first introduced the graduation design of the research contents and the guiding ideology. Combined with the fundamental characteristics of the 7800 Pure Car and Truck Carrier and capacities of Donghaian Shipyard, it put forward a reasonable production plan. It’s contents include the overall construction and division plans, weight calculation, the installation sequence design, allowance arrangement and the installation cycle calculation. Taking the production design for segment of stern as an example, this paper introduced production plans and how to build Three-dimensional models and draw segments plans by Tribon at last.
Key Words:Pure Car and Truck Carrier;production design;hull modeling
第一章 绪论
1.1选题背景及研究意义
汽车运输船是指用于运输轿车、商务车等汽车的船舶。过去由于我国汽车出口量不大,过少的汽车运输需求使得我国汽车运输船的制造水平发展缓慢,1986年江南造船厂造过两艘汽车运输船,此后近20年国内船厂几乎没有涉足汽车运输船的建造,汽车出口的运输基本依赖于日韩海运企业。近年来,随着我国汽车制造业的快速发展,汽车出口量不断增加,我国造船业对于汽车运输船的建造水平也不断提高,本文所依托的7800车位汽车运输船便是扬帆船厂为意大利跨国物流集团Grimaldi船东建造的汽车运输船。
为了运输更多的汽车,汽车运输船拥有较多的甲板层数;同时,为了提高装卸效率,其货舱不设置横舱壁。与常规船型相比,汽车运输船具有装卸效率高、对码头要求低、运输费用省等优点。与此同时,汽车运输船与常规船型相比也存在舱容利用率低、载重量系数低、机舱空间小等不足。
生产设计是对承建船舶的建造工艺及其流程的设计,以解决“怎样造船”的问题。根据承建船舶特点和船厂生产条件,生产设计需要完成建造方案的决定,建造方针及施工要领的编制等任务。近年来, 扩大分段预舾装、巨型总段建造、无余量造船等技术迅速发展,面向生产的生产设计日趋完善,我们也应该学习和吸收国外船企的造船经验,以促进国内造船技术更好地发展。
本文在以浙江东海岸船业有限公司为承造厂的基础上,为7800车位汽车运输船制定出较为实际的生产设计方案。
1.2本文主要研究内容及预期目标
1.2.1研究内容
本文以7800车位汽车运输船为生产对象,以浙江东海岸船业有限公司为承造厂来进行主船体的生产设计和船艉区域2 的船体分段生产设计。
在对浙江东海岸船业有限公司实地调研的基础上对其生产能力进行总结,充分查阅中外相关资料及造船相关规范和标准,结合7800车位汽车运输船的相关船体图纸及资料,对主船体进行生产设计。在设计过程中,充分考虑船厂实际生产能力和已掌握的先进技术,合理规划船台周期,总结出合理的生产设计方案。
学习并应用 TRIBON软件,深入了解指定分段的结构特点,对指定船体分段进行建模并总结出船体分段生产设计方案。
1.2.2预期目标
完成主船体的生产设计和船艉区域2 的船体分段生产设计,设绘相应图纸,具体来讲包括以下几个方面:
- 对浙江东海岸船业有限公司的生产条件进行调研;
- 熟悉7800车位汽车运输船船体结构图纸;
- 设计主船体建造方案及分段划分方案,设绘7800PCTC分段划分图;
- 主船体分段重量估算,编制7800PCTC分段重量计算表;
- 主船体船台安装工艺设计,包括吊装顺序、余量布置、安装定位设计及工时计算等,设绘相关图纸,编制相关表格;
- 学习TRIBIN软件,并应用软件对船艉典型分段进行建模,设计分段生产设计方案。
1.3指导思想
生产设计在组织时要充分把握承造船舶的特点,考虑船厂的生产能力、生产特点、生产组织方式、造船工艺等因素。制定具体方案时应注意以下几点:
- 充分利用现有生产条件;
- 结合船厂生产组织形式,合理分配生产能力;
- 能满足船舶结构和工艺上的合理性要求;
- 改善施工条件,降低施工难度;
- 协调各项生产指标(质量、成本、建造周期等),获得最好的技术经济指标。
第二章 设计产品概述及承造厂简介
2.1 船舶概况
2.1.1船舶简介
7800PCTC是扬帆船舶设计研究院开发的单机、单桨,柴油机驱动,无限航区航行的滚装型车辆运输船,具有安全,环保,装卸效率高,稳性良好,使用更少的压载水,以及低燃油消耗等设计优点和亮点。该船可装载小型车,卡车,翻斗车,SUV,大型客车,拖车及集装箱等。
本船采用柔性设计,货舱内无横向舱壁,优化车道以达到快速装载/卸载。该船为宽体设计,型宽达到了36.45m. 本船设有球艏,艏侧推,方艉,扭曲高效舵 舵球。船与码头通过布置在右侧的艉门和边门进行连接,本船设有四层活动甲板(第3,5,7,9可升高甲板)以保证在第2,4,6,8汽车甲板有足够的高度以存储大型车辆。货船内部之间的车辆甲板通过固定或活动坡道进行连接。本船挂旗国为意大利。

图2.1 7800PCTC整体效果图
2.1.2船舶基本信息
(1)主尺度及相关参数
表2.1 7800PCTC主尺度及相关参数表

(2)主机、航速及其他
表2.2 7800PCTC主机相关参数

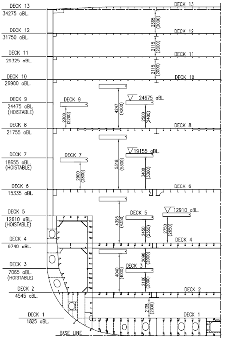
(3)汽车甲板概况
表2.3 甲板净高度表
位置 | 净高度 |
Deck12 | 2000 |
Deck11 | 2000 |
Deck10 | 2000 |
Deck9 | 2000/1700/0 |
Deck8 | 2200/2500/4200 |
Deck7 | 2300/1700/0 |
Deck6 | 3000/3600/5300 |
Deck5 | 2000/1700/0 |
Deck4 | 2350/2650/4350 |
Deck3 | 2000/0 |
Deck2 | 2000/4000 |
Deck1 | 2000 |

图2.2 半船横剖图
2.1.3船舶结构特征

图2.3 主船体侧视图
(1)货舱区域:
货舱区采用纵骨架式,内底为压载水舱,内底上边舱为空舱,在货舱区的艏艏和中部设有污水井。为了减小强横梁的跨距,汽车甲板间设有支柱。
(2)货舱双层底:
为保证总体的强度,每隔二档肋距均设有实肋板。在横舱壁下和舱室分界都设有实肋板或水密肋板。在第一和第六甲板设有污水井。船底处的压载水舱设置放泄塞,以便在船入坞时能够泄放舱室水。
(3)机舱区域:
机舱结构采用横骨架式布置。机舱内布置2层非水密平台甲板。机舱顶部为第五甲板,并在主机处设有围壁板和顶板以满足主机吊缸的高度要求。每档肋距设有实肋板。
主机机座通过焊接与双层底连接,以提供足够的强度和高度,避免振动,保证使用时的维护和清洁。
(4)艏部区域:
艏部结构采用横骨架式布置,设有内底和平台,并设有球鼻艏。艏柱采用钢板焊接结构,前部边缘圆滑与船体线性光顺连接并与船体外板和平板龙骨焊接。
船艏部分包括艏柱、球鼻艏,必要的肋板,纵材,贯穿的甲板,肋骨等。为了确保有足够的强度,艏侧推的结构安装与外板成45度的扇形开口,内部结构与主船体结构对位,保证强度的同时尽可能的避免振动。
(5)汽车甲板:
第3、5、7、9层甲板为活动甲板,其余各层固定甲板在货舱和机舱区采用横梁和纵梁等组成的纵骨架式结构。第四、第十层甲板为气密甲板,第六、第八层甲板为水密甲板。
(6)舷侧区域:
该船舷侧结构采用横骨架式以方便通风管结构的布置。
(7)艉部区域:
艉部由足够强度的肋板,梁,甲板构成,艉柱结构设计为铸钢件与艉部外板形成光顺连接。舱门位于尾部。
2.1.4设计考虑要素
全船总长199.9米,采用宽体设计,型宽达到36.45米,共有13层甲板,其中第五甲板为主甲板。由于船体过大,在船体建造时要划分为数量众多的分段,因此进行主船体建造方案的选择及分段划分时,在船体特点方面要考虑到各类舱室的布置、舱壁的位置;污水井、支柱等结构的布置;船体各部分的结构特点等因素。
为了减小强横梁的跨距,汽车甲板间设有支柱,支柱位于以下肋位:#83-#85、#95-#97、#107-#109、#123-#125、#139-#141、#147-#149、#155-#157及#193-#196。
在货舱双层底及舷侧,布置有压载舱、燃油舱、淡水舱等各类舱室,舱壁位于以下肋位:#13、#14、#29、#31、#54、#68、#84、#96、#108、#124、#140、#156、#172、#196、#216、#222。
为了增大货舱容积,货舱内不设置横舱壁,而舷侧、艏艉、机舱区域采用横骨架式结构,货舱双层底采用纵骨架式结构。
2.2承造厂生产条件
2.2.1承造厂背景简介
本船由扬帆船舶设计研究院设计,浙江东海岸船业有限公司承造,两者都属于扬帆集团股份有限公司。扬帆集团前身为舟山船厂,经过50余年的逐步成长,特别是最近几年跨越式的发展,扬帆集团已成为总占地面积225万平方米、总岸线5239米的集团公司,成为浙江省工业行业龙头骨干企业,在国际船舶市场享有良好声誉。
多年来,集团以“打造国际领先,国内一流的国际化船舶工业企业”为目标,致力于高科技含量、高附加值的出口船舶和海洋工程产品开发与研制。主要产品为大型汽车运输船,集装箱船、散货船、油船、化学品船、海洋工程船、多用途船等。


