年产80万m2陶瓷外墙砖陶瓷工厂扩初设计毕业论文
2020-05-25 23:42:57
摘 要
本设计为年产80万㎡外墙砖陶瓷工厂扩初设计,主要内容为总平面及运输设计,原料车间的工艺设计,破碎工段收尘系统的设计,其中重点是破碎工段收尘系统的设计。
根据厂区的具体情况进行了全厂总平面设计,主要包括厂前区、主要生产区和辅助生产区三大部分,原料车间包括破碎工段布置、以及细碎阶段布置,破碎工段收尘系统设计包括扬尘点确定、风管布置。
本设计的原则为:原料加工中从粗碎、配料、中碎、球磨等大部分为机械化;以及扬尘点的部位均考虑了收尘措施,厂房布置以联合车间为主,合理安排其他车间,使场区面积得到充分利用。
关键词:外墙砖 工厂设计 总平面布置 原料车间 收尘系统设计
Capacity of 0.8 million square meters of exterior wall tiles ceramic factory reliminary design
(Dust collecting system design of broken section)
Abstract
The design for the jingdezhen city of 0.8 million m2 brick wall ceramic factory extended preliminary design. Main contents of 0.8 million m2 of exterior wall tiles ceramic factory extended preliminary design, include: the total plane design and transportation, the process design of raw workshop, broken section of dust collecting system design. broken section of dust collecting system design is the most important part.
According to the specific of the mill, it carries through the general plane design, including front area, auxiliary production area and main production area. Workshop materials include broken section layout, and crushing stage layout. broken section of dust collecting system include dust point to determine and duct layout
The design principles: Processing of raw materials from the crushing, batching, broken, milling, and most of them are mechanization. Consider the dust collecting measures in some parts of the dust, cohesive devices, building layout with joint workshop, arrange other workshop, make the factory area can be fully used.
Key words: Exterior wall tiles,Plant design,The general layout,Raw material workshop,Dust collecting system design
目录
摘 要 I
Abstract II
第一章 前 言 1
第二章 总说明 2
2.1总论 2
2.2 生产基本要素 4
2.2.1生产规模和产品规格 4
2.2.2各工序的工作制度 4
2.3生产工艺 5
2.3.1 工艺流程图 5
2.3.2 方案论证 6
2.4 物料平衡计算 7
2.4.1 物料平衡计算参数确定 7
2.4.2 物料平衡计算 9
2.5本厂主要机械设备选型 13
第三章 总图与运输 19
3.1厂区自然条件 19
3.2总平面布置 19
3.2.1厂区平面布置原则 19
3.2.2厂区外交通运输 20
3.2.3绘制总平面布置图 20
3.2.4 总平面组成 20
第四章 工艺设计部分 24
4.1基本设计原则 24
4.2原料车间工艺设计 24
4.2.1原料车间工艺设计 24
4.2.2原料贮存和运输 24
4.2.3原料堆场及原料仓库面积计算 25
4.3车间设计计算 26
4.3.1车间设备选型 26
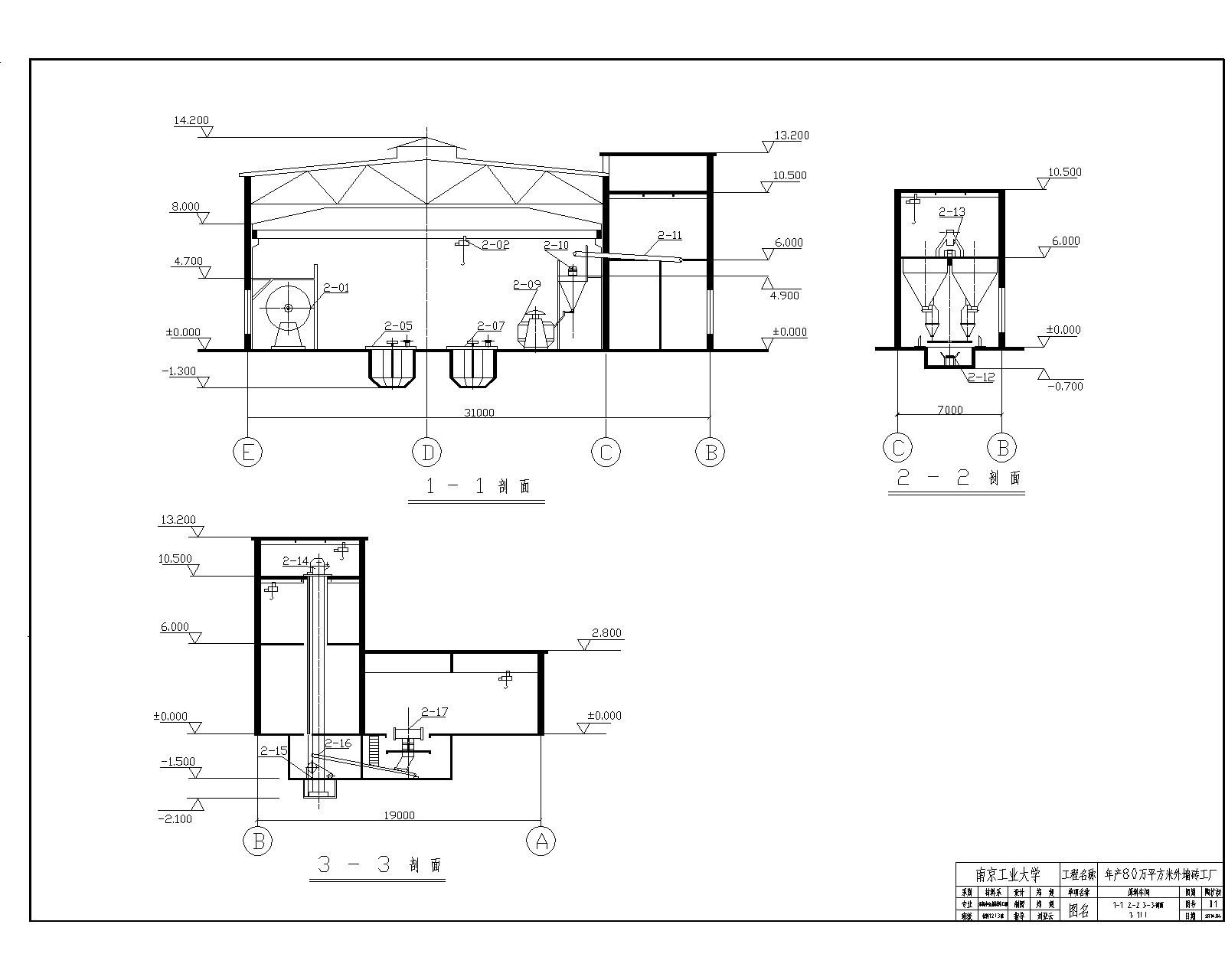
4.3.2绘制原料车间图 28
第五章 收尘系统的设计 30
5.1除尘系统设计意义 30
5.2设计总则 30
5.3一般技术规定 31
5.4收尘系统的计算和设备选型 32
5.4.1扬尘点排风量确定 32
5.4.2除尘风管的直径计算 33
5.4.3除尘设备选择 36
5.4.4绘制除尘系统图 37
参考文献 39
致谢 41
第一章 前言
设计工作是工程建设中的重要环节,其任务是按照质量优良的设计文件,使工厂建设和技术改造得以顺利进行,为投入生产创造有利条件。本次经过四个个多月的设计,把大学四年所学的理论知识与实际很好的联系起来,在设计过程中得到了刘亚云老师的悉心指导,还有同学的帮助,并在此表示感谢。
本次毕业设计的题目为“年产80万m2陶瓷外墙砖陶瓷工厂扩初设计(破碎工段收尘系统设计)”
设计进度安排见表1-1设计进度安排表
表1-1 设计进度安排表
Table 1-1 Design progress schedule
起讫日期 | 设计(论文)各阶段工作内容 | 备 注 |
2015.12.14-2016.01.15 | 准备阶段:借设计教室、准备设计用品、借阅资料、翻译英文资料。 | 小计5周 |
设计阶段: 1、方案论证、物料衡算、主机设备选型计算等,准备开题报告。(寒假5周、毕业实习3周) | ||
2016.03.14-2016.06.05 | 2、总平面及运输设计, | 小计12周 |
3、原料车间设计与收尘系统设计, | ||
4、正式图(CAD绘图)与设计说明书, | ||
5、机动。 | ||
答辩阶段 | ||
共计17周 | ||
第二章 总说明
2.1总论
本设计的指导思想是技术上的先进性以及工艺上的合理性。
相关图片展示:







您可能感兴趣的文章
- 利用污泥和低质粉煤灰制备高强度陶粒外文翻译资料
- 注蒸汽井中硅含量对水泥石抗压强度的影响外文翻译资料
- 碳纳米管和二氧化锰纳米粒子修饰的少层石墨烯在高性能超级电容器中的应用外文翻译资料
- 高能MnO2纳米线/石墨烯和石墨烯不对称电化学电容器外文翻译资料
- 影响立式辊磨机性能的操作参数外文翻译资料
- 水泥行业立式辊磨机及其性能参数研究进展外文翻译资料
- 立式辊磨机遇滚磨机基于能量的比较外文翻译资料
- 一种工作在500℃以下用于固体氧化物燃料电池的铌和钽共掺杂钙钛矿阴极外文翻译资料
- 层状钙钛矿A位缺陷的理解: 促进质子陶瓷电化学电池水氧化和氧还原的双反应动力学外文翻译资料
- 基于细菌纤维素/木质素的柔性高石墨化碳气凝胶: 无催化剂合成及其在储能装置中的应用外文翻译资料


