洗衣机后堵板冲压模具设计毕业论文
2020-02-19 15:45:25
摘 要
本设计采用AutoCAD2012软件对洗衣机后堵板进行了冲压模具设计。本设计共六章,主要论述了冲压技术概念、课题研究方法、课题特征分析、课题设计过程、课题部件设计等问题。
在对设计方案的对比中,本文选择了复合模进行设计。倒装结构是复合模设计中的典型形式,它涵盖了冲裁模设计的一般步骤,相较于正装结构操作更加方便和安全。
本文采用2副模具完成零件的制造,将落料、起伏成形和压字工作复合在第一幅模具中,而外缘翻边、切边、百叶窗成形、冲孔等多道工序则在第二幅模具中一次成形。将成形与分离工序尽量分开,便于修磨刃口,而第二副模具不在发生胀形和转移,大大提高生产效率,减少定位误差,能够满足现代化大规模生产要求。
关键词:倒装复合模;工艺计算;结构设计;模具总装
Abstract
This design uses AutoCAD2012 software to design the stamping die for the back block of washing machine. The design of six chapters, mainly discussing the concept of stamping technology, research methods, subject feature analysis, subject design process, part design and other issues.
In the comparison of the design schemes, this paper chooses the compound die to design. The inverted structure is a typical form in the design of the compound die. It covers the general steps of the blanking die design, and is more convenient an safe than the forward structure.
In this paper, two pairs of dies are used to complete the manufacturing of parts. Blanking, undulating forming and embossing work are combined in the first die, while many processes such as flanging, trimming, louvers forming, punching and other processes are formed in the second die at one time. The process of forming and separating is separated as far as possible, which is convenient for grinding the edge, while the second die is not bulging and transferring, which greatly improves the production efficiency and reduces positioning error, can meet the requirements of modern large-scale production.
Key Words:Flip-chip compound die;Process calculation;Structural design;Die assembly
目 录
第1章 绪论 1
1.1 冲压的概念、特点及应用 1
1.2 冲压的工序和模具 2
1.3 冲压技术的现状及发展方向 2
第2章 工艺方案的选择与比较 5
2.1 工艺分析 6
2.2 材料分析 6
2.3 工艺方案确定 6
第3章 模具总体结构设计 7
3.1 模具类型 7
3.2 送料与定位方式 7
3.3 卸料方式 7
第4章 冲压模具工艺与设计计算 8
4.1 毛坯尺寸计算及排样 8
4.1.1 毛坯计算 8
4.1.2 排样设计与计算 8
4.2 设计冲压力与选择压力机 9
4.2.1 计算冲压力 9
4.2.2 计算压力中心 12
4.2.3 选择压力机 12
4.3 模具零件刃口的设计与计算 12
第5章 模具的总体零件设计和计算 15
5.1 模具主要零部件的设计与计算 15
5.1.1 凸、凹模的设计与计算 15
5.1.2 凸、凹模强度校核 17
5.2 设模具其他零部件的设计 17
5.2.1 模架的设计 17
5.2.2 模座的设计 18
5.2.3 导向装置的设计 18
5.2.4 模柄的设计 18
5.2.5 垫板的设计 18
5.2.6 固定板的设计 19
5.2.7 通用标准件的设计 19
5.2.8 定位装置的设计 20
5.2.9 卸料装置的设计 20
5.2.10 废料切刀的设计 20
结论 21
参考文献 22
致谢 23
第1章 绪论
模具在各领域中有着广泛的应用,与日常生活中所使用的各种产品有着密切的联系,无论是汽车覆盖件、医疗设备外壳还是硬币、螺钉,都能够通过模具进行批量制作,模具是重要的工艺设备,模具的加工质量和精度影响着产品的好坏。对模具的使用使得产品能够大规模生产,通过更少的人力产出更多的产品用以满足市场需求,这是现代化工业生产的重要组成部分。
1.1 冲压的概念、特点及应用
通过力传递,将压力由压力机施加在模具上进而作用在材料上,使得材料按模具的工作零件的形状放生改变而得到需要的工件,这种加工方法称为冲压。大部分冲压在室温环境下进行,而所使用的原材料通常为薄板材料,所以冲压也称冷冲压或板料冲压。
由于各加工工艺都会用到模具,为了区分,习惯上将冲压模具称为冲模。冲模是冲压加工用以对所需工件进行批量生产的工具。冲模设计的好与坏直接关系到工件能否批量生产,对与先进的冲压工艺的使用需要先进的冲模作为基础。相比于锻压、注塑、切削等其他加工方式,冲压加工在许多的加工情况下更便于操作且性价比更高。主要表现如下:
- 冲压加工生产效率高,能实现批量生产。压力设备的往复高速运作,带动模具加工出成品,人力占比低,操作简便,压力机行程次数高,可在每分钟内生产出成百上千个零件。
- 冲压加工所得冲压件成品率高。由于模具寿命较长,冲压加工过程比较均匀,冲压件质量稳定,当试模合格后,在大批量的生产中出现废品的概率极低,模具的加工公差小于工件公差,这保证了成品尺寸在许可偏差之内。
- 冲压可加工工件尺寸集合的跨度大,外形崎岖程度高。如汽车轴瓦,车床外壳等,材料冷变形产生的硬化效应能够提高材料强度与刚度,加工成品能够适用于更极端的环境。
- 冲压加工对材料的利用率很高,对能源的使用量很少。除冲裁加工产生的工艺废料与结构废料,冲压的其他工艺基本没有废料的产生,而冲压加工一般不需要对材料进行加热,能源一般用于供给压力机和自动化传输设备的运作。
冲压也存在着一些缺点,在面对于小批量的复杂工件时,由于模具的造价较高且具备专一性,使用冲压加工的经济效益较低,而由于当前冲压设备与加工工艺的落后,对于冲压加工中的噪声和振动问题难以解决。
当今时代,冲压技术普遍用于各种领域以节省人力,大批量自动化生产是主要应用。无论是军用还是民用产品的生产,各行业产品零部件的生产诸如医疗器具、汽车、家电、交通、轻工等,在汽车的生产中,冲压件的占比在85%以上[1]。冲压加工甚至在许多零件的制造上取代了锻造和锻造等方法。
1.2 冲压的工序和模具
由于冲压所加工的零件种类很多,所用的冲压工艺各不相同,概括起来可分为两种工序。一种是使坯料以设定好的形状发生分离的工序,一种是使坯料在不发生失效的情况下产生塑性变形的的工序。
这两种工序,以变形方式进行细分,则有属于分离类的冲裁和成形类的弯曲与拉深,对于这三种细分之外的工艺在归类为特种成形。
当冲压工厂在实际生产所需要的冲压件时,对于形状简单、许可误差较大、产量较高的零件,相比于单一工序冲压,以一副复合模模具完成多个单一工序,既能够满足生产要求,还更加经济实惠。
冲模的结构类型也很多。通常按工序性质划分为冲裁模、弯曲模、拉深模和成形模等;按工序的组合方式划分为单工序模、复合模和级进模等。但各类模具都可简单的分为两部分,一部分是与压力设备固定的的上摸,另一部分是通过导向装置连接的下模。生产工作时,原材料通过人力或自动化设备送入模具,通过导料板或销钉等装置在下模面上定位,压力设备下压使得与压力设备固定的上摸同向移动,模具的主要工作零件与原材料在力的作用下产生分离或塑性变形,从而得到半成品或成品件。压力设备回升,模具从闭合状态打开,安置在上模或下模的杆件或板件使工件或废料从主要工作零件上脱离,一次冲压完成,重复过程构成冲压循环。
1.3 冲压技术的现状及发展方向
国外工业发达的国家对冲压技术是十分重视的,在冲压技术的研究上属于科技前沿,随着生产过程中的技术与经验积累,高自动化生产逐步取代了人力生产,在冲压生产中的人力占比逐步降低。
在国外,已经出现了全自动化的生产流水线,全生产人力占比极低;柔性制造技术与冲压技术结合且逐步完善;新型材料投入使用,能够生产出适用性更高的产品;模具精度很高,模具的制造精度、工作时的冲压准确性精度、易损零部件的互换性精度都属于微米级;模具寿命长,用以大批量生产钢质冲压件的级进模使用寿命可达千万次。
近年来,模具设计与制造的智能一体化及模具系统参数化等先进技术的进一步研究和实际使用[2],大型集成化数字系统的投入使用,进一步提高了软、硬件的性价比。
在长久的发展时间里,国内的模具工业从无到有,工业指数成倍增长,有了不错的发展,在曲面零件的翻边、弯曲回弹、板料成形性能、成形极限图、盒型件毛坯计算、液压胀形、冲压件工艺缺陷的分析等方面的研究及应用都颇有建树[1]。
国内模具制造工业的发展大致经历了一下几个阶段:
- 在20世纪50年代,处于手工业作坊时期。
- 在20世纪60年代,处于通用机械时期,这时开始使用车、磨、铣、刨等机床工具进行生产活动。
- 在20世纪70年代,处于仿形机械时期,这时生产工具融入了仿形设计。
- 在20世纪80年代,处于数控机械时期,这时生产工具由输入的NC代码操作,新出现了电火花加工机床和电火花线切割机床等。
- 在20世纪90年代,处于计算机数控机械及CAD/CAM应用时代,这时生产工具由计算机操作,设计从纸质图纸的手工绘图转变为开始使用计算机CAD软件制图,出现柔性自动化、加工中心等。
在冲压工艺及模具设计方面,在20世纪70年代末,由于国内经济水平落后,各产业百废待兴,生产主要以机床加工为主,模具工业没有得到足够的重视与发展。到20世纪80年代,国内经济回暖,工业逐渐崛起,汽车、家电、轻工生产线对模具有了大量的需求却基本依赖于昂贵的进口,国内迫切需要自主生产的模具以缓解进口压力,在一批现代化加工机床的引进后,以进口模具为参照,一些复制品模具出现在国内市场。至1990年,国内制造的多工位级进模已达到57个工位,精度达微米级,寿命达上千万次,缩小了与国外的差距[1]。
随着国家的政策导向和科学技术的发展进步,目前国内在冲压模具的设计与制造方面取得了较好的成果。部分模具工业企业国营转民营,国内竞争开始出现,模具工业增长指数逐年提高。
近年来,模具企业提高了对科技创新的重视,加大了研发收入。部分国内模具企业对CAD/CAE/CAM技术大力普及,开始使用Pro/E、PDX、UGNX等国际通用工业软件。在多方的共同努力下,自研的CAD/CAE/CAM技术开始出现并投入使用,缓解了国外的技术垄断所带来的影响。例如:吉林大学汽车覆盖件成型技术所研制的汽车覆盖件冲压成型分析KMAS软件、华中理工大学模具技术国家重点实验室研发的汽车覆盖件模具和级进模CAD/CAE/CAM软件[3]。
国内模具工业已取得显著进步,但相较发达国家还有许多不足。国内模具制造业在以下几点不足:
- 模具精度不足。在模具覆盖率高,各行业零件加工对模具的使用率高的现在,由于加工设备精度的不足,对于较高精度模具的加工仍需要花费较高的成本,相比于国外,国内模具精度普遍较低。
- 模具寿命短、材料利用率低。对于模具结构的设计不够严谨,在选择模具材料,确定加工工艺及使用条件方面的经验积累不足,热处理失误率较高。
- 对模具CAD/CAE/CAM技术的开发方面需要提高。大量企业在模具的设计中所使用的是国外的工业软件,模具设计所使用的CAD工业软件,如:AutoCAD、CATIA、UG NX等,在模具有限元分析中所使用的是国外的CAE软件,如ANSYS、DEFORM等,模具加工所使用的数控机床加载的是国外的数控系统,如:西门子、海德汉、法拉克等,国内缺少能够抢占市场的自研软件。
国内今后冲压技术的发展方向主要有一下几方面:
- 基本理论方面。加强对冲压变形的微观体系研究、加强数字化设计与优化方法的研究、加强有限元模拟的数值分析方法的研究,进一步提高理论的准确性,进而提高冲压件的质量。
- 材料方面。应加强研制适用于不同生产需要的新材料,研究提高材料的适应性极限的方法。
- 工艺方面。加强对冲压新工艺的研究,加强工艺模块化与系统化研究,进一步提高工艺使用的简便性。
- 模具方面。提高标准化程度,加强通用型模具的研究以适应更加复杂的零件,实现模具设计、分析、制造一体化以缩短模具的制造周期,进一步提高模具的使用寿命[1]。
- 冲压设备方面。改进压力机结构以降低噪声与振动,进一步提高多工位压力机的体积、行程次数,加强通用压力机的实用性,研究三维多工位压力机以提高加工能力。
第2章 工艺方案的选择比较与确定

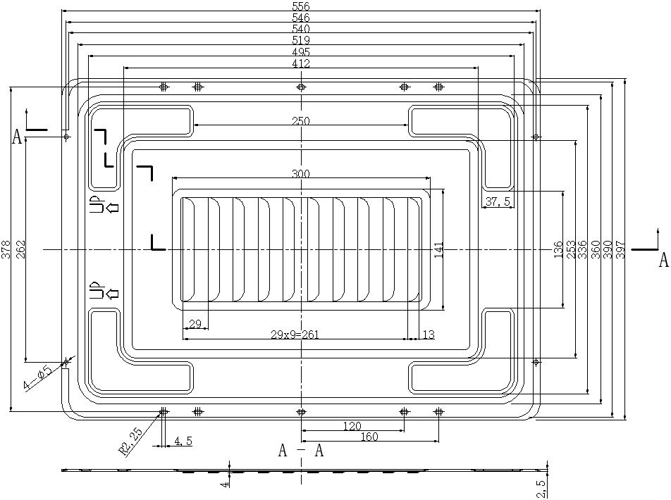
图1 洗衣机后堵板零件图

图2 半成品零件图
2.1 工艺分析
该工件厚度较薄,仅为0.5mm,但尺寸较大。工件包含的加工工艺有冲裁和成形,冲裁部分包括落料、冲孔和切边,成形部分包括起伏成形、百叶窗成形和外缘翻边。工件尺寸全部为自由公差,尺寸精度较低,可按IT12级确定。起伏成形高度为2.5mm,板料胀形量较小。分离工序各刃口不在同一平面,为便于修磨刃口,尽量将成形工序与分离工序分开[4]。
2.2 材料分析
材料为镀锌钢板,锌层对基板材料力学性能的影响不大,选择牌号SPHD镀锌钢板用于生产,材料力学性能与08优质碳素结构钢相近,材料的抗剪强度τb=260~360MPa,抗拉强度Rm=330~450MPa,屈服强度ReL=200MPa。
2.3 工艺方案的确定
该零件有三种工艺方案:
方案一:多副模具多道工序。采用单工序模生产。
方案二:单副模具多道工序。采用级进模生产。
方案三:2副模具2道工序。采用复合模生产。
方案一各副模具设计简单,单一模具花费较少,但多副模具制作花费总和很高且生产效率较低,不利于模具的更新换代,多副模具占地面积较大,但能够满足批量生产要求,精度高。方案二只需要一副模具,工件精度及生产效率都较高,但模具制造难度较大,制造周期较长,成品模具体积较大,难以进行较大批量的生产,制作模具的花销较高。方案三需要两幅模具,起伏成形与压字部分在第1副模具中1次成型,第2副模具中完成冲孔、切边等其他全部工序,模具制造较简单,生产效率较高,且成本较低,但精度一般。通过对上述三种方案的分析比较,该工件生产采用方案三能够较好的满足要求。
第3章 模具总体结构设计
3.1 模具类型
第1副模具采用落料-成型复合模,使用倒装方式,起伏成形部分与压字部分做成镶块结构,第2副模具采用复合模,使用倒装方式,该模具的设计是否合理是非常关键的,将直接关系到成品工件的形状及尺寸精度。切边凹模做成镶块,推件板孔与凸模以H7/h8配合,起导向和保护作用。
3.2 送料与定位方式
零件生产批量较大,且尺寸较大,使用手工送料难度较大且较难满足批量生产要求,安排生产采用自动化送料方式,则能够达到批量生产要求。第一副模具的使用活动导料销导向,可在模具闭合时挤压进孔洞中,在模具打开时在上升,有良好的导向作用,为了提高材料使用率使用活动挡料销定位,有利于模具的闭合。第二副模具使用机械手送料,将规整码放好的半成品件放入模具中,可满足自动化生产要求,使用凸凹模的519mm×360mm部分的台阶定位。
3.3 卸料方式
考虑零件尺寸较大,两幅模具均采用弹性卸料装置及顶件,避免刚性卸料导致工件局部变形。考虑到模具的结构设计问题,在第一幅模具中采用推杆与卸料板卸料,而在第二副模具中采用推件板卸料。
第4章 冲压模具工艺与设计计算
4.1 毛坯尺寸计算及排样
为保障外缘翻边与切边质量,半成品应留有切边余量。
4.1.1 毛坯计算
起伏成形与胀形相似,毛坯局部区域产生突出或下陷。在力的作用下,变形部分材料厚度变小,表面积增大,而外部材料不进入变形区[5],毛坯外形尺寸变化不大。毛坯尺寸可选择在成品外形尺寸上增加切边余量。
4.1.2 排样设计与计算
冲压生产中,毛坯材料费用占比最高,合理的排样能够减少毛坯材料的浪费,提高毛坯的利用率,由于模具结构的特点以及成品工件的形状特征,条料冲裁时产生的结构废料无法改变,减少工艺废料便是提高材料利用率的重点。毛坯为剪圆角的矩形,厚度较薄,尺寸较大,因此可采用直排比较合理。
无侧压条料宽度计算公式为:


