边界受限条件下盾构穿越地层变形与土压力研究毕业论文
2020-04-12 08:42:52
摘 要
目前,国内地铁建设正在如火如荼的建设中,各大城市对于地铁建设越来越重视,投入力度在不断加大,但也引起了不少问题,如地面塌陷、周边建筑物损坏、破坏原有地下工程等。地铁盾构穿越城市复杂环境,周边各类建筑物基础为盾构隧道构造了不同的边界条件,包括单边受限、两边受限以及局部受限等。盾构隧道穿越引起的地层变形与非受限条件下存在显著的差异。同时,盾构引起的地层损失也会对作用在周边深基础的土压力带来影响,但这些影响目前还缺乏合理的评价方法。这些都是亟待解决的问题。基于现状,通过Trapdoor模拟地层损失,采用二维钢棒相似土试验,构建一侧或双侧受限条件下的Trapdoor试验系统,测试得到Trapdoor引起的地层变形,以及量测Trapdoor下沉带来的侧向土压力变化,对地铁盾构引起的地层变形进行预测和对土压力变化进行分析。
关键词:地层变形;土压力;隧道;Trapdoor;挡土墙
Abstract
At present, the construction of domestic subways is in full swing. Major cities pay more and more attention to the construction of subways, and their investment has been increasing. However, they have also caused many problems, such as ground subsidence, damage to surrounding buildings, and destruction of existing subterranean buildings. Engineering and so on. Metro shields pass through the complex urban environment, and various types of building foundations for the surrounding tunnels construct different boundary conditions for the shield tunnels, including unilateral restrictions, both sides restrictions, and local restrictions.There is a significant difference in the deformation and unconstrained conditions caused by shield tunneling. At the same time, the formation loss caused by shields will also affect the earth pressure acting on the surrounding deep foundations, but these impacts currently lack a reasonable evaluation method. These are the problems that need to be solved.Based on the status quo, using Trapdoor to simulate the loss of the formation and using a similar two-dimensional steel bar similar soil test, build a Trapdoor test system under one or two-sided limited conditions, test the formation deformation caused by Trapdoor, and measure the lateral earth pressure caused by sinking of Trapdoor. Do a prediction of formation deformation caused by subway shields, and analysis the changes of earth pressure .
Key Words:ground deformation;earth pressure ;tunnel;Trapdoor;retaining wall
目录
第1章 绪论 1
1.1 研究现状 1
1.2 研究意义 3
1.3 研究内容 3
1.4 研究方法 4
第2章 试验设计 5
2.1 试验装置与材料 5
2.2 试验安排 6
2.3 试验目的 8
2.4 试验步骤 9
第3章 模型试验成果 10
3.1 静止土压力的对比 10
3.2 盾构施工区域对挡土墙土压力的影响 12
3.3 挡土墙与盾构施工区域边界的距离对土压力的影响 16
3.4 侧限宽度对土压力的影响 21
3.5 位移云图分析 24
第4章 结论与展望 28
4.1 结论 28
4.2 展望 28
参考文献 29
致谢 31
第1章 绪论
1.1 研究现状
当前,随着我国经济的不断发展,为顺应立体城市的建设,城市地铁交通设施发展迅速,其中盾构法在隧道工程中的应用越来越多,但盾构法施工不可避免地会引起地面和地下土体的移动。当土体位移过大时,甚至导致地面沉陷、周边已有建筑物变形、基坑垮塌和重要地下管线等城市生命线工程破坏事故,往往造成严重而不可挽回的经济损失和不利的社会影响[1–3]。此外,盾构穿过的房屋地下室外墙基础的附近区域,由于地层损失的影响,建筑物基础及其挡土结构土压力出现非线性变化,从而引起结构内力和变形的变化,对已建和在建构筑物的安全产生影响。
由于地层变形计算的难度较大,国内外关于隧道施工引起地面沉降的计算广泛采用经验法,其中Peck[4]通过对大量的地表沉降数据和有关工程资料进行分析后,得到地表沉降槽呈似正态分布的结论,并提出地表沉降分布和地表最大沉降量的估算公式。由于 Peck 公式是基于有限地区的实测资料提出的经验公式,其使用具有一定的局限性。刘建航和侯学渊[5],Attewell和Woodman[6],尹旅超等人[7]等对该公式提出了自己的见解,并纠正和补充了该公式的待完善之处。王建秀等人[8]论述分析了国内外关于盾构诱发地面沉降的研究现状与不足之处,对地层损失概念进行了重新界定,创建了基于沉降预测-施工控制的地层损失概念模型,提出了基于"地面沉降-地层损失-施工参数"联系通道的地面沉降控制流程。阳军生[9]使用随机介质理论,分析和预测盾构法隧道引起的地表沉降。张玉军和熊传义[10]等以武汉地铁重点地质剖面为例,采用平面弹塑性有限元方法分析了盾构施工过程土体中的塑性区、位移、应力分布及地面下沉情况。姜忻良和赵志民[11]根据土体损失的空间分布规律,应用镜像法、源汇法原理,采用数值积分方法,对隧道掘进过程中由土体损失产生的位移场进行空间分析,得到隧道周围土体的位移场分布,根据位移场的分布求解分析隧道开挖所形成的应力。
挡土结构土压力问题一直是土力学的热门问题,Terzaghi等通过大量的模型试验[12, 13]对经典土压力理论提出了质疑,明确了土体达到极限状态和挡土结构变形之间的关系,认为只有当土体水平位移达到一定值,土体产生剪切破坏时,经典的库仑和朗肯土压力值才几乎正确,并给出了摩擦影响下的土压力计算方法。对于一侧受限的条件,Janssen在谷仓试验中研究了侧压力随填料高度的变化并推导了土压力计算方法[14],揭示了受双侧壁摩擦影响的条件下,土压力的非线性分布特征。Chen和Fang[15]进行了挡土墙土压力的室内模型试验,Take和Valsangkar[17]开展了离心机试验。叶晓明[18]根据卸载拱原理推导出了柱板结构挡土墙墙板上的土压力计算公式,计算结果表明,作用在板上的侧压力并不随埋深线性增长,此结论与工程实际情况较为一致。王奎华[19]等学者建立了从挡土墙后滑动楔体达到极限平衡状态时的静力平衡方程,求解得出了墙后土体滑裂面不是平面,而是一堆数螺旋线面,其试验所得结果较库伦土压力偏大,但与实际工程比较符合,最后发现主动土压力受填土黏聚力和内摩擦角的影响比较明显。贾海莉[20]等学者提出了土拱效应的几个值得探讨的问题,如拱脚的存在形式,拱形,拱体的几何性质,微观性质等,指出拱脚的存在形式有摩擦拱脚、直接拱脚、二异拱脚、土体拱脚等4种,在此基础上,通过工程实例对拱形和拱体的几何参数提出初步见解,解释了土拱形成的条件:一部分土体产生变形或位移,其余土体无变化,由于土体摩擦力和黏聚力的存在,移动土体与未动土体之间形成摩擦力,次摩擦力增加了未移动土体的支撑力,减轻了移动土体的支撑力。张永兴[21]和陈林[21]对库伦平衡理论进行改进,并用于非极限平衡主动土压力论文的研究,认为在平衡状态下,挡土墙后土压力是由墙后填土出现的滑动楔体所产生。在滑动楔体上沿竖向取水平薄层作为微分单元体,通过力的平衡条件,建立挡土墙的非极限状态主动土压力的基本方程,并结合整个滑楔体的力矩平衡条件,由此得到对应不同填料内摩擦角、墙土摩擦角和挡土墙位移比的侧土压力系数,将其用于水平微分单元发求解刚性挡土墙平移模式下非极限状态下主动土压力,得到挡土墙土压力和和合力作用点的理论公式。在研究内摩擦角、墙土摩擦角、挡墙位移比与土侧压力系数、土压力强度、土压力合力、土压力合力作用点的关系时,与模型试验进行了比较,同时探讨了位移比对挡土墙抗倾覆能力的影响。刘忠玉[22]以墙后为无粘性土填料的竖直刚性挡土墙作分析对象,假设墙后土体形成圆弧形土拱,考虑水平层间的相互作用力,修正了水平层析法,从而得到主动土压力合力点位置、土压力大小和土压力分布的表达式,与已有的模型试验和理论成果对比分析,吻合度较好,证明文献提出的修正方法的可靠性。水平土层的平均剪应力受墙土摩擦角、填土内摩擦角等因素影响,沿挡土墙墙高呈非线性分布。卢坤林[23]对于未达到极限状态的刚性挡土墙,提出了一种简化的主动土压力计算方法。根据反映墙后主动区土体应力-应变性状的卸荷应力路径试验确定的应力-应变关系,得到非极限状态下摩擦角与挡土墙位移的关系。对于未达到极限状态的主动土压力,结合已得到的摩擦角与挡墙位移的关系,采用与墙后滑裂面向平行的微分条对墙后土体进行划分,对微分进行受力分析,创建平衡方程,推导了滑裂面的倾角,从而得到了非极限状态下主动土压力计算公式。与一例模型试验进行对比分析,吻合较好。同时研究发现:在墙下部1/3高范围内存在一定的差异。徐杨[24]认为滑裂面的准确选取对挡土墙稳定性分析有较大的影响。基于朔性理论,分别推导出了直线和对数螺旋线平移模式下挡土墙主动土压力的计算公式。与已有算例对比讨论,研究了平面滑裂面和对数螺旋线滑裂面的主动土压力的计算公式。研究结果表明:平面滑裂面是螺旋滑裂面的一种特殊情况,随着滑裂面的曲率增大,主动土压力的合力作用点高度逐渐上移,主动土压力合力略微变大。彭述权[25]等人为了研究土拱效应对挡土墙主动土压力的影响,采用颗粒流方法研究绕墙顶部转动主动土压力分布和墙厚后土拱效应细观形成机理,提出跨高比矢高比来衡量土拱曲线。其研究结果表明:垮高比和矢量高比越大,则土拱效应越明显;细观颗粒流方法能比较好的模拟挡墙绕墙顶转动的主动土压力分布;当绕墙顶转动位移小于0.05H时,沿墙高到墙顶0.4H范围内土拱效应明显,主动土压力呈现显著的非线性分布;在其他位移模式和位移情况下土拱效应不明显。江文放[26]等人的研究表明:非极限填土内摩擦角和墙土摩擦角为挡土墙位移的函数。根据滑裂体的静力平衡条件,得到非极限状态下考虑土拱效应和平移的主动土压力公式。参数分析结果表明,非极限状态滑裂面倾角和非极状态主动土压力系数随墙土摩擦角的增大而增大;非主动土压力系数和非主动土压力均随着位移比的增大而减小。
面对城市越来越复杂的工程边界条件,现有的地层变形预测方法和土压力计算方法在某些特殊情况下已不能适用,盾构隧道穿越临近建筑基础引起的地面沉降与土压力问题还缺少专门的研究。模型试验是探讨这一问题最为直接的方法。侧向土压力试验一般采用土压力盒作为测试手段,但是土压力盒测试精度受到介质类型与相对密度的影响很大。由于侧向填料难以密实,且在变形中密实度会持续发生变化。因此,其测试精度难以保证。目前,模型试验还需要采用更为可靠的测试方法。
以上是毕业论文大纲或资料介绍,该课题完整毕业论文、开题报告、任务书、程序设计、图纸设计等资料请添加微信获取,微信号:bysjorg。
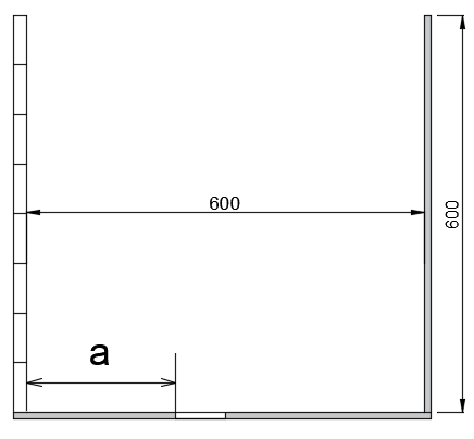
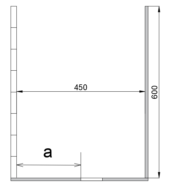
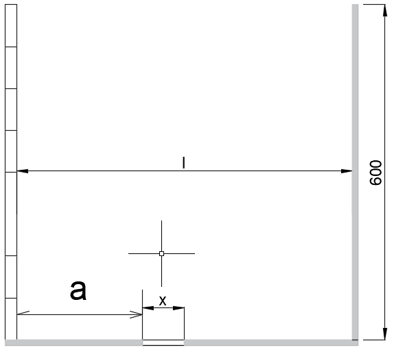
相关图片展示:









