长沙理工大学图书馆空调系统设计毕业论文
2020-04-15 20:24:00
摘 要
本项目为长沙理工大学图书馆空调系统设计,建筑位于湖南省长沙市。该建筑为一栋地上五层的图书馆,总建筑面积12812 m2。其中,一层和二层为基本书库、会议室和报告厅,三层、四层和五层为借阅区、阅读区以及办公室。
本设计主要内容包括:(1)采用谐波反应法对该建筑进行冷、热负荷的计算,并利用鸿业暖通空调负荷计算软件得出建筑冷热负荷;(2)根据该建筑附近可利用资源提出冷热源设备备选方案,并进行经济和技术分析,确定系统冷热源型式;(3)根据该建筑各个房间的温湿度控制要求进行合理的系统设计,有两种系统种类可以选择,房间空间较大的采用了全空气处理系统,如阅览室、中庭等;较小并且分散的房间采用风机盘管加新风系统,如办公室研究室等。
关键词:空调 冷热源 负荷 冷热源
The design of air conditioning system for the library of Changsha University of Technology
Abstract
The project named the design of air conditioning system for the library of Changsha University of Technology, which is located at Changsha, Hunan. The total floor area of the library building is 12812 m2, which consists of five floors including basic libraries, meeting rooms, and reporting halls in the first and second floor, and the lending area, reading area, and offices in the third floor to fifth floor.
This design mainly focuses on the following works: (1) The cooling and heating loads of the building are calculated according to harmonic response method, and then the detailed results are derived by using the HongYe HVAC software; (2) Several alternative schemes are proposed account for the energy resources, and then the type of cold and heat source is determined based on the economic and technical analysis of the alternative schemes; (3) The air conditioning system is designed based on the requirements of the temperature and humidity, in which the full air system and fan coil unit plus fresh air system are adopted in this design. The full air system is mainly employed in the rooms with large floor area (e.g., reading room atrium), and the system of fan coil unit plus fresh air is deployed in the small distributed rooms (e.g., small offices and study rooms).
Key words: Air conditioning; Cold and heat source; Load; Cold and heat source;
目 录
摘要 ……………………………………………………………………………I
ABSTRACT ……………………………………………………………………II
第一章 工程概况……………………………………………………………1
1.1建筑概况………………………………………………………………1
1.2建筑资料………………………………………………………………1
1.2.1 建筑分类………………………………………………………1
1.2.2 判断这个建筑的热工分区……………………………………2
1.2.3 围护结构设计…………………………………………………3
1.3建筑所在地的设计数值………………………………………………6
1.3.1 房间外的设计数值……………………………………………6
1.3.2 室内设计参数…………………………………………………8
第二章 求出建筑夏季供冷时的负荷…………………………………9
2.1 夏季供冷时建筑负荷的计算方法……………………………………9
2.2 夏季供冷时建筑负荷的求解…………………………………………9
2.2.1 通过围护结构传入的非稳态传热形成的逐时冷负荷………9
2.2.2 透过玻璃窗进入的太阳辐射得热形成的逐时冷负荷………10
2.2.3 人体显热形成的逐时冷负荷…………………………………11
2.2.4 照明系统形成的冷负荷………………………………………11
2.2.5 办公设备散热形成的冷负荷…………………………………12
2.2.6 人体散湿量……………………………………………………12
2.2.7 人体散湿形成的潜热冷负荷…………………………………12
2.2.9 新风产生的冷负荷……………………………………………13
2.2.10 临近房间的通风不错时内围护结构温差传热的冷负荷 …13
2.2.11 相邻空间有发热量时内围护结构温差传热冷负荷 ………14
2.3 典型房间的冷负荷验证 ……………………………………………14
2.3.1 通过围护结构传入的非稳态传热形成的逐时冷负荷………14
2.3.2 透过玻璃窗进入的太阳辐射得热形成的逐时冷负荷………16
2.3.3 人体显热形成的逐时冷负荷…………………………………17
2.3.4 照明系统散热形成的冷负荷…………………………………18
2.3.5 办公设备散热形成的冷负荷…………………………………19
2.3.6 人体散湿量……………………………………………………19
2.3.7 人体散湿形成的潜热冷负荷…………………………………20
2.3.8 新风产生的冷负荷……………………………………………20
2.3.9 临近房间的通风不错时内围护结构温差传热的冷负荷……20
2.3.10 该房间的逐时冷负荷 ………………………………………21
2.4 鸿业暖通算得建筑冷负荷 …………………………………………21
2.5 建筑负荷分析……………………………………………………… 23
第三章 热负荷计算……………………………………………………… 24
3.1 热负荷计算方法 ……………………………………………………24
3.2 热负荷计算 …………………………………………………………24
第四章 系统设计 …………………………………………………………26
4.1 空调系统方式的确定 ………………………………………………26
4.1.1 空气调节系统分类……………………………………………26
4.1.2 系统方式确定…………………………………………………27
4.2 空调系统冷热源方案初步选择 ……………………………………28
4.3 空调系统冷源以及热源方案的比对选择 …………………………28
4.3.1 水冷式电动冷水机组技术经济比对选择……………………28
4.3.2 风冷式电动冷水机组技术经济比对选择……………………32
4.3.3 冰蓄冷技术经济分析…………………………………………33
4.3.4 燃油燃气锅炉…………………………………………………33
4.3.4 水/地源热泵 …………………………………………………34
4.4 冷热源方案确定 ……………………………………………………34
第五章 房间风量、冷量计算及设备选择……………………………35
5.1 一次回风式全空气系统风量、冷量计算……………………………35
5.2 空气处理机组的选型 ………………………………………………37
5.3 风机盘管 新风系统风量、冷量计算………………………………38
5.4 风机盘管的选型 ……………………………………………………40
第六章 气流组织散播形态计算 ………………………………………41
6.1 空调区域气流散播形态 ……………………………………………41
6.2 气流分布计算 ………………………………………………………41
第七章 空调系统风系统水力计算 ……………………………………43
7.1 全空气系统风系统水力计算 ………………………………………43
7.2 回风系统水力计算 …………………………………………………45
7.3 新风系统水力计算 …………………………………………………47
第八章 空调系统水系统的水力计算…………………………………50
8.1 冷冻水供水管水力计算 ……………………………………………50
8.2 冷冻水回水管水力计算 ……………………………………………51
8.3 供回水立管的水力计算 ……………………………………………53
8.4 冷凝水管径水力计算 ………………………………………………55
第九章 设备选型 …………………………………………………………56
9.1 冷却塔选型 …………………………………………………………56
9.2 分、集水器的选型…………………………………………………57
9.3 膨胀水箱的型号选择 ………………………………………………57
9.4 冷却水泵的选型 ……………………………………………………58
9.5 冷冻水泵的选型 ……………………………………………………61
9.6 循环水泵的选型 ……………………………………………………61
9.7 补水泵的选型 ………………………………………………………64
第十章 管道的保温、防腐以及设备的消声减震…………………66
10.1 空调系统的管道保温………………………………………………66
10.2 空调设备的减震与消声……………………………………………66
致谢 …………………………………………………………………………68
参考文献 ……………………………………………………………………69
- 工程概况
- 建筑概况
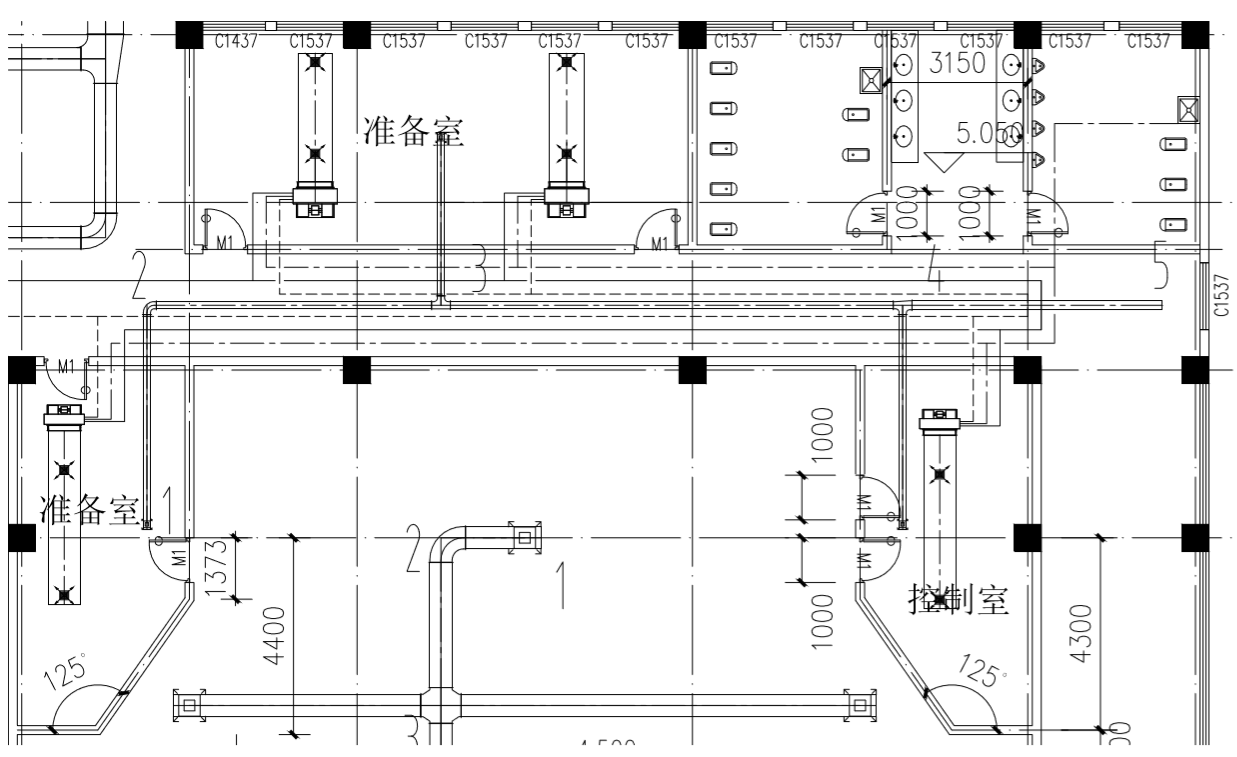
本建筑为长沙理工大学图书馆,该建筑位于湖南省长沙市。该建筑为地上五层的图书馆,总建筑面积12812 m2。一层和二层为基本书库、会议室和报告厅,三层、四层和五层为借阅区、阅读区以及办公室。
图书馆设计的目的不仅仅是一个给校内学生提供的学习场所,还设立了不同规模的可以容纳不同人数的会议室,满足校内师生商讨大小事宜的需求;此外还有若干研究所,供给研究人员进行不同学科的科学实验研究。会议室和研究室由于各个房间不是都同时有人,所以需要做到温湿度的独立控制。每层都设立了图书阅览室,使学生可以在空闲的时间在阅览室多多学习课外的科学文化知识,这些阅览室面积较大,且功能比较单一,所以负荷特性都较为相似。在该建筑的设计过程中对图书馆的特点以及其服务特征进行充分的考虑,争取建成一座高品位、多功能、舒适度高有人文关怀的建筑。希望其室内环境更加舒适、科研设备更加先进、功能更加完备,能成为长沙理工大学的标志性建筑,并被广大师生所喜爱。
- 建筑资料
- 建筑分类
- 建筑资料
根据这篇文章所参考的[2]资料的中条文3.1.1中对公共建筑的分类标准。
1、如果某一独栋建筑的面积超过300 m2,或者某一独栋建筑的面积比300 m2小包括等于300 m2,但是如果是一群建筑而且这群建筑的总面积比1000 m2还要大,把这两种情况的建筑都叫做甲类的公共建筑。
以上是毕业论文大纲或资料介绍,该课题完整毕业论文、开题报告、任务书、程序设计、图纸设计等资料请添加微信获取,微信号:bysjorg。
相关图片展示:









