南京康宁大厦空调设计毕业论文
2020-04-15 18:09:26
摘 要
本工程位于南京市,总建筑面积约6000平方米,五层楼建筑,主要用作办公用途。
本文首先对办公楼进行分析并查阅相关文献资料,通过分析论证得风机盘管布置灵活,可以单独的调节室温,此外不需回风管道,节省建筑空间,因此该建筑的办公室采用风机盘管加新风系统。地下一层需做通风设计,采用机械排风。
最后对整个设计进行了总结,并对有待于进一步研究的问题进行了概述,对今后的设计工作提出了一些建议。强调空调设计应尽量满足业主的要求及节能规范。本设计依据参考并执行国家相关标准及规范。
关键词:空调,冷负荷,风机盘管
Abstract
The project is located in nanjing, with a total construction area of about 6000 square meters and a five-storey building, which is mainly used for office use.
Firstly, this paper analyses the office building and consults relevant literature. Through analysis and demonstration, it is concluded that the fan-coil unit is flexible and can adjust the room temperature independently. In addition, there is no need for air return pipeline to save building space. Therefore, the office of this building adopts fan-coil unit plus fresh air system. The underground floor needs ventilation design and mechanical ventilation.
Finally, the whole design is summarized, and the problems to be further studied are summarized, and some suggestions for future design work are put forward. It is emphasized that the air conditioning design should meet the requirements of the owners and the energy saving standards as far as possible. The design is based on reference and implementation of relevant national standards and norms.
Key words: air conditioning— cooling load—fan coil unit
目录
摘 要 I
Abstract II
第一章 设计概况 1
1.1工程概况 1
1.2气象参数 1
1.3围护结构参数 2
1.3.1墙体 2
1.3.2门窗 2
1.3.3楼板 2
1.3.4屋面 2
1.4室内设计参数 2
1.5不同房间人均面积指标及照明负荷 3
第二章 负荷计算 4
2.1空调房间冷负荷计算说明 4
2.2湿负荷计算 7
第三章 空调系统方案的确定 12
3.1.空调系统方案的确定 12
3.1.1常用空调方式及方案比较 12
3.1.2系统选择 13
3.1.3新风系统 13
3.2. 夏季空气处理过程 14
第四章 空调设备的选择 16
4.1.风机盘管的选择 16
4.2风机盘管的布置 20
4.3.新风机组的选择计算 20
第五章 气流组织计算 22
5.1气流组织的形式 22
5.2气流组织的计算 22
第六章风系统设计 30
6.1风道布置原则 30
6.2 风管阀门的选择 30
第七章 水力计算 37
7.1 空调水系统 37
7.1.1 空调水系统的选型比较 37
7.1.2 空调水系统的布置 38
7.1.3 风机盘管水系统新风水系统水力计算 39
第八章 冷热源设计 52
8.1冷热源机组选择 52
8.2冷冻水泵的选择 54
8.3水系统的补水定压 54
8.4软化水装置 56
8.5膨胀水箱的选择 56
结 论 58
设计依据 59
第一章 设计概况
1.1工程概况
本工程为南京康宁大厦空调设计,该大厦位于南京市,总建筑面积约为6000平方米。地上一层至四层为大堂、办公室、会议室、接待室等,五层为多功能厅。总高度为23.19m,其中首层高5m。
1.2气象参数
室外设计参数按南京市选取,据设计依据[1],查得南京室外设计参数。列于表1-1中。
表1-1南京室外设计参数
大气压力 | 冬季室外大气压力(hPa) | 1025.5 |
夏季室外大气压力(hPa) | 1004.3 | |
室外计算温、湿度 | 夏季空气调节室外计算干球温度(℃) | 34.8 |
夏季空气调节室外计算湿球温度(℃) | 28.1 | |
夏季空气调节室外计算日平均温度(℃) | 31.2 | |
夏季通风室外计算温度(℃) | 31.2 | |
夏季通风室外计算相对湿度(%) | 69 | |
冬季通风室外计算温度(℃) | 2.4 | |
冬季空气调节室外计算温度(℃) | -4.1 | |
冬季空气调节室外计算相对湿度(%) | 76 | |
夏季室外平均风速(m/s) | 2.6 | |
风速 | 冬季室外平均风速(m/s) | 2.4 |
1.3围护结构参数
1.3.1墙体
外墙选用设计依据[1] 第3号墙体,传热系数0.56W/(m2•K),衰减为0.34,延时为9.1h,其结构如下:
1.水泥砂浆20mm
2.挤塑聚苯保温板20mm
3.加气混凝土砌块200mm
4.水泥砂浆20mm
内墙:为砖墙(002002),其传热系数K=2.0 W/(m2·K);衰减系数β=0.4;延迟时间ε=7.2h。
1.3.2门窗
外窗:为双层铝合金窗,其传热系数K=2.6 W/(m2·K),衰减系数β=0.997;延时时间ε=0.365 h。
1.3.3楼板
楼板选用设计依据[4]中8号墙体,传热系数1.20 W/(m2•K)。其结构如下:
1.面层
2.钢筋混凝土楼板
3.反贴保温层(聚苯乙烯泡沫塑25mm)
1.3.4屋面
屋面:为非上人加气混凝土砌块100—聚苯板70,传热系数K=0.454W/(m2·K) ;衰减系数β=0.244;延迟时间ε=10.618 h
1.4室内设计参数
室内设计参数查依据[1],依据[5],根据推荐值选取,列于表1-3中。
表1-3夏季空调室内设计参数
房间类型 | 夏季 | 冬季 | ||||
|---|---|---|---|---|---|---|
温度 | 湿度 | 新风量 | 温度 | 湿度 | 新风量 | |
(℃) | (%) | m3/h·人 | (℃) | (%) | m3/h·人 | |
会议室 | 25 | 60 | 20 | 18 | 35 | 20 |
办公室 | 26 | 60 | 30 | 18 | 35 | 30 |
大堂、多功能厅 | 26 | 60 | 20 | 18 | 35 | 20 |
1.5不同房间人均面积指标及照明负荷
不同房间的人均面积指标及照明负荷列于表1-4中。
表1-4不同房间人均面积指标及照明负荷
房间名称 | 人均面积指标(m2/人) | 照明负荷(W/m3) |
普通办公室 | 4 | 20 |
高级办公室 | 8 | 20 |
大堂 | 3 | 30 |
走廊 | 50 | 5 |
多功能厅 | 2 | 15 |
会议室 | 2.5 | 18 |
第二章 负荷计算
2.1空调房间冷负荷计算说明
空调冷负荷主要由以下几个部分组成:
1)围护结构瞬变传热形成的冷负荷:
① 墙体的传热负荷;
② 玻璃窗的传热负荷;
2)透过玻璃窗的日射得热形成的冷负荷;
3)室内热源散热形成的冷负荷;
① 工艺设备散热形成的负荷;
② 照明散热形成的冷负荷;
③ 人体散热形成的冷负荷。
冷负荷系数法做为一种在空调工程中的简化计算方法,在计算围护结构瞬变传热负荷时被普遍地应用。在此,也利用冷负荷系数法对于围护结构瞬变传热形成的冷负荷进行计算。本次毕业设计中的负荷主要由鸿业负荷软件计算得出。但是为了详细说明负荷计算过程,还是在计算说明书中,对于负荷计算的理论过程做出详细说明。
2.1.1墙体瞬变传热形成的冷负荷
1)外墙瞬时传热引起的冷负荷
在日射和室外气温综合作用下,外墙和屋面传热时形成的逐时冷负荷可按下式计算:
Qw=Fw·Kw·(tw-tn) (2.1)
式中:Qw—墙屋面传热形成的逐时冷负荷,W;
Fw—外墙或屋面的计算面积,㎡;
Kw—外墙或屋面的传热系数,W/(㎡·℃);
Tw—外墙或屋面的冷负荷计算温度的逐时值,℃;
tn—室内设计温度,℃;
2)内围护结构冷负荷
通过空调房间隔墙,楼板,内窗,内门等内围护结构的温差传热而产生的冷负荷,可
视为稳定传热,不随时间而变化,可按下式计算:
Q'c(τ)=Kn
Fn
(tn.m △ta-tR) (2.2)
式中:Kn—内围护结构(如内墙,楼板等)的传热系数,W/㎡·℃;
Fw—内围护结构的面积,㎡;
tn.m—夏季空调室外计算日平均温度,℃;
ta—附加温升,可按[3]表2-10选取。
2.1.2 外窗瞬时传热冷负荷
在室内外温差作用下,通过玻璃窗瞬变传热引起的冷负荷可按下式计算:
Qc= KF(tl-tn) (2.3)
式中:F—窗口面积,m2 ;
K—玻璃窗的传热系数,W/( m2·K);
tn—室内设计温度,单位为℃;
tl—玻璃冷负荷逐时计算温度,℃。
4.1.3透过玻璃窗的日射得热形成的冷负荷
透过窗户的太阳辐射得热形成的冷负荷计算过程:
Qr=CaCsCiFcDj,maxCq (2.4)
Qr=FyCZDj,maxCq (2.5)
式中:
Fy——窗口有效面积,m2 ;
Ca——玻璃窗的有效面积系数,Ca的值可查附录2-5表4得双层钢窗为0.75;
Cs——玻璃窗的遮阳系数,其值可查附录2-5表2,得双层12mm厚玻璃钢低辐射玻璃,Cs=0.49
Ci——玻璃窗内遮阳设施的遮阳系数,查附录2-5表3,取浅色白活动百页为,Ci=0.60;
Dj,max——最大的太阳辐射得热因子,W/m2;
Cq——冷负荷系数,其值根据南﹑北区和有无窗帘划分。
建筑地点在北纬27°30′以南的地区为南区,以北为北区。
南京位于北纬39.8°,故属于北区。
4.1.4设备散热冷负荷
设备散热形成的冷负荷可按下式计算:
LQ=Q·CLQ (2.6)
Q=1000·n1·n2·n3·N (2.7)
式中:Q—设备和用具,W的实际显热散热量,W;
CLQ—设备和用具显热散热冷负荷系数,可查《空气调节》附录2-6表2无罩设备和用具显热散热冷负荷系数表;
N—电动设备的安装功率,KW;
n—电动机效率,n=75%;
n1—利用系数,n1=0.7—0.9;
n2—电动机负荷系数,对于精密仪器取0.15-0.40;
n3—同时使用系数,一般取0.5-0.8;
2.1.5照明散热形成的冷负荷
照明灯具采用暗装荧光灯,照明散热形成的冷负荷可按下式计算:
Q= n1×n2× N ×Clq (2.8)
N=N’F (2.9)
式中:Q—照明散热形成的逐时冷负荷,W;
n1—镇流器消耗功率系数,查《暖通空调》,镇流器装在顶棚内n1=1.2;
n2—灯罩隔热系数,查《暖通空调》,取利用自然通风散热于顶棚内n2=0.6;
Ccl—照明散热冷负荷系数,如下表:
N —照明功率,W;
N′—照明功率密度, W/㎡;
F —房间面积,㎡;
2.1.6 人体散热形成的冷负荷
人体散热包括潜热散热和显热散热,人体散热量以成年男子散热量为计算基础,乘以对应的群集系数加以修正。人体散热形成的冷负荷可按下式计算:
Q=(QsCcl Qq)×n×n’ (2.10)
式中: Q—人体散热形成的逐时冷负荷,W;
Qs—不同室温和劳动性质成年男子显热散热量,W;
Qq—不同室温和劳动性质成年男子潜热散热量,W;
Ccl--人体显热散热冷负荷系数;
F—房间面积,㎡;
n—房间内人数;
n’—群集系数,n’=0.9;
2.2湿负荷计算
2.2.1 人体散湿量
Mw=0.001·n·n’·g (2.11)
式中:Mw —人体散湿量,kg/h
n —室内全部人数
n’ —群集系数
g —成年男子的小时散湿量,g/h;
以101为例进行负荷计算如下
北外墙 | 时间 | 7:00 | 8:00 | 9:00 | 10:00 | 11:00 | 12:00 | 13:00 |
tc(τ) | 32.6 | 32.6 | 32.5 | 32.5 | 32.4 | 32.2 | 32.1 | |
tR | 26 | 26 | 26 | 26 | 26 | 26 | 26 | |
Δt | 4.92 | 4.92 | 4.81 | 4.81 | 4.71 | 4.50 | 4.40 | |
K | 0.56 | 0.56 | 0.56 | 0.56 | 0.56 | 0.56 | 0.56 | |
A | 15.5 | 15.5 | 15.5 | 15.5 | 15.5 | 15.5 | 15.5 | |
Qc(τ) | 42.68 | 42.68 | 41.78 | 41.78 | 40.88 | 39.09 | 38.19 |
14:00 | 15:00 | 16:00 | 17:00 | 18:00 | 19:00 | 20:00 |
32.0 | 31.9 | 31.8 | 31.8 | 31.8 | 31.8 | 31.8 |
26 | 26 | 26 | 26 | 26 | 26 | 26 |
4.30 | 4.19 | 4.09 | 4.09 | 4.09 | 4.09 | 4.09 |
0.56 | 0.56 | 0.56 | 0.56 | 0.56 | 0.56 | 0.56 |
15.5 | 15.5 | 15.5 | 15.5 | 15.5 | 15.5 | 15.5 |
37.29 | 36.39 | 35.50 | 35.50 | 35.50 | 35.50 | 35.50 |
西外墙 | 时间 | 7:00 | 8:00 | 9:00 | 10:00 | 11:00 | 12:00 | 13:00 |
tc(τ) | 37.90 | 37.90 | 37.80 | 37.70 | 37.50 | 37.30 | 37.10 | |
tR | 26 | 26 | 26 | 26 | 26 | 26 | 26 | |
Δt | 11.02 | 11.02 | 10.91 | 10.81 | 10.60 | 10.40 | 10.19 | |
K | 0.56 | 0.56 | 0.56 | 0.56 | 0.56 | 0.56 | 0.56 | |
A | 20.00 | 20.00 | 20.00 | 20.00 | 20.00 | 20.00 | 20.00 | |
Qc(τ) | 123.39 | 123.39 | 122.23 | 121.08 | 118.76 | 116.44 | 114.13 |
14:00 | 15:00 | 16:00 | 17:00 | 18:00 | 19:00 | 20:00 |
36.90 | 36.60 | 36.40 | 36.20 | 36.10 | 36.00 | 35.90 |
26 | 26 | 26 | 26 | 26 | 26 | 26 |
9.98 | 9.67 | 9.47 | 9.26 | 9.16 | 9.05 | 8.95 |
0.56 | 0.56 | 0.56 | 0.56 | 0.56 | 0.56 | 0.56 |
20.00 | 20.00 | 20.00 | 20.00 | 20.00 | 20.00 | 20.00 |
111.81 | 108.34 | 106.02 | 103.71 | 102.55 | 101.39 | 100.23 |
西外窗 | 时间 | 7:00 | 8:00 | 9:00 | 10:00 | 11:00 | 12:00 | 13:00 |
tc(τ) | 26.0 | 26.9 | 27.9 | 29.0 | 29.9 | 30.8 | 31.5 | |
tR | 26 | 26 | 26 | 26 | 26 | 26 | 26 | |
Δt | -3.0 | -2.1 | -1.1 | 0.0 | 0.9 | 1.8 | 2.5 | |
Kw | 2.6 | 2.6 | 2.6 | 2.6 | 2.6 | 2.6 | 2.6 | |
Aw | 4.5 | 4.5 | 4.5 | 4.5 | 4.5 | 4.5 | 4.5 | |
Qc(τ) | -35.10 | -24.57 | -12.87 | 0.00 | 10.53 | 21.06 | 29.25 |
14:00 | 15:00 | 16:00 | 17:00 | 18:00 | 19:00 | 20:00 |
31.9 | 32.2 | 32.2 | 32.0 | 31.6 | 30.8 | 29.9 |
26 | 26 | 26 | 26 | 26 | 26 | 26 |
2.9 | 3.2 | 3.2 | 3.0 | 2.6 | 1.8 | 0.9 |
2.6 | 2.6 | 2.6 | 2.6 | 2.6 | 2.6 | 2.6 |
4.5 | 4.5 | 4.5 | 4.5 | 4.5 | 4.5 | 4.5 |
33.93 | 37.44 | 37.44 | 35.10 | 30.42 | 21.06 | 10.53 |
西外窗透入日射得热形成的冷负荷 | 时间 | 8:00 | 9:00 | 10:00 | 11:00 | 12:00 | 13:00 |
CLQ | 0.14 | 0.17 | 0.18 | 0.19 | 0.2 | 0.34 | |
Dj,max | 539 | 539 | 539 | 539 | 539 | 539 | |
Cc,s | 0.516 | 0.516 | 0.516 | 0.516 | 0.516 | 0.516 | |
Aw | 4.5 | 4.5 | 4.5 | 4.5 | 4.5 | 4.5 | |
Qc(τ) | 175.22 | 212.76 | 225.28 | 237.80 | 250.31 | 425.53 |
14:00 | 15:00 | 16:00 | 17:00 | 18:00 |
0.56 | 0.72 | 0.83 | 0.77 | 0.53 |
539 | 539 | 539 | 539 | 539 |
0.516 | 0.516 | 0.516 | 0.516 | 0.516 |
4.5 | 4.5 | 4.5 | 4.5 | 4.5 |
700.87 | 901.12 | 1038.79 | 963.70 | 663.33 |
人员散热引起的负荷 | 时间 | 8:00 | 9:00 | 10:00 | 11:00 | 12:00 | 13:00 |
CLQ | 0.04 | 0.51 | 0.61 | 0.67 | 0.72 | 0.76 | |
qs | 60.5 | 60.5 | 60.5 | 60.5 | 60.5 | 60.5 | |
n | 1 | 1 | 1 | 1 | 1 | 1 | |
φ | 1.0 | 1.0 | 1.0 | 1.0 | 1.0 | 1.0 | |
Qc(τ) | 2.42 | 30.855 | 36.905 | 40.535 | 43.56 | 45.98 | |
ql | 73.3 | 73.3 | 73.3 | 73.3 | 73.3 | 73.3 | |
Qc | 73.3 | 73.3 | 73.3 | 73.3 | 73.3 | 73.3 | |
合计 | 75.72 | 104.155 | 110.205 | 113.835 | 116.86 | 119.28 |
14:00 | 15:00 | 16:00 | 17:00 | 18:00 |
0.8 | 0.82 | 0.38 | 0.30 | 0.25 |
60.5 | 60.5 | 60.5 | 60.5 | 60.5 |
1 | 1 | 1 | 1 | 1 |
1.0 | 1.0 | 1.0 | 1.0 | 1.0 |
48.4 | 49.61 | 22.99 | 18.15 | 15.125 |
73.3 | 73.3 | 73.3 | 73.3 | 73.3 |
73.3 | 73.3 | 73.3 | 73.3 | 73.3 |
121.7 | 122.91 | 96.29 | 91.45 | 88.425 |
照明散热形成的负荷 | 时间 | 8:00 | 9:00 | 10:00 | 11:00 | 12:00 | 13:00 |
CLQ | 0.60 | 0.82 | 0.83 | 0.84 | 0.84 | 0.84 | |
n1 | 1.2 | 1.2 | 1.2 | 1.2 | 1.2 | 1.2 | |
n2 | 1.0 | 1.0 | 1.0 | 1.0 | 1.0 | 1.0 | |
N | 120 | 120 | 120 | 120 | 120 | 120 | |
Qc(τ) | 72 | 98.4 | 99.6 | 100.8 | 100.8 | 100.8 | |
设备散热形成的冷负荷 | 时间 | 8:00 | 9:00 | 10:00 | 11:00 | 12:00 | 13:00 |
CLQ | 0.60 | 0.82 | 0.83 | 0.84 | 0.84 | 0.84 | |
Qs | 1.2 | 1.2 | 1.2 | 1.2 | 1.2 | 1.2 | |
N | 140 | 140 | 140 | 140 | 140 | 140 | |
Qc(τ) | 100.8 | 137.76 | 139.44 | 141.12 | 141.12 | 141.12 |
14:00 | 15:00 | 16:00 | 17:00 | 18:00 |
0.85 | 0.85 | 0.86 | 0.88 | 0.90 |
1.2 | 1.2 | 1.2 | 1.2 | 1.2 |
1.0 | 1.0 | 1.0 | 1.0 | 1.0 |
120 | 120 | 120 | 120 | 120 |
102 | 102 | 103.2 | 105.6 | 108 |
14:00 | 15:00 | 16:00 | 17:00 | 18:00 |
0.85 | 0.85 | 0.86 | 0.88 | 0.90 |
1.2 | 1.2 | 1.2 | 1.2 | 1.2 |
140 | 140 | 140 | 140 | 140 |
142.8 | 142.8 | 144.48 | 147.84 | 151.2 |

第三章 空调系统方案的确定
3.1.空调系统方案的确定
3.1.1常用空调方式及方案比较
对于中小型或平面形状呈长条形或房间进深较小的办公楼建筑,通常可不分内区和外区。一般用全空气低速单风管系统或用风机盘管加新风系统的空调方式,也可用分散式的水源热泵系统或变制冷剂流量多联机系统。
从经济性和适用性两方面比较,见下表。
表3-1 三种系统方案比较表
全空气系统 | 风机盘管 加新风系统 | 分散式系统 | ||
经 济 性
| 节能与 经济性 | 1.可以根据室外气象参数的变化和室内负荷变化实现全年多工况节能运行调节 2.充分利用室外新风减少与避免冷热抵消,减少冷冻机运行时间 3.对热湿负荷变化不一致或室内参数不同的多房间不经济 4.部分房间停止工作不需空调时整个空调系统仍需运行不经济 | 1.灵活性大、节能效果好,可根据各室负荷情况自我调节 2.盘管冬夏兼用 3.内避容易结垢,降低传热效率 4.无法实现全年多工况节能运行 | 1.不能按室外气象参数的变化和室内负荷变化实现全年多工况节能运行调节,过渡季节不能用全新风 2.灵活性大,各空调房间可根据需要停开 3.加热大多采用热泵方式,经济性好 |
造价 | 除制冷机、锅炉设备外空气处理机和风管造价均较高 | 介于两者之间 | 仅设备造价,单元式空调器价 格合理,故造价较低 | |
使用 寿命 | 使用寿命长 | 使用寿命较长 | 使用寿命较短 | |
适用性 | 1.建筑空间大,可布置风 管 2.室内温湿度、洁净度控 制要求严格的生产车间 3. 空调容量很大的大空 间公共建筑,如商场、影 剧院、体育馆等 | 1.室内温湿度控制要求 一般的场合 2.多层或高层建筑而层 高较低的场合,如旅馆 和一般标准的办公楼 | 1. 空调房间布置分散 2.空调使用时间要求灵活 3. 无法设置集中式冷热源 | |
3.1.2系统选择
建筑以办公室为主,另有几个会议室,考虑到各方面要求及层高的限制,选用了风机盘管加新风系统的空调方式。其中新风与风机盘管送风各自独立送入各空调区,与之相比的新风经过回风箱处理的方案,减少了风机盘管中风机的风量,减少了噪声,又节省了室内的面积、节能、易于选择安装。当风机盘管不运行时新风继续送风,不经过回风口,增加了室内空气品质。
3.1.3新风系统
新风系统的形式采用分楼层水平式,每层设置新风系统,采用风机盘管加新风系统 ,新风处理方式不一样,对室内空气品质有很大的影响。
对于风机盘管加新风系统,空气处理方式有以下几种:
(1)新风处理到室内空气焓值,新风机组不承担室内冷负荷;
(2)新风处理到低于室内空气的含湿量值,新风机组承担部分室内冷负荷;
(3)新风处理到室内空气焓值,不承担室内冷负荷。风机盘管机组处于湿工况运行,卫生条件差。新风与回风混合后进入风机盘管处理,风机盘管的负荷和风量较低,因此机型较大。
通过比较,和该设计的特点,决定选择新风处理到室内状态的等焓线,不承担室内冷负荷方案。在每层设置一新风处理机组,负担新风负荷,新风管道不同风机盘管混合,新风口单独送风。
3.2. 夏季空气处理过程
以101办公室为例进行计算:
冷负荷 Q=1064W 湿负荷:M=0.01kg/h
采用将新风处理到室内空气焓值的方案,空气处理过程如图。

图风机盘管加新风系统焓湿图(夏季)
①计算热湿比

在h-d图上根据室内
℃及相对湿度
确定N点,得
kJ/kg,
g/s, 过N点作383057kJ/kg线与
相对湿度线相交得送风状态点O;
kJ/kg ,总的送风量为:
kg/s=556m3/h
新风量:Gw=30m3/h
小于10%,新风量取55.6m3/h
新风负荷为
=352W
②计算风盘(FP)风量

③确定M状态点


kj/kg
连接L、O两点并延长与iM相交得M点。
④系统的冷量
KW
第四章 空调设备的选择
空调设备的选择主要包括末端设备、空调机组、改善空气品质设备及空调节能与热回收设备,在选择设备之前必须先进行计算,根据具体安装位置选择合适的设备,最后进行校核计算。
4.1.风机盘管的选择
各房间风机盘管选型见下表;
楼层 | 房间 | 房间面积 | 冷负荷 | 湿负荷 | 热湿比 | 送风量 | 风盘型号 | 个数 |
|
| W | kg/h | kg/h |
| m3/h |
| |
1层 | 101[房间] | 11.02 | 1064.9 | 0.01 | 383057.6 | 556 | FP-68 | 1 |
| 102[房间] | 16.34 | 369.8 | 0.01 | 133021.6 | 193 | FP-34 | 1 |
| 103[会议室] | 16.34 | 687.2 | 0.01 | 247194.2 | 359 | FP-51 | 1 |
| 104[办公室] | 16.34 | 687.2 | 0.01 | 247194.2 | 359 | FP-51 | 1 |
| 105[办公室] | 16.34 | 1728.9 | 0.01 | 621906.5 | 902 | FP-102 | 1 |
| 106[办公室] | 74.34 | 2126.4 | 0.35 | 21854.06 | 1109 | FP-136 | 1 |
| 107[办公室] | 76.44 | 2406.2 | 0.35 | 24729.7 | 1255 | FP-136 | 1 |
| 108[办公室] | 80.24 | 2281.5 | 0.46 | 17840.94 | 1190 | FP-136 | 1 |
| 109[办公室] | 12.61 | 556.4 | 0.01 | 200143.9 | 290 | FP-34 | 1 |
| 110[会议室] | 12.61 | 207.1 | 0.01 | 74496.4 | 108 | FP-34 | 1 |
| 111[会议室] | 14.44 | 224.8 | 0.01 | 80863.31 | 117 | FP-34 | 1 |
| 112[办公室] | 14.44 | 224.8 | 0.01 | 80863.31 | 117 | FP-34 | 1 |
| 113[办公室] | 14.44 | 835 | 0.01 | 300359.7 | 436 | FP-51 | 1 |
| 114[大堂] | 423.19 | 12175.2 | 2.31 | 18959.17 | 6352 | FP-136 | 6 |
| 115[房间] | 104.04 | 2926.3 | 0.57 | 18467.12 | 1527 | FP-85 | 2 |
| 116[房间] | 257.24 | 7041.2 | 1.38 | 18353.66 | 3674 | FP-136 | 3 |
| 117[办公室] | 49.14 | 1534.1 | 0.23 | 23992.81 | 800 | FP-68 | 2 |
| 118[办公室] | 16.34 | 890.9 | 0.01 | 320467.6 | 465 | FP-51 | 1 |
| 119[办公室] | 16.34 | 361.6 | 0.01 | 130071.9 | 189 | FP-34 | 1 |
3层 | 301[房间] | 33.54 | 1379.6 | 0.18 | 27569.94 | 720 | FP-85 | 1 |
| 303[董事长室] | 62.64 | 2297.9 | 0.36 | 22960.63 | 1199 | FP-85 | 2 |
| 304[房间] | 12.04 | 822.7 | 0.09 | 32881.69 | 429 | FP-34 | 1 |
| 305[房间] | 14.19 | 355.6 | 0.09 | 14212.63 | 186 | FP-34 | 1 |
| 306[办公室] | 17.1 | 504.1 | 0.09 | 20147.88 | 263 | FP-34 | 1 |
| 307[文秘] | 23.94 | 630.6 | 0.09 | 25203.84 | 329 | FP-34 | 1 |
| 308[房间] | 12.04 | 822.7 | 0.09 | 32881.69 | 429 | FP-51 | 1 |
| 309[房间] | 14.19 | 355.6 | 0.09 | 14212.63 | 186 | FP-34 | 1 |
| 310[综合办公室] | 80.24 | 2598.6 | 0.55 | 16995.42 | 1356 | FP-68 | 3 |
| 311[房间] | 33.68 | 1105.5 | 0.18 | 22092.33 | 577 | FP-68 | 1 |
| 312[办公室] | 44.84 | 1399.6 | 0.27 | 18646.42 | 730 | FP-85 | 1 |
| 313[办公室] | 56.64 | 1830.3 | 0.36 | 18288.37 | 955 | FP-68 | 2 |
| 314[文秘] | 14.4 | 732.2 | 0.09 | 29264.59 | 382 | FP-51 | 1 |
| 315[接待室] | 144.84 | 4450.7 | 0.91 | 17593.09 | 2322 | FP-65 | 5 |
| 316[部门办公室] | 139.24 | 4472.9 | 0.91 | 17680.84 | 2334 | FP-65 | 5 |
| 317[副总办] | 29.28 | 1565.6 | 0.18 | 31286.97 | 817 | FP-85 | 1 |
| 320[办公] | 15.84 | 469.7 | 0.09 | 18772.98 | 245 | FP-34 | 1 |
| 321[办公室] | 8.68 | 254 | 0.09 | 10151.88 | 133 | FP-34 | 1 |
| 322[房间] | 17.98 | 602.8 | 0.09 | 24092.73 | 315 | FP-34 | 1 |
| 323[接待] | 19.88 | 555.9 | 0.09 | 22218.23 | 290 | FP-34 | 1 |
| 324[接待] | 22.04 | 694.9 | 0.09 | 27773.78 | 363 | FP-34 | 1 |
| 325[休息室] | 22.79 | 609.8 | 0.09 | 24372.5 | 318 | FP-34 | 1 |
| 326[休息室] | 22.78 | 746.7 | 0.09 | 29844.12 | 390 | FP-34 | 1 |
| 334[资料室] | 16.34 | 597.1 | 0.09 | 23864.91 | 312 | FP-34 | 1 |
| 335[会议室] | 16.34 | 490.8 | 0.09 | 19616.31 | 256 | FP-34 | 1 |
| 336[会议室] | 62.63 | 2753 | 0.36 | 27507.99 | 1436 | FP-85 | 2 |
| 337[休息处] | 57.24 | 1935.2 | 0.36 | 19336.53 | 1010 | FP-85 | 2 |
| 338[会议室] | 24.94 | 850 | 0.18 | 16986.41 | 443 | FP-51 | 1 |
| 339[资料室] | 11.78 | 520.5 | 0.09 | 20803.36 | 272 | FP-34 | 1 |
| 340[资料室] | 11.78 | 442.6 | 0.09 | 17689.85 | 231 | FP-34 | 1 |
4层 | 401[办公室] | 16.34 | 1869.3 | 0.09 | 74712.23 | 975 | FP-102 | 1 |
| 402[办公室] | 16.34 | 1318.6 | 0.09 | 52701.84 | 688 | FP-85 | 1 |
| 403[办公室] | 16.34 | 629.2 | 0.09 | 25147.88 | 328 | FP-34 | 1 |
| 404[办公室] | 16.34 | 1433.5 | 0.09 | 57294.16 | 748 | FP-85 | 1 |
| 405[办公室] | 24.94 | 2597.8 | 0.18 | 51914.47 | 1355 | FP-136 | 1 |
| 406[综合办公室] | 116.48 | 4235.3 | 0.73 | 20869.72 | 2210 | FP-68 | 4 |
| 407[房间] | 156.94 | 6371.2 | 1 | 22917.99 | 3324 | FP-68 | 5 |
| 408[办公室] | 14.44 | 360.9 | 0.09 | 14424.46 | 188 | FP-34 | 1 |
| 409[办公室] | 14.44 | 360.9 | 0.09 | 14424.46 | 188 | FP-34 | 1 |
| 410[办公室] | 14.44 | 991.7 | 0.09 | 39636.29 | 517 | FP-51 | 1 |
| 411[房间] | 127.44 | 5638.9 | 0.82 | 24736.36 | 2942 | FP-85 | 4 |
| 412[实验室] | 18.24 | 1063.1 | 0.09 | 42490.01 | 555 | FP-51 | 1 |
| 413[实验室] | 18.24 | 1064.1 | 0.09 | 42529.98 | 555 | FP-51 | 1 |
| 414[房间] | 78.84 | 2305 | 0.45 | 18425.26 | 1203 | FP-68 | 2 |
| 415[实验室] | 18.24 | 1063.6 | 0.09 | 42509.99 | 555 | FP-51 | 1 |
| 416[房间] | 127.44 | 5420.4 | 0.82 | 23777.86 | 2828 | FP-85 | 4 |
| 417[实验室] | 15.84 | 766 | 0.09 | 30615.51 | 400 | FP-51 | 1 |
| 418[办公室] | 14.44 | 360.9 | 0.09 | 14424.46 | 188 | FP-34 | 1 |
| 419[办公室] | 14.44 | 360.9 | 0.09 | 14424.46 | 188 | FP-34 | 1 |
| 420[办公室] | 14.44 | 991.7 | 0.09 | 39636.29 | 517 | FP-51 | 1 |
| 421[房间] | 80.23 | 3270.8 | 0.55 | 21391.76 | 1707 | FP-102 | 2 |
| 422[综合办公室] | 84.24 | 3520.3 | 0.55 | 23023.54 | 1837 | FP-102 | 2 |
| 423[房间] | 11.34 | 304.1 | 0.09 | 12154.28 | 159 | FP-34 | 1 |
| 424[房间] | 36.54 | 1051.8 | 0.18 | 21019.18 | 549 | FP-68 | 1 |
| 425[房间] | 36.53 | 1885.9 | 0.18 | 37687.85 | 984 | FP-102 | 1 |
| 426[办公室] | 16.34 | 1412.5 | 0.09 | 56454.84 | 737 | FP-55 | 1 |
| 427[办公室] | 16.34 | 861.8 | 0.09 | 34444.44 | 450 | FP-51 | 1 |
| 428[办公室] | 16.34 | 845.7 | 0.09 | 33800.96 | 441 | FP-51 | 1 |
| 429[办公室] | 16.34 | 861.8 | 0.09 | 34444.44 | 450 | FP-51 | 1 |
| 430[办公室] | 24.94 | 1987.3 | 0.18 | 39714.23 | 1037 | FP-102 | 1 |
5层 | 501[多功能厅] | 417.04 | 36652.4 | 10.79 | 12219.01 | 19123 | FP-136 | 14 |
4.2风机盘管的布置
风机盘管的布置与空调房间的使用性质和建筑形式有关,本建筑除了办公室套间厕所及宿舍采用侧送风口送风外,其它房间因没有二级吊顶,空间比较大,一律采用散流器送风,本建筑的气流分布形式均为上送上回的形式。
风机盘管机组空调系统的新风供给方式采用由独立新风系统供给室内新风,经处理过的新风从进风总风管通过支管送入各个房间,这样可以做到节能。单独设置的新风机组,可随室外空气状态参数的变化进行调节,保证了室内空气参数的稳定,房间新风全年都可以得到保证。
风机盘管机组的供水系统采用水平异程式系统,可以节省管材,方便布置,此外过渡季节应尽量利用室外新风,从而达到节能的目的。
4.3.新风机组的选择计算
对于风机盘管加新风系统,每层都应设置一个新风机组,本次新风机组的选择主要根据风量及新风负荷。
以一层新风机组为例,此机组供应新风,所需新风送风量为M=3450m3/h,所以房间的新风负荷为Q= ρM(ho-hR)=40kW 。另外新风机组余压需克服最不利管路的阻力,使新风送到最不利点。
选择的新风机组管如下表所示:
表4-2 新风机组的技术参数
型号 | 额定风量m³/h | 余压Pa | 冷量Kw | 功率Kw | 阻力KPa | 噪声dB(A) | 重量Kg | 备注 |
YAH-03 | 3500 | 290 | 43.18 | 1.8 | 28 | ≤62 | 360 | 一层 |
YAH-03 | 3500 | 290 | 43.18 | 1.8 | 28 | ≤62 | 360 | 二层 |
YAH-03 | 4000 | 320 | 53 | 2.1 | 29 | ≤62 | 420 | 三层 |
YAH-04 | 4000 | 320 | 53 | 2.1 | 29 | ≤62 | 420 | 四层 |
第五章 气流组织计算
5.1气流组织的形式
室内气流速度、温湿度是人体热舒适的要素,因此必须对房间进行合理的空气处理方式和合理的气流组织方式。气流分布设计的目的是风口布置,选择风口规格,校核室内气流速度、温度等等。因此,一个合理的空气处理方式和合理的气流组织对于室内的空气质量有着直接和主要的影响,送风口以安装的位置分,有侧送风口、顶送风口、地面风口;按照送出气流的流动状况有扩散型风口、轴向型风口和孔板送风。扩散型风口具有较大的诱导室内空气的作用,送风温度衰减快,但射程较短;轴向型风口诱导室内气流的作用小,空气温度、速度的衰减慢,射程远;孔板送风口是在平板上满布小孔的送风口,速度分布均匀,衰减快。
本设计送风选择四面吹方形散流器,方形散流器具有良好的散流特性和美观的外形,广泛应用于空调系统中作送风口,其结构形式有多样,有1--4个不同方向散流的形式 ,能满足所有类型天花板的要求,散流器外框和内芯可分离,拆装容易,便于调节风量根据使用要求。本散流器气流属贴附(平送)型。广泛适用于医院、剧场、教室、音乐厅、图书馆、游艺厅、剧场休息厅、一般办公室、商店、旅馆、酒楼及体育馆等场所。
5.2气流组织的计算
散流器射流的速度:
(5-1)
式中
K——系数,多层锥面散流器为1.4,盘式锥面散流器取1.1;
V 0——散流器的出口风速,m/s;
A——散流器的有效流通面积,m2;
X0——平送射流原点与散流器中心的距离,多层锥面散流器取0.07m。
室内平均风速:
(5-2)
式中 
L——散流器服务区边长,m;
H——房间净高,m;
r——射流射程与变长L之比,因此rL即为射程,射程为散流器中心到风速为0.5m/s处的距离,通常把射程控制在到房间(区域)边缘之75%。
散流器颈部风速:
(5-3)
式中
M——散流器送风量,m2/s;
A0——散流器颈部面积,m2。
以送风口为例,选具有代表性的房间进行计算。
以101室风机盘管为例进行计算:
1、布置散流器[9]
顶棚散流器下送,选用方形散流器2个,每个散流器承担2.3m×2m的送风区域。
2、初选散流器
按《暖通空调常用数据手册》[10],在要求较高的房间应取较低的送风速度,一般的取值范围为2~5m/s。
按3m/s选择风口,选择颈部尺寸为300mm×300mm方形散流器。颈部风速为3m/s方形散流器实际出口面积约为颈部面积的90%,即A=0.081。则散流器出口风速v=3/0.9=3.3m/s。
3、计算射程(射流末端速度0.5m/s)
x=1.4×5×0.012961/2/0.5﹣0.07=1.52m
4、计算室内平均风速
v=0.381×1.52/(2.3×2.3/4 3.6×3.6)1/2 =0.15m/s
如果送冷风,则室内平均风速为0.18 m/s,送热风室内平均风速为0.12m/s,所选散流器符合要求,送风口一般按3~4m/s的风速,校核满足气流组织要求即可,送风口,新风口为方形散流器。其它风口选型方法相同,风口规格见下表
表5-1 风口规格表
房间 | 总风量(m3/h) | 总风量(m3/s) | 散流器个数 | 散流器尺寸d(mm) | 散流器颈部面积(m2) | 颈部风速(m/s) | 实际面积(m2) | 实际风速(m/s) |
101[房间] | 556 | 0.08 | 2 | 200*200 | 0.04 | 0.97 | 0.036 | 1.07 |
102[房间] | 193 | 0.03 | 2 | 200*200 | 0.04 | 0.34 | 0.036 | 0.37 |
103[会议室] | 359 | 0.05 | 2 | 200*200 | 0.04 | 0.62 | 0.036 | 0.69 |
104[办公室] | 359 | 0.05 | 2 | 200*200 | 0.04 | 0.62 | 0.036 | 0.69 |
105[办公室] | 902 | 0.13 | 2 | 200*200 | 0.04 | 1.57 | 0.036 | 1.74 |
106[办公室] | 1109 | 0.15 | 2 | 200*200 | 0.04 | 1.93 | 0.036 | 2.14 |
107[办公室] | 1255 | 0.17 | 2 | 200*200 | 0.04 | 2.18 | 0.036 | 2.42 |
108[办公室] | 1190 | 0.17 | 2 | 200*200 | 0.04 | 2.07 | 0.036 | 2.30 |
109[办公室] | 290 | 0.04 | 2 | 200*200 | 0.04 | 0.50 | 0.036 | 0.56 |
110[会议室] | 108 | 0.02 | 2 | 200*200 | 0.04 | 0.19 | 0.036 | 0.21 |
111[会议室] | 117 | 0.02 | 2 | 200*200 | 0.04 | 0.20 | 0.036 | 0.23 |
112[办公室] | 117 | 0.02 | 2 | 200*200 | 0.04 | 0.20 | 0.036 | 0.23 |
113[办公室] | 436 | 0.06 | 2 | 200*200 | 0.04 | 0.76 | 0.036 | 0.84 |
114[大堂] | 6352 | 0.15 | 12 | 200*200 | 0.04 | 0.31 | 0.036 | 0.34 |
115[房间] | 1527 | 0.11 | 4 | 200*200 | 0.04 | 0.66 | 0.036 | 0.74 |
116[房间] | 3674 | 0.17 | 6 | 200*200 | 0.04 | 0.71 | 0.036 | 0.79 |
117[办公室] | 800 | 0.06 | 4 | 200*200 | 0.04 | 0.35 | 0.036 | 0.39 |
118[办公室] | 465 | 0.06 | 2 | 200*200 | 0.04 | 0.81 | 0.036 | 0.90 |
119[办公室] | 189 | 0.03 | 2 | 200*200 | 0.04 | 0.33 | 0.036 | 0.36 |
301[房间] | 720 | 0.10 | 2 | 200*200 | 0.04 | 1.25 | 0.036 | 1.39 |
303[董事长室] | 1199 | 0.08 | 4 | 200*200 | 0.04 | 0.52 | 0.036 | 0.58 |
304[房间] | 429 | 0.06 | 2 | 200*200 | 0.04 | 0.74 | 0.036 | 0.83 |
305[房间] | 186 | 0.03 | 2 | 200*200 | 0.04 | 0.32 | 0.036 | 0.36 |
306[办公室] | 263 | 0.04 | 2 | 200*200 | 0.04 | 0.46 | 0.036 | 0.51 |
307[文秘] | 329 | 0.05 | 2 | 200*200 | 0.04 | 0.57 | 0.036 | 0.63 |
308[房间] | 429 | 0.06 | 2 | 200*200 | 0.04 | 0.74 | 0.036 | 0.83 |
309[房间] | 186 | 0.03 | 2 | 200*200 | 0.04 | 0.32 | 0.036 | 0.36 |
310[综合办公室] | 1356 | 0.06 | 6 | 200*200 | 0.04 | 0.26 | 0.036 | 0.29 |
311[房间] | 577 | 0.08 | 2 | 200*200 | 0.04 | 1.00 | 0.036 | 1.11 |
312[办公室] | 730 | 0.10 | 2 | 200*200 | 0.04 | 1.27 | 0.036 | 1.41 |
313[办公室] | 955 | 0.07 | 4 | 200*200 | 0.04 | 0.41 | 0.036 | 0.46 |
314[文秘] | 382 | 0.05 | 2 | 200*200 | 0.04 | 0.66 | 0.036 | 0.74 |
315[接待室] | 2322 | 0.06 | 10 | 200*200 | 0.04 | 0.16 | 0.036 | 0.18 |
316[部门办公室] | 2334 | 0.06 | 10 | 200*200 | 0.04 | 0.16 | 0.036 | 0.18 |
317[副总办] | 817 | 0.11 | 2 | 200*200 | 0.04 | 1.42 | 0.036 | 1.58 |
320[办公] | 245 | 0.03 | 2 | 200*200 | 0.04 | 0.43 | 0.036 | 0.47 |
321[办公室] | 133 | 0.02 | 2 | 200*200 | 0.04 | 0.23 | 0.036 | 0.26 |
322[房间] | 315 | 0.04 | 2 | 200*200 | 0.04 | 0.55 | 0.036 | 0.61 |
323[接待] | 290 | 0.04 | 2 | 200*200 | 0.04 | 0.50 | 0.036 | 0.56 |
324[接待] | 363 | 0.05 | 2 | 200*200 | 0.04 | 0.63 | 0.036 | 0.70 |
325[休息室] | 318 | 0.04 | 2 | 200*200 | 0.04 | 0.55 | 0.036 | 0.61 |
326[休息室] | 390 | 0.05 | 2 | 200*200 | 0.04 | 0.68 | 0.036 | 0.75 |
334[资料室] | 312 | 0.04 | 2 | 200*200 | 0.04 | 0.54 | 0.036 | 0.60 |
335[会议室] | 256 | 0.04 | 2 | 200*200 | 0.04 | 0.44 | 0.036 | 0.49 |
336[会议室] | 1436 | 0.10 | 4 | 200*200 | 0.04 | 0.62 | 0.036 | 0.69 |
337[休息处] | 1010 | 0.07 | 4 | 200*200 | 0.04 | 0.44 | 0.036 | 0.49 |
338[会议室] | 443 | 0.06 | 2 | 200*200 | 0.04 | 0.77 | 0.036 | 0.85 |
339[资料室] | 272 | 0.04 | 2 | 200*200 | 0.04 | 0.47 | 0.036 | 0.52 |
340[资料室] | 231 | 0.03 | 2 | 200*200 | 0.04 | 0.40 | 0.036 | 0.45 |
401[办公室] | 975 | 0.14 | 2 | 200*200 | 0.04 | 1.69 | 0.036 | 1.88 |
402[办公室] | 688 | 0.10 | 2 | 200*200 | 0.04 | 1.19 | 0.036 | 1.33 |
403[办公室] | 328 | 0.05 | 2 | 200*200 | 0.04 | 0.57 | 0.036 | 0.63 |
404[办公室] | 748 | 0.10 | 2 | 200*200 | 0.04 | 1.30 | 0.036 | 1.44 |
405[办公室] | 1355 | 0.19 | 2 | 200*200 | 0.04 | 2.35 | 0.036 | 2.61 |
406[综合办公室] | 2210 | 0.08 | 8 | 200*200 | 0.04 | 0.24 | 0.036 | 0.27 |
407[房间] | 3324 | 0.09 | 10 | 200*200 | 0.04 | 0.23 | 0.036 | 0.26 |
408[办公室] | 188 | 0.03 | 2 | 200*200 | 0.04 | 0.33 | 0.036 | 0.36 |
409[办公室] | 188 | 0.03 | 2 | 200*200 | 0.04 | 0.33 | 0.036 | 0.36 |
410[办公室] | 517 | 0.07 | 2 | 200*200 | 0.04 | 0.90 | 0.036 | 1.00 |
411[房间] | 2942 | 0.10 | 8 | 200*200 | 0.04 | 0.32 | 0.036 | 0.35 |
412[实验室] | 555 | 0.08 | 2 | 200*200 | 0.04 | 0.96 | 0.036 | 1.07 |
413[实验室] | 555 | 0.08 | 2 | 200*200 | 0.04 | 0.96 | 0.036 | 1.07 |
414[房间] | 1203 | 0.08 | 4 | 200*200 | 0.04 | 0.52 | 0.036 | 0.58 |
415[实验室] | 555 | 0.08 | 2 | 200*200 | 0.04 | 0.96 | 0.036 | 1.07 |
416[房间] | 2828 | 0.10 | 8 | 200*200 | 0.04 | 0.31 | 0.036 | 0.34 |
417[实验室] | 400 | 0.06 | 2 | 200*200 | 0.04 | 0.69 | 0.036 | 0.77 |
418[办公室] | 188 | 0.03 | 2 | 200*200 | 0.04 | 0.33 | 0.036 | 0.36 |
419[办公室] | 188 | 0.03 | 2 | 200*200 | 0.04 | 0.33 | 0.036 | 0.36 |
420[办公室] | 517 | 0.07 | 2 | 200*200 | 0.04 | 0.90 | 0.036 | 1.00 |
421[房间] | 1707 | 0.12 | 4 | 200*200 | 0.04 | 0.74 | 0.036 | 0.82 |
422[综合办公室] | 1837 | 0.13 | 4 | 200*200 | 0.04 | 0.80 | 0.036 | 0.89 |
423[房间] | 159 | 0.02 | 2 | 200*200 | 0.04 | 0.28 | 0.036 | 0.31 |
424[房间] | 549 | 0.08 | 2 | 200*200 | 0.04 | 0.95 | 0.036 | 1.06 |
425[房间] | 984 | 0.14 | 2 | 200*200 | 0.04 | 1.71 | 0.036 | 1.90 |
426[办公室] | 737 | 0.10 | 2 | 200*200 | 0.04 | 1.28 | 0.036 | 1.42 |
427[办公室] | 450 | 0.06 | 2 | 200*200 | 0.04 | 0.78 | 0.036 | 0.87 |
501[多功能厅] | 19123 | 0.19 | 28 | 200*200 | 0.04 | 0.17 | 0.036 | 0.19 |
第六章风系统设计
6.1风道布置原则
一般原则:
1.风道截面尽可能平整,合理利用空间,并同建筑结构配合,尽量考虑到美观;
2.风道入口截面面积应等于空调热风出口的面积,不能影响工艺及操作;
3.出风口截面面积越大,压力损失越小,空气流速越低。空气流速越低,产生的噪音就越小;
4.整个风道的通道要求:长度最短,锐度最小,弯曲的数量及截面积的变化也要尽可能的小,便于施工与制作;
5.考虑到运行调节的灵活性。
风管材料的选用:
采用镀锌钢板制作,其优点是不燃烧、易加工、耐久,也较经济。空调风管保温材料采用带铝箔的离心超细玻璃棉板,厚度为40mm(用塑料钉固定在风管上),外缠玻璃布保护层。
- 风管形式的确定:
由于采用定风量系统,而且建筑本身的负荷不是很大,所以系统的送风量也不是很多,所以采用了低速系统,又因为吊顶高度的限制,采用矩形方管的型式,并且矩形风管具有易布置,弯头及三通等部件的尺寸较小,且容易加工的优点,所以在本设计中的所有风管都为矩形方管。在总干管风速还是比较大的。对于普通低速系统,风管的末端就是风口,风速过高引发的再生噪音会通过风管传到风口,进入室内。因此在新风机组出口位置增加一个消声器,减少噪音的传播。
6.2 风管阀门的选择
1. 新、排风口处应按放有(手动)风量调节阀:
(1) 当矩形风管长边宽度<320 mm或为圆形风管时,采用蝶阀;
(2) 当矩形风管长边宽度≥320mm时,选用对开式多叶调节阀;
(3) 对于新风风送风管可以安放在风管支管末端,对于排风风管其末端连接排风口为圆管软管连接,故可以安放于靠近矩形风管和圆形软风管连接处的硬质圆形风管处。
2.新风机组进气口应设有电动风阀和止逆阀:
(1) 电动风阀设于新风机入口前,与新风机联动,作用在于当冬季新风机内盘管温度低于保护温度而导致停机时可以联动闭合风管。
(2) 止逆阀的作用:防止气流倒流。
6.3风系统水力计算
空调系统水力计算的目的是:确定各管段的断面尺寸和系统阻力,保证系统内的风量分配达到要求,最终确定系统通风机的型号和动力消耗。空调水力计算采用假定流速法,即根据风道与风口的经济流速确定其风速值,再由风道或风口应输送的风量得到风道或风口所需尺寸,并计算出系统的阻力。风道与风口的经济流速见表6-1。
表6-3 风道与风口的经济流速(m/s)
管道部位 | 推荐风速(m/s) | 最大风速(m/s) | ||||
住宅 | 公共建筑 | 工厂 | 住宅 | 公共建筑 | 工厂 | |
风机吸入口 | 3.5 | 4 | 5 | 4.5 | 5 | 7 |
风机出口 | 5~8 | 6.5~10 | 8~12 | 8.5 | 7.5~11 | 8.5~14 |
主风道 | 3.5~4.5 | 5~6.5 | 6~9 | 4~6 | 5.5~10 | 6.5~11 |
支风道 | 3 | 3~4.5 | 4~5 | 3.5~5 | 4~6.5 | 5~9 |
送风口 | 1~2 | 1.5~3.5 | 3~4.0 | 2.0~3.0 | 3.0~5.0 | 3~5 |
本工程对风管进行设计计算采用假定流速法。
风管的阻力损失由沿程损失和局部损失两部分组成,计算方法如下:
沿程阻力:在实际中,通常采用平均比摩阻
来计算沿程阻力,
,(
:管段长度),其中
可由速度v和风管尺寸的值查[14]表求出。
局部阻力:
(6-1)
式中:
- 局部阻力系数;
-空气密度,kg/m3;
-风管内空气实际流速,m/s 。

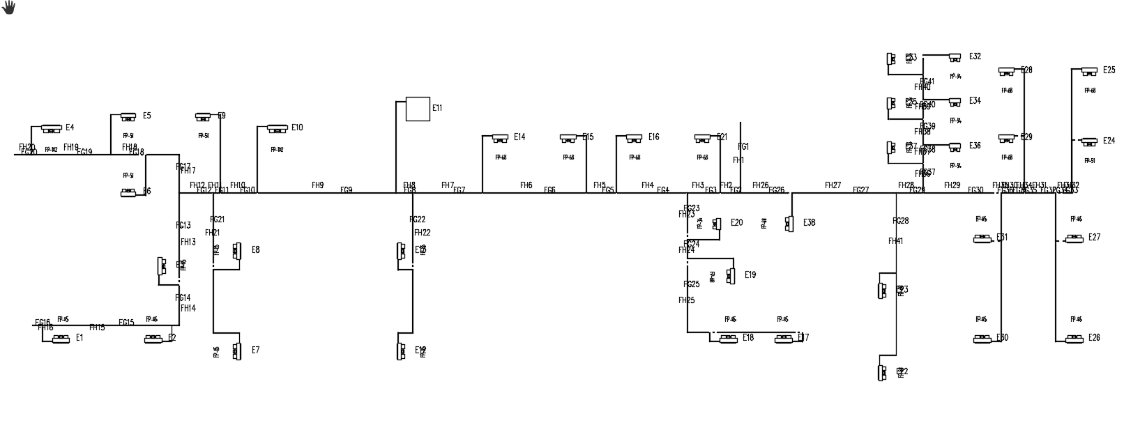
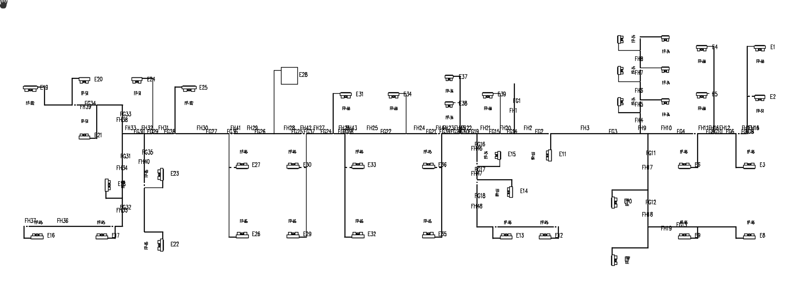
一层风管水力计算表 | |||||||||||
序号 | 风量(m^3/h) | 管宽(mm) | 管高(mm) | 管长(m) | ν(m/s) | R(Pa/m) | △Py(Pa) | ξ | 动压(Pa) | △Pj(Pa) | △Py △Pj(Pa) |
1 | 250 | 200 | 200 | 6.8 | 1.736 | 0.227 | 1.542 | 0.56 | 1.805 | 1.011 | 2.553 |
2 | 500 | 320 | 200 | 9.3 | 2.17 | 0.26 | 2.419 | 0.28 | 2.821 | 0.79 | 3.209 |
3 | 1000 | 400 | 200 | 1.55 | 3.472 | 0.545 | 0.844 | 0.28 | 7.221 | 2.022 | 2.866 |
4 | 1250 | 400 | 200 | 3.1 | 4.34 | 0.812 | 2.517 | 0.28 | 11.282 | 3.159 | 5.676 |
5 | 1500 | 400 | 200 | 6.6 | 5.208 | 1.126 | 7.434 | 0.28 | 16.246 | 4.549 | 11.983 |
6 | 1750 | 400 | 200 | 1.37 | 6.076 | 1.487 | 2.037 | 0.28 | 22.113 | 6.192 | 8.229 |
7 | 1900 | 500 | 250 | 6.8 | 4.222 | 0.589 | 4.008 | 0.28 | 10.677 | 2.989 | 6.997 |
8 | 2000 | 500 | 250 | 2 | 4.444 | 0.646 | 1.293 | 0.28 | 11.83 | 3.312 | 4.605 |
9 | 250 | 200 | 200 | 11 | 1.736 | 0.227 | 2.494 | 0.28 | 1.805 | 0.505 | 2.999 |
10 | 500 | 320 | 200 | 2.4 | 2.17 | 0.26 | 0.624 | 0.28 | 2.821 | 0.79 | 1.414 |
11 | 750 | 320 | 200 | 7.04 | 3.255 | 0.535 | 3.767 | 0.28 | 6.346 | 1.777 | 5.544 |
12 | 1000 | 400 | 200 | 2.5 | 3.472 | 0.545 | 1.361 | 0.28 | 7.221 | 2.022 | 3.383 |
13 | 1250 | 400 | 200 | 5.65 | 4.34 | 0.812 | 4.587 | 0.28 | 11.282 | 3.159 | 7.746 |
14 | 1500 | 500 | 250 | 13.4 | 3.333 | 0.386 | 5.168 | 0.76 | 6.654 | 5.057 | 10.225 |

二层风管水力计算表 | |||||||||||
序号 | 风量(m^3/h) | 管宽(mm) | 管高(mm) | 管长(m) | ν(m/s) | R(Pa/m) | △Py(Pa) | ξ | 动压(Pa) | △Pj(Pa) | △Py △Pj(Pa) |
1 | 100 | 200 | 3 | 9.1 | 46.296 | 6450.867 | 58702.889 | 0.56 | 1283.654 | 718.846 | 59421.735 |
2 | 600 | 320 | 200 | 4.66 | 2.604 | 0.36 | 1.676 | 0.28 | 4.062 | 1.137 | 2.813 |
3 | 700 | 320 | 200 | 6.9 | 3.038 | 0.473 | 3.265 | 0.28 | 5.528 | 1.548 | 4.813 |
4 | 1150 | 400 | 200 | 1.9 | 3.993 | 0.699 | 1.329 | 0.28 | 9.549 | 2.674 | 4.003 |
5 | 1500 | 400 | 200 | 5.1 | 5.208 | 1.126 | 5.744 | 0.28 | 16.246 | 4.549 | 10.293 |
6 | 4000 | 630 | 250 | 4 | 7.055 | 1.365 | 5.46 | 0.76 | 29.806 | 22.653 | 28.113 |
7 | 400 | 200 | 200 | 10.3 | 2.778 | 0.521 | 5.362 | 0.56 | 4.621 | 2.588 | 7.95 |
8 | 500 | 250 | 200 | 4.5 | 2.778 | 0.457 | 2.058 | 0.28 | 4.621 | 1.294 | 3.352 |
9 | 600 | 320 | 200 | 2.8 | 2.604 | 0.36 | 1.007 | 0.28 | 4.062 | 1.137 | 2.144 |
10 | 700 | 320 | 200 | 2.46 | 3.038 | 0.473 | 1.164 | 0.28 | 5.528 | 1.548 | 2.712 |
11 | 800 | 320 | 200 | 1.98 | 3.472 | 0.6 | 1.189 | 0.28 | 7.221 | 2.022 | 3.211 |
12 | 1000 | 320 | 200 | 2.6 | 4.34 | 0.895 | 2.327 | 0.28 | 11.282 | 3.159 | 5.486 |
13 | 1100 | 320 | 200 | 2 | 4.774 | 1.062 | 2.123 | 0.28 | 13.651 | 3.822 | 5.945 |
14 | 1500 | 400 | 200 | 3.83 | 5.208 | 1.126 | 4.314 | 0.28 | 16.246 | 4.549 | 8.863 |
15 | 1900 | 400 | 200 | 1.7 | 6.597 | 1.724 | 2.931 | 0.28 | 26.066 | 7.299 | 10.23 |
16 | 2000 | 400 | 200 | 1.4 | 6.944 | 1.891 | 2.648 | 0.28 | 28.882 | 8.087 | 10.735 |
17 | 2150 | 400 | 200 | 3.6 | 7.465 | 2.155 | 7.759 | 0.28 | 33.377 | 9.346 | 17.105 |
18 | 2300 | 500 | 200 | 4.1 | 6.389 | 1.497 | 6.138 | 0.28 | 24.446 | 6.845 | 12.983 |
19 | 2400 | 500 | 200 | 4 | 6.667 | 1.617 | 6.466 | 0.28 | 26.618 | 7.453 | 13.919 |
20 | 2500 | 500 | 200 | 6.1 | 6.944 | 1.74 | 10.616 | 0.28 | 28.882 | 8.087 | 18.703 |
小计 | 27900 |
|
| 83.03 |
|
| 58776.465 | 6.64 |
| 818.643 | 59595.108 |

三层风管水力计算表 | |||||||||||
序号 | 风量(m^3/h) | 管宽(mm) | 管高(mm) | 管长(m) | ν(m/s) | R(Pa/m) | △Py(Pa) | ξ | 动压(Pa) | △Pj(Pa) | △Py △Pj(Pa) |
1 | 200 | 200 | 200 | 8.8 | 1.389 | 0.153 | 1.348 | 0.56 | 1.155 | 0.647 | 1.995 |
2 | 600 | 250 | 200 | 5.23 | 3.333 | 0.633 | 3.309 | 0.28 | 6.654 | 1.863 | 5.172 |
3 | 800 | 320 | 200 | 6.8 | 3.472 | 0.6 | 4.083 | 0.28 | 7.221 | 2.022 | 6.105 |
4 | 1200 | 400 | 200 | 4.4 | 4.167 | 0.755 | 3.32 | 0.28 | 10.398 | 2.911 | 6.231 |
5 | 1500 | 400 | 200 | 2.56 | 5.208 | 1.126 | 2.883 | 0.28 | 16.246 | 4.549 | 7.432 |
6 | 4000 | 630 | 250 | 4.1 | 7.055 | 1.365 | 5.597 | 0.76 | 29.806 | 22.653 | 28.25 |
7 | 200 | 200 | 200 | 10.3 | 1.389 | 0.153 | 1.577 | 0.56 | 1.155 | 0.647 | 2.224 |
8 | 400 | 250 | 200 | 4.5 | 2.222 | 0.308 | 1.385 | 0.28 | 2.958 | 0.828 | 2.213 |
9 | 800 | 320 | 200 | 5.3 | 3.472 | 0.6 | 3.182 | 0.28 | 7.221 | 2.022 | 5.204 |
10 | 1000 | 320 | 200 | 4.6 | 4.34 | 0.895 | 4.117 | 0.28 | 11.282 | 3.159 | 7.276 |
11 | 1200 | 400 | 200 | 2.1 | 4.167 | 0.755 | 1.585 | 0.28 | 10.398 | 2.911 | 4.496 |
12 | 1500 | 400 | 200 | 7 | 5.208 | 1.126 | 7.884 | 0.28 | 16.246 | 4.549 | 12.433 |
13 | 1800 | 400 | 200 | 1.8 | 6.25 | 1.564 | 2.815 | 0.28 | 23.395 | 6.55 | 9.365 |
14 | 1900 | 400 | 200 | 1.27 | 6.597 | 1.724 | 2.19 | 0.28 | 26.066 | 7.299 | 9.489 |
15 | 2000 | 400 | 200 | 3.5 | 6.944 | 1.891 | 6.62 | 0.28 | 28.882 | 8.087 | 14.707 |
16 | 2150 | 400 | 200 | 4.16 | 7.465 | 2.155 | 8.966 | 0.28 | 33.377 | 9.346 | 18.312 |
17 | 2200 | 500 | 200 | 4.6 | 6.111 | 1.382 | 6.356 | 0.28 | 22.366 | 6.263 | 12.619 |
18 | 2300 | 500 | 250 | 3.3 | 5.111 | 0.831 | 2.743 | 0.28 | 15.645 | 4.381 | 7.124 |
19 | 2500 | 500 | 250 | 2.28 | 5.556 | 0.966 | 2.202 | 0.28 | 18.485 | 5.176 | 7.378 |
小计 | 28250 |
|
| 86.6 |
|
| 72.162 | 6.36 |
| 95.863 | 168.025 |

四层风管水力计算表 | |||||||||||
序号 | 风量(m^3/h) | 管宽(mm) | 管高(mm) | 管长(m) | ν(m/s) | R(Pa/m) | △Py(Pa) | ξ | 动压(Pa) | △Pj(Pa) | △Py △Pj(Pa) |
1 | 200 | 200 | 200 | 6.5 | 1.389 | 0.153 | 0.995 | 0.56 | 1.155 | 0.647 | 1.642 |
2 | 600 | 320 | 200 | 10.8 | 2.604 | 0.36 | 3.884 | 0.28 | 4.062 | 1.137 | 5.021 |
3 | 1200 | 400 | 200 | 9.7 | 4.167 | 0.755 | 7.32 | 0.28 | 10.398 | 2.911 | 10.231 |
4 | 1600 | 400 | 200 | 2.56 | 5.556 | 1.265 | 3.238 | 0.28 | 18.485 | 5.176 | 8.414 |
5 | 4000 | 630 | 250 | 3.7 | 7.055 | 1.365 | 5.051 | 0.76 | 29.806 | 22.653 | 27.704 |
6 | 300 | 200 | 200 | 10.3 | 2.083 | 0.313 | 3.222 | 0.56 | 2.599 | 1.456 | 4.678 |
7 | 500 | 250 | 200 | 4.5 | 2.778 | 0.457 | 2.058 | 0.28 | 4.621 | 1.294 | 3.352 |
8 | 800 | 320 | 200 | 4.6 | 3.472 | 0.6 | 2.762 | 0.28 | 7.221 | 2.022 | 4.784 |
9 | 1000 | 320 | 200 | 2.6 | 4.34 | 0.895 | 2.327 | 0.28 | 11.282 | 3.159 | 5.486 |
10 | 1300 | 400 | 200 | 8.9 | 4.514 | 0.871 | 7.753 | 0.28 | 12.203 | 3.417 | 11.17 |
11 | 1600 | 400 | 200 | 2.5 | 5.556 | 1.265 | 3.162 | 0.28 | 18.485 | 5.176 | 8.338 |
12 | 1700 | 400 | 200 | 3.6 | 5.903 | 1.411 | 5.079 | 0.28 | 20.867 | 5.843 | 10.922 |
13 | 2100 | 500 | 200 | 4.16 | 5.833 | 1.271 | 5.285 | 0.28 | 20.379 | 5.706 | 10.991 |
14 | 2200 | 500 | 200 | 4 | 6.111 | 1.382 | 5.527 | 0.28 | 22.366 | 6.263 | 11.79 |
15 | 2300 | 500 | 200 | 3.8 | 6.389 | 1.497 | 5.689 | 0.28 | 24.446 | 6.845 | 12.534 |
16 | 2500 | 500 | 250 | 2.3 | 5.556 | 0.966 | 2.222 | 0.28 | 18.485 | 5.176 | 7.398 |
17 | 23900 |
|
| 84.52 |
|
| 65.574 | 5.52 |
| 78.881 | 144.455 |
小计 | 23900 |
|
| 84.52 |
|
| 65.574 | 5.52 |
| 78.881 | 144.455 |
第七章 水力计算
7.1 空调水系统
7.1.1 空调水系统的选型比较
- 空调冷、热媒水的供、回水温度,一般宜取下列数值:
夏季:供水7~10℃ 回水12~15℃
冬季:供水55~60℃ 回水45~55℃
- 水系统的管路设计,宜按照下列原则确定其制式:支管环路的压力降较小,主干管路的压降起主导作用者,宜采用同程式;支管环路上末端设备的压降很大,支环路压降起主导作用者,宜采用异程式。全年使用的空调系统,当仅要当按季节变化统一进行冷却或加热工况转换时,宜采用两管制供水方式;当加热和冷却工况交替变换比较频繁,或在同一季节里会有同时要求加热和冷却工况时,宜采用四管制供水方式。一般不宜采用三管制供水方式;
- 输送冷媒水的管道,可采用焊接钢管。有条件时,宜采用镀锌钢管。冷、热媒水的供、回管应采用非燃或难燃保温材料进行保温。保温层外应复以如铝箔之类的隔汽层。冷、热水管穿过墙体或楼板时,其保温层与隔汽层应保持连续,严禁断开;
- 空调水系统管路中可能积聚空气的高点,应装置自动或手动放空气阀;管路中的低点,应设置排水管并装置阀门;
- 冷(热)媒水在管道中的流速,宜按以下数值采用:
一般供水干管 1.5~3.0m/s;室内供水立管 0.9~3.0m/s;
- 排除风机盘管机组和组合式空调机组等冷凝水的冷凝水管,宜顺水流方向保持不小于0.01的坡度,冷凝水管宜采用镀锌钢管或塑料管,并应进行防结露验算,必要时应对冷凝水管保温处理。泄水管的直径宜根据机组冷负荷Q(kW)按下列数值选用:
表7-1 冷凝水管的直径规格
Q≤7kW | DN20 | Q=599~1055kW | DN80 |
Q=7.1~17.6kW | DN25 | Q=1056~1512kW | DN100 |
Q=17.7~100kW | DN32 | Q=1513~12462kW | DN125 |
Q=101~176kW | DN40 | Qgt;12462kW | DN150 |
Q=177~598kW | DN50 |
空调水系统包括冷冻水和冷却水系统两部分,它们有不同类型可供选择。
1.闭式系统 管路系统不与大气相接触,仅在系统最高点设置膨胀水箱,设备
的腐蚀机会少;不需克服静水压力,水泵压力、功率均低,系统简单,与蓄热
水池连接比较复杂
- 开式系统 管路系统与大气相通,与蓄热水池连接比较简单,易腐蚀,输送
能耗大
- 同程式系统 供回水干管中的水流方向相同,经过每一管路的长度相等,水
量分配,调度方便,便于水力平衡,需设回程管,管道长度增加,初投资稍
高
- 异程式系统 供回水干管中的水流方向相反,经过每一管路的长度不相等,不
需设回程管,管道长度较短,管路简单,初投资稍低,水量分配,调度较难,
水力平衡较麻烦
- 两管制系统 供热、供冷合用同一管路系统,管路系统简单,初投资较节省,
无法同时满足供热、供冷的要求
- 三管制系统 分别设置供冷、供热管路与换热器,但冷热回水的管路共用,
能同时满足供冷、供热的要求,管路系统较四管制简单,有冷热混合损失,
投资高于两管制,管路系统布置较简单
- 四管制系统 供冷、供热的供、回水管均分开设置,具有冷、热两套独立的
系统,能灵活实现同时供冷或供热,没有冷、热混合损失,管路系统复杂,
初投资高,占用建筑空间较多 - 单式泵系统 冷、热源侧与负荷侧合用一组循环水泵,系统简单,初投资省,
不能调节水泵流量,难以节省输送能耗,不能适应供水分区压降较悬殊的情况
9.复式泵系统 冷、热源侧与负荷侧分别配备循环水泵,可以实现水泵变流量,能节省输送能耗,能适应供水分区不同压降,系统总压力低,系统较复杂,初投资较高
根据以上各系统的特征及优缺点,结合本宿舍楼情况,本设计空调水系统选择闭式、异程、双管制、单式泵系统,这样布置的优点是过渡季节只供给新风,节约能源。
7.1.2 空调水系统的布置
本系统设计可以采用两管制供应冷冻水,且具有结构简单,初期投资小等特点。同时考虑到节能与管道内清洁等问题,可以采用闭式系统,不与大气相接触,采用定压补水装置取代以往的膨胀水箱定压。定压补水装置包括有两部分:
1. 膨胀罐用于恒定系统内的水压;
2. 补水箱和补水泵用于保证系统内各个末端装置始终充满冷冻水。
由于设计属于多层建筑,因此可以采用异程式水系统,此系统缺点是会导致系统内压力分布不均,因此在每层的回水管末端需要额外加入静态平衡阀以平衡各层楼之间的水压。
本设计采用的是双螺杆冷水机组,机组布置宿舍楼旁的的方案。供水、立管均采用异程式,各层水管也采用异程式,新风机组和风机盘管系统共用供、回水立管,即新风负荷亦算入冷水机组负荷当中。
7.1.3 风机盘管水系统新风水系统水力计算
1.基本公式
本计算方法理论依据付祥钊,肖益民编著的《流体输配管网》。
- 沿程阻力:
单位长度管道摩擦阻力计算式:
(7-1)
式中:
——管道摩擦阻力系数,由莫迪公式求得
——液体密度,kg/m3
——管内流量,kg/h
——管道内经,m
(2)局部阻力:
水流动时遇弯头、三通及其他配件时,因摩擦及涡流耗能而产生的局部阻力为:
(7-2)
式中:
——局部阻力
——局部阻力系数
——液体密度,kg/m3
——流体速度,m/s
- 水管总阻力:
(7-3)
(4)确定管径:
mm (7-4)
式中:
Vj——冷冻水流量,m3/s;
vj——流速,m/s。
在水力计算时,初选管内流速和确定最后的流速时必须满足以下要求:
表7-2 管内水流速推荐值
管径/mm | 15 | 20 | 25 | 32 | 40 | 50 | 65 | 80 |
闭式系统 | 0.4~0.5 | 0.5~0.6 | 0.6~0.7 | 0.7~0.9 | 0.8~1.0 | 0.9~1.2 | 1.1~1.4 | 1.2~1.6 |
开式系统 | 0.3~0.4 | 0.4~0.5 | 0.5~0.6 | 0.6~0.8 | 0.7~0.9 | 0.8~1.0 | 0.9~1.2 | 1.1~1.4 |
管径/mm | 100 | 125 | 150 | 200 | 250 | 300 | 350 | 400 |
闭式系统 | 1.3~1.8 | 1.5~2.0 | 1.6~2.2 | 1.8~2.5 | 1.8~2.5 | 1.9~2.9 | 1.6~2.5 | 1.8~2.6 |
开式系统 | 1.2~1.6 | 1.4~1.8 | 1.5~2.0 | 1.6~2.3 | 1.7~2.4 | 1.7~2.4 | 1.6~2.1 | 1.8~2.3 |
空调系统的水系统的管材有镀锌钢管和无缝钢管,当管径不大于40mm时可以采用镀锌钢管,其规格用公称直径DN表示;当管径大于40mm时采用无缝钢管。
2.标准层的冷冻水供水管路水力计算举例
(1)计算方法:
1)按照房间实际冷负荷来确定冷冻水管的管径进行水利计算。
冷负荷(kW)和流量(L/s)的关系如下:
(7-5)
式中:
G——冷冻水流量,kg/s;
C——冷冻水的比热容,C=4.2kJ/(kg
K);
——冷冻水出口温度,取规定温度12℃;
——冷冻水入口温度,取规定温度7℃;
2)查取《暖通空调常用数据手册》相关资料,对于冷冻水管压力降取100~200Pa/m,对应换算得到的水流量G可以查出对应的水管管径,若查得得水管管径接近压力降上线则取大一号管径,以降低管内的流速,减小因此而产生的局部阻力损失。
(2)计算举例:
以201为例:
其冷量Q=2191.5W,带入式(7-5):
=
查表可知:其支管管径DN=20mm。比摩阻是196,,其他各房间的支干管管径也用此方法算得。

楼层1水力计算表 | ||||||||||
最不利环路阻力(Pa) | 61256 | 最有利环路阻力 | 36437 | 楼层内不平衡率 | 40.50% | |||||
编号 | Q(W) | G(kg/h) | L(m) | D(mm) | υ(m/s) | R(Pa/m) | Σξ | ΔPy(Pa) | ΔPj(Pa) | ΔP(Pa) |
FG1 | 202500 | 34830 | 5.33 | 100 | 1.12 | 148.87 | 1.5 | 793 | 937 | 1730 |
FG2 | 55800 | 9597.6 | 4.55 | 65 | 0.73 | 115.57 | 1.5 | 526 | 404 | 931 |
FG3 | 46800 | 8049.6 | 3.27 | 50 | 1.01 | 295.58 | 0.1 | 967 | 51 | 1018 |
FG4 | 37800 | 6501.6 | 2.51 | 50 | 0.82 | 196.17 | 0.1 | 493 | 34 | 526 |
FG5 | 32400 | 5572.8 | 4.09 | 50 | 0.7 | 146.17 | 0.1 | 598 | 25 | 623 |
FG6 | 27900 | 4798.8 | 1.13 | 50 | 0.6 | 110.04 | 0.1 | 124 | 18 | 142 |
FG7 | 18900 | 3250.8 | 2.12 | 40 | 0.68 | 194.35 | 0.1 | 413 | 23 | 436 |
FG8 | 14400 | 2476.8 | 1.15 | 32 | 0.72 | 260.16 | 0.1 | 298 | 26 | 323 |
FG9 | 5400 | 928.8 | 2.38 | 25 | 0.42 | 127.55 | 1.6 | 304 | 140 | 445 |
FG10 | 9000 | 1548 | 3.74 | 32 | 0.45 | 107.16 | 3 | 400 | 300 | 700 |
FG11 | 9000 | 1548 | 3.74 | 32 | 0.45 | 107.16 | 3 | 400 | 300 | 700 |
FG12 | 9000 | 1548 | 3.74 | 32 | 0.45 | 107.16 | 3 | 400 | 300 | 700 |
FG13 | 9000 | 1548 | 3.74 | 32 | 0.45 | 107.16 | 3 | 400 | 300 | 700 |
FG14 | 146700 | 25232.4 | 3.1 | 100 | 0.81 | 80.07 | 1.5 | 248 | 492 | 739 |
FG15 | 139500 | 23994 | 4 | 80 | 1.29 | 274.76 | 0.1 | 1099 | 84 | 1183 |
FG16 | 132300 | 22755.6 | 0.43 | 80 | 1.23 | 247.95 | 0.1 | 107 | 75 | 182 |
FG17 | 125100 | 21517.2 | 5.57 | 80 | 1.16 | 222.51 | 0.1 | 1239 | 67 | 1307 |
FG18 | 117900 | 20278.8 | 0.43 | 80 | 1.09 | 198.43 | 0.1 | 85 | 60 | 145 |
FG19 | 110700 | 19040.4 | 1.37 | 80 | 1.03 | 175.72 | 0.1 | 241 | 53 | 294 |
FG20 | 66600 | 11455.2 | 2.63 | 65 | 0.88 | 162.12 | 0.1 | 426 | 38 | 464 |
FG21 | 59400 | 10216.8 | 6.64 | 65 | 0.78 | 130.23 | 0.1 | 864 | 31 | 895 |
FG22 | 51300 | 8823.6 | 1.71 | 65 | 0.68 | 98.47 | 0.1 | 168 | 23 | 191 |
FG23 | 45900 | 7894.8 | 2.5 | 50 | 0.99 | 284.74 | 0.1 | 712 | 49 | 761 |
FG24 | 36900 | 6346.8 | 1.71 | 50 | 0.8 | 187.34 | 0.1 | 320 | 32 | 352 |
FG25 | 29700 | 5108.4 | 5.43 | 50 | 0.64 | 123.89 | 0.1 | 673 | 21 | 693 |
FG26 | 9000 | 1548 | 5.09 | 32 | 0.45 | 107.16 | 1.5 | 545 | 150 | 695 |
FG27 | 20700 | 3560.4 | 2.04 | 40 | 0.75 | 231.1 | 0.1 | 472 | 28 | 500 |
FG28 | 13500 | 2322 | 1.97 | 32 | 0.67 | 230.12 | 0.1 | 453 | 22 | 475 |
FG29 | 8100 | 1393.2 | 4.31 | 25 | 0.63 | 273.23 | 1.5 | 1178 | 296 | 1475 |
FG30 | 5400 | 928.8 | 4 | 25 | 0.42 | 127.55 | 0.1 | 510 | 9 | 519 |
FG31 | 5400 | 928.8 | 1.69 | 25 | 0.42 | 127.55 | 1.5 | 215 | 132 | 347 |
FG32 | 9000 | 1548 | 5.09 | 32 | 0.45 | 107.16 | 1.5 | 545 | 150 | 695 |
FG33 | 5400 | 928.8 | 1.99 | 25 | 0.42 | 127.55 | 1.5 | 253 | 132 | 385 |
FG34 | 8100 | 1393.2 | 4.31 | 25 | 0.63 | 273.23 | 1.5 | 1178 | 296 | 1475 |
FG35 | 5400 | 928.8 | 4 | 25 | 0.42 | 127.55 | 0.1 | 510 | 9 | 519 |
FH1 | 202500 | 34830 | 5.03 | 100 | 1.12 | 148.87 | 0 | 749 | 0 | 749 |
FH2 | 55800 | 9597.6 | 4.55 | 65 | 0.73 | 115.57 | 3 | 526 | 809 | 1335 |
FH3 | 46800 | 8049.6 | 3.87 | 50 | 1.01 | 295.58 | 0.1 | 1144 | 51 | 1195 |
FH4 | 37800 | 6501.6 | 1.91 | 50 | 0.82 | 196.17 | 0.1 | 375 | 34 | 409 |
FH5 | 32400 | 5572.8 | 4.09 | 50 | 0.7 | 146.17 | 0.1 | 598 | 25 | 623 |
FH6 | 27900 | 4798.8 | 1.13 | 50 | 0.6 | 110.04 | 0.1 | 124 | 18 | 142 |
FH7 | 18900 | 3250.8 | 2.12 | 40 | 0.68 | 194.35 | 0.1 | 413 | 23 | 436 |
FH8 | 14400 | 2476.8 | 1.75 | 32 | 0.72 | 260.16 | 0.1 | 454 | 26 | 480 |
FH9 | 5400 | 928.8 | 1.78 | 25 | 0.42 | 127.55 | 1.6 | 228 | 140 | 368 |
FH10 | 9000 | 1548 | 4 | 32 | 0.45 | 107.16 | 3 | 429 | 300 | 728 |
FH11 | 9000 | 1548 | 4 | 32 | 0.45 | 107.16 | 3 | 429 | 300 | 728 |
FH12 | 9000 | 1548 | 4 | 32 | 0.45 | 107.16 | 3 | 429 | 300 | 728 |
FH13 | 9000 | 1548 | 4 | 32 | 0.45 | 107.16 | 3 | 429 | 300 | 728 |
FH14 | 146700 | 25232.4 | 2.5 | 100 | 0.81 | 80.07 | 3 | 200 | 983 | 1183 |
FH15 | 139500 | 23994 | 4 | 80 | 1.29 | 274.76 | 0.1 | 1099 | 84 | 1183 |
FH16 | 132300 | 22755.6 | 1.03 | 80 | 1.23 | 247.95 | 0.1 | 255 | 75 | 331 |
FH17 | 125100 | 21517.2 | 4.97 | 80 | 1.16 | 222.51 | 0.1 | 1106 | 67 | 1173 |
FH18 | 117900 | 20278.8 | 1.03 | 80 | 1.09 | 198.43 | 0.1 | 204 | 60 | 264 |
FH19 | 110700 | 19040.4 | 0.92 | 80 | 1.03 | 175.72 | 0.1 | 162 | 53 | 215 |
FH20 | 66600 | 11455.2 | 3.08 | 65 | 0.88 | 162.12 | 0.1 | 499 | 38 | 537 |
FH21 | 59400 | 10216.8 | 6.64 | 65 | 0.78 | 130.23 | 0.1 | 864 | 31 | 895 |
FH22 | 51300 | 8823.6 | 1.71 | 65 | 0.68 | 98.47 | 0.1 | 168 | 23 | 191 |
FH23 | 45900 | 7894.8 | 1.9 | 50 | 0.99 | 284.74 | 0.1 | 541 | 49 | 590 |
FH24 | 36900 | 6346.8 | 2.31 | 50 | 0.8 | 187.34 | 0.1 | 432 | 32 | 464 |
FH25 | 29700 | 5108.4 | 5.43 | 50 | 0.64 | 123.89 | 0.1 | 673 | 21 | 693 |
FH26 | 20700 | 3560.4 | 1.44 | 40 | 0.75 | 231.1 | 0.1 | 333 | 28 | 361 |
FH27 | 13500 | 2322 | 2.57 | 32 | 0.67 | 230.12 | 0.1 | 591 | 22 | 613 |
FH28 | 8100 | 1393.2 | 4.31 | 25 | 0.63 | 273.23 | 3 | 1178 | 593 | 1771 |
FH29 | 5400 | 928.8 | 4 | 25 | 0.42 | 127.55 | 0.1 | 510 | 9 | 519 |
FH30 | 5400 | 928.8 | 1.69 | 25 | 0.42 | 127.55 | 3 | 215 | 263 | 479 |
FH31 | 9000 | 1548 | 5.69 | 32 | 0.45 | 107.16 | 1.5 | 610 | 150 | 759 |
FH32 | 9000 | 1548 | 5.69 | 32 | 0.45 | 107.16 | 1.5 | 610 | 150 | 759 |
FH33 | 5400 | 928.8 | 1.39 | 25 | 0.42 | 127.55 | 1.5 | 177 | 132 | 309 |
FH34 | 8100 | 1393.2 | 4.31 | 25 | 0.63 | 273.23 | 1.5 | 1178 | 296 | 1475 |
FH35 | 5400 | 928.8 | 4 | 25 | 0.42 | 127.55 | 0.1 | 510 | 9 | 519 |
FH36 | 2700 | 464.4 | 4 | 20 | 0.37 | 150.46 | 0.1 | 602 | 7 | 609 |

楼层2水力计算表 | ||||||||||
最不利环路阻力(Pa) | 62147 | 最有利环路阻力 | 34404 | 楼层内不平衡率 | 44.60% | |||||
编号 | Q(W) | G(kg/h) | L(m) | D(mm) | υ(m/s) | R(Pa/m) | Σξ | ΔPy(Pa) | ΔPj(Pa) | ΔP(Pa) |
FG1 | 176400 | 30340.8 | 4.21 | 100 | 0.97 | 114.08 | 0 | 480 | 0 | 480 |
FG2 | 123300 | 21207.6 | 1.21 | 80 | 1.14 | 216.36 | 1.5 | 263 | 981 | 1243 |
FG3 | 119700 | 20588.4 | 1.96 | 80 | 1.11 | 204.32 | 0.1 | 401 | 62 | 463 |
FG4 | 105300 | 18111.6 | 4.23 | 80 | 0.98 | 159.59 | 0.1 | 675 | 48 | 723 |
FG5 | 101700 | 17492.4 | 1.8 | 80 | 0.94 | 149.26 | 0.1 | 269 | 44 | 314 |
FG6 | 98100 | 16873.2 | 6.2 | 80 | 0.91 | 139.27 | 0.1 | 863 | 41 | 904 |
FG7 | 94500 | 16254 | 4.14 | 80 | 0.88 | 129.62 | 0.1 | 536 | 38 | 575 |
FG8 | 85500 | 14706 | 1.01 | 80 | 0.79 | 107.01 | 0.1 | 108 | 31 | 139 |
FG9 | 41400 | 7120.8 | 8.29 | 50 | 0.9 | 233.53 | 0.1 | 1936 | 40 | 1976 |
FG10 | 36000 | 6192 | 2.2 | 50 | 0.78 | 178.7 | 0.1 | 392 | 30 | 423 |
FG11 | 33300 | 5727.6 | 0.44 | 50 | 0.72 | 154 | 0.1 | 68 | 26 | 94 |
FG12 | 24300 | 4179.6 | 2.04 | 50 | 0.53 | 84.76 | 1.6 | 173 | 222 | 395 |
FG13 | 13500 | 2322 | 5.51 | 32 | 0.67 | 230.12 | 1.5 | 1267 | 337 | 1604 |
FG14 | 9000 | 1548 | 2.83 | 32 | 0.45 | 107.16 | 1.6 | 303 | 160 | 463 |
FG15 | 4500 | 774 | 7.73 | 25 | 0.35 | 90.93 | 0.1 | 703 | 6 | 709 |
FG16 | 0 | 0 | 0.58 | 350 | 0 | 0 | 0.1 | 0 | 0 | 0 |
FG17 | 10800 | 1857.6 | 4.24 | 32 | 0.54 | 150.89 | 3 | 640 | 432 | 1072 |
FG18 | 8100 | 1393.2 | 2.08 | 25 | 0.63 | 273.23 | 0.1 | 568 | 20 | 588 |
FG19 | 5400 | 928.8 | 4.76 | 25 | 0.42 | 127.55 | 0.1 | 607 | 9 | 615 |
FG20 | 0 | 0 | 1.02 | 350 | 0 | 0 | 0.1 | 0 | 0 | 0 |
FG21 | 9000 | 1548 | 4.61 | 32 | 0.45 | 107.16 | 1.5 | 494 | 150 | 643 |
FG22 | 9000 | 1548 | 4.61 | 32 | 0.45 | 107.16 | 1.5 | 494 | 150 | 643 |
FG23 | 14400 | 2476.8 | 2.81 | 32 | 0.72 | 260.16 | 1.5 | 730 | 384 | 1114 |
FG24 | 12600 | 2167.2 | 1.12 | 32 | 0.63 | 201.9 | 0.1 | 226 | 20 | 245 |
FG25 | 9000 | 1548 | 5.77 | 32 | 0.45 | 107.16 | 1.6 | 619 | 160 | 778 |
FG26 | 53100 | 9133.2 | 3.07 | 65 | 0.7 | 105.15 | 1.5 | 323 | 366 | 689 |
FG27 | 49500 | 8514 | 6.23 | 65 | 0.65 | 92 | 0.1 | 573 | 21 | 595 |
FG28 | 7200 | 1238.4 | 4.81 | 25 | 0.56 | 218.72 | 1.5 | 1051 | 234 | 1285 |
FG29 | 42300 | 7275.6 | 1.6 | 50 | 0.92 | 243.37 | 0.1 | 389 | 42 | 431 |
FG30 | 31500 | 5418 | 4.65 | 50 | 0.68 | 138.54 | 0.1 | 644 | 23 | 667 |
FG31 | 22500 | 3870 | 1.4 | 40 | 0.81 | 270.98 | 0.1 | 380 | 33 | 413 |
FG32 | 15300 | 2631.6 | 1.87 | 32 | 0.76 | 292.02 | 0.1 | 545 | 29 | 574 |
FG33 | 6300 | 1083.6 | 0.95 | 25 | 0.49 | 170.16 | 0.1 | 161 | 12 | 173 |
FG34 | 9000 | 1548 | 2.96 | 32 | 0.45 | 107.16 | 3 | 317 | 300 | 616 |
FG35 | 7200 | 1238.4 | 3.45 | 25 | 0.56 | 218.72 | 3 | 755 | 468 | 1223 |
FG36 | 9000 | 1548 | 2.96 | 32 | 0.45 | 107.16 | 3 | 317 | 300 | 616 |
FG37 | 10800 | 1857.6 | 1.75 | 32 | 0.54 | 150.89 | 1.5 | 264 | 216 | 480 |
FG38 | 9000 | 1548 | 1.12 | 32 | 0.45 | 107.16 | 0.1 | 120 | 10 | 129 |
FG39 | 7200 | 1238.4 | 1.53 | 25 | 0.56 | 218.72 | 0.1 | 336 | 16 | 351 |
FG40 | 5400 | 928.8 | 1.17 | 25 | 0.42 | 127.55 | 0.1 | 149 | 9 | 157 |
FG41 | 3600 | 619.2 | 1.48 | 20 | 0.5 | 257.15 | 0.1 | 382 | 12 | 394 |
FH1 | 176400 | 30340.8 | 3.91 | 100 | 0.97 | 114.08 | 0 | 446 | 0 | 446 |
FH2 | 123300 | 21207.6 | 1.21 | 80 | 1.14 | 216.36 | 3 | 263 | 1961 | 2224 |
FH3 | 119700 | 20588.4 | 1.96 | 80 | 1.11 | 204.32 | 0.1 | 401 | 62 | 463 |
FH4 | 105300 | 18111.6 | 3.63 | 80 | 0.98 | 159.59 | 0.1 | 580 | 48 | 627 |
FH5 | 101700 | 17492.4 | 2.4 | 80 | 0.94 | 149.26 | 0.1 | 359 | 44 | 403 |
FH6 | 98100 | 16873.2 | 5.6 | 80 | 0.91 | 139.27 | 0.1 | 779 | 41 | 821 |
FH7 | 94500 | 16254 | 4.14 | 80 | 0.88 | 129.62 | 0.1 | 536 | 38 | 575 |
FH8 | 85500 | 14706 | 1.16 | 80 | 0.79 | 107.01 | 0.1 | 124 | 31 | 155 |
FH9 | 41400 | 7120.8 | 8.14 | 50 | 0.9 | 233.53 | 0.1 | 1901 | 40 | 1941 |
FH10 | 36000 | 6192 | 2.8 | 50 | 0.78 | 178.7 | 0.1 | 500 | 30 | 530 |
FH11 | 33300 | 5727.6 | 0.44 | 50 | 0.72 | 154 | 0.1 | 68 | 26 | 94 |
FH12 | 24300 | 4179.6 | 1.44 | 50 | 0.53 | 84.76 | 0.1 | 122 | 14 | 136 |
FH13 | 13500 | 2322 | 5.51 | 32 | 0.67 | 230.12 | 3 | 1267 | 674 | 1941 |
FH14 | 9000 | 1548 | 4.03 | 32 | 0.45 | 107.16 | 1.6 | 432 | 160 | 592 |
FH15 | 4500 | 774 | 7.13 | 25 | 0.35 | 90.93 | 0.1 | 648 | 6 | 654 |
FH16 | 0 | 0 | 0.58 | 350 | 0 | 0 | 0.1 | 0 | 0 | 0 |
FH17 | 10800 | 1857.6 | 4.84 | 32 | 0.54 | 150.89 | 4.5 | 731 | 647 | 1378 |
FH18 | 8100 | 1393.2 | 1.48 | 25 | 0.63 | 273.23 | 0.1 | 404 | 20 | 424 |
FH19 | 5400 | 928.8 | 4.76 | 25 | 0.42 | 127.55 | 0.1 | 607 | 9 | 615 |
FH20 | 0 | 0 | 1.32 | 350 | 0 | 0 | 0.1 | 0 | 0 | 0 |
FH21 | 9000 | 1548 | 4.61 | 32 | 0.45 | 107.16 | 1.5 | 494 | 150 | 643 |
FH22 | 9000 | 1548 | 4.61 | 32 | 0.45 | 107.16 | 1.5 | 494 | 150 | 643 |
FH23 | 14400 | 2476.8 | 2.81 | 32 | 0.72 | 260.16 | 1.5 | 730 | 384 | 1114 |
FH24 | 12600 | 2167.2 | 1.72 | 32 | 0.63 | 201.9 | 0.1 | 347 | 20 | 367 |
FH25 | 9000 | 1548 | 5.77 | 32 | 0.45 | 107.16 | 1.6 | 619 | 160 | 778 |
FH26 | 53100 | 9133.2 | 3.25 | 65 | 0.7 | 105.15 | 3 | 341 | 732 | 1074 |
FH27 | 49500 | 8514 | 6.06 | 65 | 0.65 | 92 | 0.1 | 557 | 21 | 579 |
FH28 | 42300 | 7275.6 | 1.6 | 50 | 0.92 | 243.37 | 0.1 | 389 | 42 | 431 |
FH29 | 31500 | 5418 | 4.65 | 50 | 0.68 | 138.54 | 0.1 | 644 | 23 | 667 |
FH30 | 22500 | 3870 | 1.4 | 40 | 0.81 | 270.98 | 0.1 | 380 | 33 | 413 |
FH31 | 15300 | 2631.6 | 2.47 | 32 | 0.76 | 292.02 | 0.1 | 721 | 29 | 749 |
FH32 | 6300 | 1083.6 | 0.95 | 25 | 0.49 | 170.16 | 0.1 | 161 | 12 | 173 |
FH33 | 9000 | 1548 | 3.22 | 32 | 0.45 | 107.16 | 3 | 345 | 300 | 645 |
FH34 | 7200 | 1238.4 | 3.12 | 25 | 0.56 | 218.72 | 3 | 682 | 468 | 1150 |
FH35 | 9000 | 1548 | 3.22 | 32 | 0.45 | 107.16 | 3 | 345 | 300 | 645 |
FH36 | 10800 | 1857.6 | 1.75 | 32 | 0.54 | 150.89 | 1.5 | 264 | 216 | 480 |
FH37 | 9000 | 1548 | 0.69 | 32 | 0.45 | 107.16 | 0.1 | 74 | 10 | 84 |
FH38 | 7200 | 1238.4 | 1.96 | 25 | 0.56 | 218.72 | 0.1 | 429 | 16 | 445 |
FH39 | 5400 | 928.8 | 0.74 | 25 | 0.42 | 127.55 | 0.1 | 94 | 9 | 103 |
FH40 | 3600 | 619.2 | 1.91 | 20 | 0.5 | 257.15 | 0.1 | 492 | 12 | 504 |
FH41 | 7200 | 1238.4 | 5.41 | 25 | 0.56 | 218.72 | 1.5 | 1182 | 234 | 1416 |

楼层3水力计算表 | ||||||||||
最不利环路阻力(Pa) | 60338 | 最有利环路阻力 | 35535 | 楼层内不平衡率 | 41.10% | |||||
编号 | Q(W) | G(kg/h) | L(m) | D(mm) | υ(m/s) | R(Pa/m) | Σξ | ΔPy(Pa) | ΔPj(Pa) | ΔP(Pa) |
FG1 | 192600 | 33127.2 | 4.21 | 100 | 1.06 | 135.14 | 0 | 569 | 0 | 569 |
FG2 | 42300 | 7275.6 | 3.07 | 50 | 0.92 | 243.37 | 1.5 | 748 | 630 | 1378 |
FG3 | 38700 | 6656.4 | 8.26 | 50 | 0.84 | 205.21 | 0.1 | 1694 | 35 | 1729 |
FG4 | 22500 | 3870 | 4.22 | 40 | 0.81 | 270.98 | 0.1 | 1144 | 33 | 1177 |
FG5 | 18000 | 3096 | 1.4 | 40 | 0.65 | 177.14 | 0.1 | 248 | 21 | 270 |
FG6 | 10800 | 1857.6 | 1.87 | 32 | 0.54 | 150.89 | 0.1 | 282 | 14 | 296 |
FG7 | 6300 | 1083.6 | 0.95 | 25 | 0.49 | 170.16 | 0.1 | 161 | 12 | 173 |
FG8 | 0 | 0 | 0.03 | 350 | 0 | 0 | 0.1 | 0 | 0 | 0 |
FG9 | 6300 | 1083.6 | 3.22 | 25 | 0.49 | 170.16 | 3 | 549 | 359 | 907 |
FG10 | 7200 | 1238.4 | 3.45 | 25 | 0.56 | 218.72 | 3 | 755 | 468 | 1223 |
FG11 | 16200 | 2786.4 | 4.81 | 40 | 0.59 | 145.09 | 1.5 | 697 | 258 | 955 |
FG12 | 12600 | 2167.2 | 3.12 | 32 | 0.63 | 201.9 | 0.1 | 630 | 20 | 649 |
FG13 | 9000 | 1548 | 4.22 | 32 | 0.45 | 107.16 | 1.5 | 453 | 150 | 602 |
FG14 | 150300 | 25851.6 | 1.21 | 100 | 0.83 | 83.88 | 1.5 | 102 | 516 | 618 |
FG15 | 146700 | 25232.4 | 1.97 | 100 | 0.81 | 80.07 | 0.1 | 158 | 33 | 191 |
FG16 | 14400 | 2476.8 | 2.81 | 32 | 0.72 | 260.16 | 1.5 | 730 | 384 | 1114 |
FG17 | 12600 | 2167.2 | 1.12 | 32 | 0.63 | 201.9 | 0.1 | 226 | 20 | 245 |
FG18 | 9000 | 1548 | 5.37 | 32 | 0.45 | 107.16 | 1.6 | 575 | 160 | 735 |
FG19 | 132300 | 22755.6 | 1.44 | 80 | 1.23 | 247.95 | 0.1 | 356 | 75 | 432 |
FG20 | 128700 | 22136.4 | 1.57 | 80 | 1.19 | 235.06 | 0.1 | 370 | 71 | 441 |
FG21 | 119700 | 20588.4 | 3.02 | 80 | 1.11 | 204.32 | 0.1 | 616 | 62 | 678 |
FG22 | 116100 | 19969.2 | 5.21 | 80 | 1.08 | 192.63 | 0.1 | 1004 | 58 | 1062 |
FG23 | 107100 | 18421.2 | 0.98 | 80 | 0.99 | 164.88 | 0.1 | 162 | 49 | 211 |
FG24 | 103500 | 17802 | 2.29 | 80 | 0.96 | 154.38 | 0.1 | 353 | 46 | 399 |
FG25 | 94500 | 16254 | 2.74 | 80 | 0.88 | 129.62 | 0.1 | 355 | 38 | 393 |
FG26 | 50400 | 8668.8 | 3.83 | 65 | 0.66 | 95.21 | 0.1 | 364 | 22 | 386 |
FG27 | 41400 | 7120.8 | 4.58 | 50 | 0.9 | 233.53 | 0.1 | 1070 | 40 | 1111 |
FG28 | 36000 | 6192 | 1.9 | 50 | 0.78 | 178.7 | 0.1 | 339 | 30 | 369 |
FG29 | 33300 | 5727.6 | 0.71 | 50 | 0.72 | 154 | 0.1 | 109 | 26 | 135 |
FG30 | 24300 | 4179.6 | 1.87 | 50 | 0.53 | 84.76 | 0.1 | 159 | 14 | 172 |
FG31 | 13500 | 2322 | 5.51 | 32 | 0.67 | 230.12 | 1.5 | 1267 | 337 | 1604 |
FG32 | 9000 | 1548 | 3.02 | 32 | 0.45 | 107.16 | 1.6 | 323 | 160 | 483 |
FG33 | 10800 | 1857.6 | 4.6 | 32 | 0.54 | 150.89 | 3 | 694 | 432 | 1126 |
FG34 | 8100 | 1393.2 | 2.08 | 25 | 0.63 | 273.23 | 0.1 | 568 | 20 | 588 |
FG35 | 9000 | 1548 | 4.61 | 32 | 0.45 | 107.16 | 1.5 | 494 | 150 | 643 |
FG36 | 9000 | 1548 | 2.96 | 32 | 0.45 | 107.16 | 3 | 317 | 300 | 616 |
FG37 | 9000 | 1548 | 2.96 | 32 | 0.45 | 107.16 | 3 | 317 | 300 | 616 |
FG38 | 9000 | 1548 | 2.96 | 32 | 0.45 | 107.16 | 3 | 317 | 300 | 616 |
FG39 | 9000 | 1548 | 2.96 | 32 | 0.45 | 107.16 | 3 | 317 | 300 | 616 |
FG40 | 3600 | 619.2 | 2.68 | 20 | 0.5 | 257.15 | 3.5 | 688 | 432 | 1120 |
FH1 | 207900 | 35758.8 | 3.91 | 100 | 1.15 | 156.64 | 0 | 613 | 0 | 613 |
FH2 | 57600 | 9907.2 | 3.25 | 65 | 0.76 | 122.79 | 3 | 399 | 862 | 1260 |
FH3 | 54000 | 9288 | 7.42 | 65 | 0.71 | 108.57 | 0.1 | 806 | 25 | 831 |
FH4 | 15300 | 2631.6 | 1.75 | 32 | 0.76 | 292.02 | 1.5 | 512 | 433 | 945 |
FH5 | 11700 | 2012.4 | 0.69 | 32 | 0.58 | 175.49 | 0.1 | 121 | 17 | 138 |
FH6 | 8100 | 1393.2 | 1.96 | 25 | 0.63 | 273.23 | 0.1 | 536 | 20 | 556 |
FH7 | 3600 | 619.2 | 0.74 | 20 | 0.5 | 257.15 | 0.1 | 190 | 12 | 202 |
FH8 | 0 | 0 | 1.91 | 350 | 0 | 0 | 0.1 | 0 | 0 | 0 |
FH9 | 38700 | 6656.4 | 0.66 | 50 | 0.84 | 205.21 | 0.1 | 136 | 35 | 171 |
FH10 | 22500 | 3870 | 4.22 | 40 | 0.81 | 270.98 | 0.1 | 1144 | 33 | 1177 |
FH11 | 18000 | 3096 | 1.4 | 40 | 0.65 | 177.14 | 0.1 | 248 | 21 | 270 |
FH12 | 10800 | 1857.6 | 2.47 | 32 | 0.54 | 150.89 | 0.1 | 372 | 14 | 387 |
FH13 | 6300 | 1083.6 | 0.95 | 25 | 0.49 | 170.16 | 0.1 | 161 | 12 | 173 |
FH14 | 0 | 0 | 0.03 | 350 | 0 | 0 | 0.1 | 0 | 0 | 0 |
FH15 | 6300 | 1083.6 | 2.89 | 25 | 0.49 | 170.16 | 3 | 492 | 359 | 850 |
FH16 | 7200 | 1238.4 | 3.12 | 25 | 0.56 | 218.72 | 3 | 682 | 468 | 1150 |
FH17 | 16200 | 2786.4 | 5.41 | 40 | 0.59 | 145.09 | 1.5 | 784 | 258 | 1042 |
FH18 | 12600 | 2167.2 | 3.12 | 32 | 0.63 | 201.9 | 0.1 | 630 | 20 | 649 |
FH19 | 9000 | 1548 | 4.22 | 32 | 0.45 | 107.16 | 1.5 | 453 | 150 | 602 |
FH20 | 150300 | 25851.6 | 1.21 | 100 | 0.83 | 83.88 | 3 | 102 | 1032 | 1134 |
FH21 | 146700 | 25232.4 | 1.97 | 100 | 0.81 | 80.07 | 0.1 | 158 | 33 | 191 |
FH22 | 132300 | 22755.6 | 1.44 | 80 | 1.23 | 247.95 | 0.1 | 356 | 75 | 432 |
FH23 | 128700 | 22136.4 | 1.57 | 80 | 1.19 | 235.06 | 0.1 | 370 | 71 | 441 |
FH24 | 119700 | 20588.4 | 3.02 | 80 | 1.11 | 204.32 | 0.1 | 616 | 62 | 678 |
FH25 | 116100 | 19969.2 | 4.61 | 80 | 1.08 | 192.63 | 0.1 | 889 | 58 | 947 |
FH26 | 107100 | 18421.2 | 0.98 | 80 | 0.99 | 164.88 | 0.1 | 162 | 49 | 211 |
FH27 | 103500 | 17802 | 2.89 | 80 | 0.96 | 154.38 | 0.1 | 446 | 46 | 492 |
FH28 | 94500 | 16254 | 2.29 | 80 | 0.88 | 129.62 | 0.1 | 296 | 38 | 335 |
FH29 | 50400 | 8668.8 | 3.68 | 65 | 0.66 | 95.21 | 0.1 | 350 | 22 | 372 |
FH30 | 41400 | 7120.8 | 4.58 | 50 | 0.9 | 233.53 | 0.1 | 1070 | 40 | 1111 |
FH31 | 36000 | 6192 | 2.5 | 50 | 0.78 | 178.7 | 0.1 | 446 | 30 | 476 |
FH32 | 33300 | 5727.6 | 0.71 | 50 | 0.72 | 154 | 0.1 | 109 | 26 | 135 |
FH33 | 24300 | 4179.6 | 1.87 | 50 | 0.53 | 84.76 | 0.1 | 159 | 14 | 172 |
FH34 | 13500 | 2322 | 5.51 | 32 | 0.67 | 230.12 | 3 | 1267 | 674 | 1941 |
FH35 | 9000 | 1548 | 3.02 | 32 | 0.45 | 107.16 | 1.6 | 323 | 160 | 483 |
FH36 | 4500 | 774 | 7.13 | 25 | 0.35 | 90.93 | 0.1 | 648 | 6 | 654 |
FH37 | 0 | 0 | 0.04 | 350 | 0 | 0 | 0.1 | 0 | 0 | 0 |
FH38 | 10800 | 1857.6 | 4 | 32 | 0.54 | 150.89 | 4.5 | 604 | 647 | 1251 |
FH39 | 8100 | 1393.2 | 1.48 | 25 | 0.63 | 273.23 | 0.1 | 404 | 20 | 424 |
FH40 | 9000 | 1548 | 4.61 | 32 | 0.45 | 107.16 | 1.5 | 494 | 150 | 643 |
FH41 | 9000 | 1548 | 3.22 | 32 | 0.45 | 107.16 | 3 | 345 | 300 | 645 |
FH42 | 9000 | 1548 | 3.22 | 32 | 0.45 | 107.16 | 3 | 345 | 300 | 645 |
FH43 | 9000 | 1548 | 3.22 | 32 | 0.45 | 107.16 | 3 | 345 | 300 | 645 |
FH44 | 9000 | 1548 | 3.22 | 32 | 0.45 | 107.16 | 3 | 345 | 300 | 645 |
FH45 | 3600 | 619.2 | 2.34 | 20 | 0.5 | 257.15 | 3.5 | 602 | 432 | 1034 |
FH46 | 14400 | 2476.8 | 2.81 | 32 | 0.72 | 260.16 | 1.5 | 730 | 384 | 1114 |
FH47 | 12600 | 2167.2 | 1.72 | 32 | 0.63 | 201.9 | 0.1 | 347 | 20 | 367 |
FH48 | 9000 | 1548 | 5.37 | 32 | 0.45 | 107.16 | 1.6 | 575 | 160 | 735 |

楼层4水力计算表 | ||||||||||
最不利环路阻力(Pa) | 60446 | 最有利环路阻力 | 34440 | 楼层内不平衡率 | 43.00% | |||||
编号 | Q(W) | G(kg/h) | L(m) | D(mm) | υ(m/s) | R(Pa/m) | Σξ | ΔPy(Pa) | ΔPj(Pa) | ΔP(Pa) |
FG1 | 204300 | 35139.6 | 4.21 | 100 | 1.13 | 151.44 | 0 | 638 | 0 | 638 |
FG2 | 151200 | 26006.4 | 0.7 | 100 | 0.83 | 84.85 | 1.5 | 59 | 522 | 581 |
FG3 | 142200 | 24458.4 | 2.73 | 80 | 1.32 | 285.16 | 0.1 | 778 | 87 | 865 |
FG4 | 138600 | 23839.2 | 3.75 | 80 | 1.29 | 271.33 | 0.1 | 1017 | 83 | 1100 |
FG5 | 135000 | 23220 | 1.25 | 80 | 1.25 | 257.84 | 0.1 | 322 | 78 | 401 |
FG6 | 126000 | 21672 | 2.75 | 80 | 1.17 | 225.61 | 0.1 | 620 | 68 | 689 |
FG7 | 122400 | 21052.8 | 1.02 | 80 | 1.14 | 213.32 | 0.1 | 218 | 64 | 282 |
FG8 | 113400 | 19504.8 | 2.98 | 80 | 1.05 | 184.08 | 0.1 | 549 | 55 | 604 |
FG9 | 109800 | 18885.6 | 4.75 | 80 | 1.02 | 172.98 | 0.1 | 822 | 52 | 874 |
FG10 | 100800 | 17337.6 | 0.43 | 80 | 0.93 | 146.73 | 0.1 | 63 | 44 | 106 |
FG11 | 56700 | 9752.4 | 3.71 | 65 | 0.75 | 119.16 | 0.1 | 442 | 28 | 470 |
FG12 | 48600 | 8359.2 | 2.68 | 65 | 0.64 | 88.85 | 0.1 | 238 | 20 | 258 |
FG13 | 39600 | 6811.2 | 0.99 | 50 | 0.86 | 214.45 | 0.1 | 212 | 37 | 249 |
FG14 | 32400 | 5572.8 | 8.92 | 50 | 0.7 | 146.17 | 0.1 | 1304 | 25 | 1328 |
FG15 | 25200 | 4334.4 | 0.66 | 50 | 0.55 | 90.77 | 0.1 | 60 | 15 | 75 |
FG16 | 16200 | 2786.4 | 2.4 | 40 | 0.59 | 145.09 | 0.1 | 348 | 17 | 365 |
FG17 | 5400 | 928.8 | 2.67 | 25 | 0.42 | 127.55 | 1.5 | 340 | 132 | 472 |
FG18 | 2700 | 464.4 | 4 | 20 | 0.37 | 150.46 | 0.1 | 602 | 7 | 609 |
FG19 | 0 | 0 | 1.2 | 350 | 0 | 0 | 0.1 | 0 | 0 | 0 |
FG20 | 10800 | 1857.6 | 1.33 | 32 | 0.54 | 150.89 | 1.5 | 201 | 216 | 417 |
FG21 | 8100 | 1393.2 | 4 | 25 | 0.63 | 273.23 | 0.1 | 1093 | 20 | 1113 |
FG22 | 5400 | 928.8 | 2.32 | 25 | 0.42 | 127.55 | 0.1 | 296 | 9 | 305 |
FG23 | 9000 | 1548 | 4.41 | 32 | 0.45 | 107.16 | 1.5 | 472 | 150 | 622 |
FG24 | 9000 | 1548 | 4.41 | 32 | 0.45 | 107.16 | 1.5 | 472 | 150 | 622 |
FG25 | 8100 | 1393.2 | 3.33 | 25 | 0.63 | 273.23 | 1.5 | 910 | 296 | 1206 |
FG26 | 5400 | 928.8 | 4 | 25 | 0.42 | 127.55 | 0.1 | 510 | 9 | 519 |
FG27 | 9000 | 1548 | 2.96 | 32 | 0.45 | 107.16 | 3 | 317 | 300 | 616 |
FG28 | 9000 | 1548 | 2.96 | 32 | 0.45 | 107.16 | 3 | 317 | 300 | 616 |
FG29 | 9000 | 1548 | 2.96 | 32 | 0.45 | 107.16 | 3 | 317 | 300 | 616 |
FG30 | 9000 | 1548 | 2.96 | 32 | 0.45 | 107.16 | 3 | 317 | 300 | 616 |
FG31 | 53100 | 9133.2 | 3.79 | 65 | 0.7 | 105.15 | 1.5 | 399 | 366 | 765 |
FG32 | 45000 | 7740 | 2.67 | 50 | 0.97 | 274.09 | 0.1 | 731 | 48 | 779 |
FG33 | 36000 | 6192 | 1.68 | 50 | 0.78 | 178.7 | 0.1 | 300 | 30 | 330 |
FG34 | 30600 | 5263.2 | 7.1 | 50 | 0.66 | 131.12 | 0.1 | 932 | 22 | 953 |
FG35 | 25200 | 4334.4 | 1.5 | 50 | 0.55 | 90.77 | 0.1 | 136 | 15 | 151 |
FG36 | 16200 | 2786.4 | 2.62 | 40 | 0.59 | 145.09 | 0.1 | 379 | 17 | 397 |
FG37 | 5400 | 928.8 | 2.67 | 25 | 0.42 | 127.55 | 1.5 | 340 | 132 | 472 |
FG38 | 2700 | 464.4 | 4.05 | 20 | 0.37 | 150.46 | 0.1 | 609 | 7 | 616 |
FG39 | 0 | 0 | 1.69 | 350 | 0 | 0 | 0.1 | 0 | 0 | 0 |
FG40 | 10800 | 1857.6 | 1.33 | 32 | 0.54 | 150.89 | 1.5 | 201 | 216 | 417 |
FG41 | 8100 | 1393.2 | 4 | 25 | 0.63 | 273.23 | 0.1 | 1093 | 20 | 1113 |
FG42 | 5400 | 928.8 | 2.32 | 25 | 0.42 | 127.55 | 0.1 | 296 | 9 | 305 |
FG43 | 9000 | 1548 | 4.41 | 32 | 0.45 | 107.16 | 1.5 | 472 | 150 | 622 |
FG44 | 9000 | 1548 | 4.41 | 32 | 0.45 | 107.16 | 1.5 | 472 | 150 | 622 |
FG45 | 8100 | 1393.2 | 3.33 | 25 | 0.63 | 273.23 | 1.5 | 910 | 296 | 1206 |
FG46 | 5400 | 928.8 | 4 | 25 | 0.42 | 127.55 | 0.1 | 510 | 9 | 519 |
FH1 | 204300 | 35139.6 | 3.91 | 100 | 1.13 | 151.44 | 0 | 592 | 0 | 592 |
FH2 | 151200 | 26006.4 | 0.7 | 100 | 0.83 | 84.85 | 3 | 59 | 1044 | 1103 |
FH3 | 142200 | 24458.4 | 2.13 | 80 | 1.32 | 285.16 | 0.1 | 607 | 87 | 694 |
FH4 | 138600 | 23839.2 | 3.75 | 80 | 1.29 | 271.33 | 0.1 | 1017 | 83 | 1100 |
FH5 | 135000 | 23220 | 1.25 | 80 | 1.25 | 257.84 | 0.1 | 322 | 78 | 401 |
FH6 | 126000 | 21672 | 2.75 | 80 | 1.17 | 225.61 | 0.1 | 620 | 68 | 689 |
FH7 | 122400 | 21052.8 | 1.62 | 80 | 1.14 | 213.32 | 0.1 | 346 | 64 | 410 |
FH8 | 113400 | 19504.8 | 2.38 | 80 | 1.05 | 184.08 | 0.1 | 438 | 55 | 493 |
FH9 | 109800 | 18885.6 | 4.75 | 80 | 1.02 | 172.98 | 0.1 | 822 | 52 | 874 |
FH10 | 100800 | 17337.6 | 0.58 | 80 | 0.93 | 146.73 | 0.1 | 85 | 44 | 128 |
FH11 | 56700 | 9752.4 | 4.16 | 65 | 0.75 | 119.16 | 0.1 | 496 | 28 | 524 |
FH12 | 48600 | 8359.2 | 2.68 | 65 | 0.64 | 88.85 | 0.1 | 238 | 20 | 258 |
FH13 | 39600 | 6811.2 | 0.99 | 50 | 0.86 | 214.45 | 0.1 | 212 | 37 | 249 |
FH14 | 32400 | 5572.8 | 8.32 | 50 | 0.7 | 146.17 | 0.1 | 1216 | 25 | 1241 |
FH15 | 25200 | 4334.4 | 1.26 | 50 | 0.55 | 90.77 | 0.1 | 114 | 15 | 129 |
FH16 | 16200 | 2786.4 | 2.4 | 40 | 0.59 | 145.09 | 0.1 | 348 | 17 | 365 |
FH17 | 5400 | 928.8 | 2.67 | 25 | 0.42 | 127.55 | 3 | 340 | 263 | 604 |
FH18 | 2700 | 464.4 | 4 | 20 | 0.37 | 150.46 | 0.1 | 602 | 7 | 609 |
FH19 | 0 | 0 | 0.9 | 350 | 0 | 0 | 0.1 | 0 | 0 | 0 |
FH20 | 10800 | 1857.6 | 1.33 | 32 | 0.54 | 150.89 | 3 | 201 | 432 | 632 |
FH21 | 8100 | 1393.2 | 4 | 25 | 0.63 | 273.23 | 0.1 | 1093 | 20 | 1113 |
FH22 | 5400 | 928.8 | 2.92 | 25 | 0.42 | 127.55 | 0.1 | 372 | 9 | 381 |
FH23 | 9000 | 1548 | 4.41 | 32 | 0.45 | 107.16 | 1.5 | 472 | 150 | 622 |
FH24 | 9000 | 1548 | 4.41 | 32 | 0.45 | 107.16 | 1.5 | 472 | 150 | 622 |
FH25 | 8100 | 1393.2 | 3.33 | 25 | 0.63 | 273.23 | 1.5 | 910 | 296 | 1206 |
FH26 | 5400 | 928.8 | 4 | 25 | 0.42 | 127.55 | 0.1 | 510 | 9 | 519 |
FH27 | 9000 | 1548 | 3.22 | 32 | 0.45 | 107.16 | 3 | 345 | 300 | 645 |
FH28 | 9000 | 1548 | 3.22 | 32 | 0.45 | 107.16 | 3 | 345 | 300 | 645 |
FH29 | 9000 | 1548 | 3.22 | 32 | 0.45 | 107.16 | 3 | 345 | 300 | 645 |
FH30 | 9000 | 1548 | 3.22 | 32 | 0.45 | 107.16 | 3 | 345 | 300 | 645 |
FH31 | 53100 | 9133.2 | 3.79 | 65 | 0.7 | 105.15 | 3 | 399 | 732 | 1131 |
FH32 | 45000 | 7740 | 2.67 | 50 | 0.97 | 274.09 | 0.1 | 731 | 48 | 779 |
FH33 | 36000 | 6192 | 2.28 | 50 | 0.78 | 178.7 | 0.1 | 407 | 30 | 438 |
FH34 | 30600 | 5263.2 | 6.5 | 50 | 0.66 | 131.12 | 0.1 | 853 | 22 | 875 |
FH35 | 25200 | 4334.4 | 1.5 | 50 | 0.55 | 90.77 | 0.1 | 136 | 15 | 151 |
FH36 | 16200 | 2786.4 | 2.62 | 40 | 0.59 | 145.09 | 0.1 | 379 | 17 | 397 |
FH37 | 5400 | 928.8 | 2.67 | 25 | 0.42 | 127.55 | 3 | 340 | 263 | 604 |
FH38 | 2700 | 464.4 | 4.05 | 20 | 0.37 | 150.46 | 0.1 | 609 | 7 | 616 |
FH39 | 0 | 0 | 1.39 | 350 | 0 | 0 | 0.1 | 0 | 0 | 0 |
FH40 | 10800 | 1857.6 | 1.33 | 32 | 0.54 | 150.89 | 3 | 201 | 432 | 632 |
FH41 | 8100 | 1393.2 | 4 | 25 | 0.63 | 273.23 | 0.1 | 1093 | 20 | 1113 |
FH42 | 5400 | 928.8 | 2.92 | 25 | 0.42 | 127.55 | 0.1 | 372 | 9 | 381 |
FH43 | 2700 | 464.4 | 3.08 | 20 | 0.37 | 150.46 | 0.1 | 463 | 7 | 470 |
FH44 | 0 | 0 | 0.14 | 350 | 0 | 0 | 0.1 | 0 | 0 | 0 |
FH45 | 9000 | 1548 | 4.41 | 32 | 0.45 | 107.16 | 1.5 | 472 | 150 | 622 |
FH46 | 9000 | 1548 | 4.41 | 32 | 0.45 | 107.16 | 1.5 | 472 | 150 | 622 |
FH47 | 8100 | 1393.2 | 3.33 | 25 | 0.63 | 273.23 | 1.5 | 910 | 296 | 1206 |
FH48 | 5400 | 928.8 | 4 | 25 | 0.42 | 127.55 | 0.1 | 510 | 9 | 519 |
第八章 冷热源设计
8.1冷热源机组选择
8.1.1 空调冷源方案的确定
本设计为江苏南京,为冬冷夏热地区,既有夏季供冷需求,又有冬季供热需求。所以采用空气源热泵机组。空气源热泵具有节能,冷热兼顾,无需冷却水和锅炉等优点,很适合我国冬冷夏热地区作为集中空调的冷热源。
空调机组、空调冷冻水泵和冷却水泵的能耗,冷水机组负荷下的特性,运营管理的方式和使用的寿命,设备的需要花费的价钱,是否按照环境保护的要求,噪声强弱和振动频率等等。
后综合分析,设计采用空气源热泵,其适用于大,中型中央空调系统。它能够被依赖,重量轻,使用比较长,使用的时间长,尺寸小,振动和噪声低,制冷系数和经济性高的特点。
8.1.2 热泵容量的确定
空气热泵的容量一般取决于冷热负荷中较大者,应根据空调系统的冷、热负荷综合考虑后决定。机组的制热量与环境温度和除霜情况有关。生产企业提供的变工况性能曲线中的制热量一般为名义制热量。因此,确定机组冬季实际制热量Q(kW)时,因根据室外空调计算温度和融霜频率按下式进行修正:
(8-1)


q——机组的名义制热量,KW
K1——使用地区的室外空调计算干球温度的修正系数
K2——机组融霜修正系数,每小时融霜一次取0.9,两次取0.8
查参考资料[1]表30.1-6得南京的室外空调计算干球温度的修正系数为0.86
机组的选择与校核:
经计算冷负荷为394kW,新风负荷为227.25kW。热负荷为356kW。选用两台开利MAC1050AR风冷热泵机组。该机组的名义制冷量为315kW,名义制热量为330kW。每小时融霜两次。
根据公式(8-1)对制热工况进行校核:
=330×2×0.86×0.8=454kW

454kW >356kW


故,满足需求
总冷负荷是室内余热负荷与新风负荷之和,本建筑总冷负荷为394KW,考虑1.2的安全系数,设计制冷量为394*1.2=473。
由冷负荷得出制冷机组的选取型号有
在本设计中,运行工况是空调冷冻水供水温度为7℃,空调冷冻水回水温度为12℃,冷却水进水温度为32℃,冷却水出水温度分别为37℃。
根据实际所需流量及负荷选取两台型号MAC320AR的空气源热泵机组。其有关性能参数如下:
表8-1风冷热泵性能参数
型号 | MAC1050AR | ||
制冷量KW | 315 | 制冷剂种类 | R22 |
制热量KW | 330 | 充注量Kg | 128 |
输入功率KW | 92 | 电源 | 380V |
水流量m³/h | 54 | ||
水阻力Kpa | 48.5 | ||
进水管管径 | DN100 | ||
8.2冷冻水泵的选择
冷冻水泵应该与制冷机组台数相对应[3],同时设备用水泵。本设计选取3台冷冻水泵。空调用水泵宜选单级离心泵。
水泵流量应由制冷机组的技术资料参数确定,并有5%-10%的裕量。本设计选取总流量的系数为1.1。
水泵扬程应由冷冻水系统的水管、管件阻力,蒸发器阻力,末端设备阻力组成,并有5%-10%的裕量。本设计选取扬程的系数为1.1。
由于在水力计算时,风机盘管等机组的水流量按额定值计算,使得水力计算的水流量比冷水机组的水流量大,所以,本设计为满足系统流量,选取水泵时按水力计算值。
本设计中冷冻水量为:59.4m3/h
本设计中水泵扬程为:76mH2O
表8-2冷冻水泵参数
循环泵型号 | 流量(m3/h) | 扬程(mH2O) | 转速(n) | 轴功率(kW) | 效率(%) | 总台数 | 备用 |
KQW100/235-30/2 | 65.4 | 76 | 1450 | 3 | 82 | 3 | 1 |
8.3水系统的补水定压
(1)循环水系统的小时、泄漏量,可按系统水容量的1%计算,系统的补水量,宜取系统水容量的2%.
(2) 空调水系统的补水,应经软化处理。仅夏季供冷使用的单冷空调系统,可采用电磁水处理器。补水软化处理系统宜设软化水箱,补水箱的贮水容积,可按补水泵小时流量的O. 5-1.0配置(系统较小时取上限,系统较大时取下限)。补水箱或软水箱的上部,应留有能容纳相当于系统最大膨胀水量的泄压排水容积。
(3) 循环水系统的补水点,宜设在循环水泵的吸入侧;当补水压力低于补水点的压力时,应设置补水泵。
(4) 循环水系统的补水、定压与膨胀,一般可通过膨胀水箱来完成。
水系统的定压与膨胀,可按下列原则进行设计:
1)系统的定压点,宜设在循环水泵的吸人侧。
2) 水温95°C gt;tgt;60°C 的水系统:定压点的最低压力可取系统最高点的压力高于大气压力10kPa 。
3) 水温t<60°C 水系统:定压点的最低压力可取系统最高点的压力高于大气压力5 kPa。
4) 系统的膨胀水量应能回收。
5) 膨胀管上禁止设置阀门。
6) 膨胀管的公称直径,可按《实用供热空调手册》表26.8-5 确定。
国内应用比较广泛的是开式膨胀水箱和隔膜式膨胀水箱(定压罐),其选择方法可在《简明空调设计手册》355页查得。膨胀水量Vp可按下式估算:
Vp=α⊿tVs
式中:Vp——膨胀水箱有效容积, L;
α——水的体积膨胀系数,α=0.0006L/℃;
⊿t——最大的水温变化值,℃;
Vs——系统内水容量,m³,及系统中管道和设备内总容水量,可按下表确定。
7-7水系统中总容水量(L/㎡建筑面积)
系统形式 | 全空气系统 | 空气-水空调系统 |
供冷时 | 0.40~0.55 | 0.70~1.30 |
供暖时 | 1.25~2.00 | 1.20~1.90 |
空气-水空调系统的面积为4842.96㎡,系统的水容量为:Vs=0.5×1232.36 1.0×
4842.96=5459.14L=5.459m³。系统的膨胀水量为Vp=0.0006×45×5.459=0.147m³。
选用上海安巢公司生产的ACOL定压罐定压,基本参数如下表:
表7-8定压罐基本参数表
型号 | 容积L | 口径mm | 直径mm | 高度mm |
ACOL | 150 | DN25 | 450 | 1150 |
8.4软化水装置
1.循环冷却水处理主要是解决循环冷却水的结垢、污垢和微生物的问题。为了达到上述要求,首先要控制钙离子的含量,降去钙离子,使水软化。水系统中的补水需要进行软化处理才可以进入补水系统,以免设备和水管结垢影响传热效果。软化水装置制水量按系统水流量的1-2%选取。
本设计选用孚沐全自动软水器,型号PE-RM-2,处理水量2t/h,罐体尺寸300×1400。软化水箱选用天津澄明环保有限公司生产的方形软化水箱,容积5m³,尺寸2200×1800×1500。
2.补水泵的选择
补水泵的自动补水量按系统循环水量的1%考虑,则补水泵的流量为146×1%=1.46m3/h,补水泵的扬程按补水点与系统最高点的高差加上30~50Kpa的富裕量考虑,则补水泵的扬程为35.3 4=39.3mH2O。
选用两台ISW-200A水泵,一用一备,水泵性能参数如下表:
型号 | 流量 m3/h | 扬程 m | 电机功率KW | 转速 r/min | 效率 % | 汽蚀余量 m |
ISW-200A | 4 | 40 | 2.2 | 2900 | 40 | 2.3 |
8.5膨胀水箱的选择
膨胀水量为
=0.042m3
开式膨胀水箱的有效容积为
=3/60*0.353 0.042=0.06m3
根据以上条件,选择900*900*900的膨胀水箱,公称容积为0.5m3,有效容积为0.6m3 。溢流管管径为DN50,排水管管径为DN32,膨胀管管径为DN40,循环管管径为DN25,信号管管径为DN20。
结 论
我从本次课程设计中收获颇丰。本设计有理论的分析计算,有中央空调方案的选择论证,有实际的绘图安装。是一个完整的工程设计实例。设计计算主要有冷负荷的计算,送风量的计算,管路的计算,热负荷的计算等,是确定室内空调调节方案的主要数据。也是选择冷水机组最主要的参考数据。送风量和管路的计算是面向实际设备和管路的数据资料,都是整个设计的基础。
空调系统方案选择后,基本上确定了空调的形式和内容。本设计选用的是半集中的空调水系统,独立新风加风机盘管系统。空调方案的选择决定了后期设计的方向和内容,是设计中关键的环节。也是综合各个方面的因素制定出来的。
整个设计的理论部分主要集中在前两个部分,实际的安装和设备运行等实际性的工程问题都集中在绘图这个阶段。绘图是把方案完好的实现的一个基础,是工程赖以完成的技术性支持的资料。绘图中要尽量的与工程中实际问题的解决相联系,尽量使方案以一种直观详尽的方式体现出来。这个过程就是方案在成熟完善并且检验的过程,是整个设计中最重要和最有难度的部分。
这次毕业设计虽然结束了,但是我还是存在不小的问题,自己的专业知识,实践经验还是很有限的,在这一方面,在以后的工作中我还是要不停的向老师请教学习、积累相关经验,所以,我我真挚希望各位老师给予批评指正。
设计依据
1.《民用建筑供暖通风与空气调节设计规范》(GB50736-2012)
2.《公共建筑节能设计规范》(GB50189-2015)
3.《实用供暖空调设计手册》陆耀庆主编,中国建筑工业出版社
4.《2009全国民用建筑工程设计技术措施 暖通空调·动力》,中国建筑标准设计研究院
5.《通风与空调工程施工规范》GB50738-2011
6.《建筑设计防火规范》GB50016-2014
7.《汽车库、修车库、停车场设计防火规范》GB50067-2014
8.《暖通空调制图标准》GB/T 50114-2001
9.《办公建筑设计规范》JGJ67-2016
10.《简明通风设计手册》孙一坚主编 中国建筑工业出版社
以上是毕业论文大纲或资料介绍,该课题完整毕业论文、开题报告、任务书、程序设计、图纸设计等资料请添加微信获取,微信号:bysjorg。
相关图片展示:


