液压传动压路机机架强度分析和计算毕业论文
2020-04-15 20:30:13
液压传动压路机机架强度分析和计算
一、续论
1.引言
该毕业设计课题需要掌握机械设计强度计算以及计算机辅助计算等相关的知识,需要查阅机械设计、压路机方面资料。该毕业设计包括了解压路机结构和原理、压路机机架强度计算、压路机机架三维模型建立、压路机机架强度分析计算、压路机机架强度有限元分析计算等方面内容。这次毕业设计需要查阅毕业论文相关领域的资料,了解压路机构造和压路机有关部件计算分析过程,并完成压路机有关部件计算分析模型。
液压传动压路机具有作业深度大,生产效率高,密实度均匀,机动灵活,操作简单、驾驶舒适、视野良好等一系列特点,是大厚度、高密实度基础压实不可替代的产品。由于其压实能力强,平整度好,机动灵活等特点,在今年兴起的道路基础大厚度水稳层摊铺工艺中,成为能即满足压实质量要求又可大大提高生备。并且现代压路机的结构更趋先进、技术性能更趋完善,可靠性进一步提高,附加功能增加,零部件制造和装配工艺得到进一步改善,操作控制系统向全电液操纵和电子监控方面发展,驾驶向舒适性、方便性方向发展,整机给人以爽心悦目的感觉。因此,研究液压传动压路机可以巩固我们所学的知识,并将其运用于实践之中,还能够了解压路机的结构以及其发展,对以后的学习有更大的帮助。
2.文献综述
2.1压路机的定义
压路机是一种工程机械,属于道路设备的范畴。利用碾轮的碾压作用使土壤,路基垫层和路面铺砌层密实的自行式压实机械。广泛应用于筑路,筑堤和筑坝等工程的填方压实作业,可以碾压沙性,半粘性及粘性土壤,路基层稳定土及沥青混凝土路面层。
2.2 压路机的分类
一般的,压实机械可以分为压路机和夯实机械。根据工作质量范围,压实原理和具体结构等的不同,压路机的分类也不同。
2.3 压实原理
振动压实用快速,连续反复冲击土壤的方式来进行压实,压力波从土的表面向深处传播,土壤颗粒处于振动状态,颗粒间的摩擦力被消除,在这种状态下,较小颗粒填充到大颗粒的孔隙中,突然处于体积减小的状态。
2.4 液压传动压路机的发展现状
2.4.1 国外液压传动压路机的发展状况
世界上第一台商品化的压实产品诞生于19世纪60年代初的美国,他是以蒸汽机为动力源的自行式三轮压路机。20世纪20年代末,美国出现了以柴油发动机为动力的自行式三轮压路机;20世纪40年代,德国成功研制出振动压路机,50年代开始应用轮胎压路机。20世纪50年代末至60年代。随着对振动技术的深入研究,振动轴承和橡胶减震器的性能以及制造工艺的不断完善和提高,振动压路机技术得到飞速发展,轮胎驱动铰接式振动压路机和双钢轮串联式振动压路机得以诞生和推广。70年代以后,由于液压传动技术的日益成熟和广泛应用,使得振动压路机实现了全轮驱动,全轮振动,行驶无级调速,振动调频调幅等,无论是产品性能还是施工质量都登上了一个新台阶。进入20世纪90年代以后,机电液一体化技术,压实度在线测量技术,振动轮可变激振方向和可变振动方式的激振机构等核心技术的开发和应用,使得压实技术再一次飞跃。
2.4.2 国内液压传动压路机的发展状况
2003年我国压路机行业继续保持高速增长,国内产销量达1.3万台,同比增长达35%以上。并已形成以静碾压路机、轮胎压路机和振动压路机为主的多系列产品。
现代压路机的结构更趋先进、技术性能更趋完善,可靠性进一步提高,附加功能增加,零部件制造和装配工艺得到进一步改善,操作控制系统向全电液操纵和电子监控方面发展,驾驶向舒适性、方便性方向发展,整机给人以爽心悦目的感觉。现代压路机发展有如下趋势:
全液压驱动,液压传动过程平稳,操纵灵活省力,并且为自动控制创造了条件。特别是压路机的行走静液压驱动,可以大大提高压路机的压实效果。全轮驱动压路机的滚轮既是行走装置又是作业装置。全轮驱动可以克服对压实材料的拥推,产生弓坡与裂纹的缺点,提高了压路机的驱动能力。
压路机的智能化。如德国宝马公司采用的密实度检测管理系统,由自动变幅压实系统(BVM)、变幅控制压实系统(BVC)、全球定位系统和压实管理系统(BCM)等部分组成。在对压路机控制和机器工作状态实施监测的基础上,压路机将实现全面自动化,达到压实作业的最优控制。机器可以按照土质的变化情况不断调整自身各项参数(振动频率、振幅、碾压速度、遍数)的组合,自动适应外部工作状态的变化,使压实作业始终在最优条件下进行。论文格式,压路机。。论文格式,压路机。。并可应用机载计算机,进行工作过程的监测、机器技术状态的诊断、报警及故障分析。瑞典戴纳派克公司开发的CompBase(土石方压实)和PaveComp(沥青摊铺与压实)施工方案软件具有压实过程预测及智能机型和施工工艺选择功能。CompBase软件中包括了戴纳派克压路机在7种土方材料上工作的压实性能。确定土方类型后,选择需要的设备型号,就能获得在一定铺层厚度下达到规定密实度(标准或修正普氏值)所需碾压的遍数。这样施工单位就能算出在规定时间内完成压实所需要的设备数量。
3.论文的主要工作
3.1文献
主要查阅了石来德的《工程机械手册》和《材料力学》第三第四章强度理论来辅助计算分析。
参考了长安大学学报(自然科学版) 2016 第36卷 第5期振动压路机振动轮上机架的偏振分析。
查阅了《有限元法——原理,建模及应用》来了解和运用有限元分析。
3.2压路机的原理和结构分析
液压传动压路机总体结构包括发动机,驱动桥,前后车架,前轮振动轮,后轮胶轮,驾驶室,机罩,液压系统,电气系统,刮泥板及标记安装等部分。
前车架上布置有振动轮组件,刮泥板,前梁。振动轮兼有振动工作装置和驱动轮两种功能。对于振动部分,振动马达通过花键套带动偏心轴旋转,从而激发强大的激振力。对于驱动部分,驱动马达驱动轮边减速器带动振动轮行走,为压路机提供驱动力。刮泥板安装在横梁和前梁上,位置可以调节,保证刮泥效果。牵引车架上布置有动力系统,传动系统,液压泵,驾驶室,操纵系统,电气及液压元件等。为减轻振动对压路机元件和驾驶员的不利影响,在前车架与振动轮之间,车架与驾驶室之间,驾驶员座椅等处均安装起减振缓冲作用的减振块。三级减振功能保证压路机操作舒适,元件可靠性高。
液压传动压路机采用液压传动,可实现无级调速,传动平稳,使得压路机换向和启动更为柔和,轻松,压实表面更加平整,前轮分布质量大,压实效率高。易于实现正反转和转速调节,能实现振动压路机的调幅调频功能,为压实过程的自动控制创造了条件。液压转向也提高了转向的灵活性并减小操作力。同时液压系统的流量容易控制,可与发动机达到最佳的功率匹配,且易于实现过载保护和故障自动警报。操作简单方便,单杆操纵就可以实现压路机的前后方向变换,运行速度调节,激振机构的起振和断开,以及运行方向改变时振动轴回转方向的变化。液压系统内压力的自我平衡及液压管路的相对柔性,使得动力极易分流和长距离传输,驱动力传递方便。液压元件空间布置方便,便于压路机整机结构优化和外观造型设计。
3.4有限元分析计算
有限元分析利用数学近似的方法对真实物理系统进行模拟。利用简单而又相互作用的元素,就可以用有限数量的未知量去逼近无限未知量的真实系统。
有限元分析是用较简单的问题代替复杂问题后再求解。他将求解域看成是由许多称为有限元的小的互连子域组成,对每一单元假定一个合适的近似解,然后推导求解这个域总的满足条件,从而得到问题的解。因为实际问题被较简单的问题所替代,所以这个解不是准确解,而是近似解。由于大多数实际问题难以得到准确解,而有限元不仅计算精度高,而且能适应各种复杂形状,因而成为行之有效的工程分析手段。
二、论文基础
1.压路机介绍
1.1压路机基本介绍
在公路、铁路、机场、水利工程、建筑工程中,压路机主要用于对路基、路面、大堤、围堰、建筑基础等进行压实。
所谓压实,就是通过碾压、冲击等方法,以外力克服土壤、砂石、沥青混合料的颗粒之间的摩擦力、凝聚力进行重新排列,互相之间靠拢、将水与空气挤出,使材料颗粒之间的摩擦力、凝聚力变得更大,被压实材料也就更密实。
压实经过了四个过程:重新排列、充填过程、分离过程与夯实过程。即较大的颗粒重新排列,使它们之间的间隙变小,小颗粒充填到大颗粒这间的间隙中,将间隙中的水与空气挤出,在外力的作用下颗粒碎裂,造成进一步的充填。
造成压实的作用力有以下几种:静压力、冲击力、激振力、振荡力与搓揉力。能产生以上几种力进行压实工作的机器就是压路机。
1.2 压路机的分类
1 按压实原理分:静作用式、振动式、振荡式。
- 按结构质量分:轻型、小型、中型、重型、超重型。
结构质量(T) | 发动机功率(KW) | 适用范围 | |
轻型 | 小于1 | 小于10 | 狭窄地带与小型工程 |
小型 | 1~4 | 12~34 | 维修工程、内槽填土等 |
中型 | 5~8 | 40~65 | 基层、底基层、面层等 |
重型 | 10~14 | 78~110 | 街道、公路、机场等 |
超重型 | 16~25 | 120~188 | 公路、土坝、筑堤、围堰等 |
- 按碾压轮的形式分:光钢轮、振动轮、羊脚轮。
- 按机架分:整体机架、铰接机架。
- 按碾压轮数量分:单轮、双轮、叁轮。
- 按行驶方式分:自行式、拖式。
- 按驱动数分:单轮驱动、双轮驱动、全轮驱动
- 按传动方式分:机械传动、机械液力传动、全液压传动。
1.3 压路机的应用
振动式压路机是利用振动轮的自身重量与振动产生的激振力对被压实材料进行压实。在不同的条件下选用不同型式不同吨位的振动压路机。
- 轻型——狭窄地带或小型工程。
小型——维修工程。
中型——建筑地基、公路面层、路面基层。
重型——路面的面层、基层与填层。
超重型——公路、土坝、筑堤、围堰。
- 根据生产率与工程质量来选取合适的压路机。
由工作量来决定压路机的大小与数量。
由工程质量来决定选取机型:轮胎式、单钢轮、双钢轮,振动与静压等。
- 铺层厚度来选取压路机。
小于60mm的铺层采用低振幅的中小型压路机;大于100mm的铺层就采用重中型压路机;对于填层较厚的土坝、土堤、公路的回填基础则用超重型的振动压路机。
- 施工条件与公路类型。
养护作业、狭窄地区——转向好、机动性好、中小型压路机;
压实要求不高——公路等级低,用机动性好的中重型压路机;
公路干线——公路等级高,用重型、超重型压路机;
路基、基层——用重型、超重型压路机;
堤坝、围堰——用超重型压路机,单钢轮;
人口密度大的地区——中重型,单钢轮;
路面——中重型,双钢轮,轮胎式压路机;
- 土质与地质条件。
砂石材质、混合料——振动压路机;
粘土——羊脚压路机。
- 压路机振动参数选择。
厚层路基——高振幅(1。5~2。0mm)、低频(25~30Hz)。
薄层路面——低振幅(0。4~0。8mm)、高频(33~50Hz)。
1.4 液压传动压路机的特点
压路机是工程机械重要的道路设备。压路机可应用于高等级公路、铁路、机场跑道、大坝、体育场等大型工程项目的填方压实作业。压路机不仅可以碾压沙性、半粘性及粘性土壤,还可进行路基稳定土及沥青混凝土路面层的压实作业。压路机设计涉及机械动力、机械传动、振动、结构强度等方面专业知识。因此选择压路机作为毕业论文的选题对象,对于综合应用大学阶段学习的知识、培养综合分析和解决问题能力具有重重要作用。
1.5 液压传动压路机的优点
压路机为前后轮双驱的全液压传动方式,行走速度和振动频率均无极可调,根据压实对象需要选择需要的振动与行走产生配合。适合于道路、机场、水坝大填方基础和大厚度基础设施的压实和补强作业,具有作业深度大,生产效率高,密实度均匀,机动灵活,操作简单、驾驶舒适、视野良好等一系列特点,是大厚度、高密实度基础压实不可替代的产品。由于其压实能力强,平整度好,机动灵活等特点,在今年兴起的道路基础大厚度水稳层摊铺工艺中,成为能即满足实压质量要求又可大大提高生备。
1.6 液压传动压路机的缺点
在传动过程中,由于能量需要经过两次转换,存在压力损失、容积损失和机械摩擦损失,因此总效率通常仅为0.75~0.8。传动系统的工作性能和效率受温度的影响较大,一般的液压传动,在高温或低温环境下工作,存在一定困难。液体具有一定的可压缩性,配合表面也不可避免地有泄漏存在,因此液压传动无法保证严格的传动比。工作液体对污染很敏感,污染后的工作液体对液压元件的危害很大,因此液压系统的故障比较难查找,对操作、维修人员的技术水平有较高要求。液压元件的制造精度、表面粗糙度以及材料的材质和热处理要求都比较高,因而其成本较高。
2.有限元分析的基本介绍
2.1 有限元分析特点
有限元方法与其他求解边值问题近似方法的根本区别在于它的近似性仅限于相对小的子域中。20世纪60年代初首次提出结构力学计算有限元概念的克拉夫(Clough)教授形象地将其描绘为:“有限元法=Rayleigh Ritz法 分片函数”,即有限元法是Rayleigh Ritz法的一种局部化情况。不同于求解(往往是困难的)满足整个定义域边界条件的允许函数的Rayleigh Ritz法,有限元法将函数定义在简单几何形状(如二维问题中的三角形或任意四边形)的单元域上(分片函数),且不考虑整个定义域的复杂边界条件,这是有限元法优于其他近似方法的原因之一。
2.2有限元分析的基本步骤
1.结构离散
结构离散就是建立结构的有限元模型,又称为网格划分或单元划分,即将结构离散为由有限个单元组成的有限元模型。在该步骤中,需要根据结构的几何特性、载荷情况等确定单元体内任意一点的位移插值函数。
2. 单元分析
根据弹性力学的几何方程以及物理方程确定单元的刚度矩阵。
3.整体分析
把各个单元按原来的结构重新连接起来,并在单元刚度矩阵的基础上确定结构的总刚度矩阵,形成如下式所示的整体有限元线性方程:
{F}= [K]{δ} ┉┉┉┉┉┉┉┉┉①
式中{F}是载荷矩阵;[K]是整体结构的刚度矩阵;{δ}是节点位移矩阵。
4.载荷移置
根据静力等效原理,将载荷移置到相应的节点上,形成节点载荷矩阵。
5.边界条件处理
对式①所示的有限元线性方程进行边界条件处理。
6.求解线性方程
求解式①所示的有限元线性方程,得到节点的位移。在该步骤中,若有限元模型的节点越多,则线性方程的数量就越多,随之有限元分析的计算量也将越大。
7.求解单元应力及应变
根据求出的节点位移求解单元的应力和应变。
8.结果处理与显示
进入有限元分析的后处理部分,对计算出来的结果进行加工处理,并以各种形式将计算结果显示出。
三、基础计算
3.1引言
液压传动压路机具有作业深度大,生产效率高,密实度均匀,机动灵活,操作简单、驾驶舒适、视野良好等一系列特点,是大厚度、高密实度基础压实不可替代的产品。由于其压实能力强,平整度好,机动灵活等特点,在今年兴起的道路基础大厚度水稳层摊铺工艺中,成为能即满足压实质量要求又可大大提高生备。并且现代压路机的结构更趋先进、技术性能更趋完善,可靠性进一步提高,附加功能增加,零部件制造和装配工艺得到进一步改善,操作控制系统向全电液操纵和电子监控方面发展,驾驶向舒适性、方便性方向发展,整机给人以爽心悦目的感觉。因此,研究液压传动压路机可以巩固我们所学的知识,并将其运用于实践之中,还能够了解压路机的结构以及其发展,对以后的学习有更大的帮助。
3.2介绍分析机架
机架是振动压路机的关键结构之一,,发动机,驾驶室,操纵台等均布置其上,牵引车架与压轮框架为铰接式连接。其结构合理性及可靠性对振动压路机有着重要的影响。
3.3 计算过程
初定基本尺寸并选择立柱、横梁的截面形状,机架基本尺寸,主要是指窗口的大小以及立柱和上下横梁的截面尺寸等。
机架的强度计算和变形计算
1) 计算的基本假定
①作用在机架上的外力,只考虑轧制力的作用,并用两个集中载荷取代作用于上横梁圆环面的均布载荷。作用在下板粱上的力为均布载荷;
②视机架为一封闭框架,该框架,由依次连接截面各截面形心而形成;
③机架的变形属于平面变形。
3.4 计算实例
材料为ZG270—500,E=21×106N/cm2,G=8.1×106N/cm2,断面形状系数K=1.2。机架的许用应力:
横梁[
]=50MPa,立柱的[
]=40MPa,轧制力为20MN。
因轧制力为20MN,则每片机架作用力R为其一半,即R=10MN。
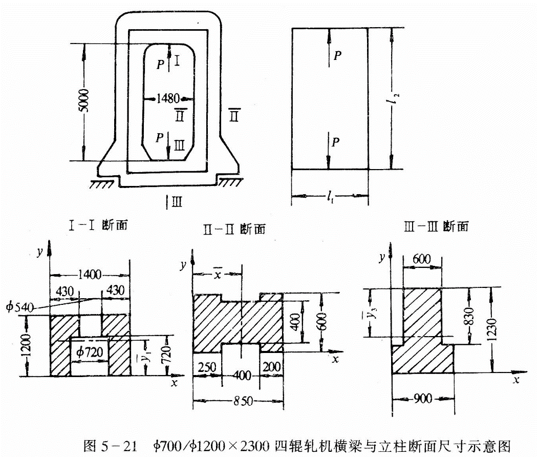
(1)计算机架各断面中性线所在的位置 按图5—21,取横坐标为
轴,取纵坐标为
轴。
设上横梁I—I断面中性线至上横梁下缘的距离为
(上横梁断面形心的位置);下横梁Ⅲ一Ⅲ断面中性线至下横梁上缘的距离为
;立柱II—II断面中性线至立柱内侧边缘的距离为
。
由断面组合图形求形心的公式为

式中
——断面图形的面积矩,
F——断面图形的面积。
I—I断面:对
轴


Ⅱ一Ⅱ断面:对
轴

Ⅲ一Ⅲ断面:同理可得

故可求出机架中性线的位置,即上下横梁的中性线长度为

立柱的中性线长度为

(2)计算上下横梁及立柱的惯性矩和立柱断面面积 以
表示上横梁的惯性矩、12表示立柱的惯性矩、
表示下横梁的惯性矩、
表示立柱断面积。根据惯性矩计算公式
则








(3)计算上下横梁应力 上横梁中间断面弯矩最大,设此处弯矩为
,为简化计算,假设上下横梁惯性矩相等
=
,则静不定力矩
可按式(5—6)计算

机架横梁内表面为压应力

横梁外表面为拉应力

(4)计算立柱应力 立柱上弯矩M,按式(5—7)计算

内侧应力

外侧应力

横梁与立柱应力均小于许用应力,安全。
四、有限元分析
4.1引言
机架是振动压路机的关键结构件之一 , 发动机、驾驶室、操纵台等均布置其上 , 牵引车架与压 轮框架为铰接式连接。其结构合理性及可靠性对振 动压路机有着重要的影响。为此 , 本文以 YZ10 型 振动压路机为例 , 用 SAP5 程序对该机机架进行有 限元应力分析 , 其目的是改善结构、提高设计合理 性 , 为大中型振动压路机的设计方法提供理论依据 和实际参数。
五、总结与展望
随着毕业日子的即将到来,我们的毕业设计也划上了圆满的句号。毕业设计是我们学业生涯的最后一个环节,不仅是对所学基础知识和专业知识的一种综合应用,更是对我们所学知识的一种检测与丰富,是一种综合的再学习、再提高的过程,这一过程对我们的学习能力、独立思考及工作能力也是一个培养。
在没有做毕业设计以前觉得毕业设计只是对这几年来所学知识的单纯总结,但是通过这次做毕业设计发现自己的看法有点太片面。毕业设计不仅是对前面所学知识的一种检验,而且也是对自己能力的一种提高。通过这次毕业设计,我才明白学习是一个长期积累的过程,在以后的工作、生活中都应该不断的学习,努力提高自己知识和综合素质。
我们设计毕业论文就是运用已有的专业基础知识,独立进行科学研究活动,分析和解决一个理论问题或实际问题,把知识转化为能力的实际训练。毕业设计是对我们的知识和相关能力进行一次全面的考核,是对我们进行科学研究基本功的训练,培养我们综合运用所学知识独立地分析问题和解决问题的能力,为以后撰写专业学术论文打下良好的基础。
我认为,毕业设计也是对在校大学生最后一次知识的全面检验,是对学生基本知识、基本理论和基本技能掌握与提高程度的一次总测试。毕业论文不是单一地对学生进行某一学科已学知识的考核,而是着重考查学生运用所学知识对某一问题进行探讨和研究的能力。
毕业设计还能培养我们的科学研究能力,使我们初步掌握进行科学研究的基本程序和方法。我们大学生毕业后,不论从事何种工作,都必须具有一定的研究和写作能力,要学会收集和整理材料,能提出问题、分析问题和解决问题,并将其结果以文字的形式表达出来。我们当代大学生应该具有开拓精神,既有较扎实的基础知识和专业知识,又能发挥无限的创造力,不断解决实际工作中出现的新问题
毕业论文的过程是训练我们独立地进行科学研究的过程。撰写毕业论文是学习怎么进行科学研究的一个极好的机会,有指导教师的指导与传授,可以减少摸索中的一些失误,少走弯路,而且直接参与和亲身体验了科学研究工作的全过程及其各环节,是一次系统的、全面的实践机会。撰写毕业论文的过程,同时也是专业知识的学习过程,而且是更生动、更切实、更深入的专业知识的学习。
毕业设计论文是结合科研课题,把学过的专业知识运用于实际,在理论和实际结合过程中进一步消化、加深和巩固所学的专业知识,并把所学的专业知识转化为分析和解决问题的能力。同时,在搜集材料、调查研究、接触实际的过程中,既可以印证学过的书本知识,又可以学到许多课堂和书本里学不到的活生生的新知识。此外,学生在毕业论文写作过程中,对所学专业的某一侧面和专题作了较为深入的研究,会培养学习的志趣,这对于我们今后确定具体的专业方向,增强攀登某一领域科学高峰的信心大有裨益。所以毕业设计的研究对我们来说,意义非凡。
在此要感谢我的指导老师周杰老师对我悉心的指导,感谢老师给我的帮助。在设计过程中,我通过查阅大量有关资料,与同学交流经验和自学,并向老师请教等方式,使自己学到了不少知识,也经历了不少艰辛,但收获同样巨大。
在整个设计中我懂得了许多东西,也培养了我独立工作的能力,树立了对自己工作能力的信心,相信会对今后的学习工作生活有非常重要的影响。毕业设计的研究期间,我大大提高了动手的能力,使我充分体会到了在创造过程中探索的艰难和成功时的喜悦。在此,我向帮助我的老师和同学们表示衷心的感谢!!!
六、参考文献
[1]杨可桢, 程光蕴. 机械设计基础.机械工业出版社,1999
[2]刘维信. 机械最优化设计. 清华大学出版社,1994
[3]濮良贵, 纪名纲. 机械设计. 高等教育出版社,2002
[4]程志红.机械设计.东南大学出版社,2006
[5] 黄平.现代设计理论与方法.清华大学出版社,2010.
[6]徐灏等. 机械设计手册.机械工业出版社, 1991.


