80kN-m塔式起重机可拆卸式基础节与重复使用基础设计毕业论文
2020-04-15 16:52:59
摘 要
本设计题目是对800kN-m塔式起重机的可拆卸式基础节与重复使用基础设计,设计计算的主要内容有塔身的结构计算设计,塔身受力以及校核计算,抗倾翻稳定性计算等,在设计之前先对塔式起重机的发展历史以及现代的应用以及市场情况未来前景进行的大体的介绍,然后对塔身进行力学受力分析,根据塔身的不同环境下的情况进行了一系列选型工作,根据塔式起重机的不同工况做简化受力分析,确定了所选材料是否能满足使用要求,最后根据塔机自身结构情况,
对机的整体抗倾翻稳定性的五种情况分别进行验算,确定塔机整体的抗倾翻稳定性是否符合要求。
关键词:平头塔式起重机;塔身;基础;稳定性
Detachable foundation section and reusable foundation design of 800 kn-m tower crane
ABSTRACT
This design topic is about 800 kn - m tower crane removable type section and reuse the foundation design, the main content of the design and calculation of the tower structure design calculation, the tower stress and checking calculation of resistance to overturning stability calculation, etc., before the design of the development history of tower crane, and the application of modern market situation and future prospect of general introduction, and then the mechanical stress analysis was carried out on the tower, according to the different conditions of the tower to work in a series of selection, according to the different working condition of tower crane do simplified stress analysis, to determine whether the selected material can satisfy the use requirement,Finally, according to the structure of the tower crane,
Five cases of the overall anti-tipping stability of the tower crane were checked to determine whether the overall anti-tipping stability meets the requirements.
: flat-head tower crane;The tower;Basis; stability
目录
摘要 Ⅰ
Abstract Ⅱ
第一章 前言 1
1.1课题背景及国内外发展现状 3
1.2本课题的目的 4
第二章 整机总体方案 6
2.1 塔机的主要技术参数 6
2.2 起重机的工作级别 7
2.3 机构的工作级别 7
2.4 起升机构选型 7
第三章 塔身计算 10
3.1活动载荷与固定载荷共同作用 10
3.2上部结构与起升载荷的风载荷 12
3.3塔身产生的载荷 13
3.4塔身内力合成 15
3.5塔身的几何特性参数 26
3.6塔身强度计算 29
3.7整体稳定性计算 32
3.8塔身连接螺栓计算 35
第四章 抗倾翻稳定性 37
4.1验算工况 37
4.2抗倾覆稳定性校核 37
4.2.1基本稳定性 38
4.2.2 动态稳定性 39
4.2.3暴风侵袭稳定性 39
4.2.4突然卸载稳定性 40
4.2.5安装拆卸稳定性 40
4.3 地面压应力计算...............................................................................................41
总 结 42
参考文献 43
致 谢 44
前 言
塔式起重机(tower crane)最早出现于欧洲的西部,进过多年的发展,已成为当代建筑施工作业过程中不可缺少的大型垂直机械。在施工机械系列里,它常被用来于升降机搭配使用,相辅相成,完成施工。塔式起重机被赋予了多个名字,人们常听到的塔吊,塔机其实就是塔式起重机。当其他施工机械难以完成城市的高层建筑的建设时,例如高层建筑的内外装修,高楼的建造,桥梁等,这个时候,塔式起重机就可一举完成施工难题。塔式起重机的构成主要是由金属结构、电器系统和工作机构组成,金属结构指的是塔式起重机的塔身动臂和底架等,而起升、变幅、回转行走机构这四个 机构组成了塔机的工作机构,塔式起重机的电器机构主要包括电动机、控制器、配电器、配电柜、连接线路、信号及照明装等。



塔机基础
塔机基础是塔式起重机非常重要的一部分,可以说没有塔式起重机基础为其底部的载荷做最基础的保驾护航,就没有其设计的最基本的安全保障。然而在实际生产和工作中,设计人员常常没有对塔式起重机基完成比较完善的计算校核,因此很多事故也因此产生,有的事故是因为地耐力没有很好的验算,而有的是安装过程得细节问题,导致了事故得发生,事故的原因多种多样,还有一些是因为附件开采的原因导致,过往的惨烈事故至今还历历在目,这要求我们设计人员对基础的安全容不得半点马虎,必须认真对待,这样不仅仅是对自己设计的产品负责,也是对施工人员安全的负责。
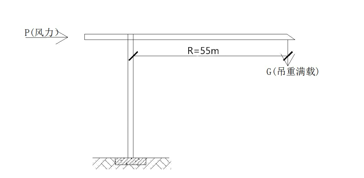
塔式起重机的稳定性是非常重要的,他表示的是一个塔吊抗倾覆的水平,所以这要求我们设计人员
,
的要求,
,
,
,
需要进行不同的设计,
础的做法采取特别的处理,
,
通
,
,尺寸的误差需要严格把控,根据塔式起重机设计规范进行,才能保证设计完成让人放心的设计。地脚螺栓需要在地面上留出足够的长度,每个地脚螺栓需要通过双螺栓预紧,塔吊的基础也不能有积水,也不能随意挖坑或开沟,这样会导致基础的不均匀沉降。对塔身的安全是有非常大的影响的。
1.1课题背景及国内外发展现状
塔式起重机的标准节是由多段构成的,安装在塔式起重机最下面的是基础节,基础节两节到五节不等,安装在基础节上的是标准节,外形相似却有着相当的不同,
,
截



.
50年代初,我国塔式起重机行业才刚刚起步,此时我们从借鉴外国的设计做起,60年代才自行设计之制造了25tm、40tm、60tm的各种不同设计,随着我国经济的不断发展,这对我国的设计水平提出了更高的要求,也敦促着我国的设计师要不断提升自己个人的设计水平,80年代时,我国的塔式起重机行业得到了不小的发展,销售量也一路水涨船高,到2002时,我国甚至成为了全球第一个塔机销售量超过一万台的国家,相比较我国艰难的起步,走来的一路艰辛,这是一个不小的进步,04年之后,由于我国在宏观经济上的调整,塔式起重机产业也有所改变,销量回落了一些,但之后随着我国经济的高速发展,我国塔式起重机的销量又迎来了告诉发展,在06年时我国的销售量以及超过了两万台。
随着社会的不断发展,智能化,数字化不断渗透进人们的生活,人们对智能的要求也越来越高,因为智能化以及极大的改善了人们的生活,所以塔式起重机在这方面也准备迎接着属于自己的进步过程,未来塔式起重机控制系统中若加入了数字监控,这不仅仅能积大的方便了施工人员的时间,也渐少了人力成本,增加生产效率,对企业对社会必然是非常有极大的帮助的,随着厂家社会对数字化的认知不断的提升,数字化智能化必然会进一步普及。
1.2本课题的目的
改革开放以来,国内建筑市场发展速度越来越快,规模越来越大,为国民经济的发展提供巨大的推动力。在繁荣兴盛的建筑行业背后,是一座座重型建筑设备的身影支撑,
工
几乎成为建筑行业的标志之一,在所有施工单位工地中都可以看到它们的影子。
当今中国工业经济处于高速发展时期,建筑工业化和工业现代化的进程中起重机的使用是不可缺少的。
以上是毕业论文大纲或资料介绍,该课题完整毕业论文、开题报告、任务书、程序设计、图纸设计等资料请添加微信获取,微信号:bysjorg。
相关图片展示:









