回转支承装配台设计毕业论文
2020-07-16 20:17:20
摘 要
本文开始先介绍了回转支承装配台的概念、研究的意义以及整体结构等方面的知识,然后介绍了回转支承装配台的国内、外发展现状,最终设计回转支承装配台的五个主要模块,它们分别是工作台支撑模块、动力旋转模块、轴向运动模块、以及力矩测量模块和控制系统。在这篇论文中,详细介绍了回转支承装配台各个模块的设计过程。对每个模块进行设计时,由初始条件以及一些标准先设计计算出一些零件的大概尺寸,设计完成的零件用于约束相关零件的设计。通过行星减速器和齿轮传动机构,确定整个装配台的传动比,并由回转支承装配台所需的输入功率和输入转矩来确定电动机的型号。对主要零件进行校核。各个模块设计完成之后,借助Pro/e 软件对回转支承装配台的各个零件进行建模,并将它们装配起来,用于检验设计是否合理。零件全部按要求装配后,在规定的速度情况下进行运动分析仿真。本次设计出的装配台能够达到企业的要求,所需投资低,性能好,维护方便,组装和拆卸简单,符合绿色产品理念。
关键词:回转支承 工作台支撑模块 动力旋转模块 轴向运动模块 力矩测量模块
Slewing bearing assembly table design
Abstract
This article first introduced the concept of the slewing bearing assembly table, the significance of the study, and the overall structure, and then introduced the domestic and foreign development status of the slewing bearing assembly table, and finally designed the five main modules of the slewing bearing assembly table. They are the worktable clamping module, the power rotation module, the axial movement module, and the torque measurement module and control system. In this paper, the design process of each module of the slewing bearing assembly stage is described in detail. When designing each module, the approximate dimensions of some parts are calculated from the initial conditions and some standard first designs. The parts that are designed are used to constrain the design of related parts. Through the planetary reducer and gear transmission mechanism, the transmission ratio of the entire assembly station is determined, and the type of the motor is determined by the input power and the input torque required by the slewing bearing assembly station. After completing the above work, verify the main parts and verify that they meet their specified strength. After each module design is completed, the various parts of the slewing bearing assembly table are modeled with Pro/e software and assembled to check if the design is reasonable. After all the parts are assembled according to requirements, the slewing bearing assembly table is subjected to motion simulation. The result of the motion analysis simulation at the specified speed indicates that the design can meet the movement requirements of the slewing bearing assembly table. The assembly platform designed this time can meet the requirements of the enterprise, requiring low investment, excellent product performance, easy maintenance, simple assembly and disassembly, and compliance with the concept of green products.
Key words: slewing ring; table support module; power rotation module; axial movement module; torque measurement module
目 录
摘要 I
Abstract II
第一章 引言 1
1.1 回转支承装配台的概念 1
1.2 研究回转支承装配台的目的和意义 1
1.3 国内、外回转支承装配台的发展状况 2
1.3.1 国内回转支承装配台的发展状况 2
1.3.2 国外回转支承装配台的发展状况 4
1.4 总结得出的研究方案 5
1.4.1 装配台的组成 5
1.4.2 方案的优点 6
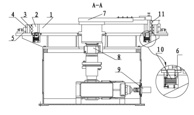
第二章 回转支承装配台设计过程 7
2.1 要装配回转支承的参数 7
2.2 工作台支撑模块的设计计算 9
2.3 动力旋转模块的设计计算 14
2.4 力矩测量模块的设计计算 24
2.5 轴向运动模块的设计 28
2.6 底座的设计 38
2.7 电动机的选型设计计算 42
2.8 螺栓、螺钉、螺母的选择 44
2.9 回转支承装配台成本预算 44
2.10 回转支承装配台的总装图 47
第三章 回转支承装配台的Pro/e装配仿真过程 48
3.1 利用Pro/e进行装配的意义 48
3.2 回转支承装配台Pro/e装配过程 48
3.2.1 底座等固定零件模块的装配 48
3.2.2 动力旋转模块的装配 50
3.2.3 轴向运动模块的装配 52
3.2.4 力矩测量模块的装配 53
3.2.5 各个模块的组装成型 54
3.3 回转支承装配台Pro/e动力仿真过程 55
第四章 回转支承装配台的电气控制电路设计 57
4.1 西门子S7-200 PLC的介绍 57
4.2 回转支承装配台的PLC控制电路程序设计 57
第五章 总结与展望 60
5.1 总结 60
5.2 展望 61
参考文献 62
致谢 64
第一章 引言
1.1 回转支承装配台的概念
回转支承装配台是近些年发展比较快的一种装配机器,对回转支承产品进行装配。,回转支承的需求量不断提高。回转支承是近些年快速兴起发展的一种重要机械零件,有外齿式回转支承、内齿式回转支承和无齿式回转支承,能够承受较大的综合载荷。为了把这种大型的回转支承组装起来,在早些年,都是通过人工繁琐的、一步一步的进行装配,但是,这种传统的低效率、低质量的人工装配方式已经不再适合高速发展的今天,因此,近些年回转支承装配台发展很快[1]。
回转支承的一般使用直径尺寸为0.4-2米,它的结构紧凑、传动精度平稳。对于不同的工作状态和运行要求,回转支承有不同的结构型式。因而回转支承装配台也是各式各样,特定的装配台,通常用来装配特定样式的回转支承。
1.2 研究回转支承装配台的目的和意义
(1)提高生产效率
相关图片展示:








        
            
