新能源汽车电池散热器CMT焊接自动化治具设计开题报告
2020-02-20 10:03:01
1. 研究目的与意义(文献综述)
随着生活水平的日益提高,现代人的出行大都离不开汽车,与此同时人们开始注重保护环境与节约资源,这为新能源汽车的发展提供了动力与机遇,正是这样,目前新能源汽车正蓬勃发展,然而新能源汽车的发展伴随着众多关键性技术的突破,其中最重要的便是电池系统的研究与完善,而新能源汽车电池的散热系统又占有相当重要的地位。
动力电池是新能源电池系统的核心,散热充分则是降低电池温度,避免积热过多引发电池热失控。如果说电池温度急剧升高到300℃,即使隔膜不融化收缩,电解液自身、电解液与正负极也会发生强烈化学反应,释放气体,形成内部高压而爆炸,所以采用适合的散热方式至关重要。 新能源动力电池组中的散热系统,能够起到为新能源动力电池组降温的目的。
新能源动力电池散热方式有风冷、水冷和直冷三种。风冷模式中,散热系统利用利用自然风或风机,配合汽车自带的蒸发器为电池降温;水冷模式中,一般会将散热器与制冷循环系统耦合起来,通过制冷剂将电池的热量带走;直冷模式中,散热系统利用制冷剂蒸发潜热的原理,在整车或电池系统中建立空调系统,将空调系统的蒸发器安装在电池系统中,制冷剂在蒸发器中蒸发并快速高效地将电池系统的热量带走,从而完成对电池系统冷却的作业。
2. 研究的基本内容与方案
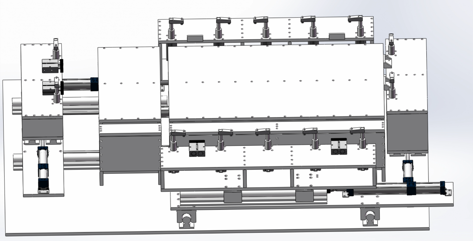
本文提出的新能源汽车电池散热器cmt焊接自动化治具如图2-1所示。
	
图2-1 新能源汽车电池散热器cmt焊接自动化治具
3. 研究计划与安排
第1周至第2周,英文文献查询与翻译;
第3周至第4周,项目调研,确立研究对象,分析新能源汽车电池散热器cmt焊接自动化治具相关国内外研究现状;
第5周至第7周,治具的机械结构、关键零部件选型和动作行程规划设计;
4. 参考文献(12篇以上)
[1] 波峰焊接工艺中治具的设计 周慧玲; 韩彬; 檀正东; 周旋; 史建卫 电子工业专用设备 2014-06-20.
[2] 佟雪松.电池模块cmt焊技术研究[j].科技创新与应用,2018(28):162-163 166.
[3] 谭立勇,于洪辉.汽车cmt焊焊接质量分析与控制[j].机电技 术,2018(05):57-60.

        
            
