通用门式起重机结构设计开题报告
2020-02-20 09:59:03
1. 研究目的与意义(文献综述)
起重机械是一种能在一定范围内完成物料升降 和运移的机械,它是现代工业中实现生产过程机械化、自动化。提高劳动生产率的重要的物料搬运设备,广泛应用于工厂、矿山港口、车站、建筑工地、电站等生产领域。由于起重机械在物料教运过程中涉及生命安全、其有较大危险性,因此起重机械属特种设备。国家对起重机械的生产、使用、检验检测等环节实行监督。
起重机械的工作过程具有周期循环、间歌动作的特点。一个工作循环般包括上料、运送、卸料及空车复位四个阶段,在两个工作循环之间有短哲的停歌。起重机械工作时,各机构经常处于启动、制动或正向、反向等交替运动的状态。
从整体功能上看,一般情况下,起重机可以看作是由机械部分、金属结构部分和电气控制三大部分组成的。机械部分主要实现起升、运行、回转和变幅等动作,分别由相应的起升机构、运行机构、回转机构和变幅机构来实现:金属结构部分是起重机械的躯干,具有支撑零部件的作用:电气控制部分的作用是对机构的动作进行驱动和控制。
2. 研究的基本内容与方案
2.1本课题所设计的主要内容
(1)通用门式起重机的主要技术参数
通用门式起重机的技术参数表征起重机的作业能力,通用门式起重机的主要技术参数包括起重重量、跨度、悬臂长、起升高度等。这些参数表明通用门式起重机的工作性能和技术经济指标,它是设计起重机机的技术依据,也是生产使用中选择起重机技术性能的依据。
主要设计参数如下
l 起重重量:(t)32/5
l 跨度:(m)22
l 有效悬臂长:(m)4
l 起升高度:(m)12
(2)通用门式起重机的机械结构设计
起重机主要由门架、大车运行机构、起重小车和电气部分等组成。主要完成使货物升降的起升机构;作平面运动的运行机构;使吊钩来回运动的小车运行机构。
图1 起重机简图
(3)传动方案设计
根据起重机的实际工作情况,传动可行性方面考虑,拟选择其传动系统部件组成为:
l 主起升机构传动方案初步设计:
电动机—联轴器—减速器—驱动卷筒
l 副起升机构传动方案初步设计;
电机—联轴器—减速器(制动器)—卷筒
l 大车运行机构传动方案初步设计
电动机—联轴器(制动器)—减速器—联轴器—车轮
l 小车运行传动方案初步设计:
电动机—制动轮联轴器—减速器—车轮
(4)起重机总体设计
起重机是以反复短暂的工作循环方式完成货物装卸或设备安装作业的。一个工作循环包括:取物、货物上升、水平运动、下降、卸载,然后空吊具返回原地。一个工作循环时间般从几分钟到二三十分钟,其间各机构在不同时刻有短暂的停歇时间。这特点决定了电动机的选择和发热计算方法;由于反复起动和制动,各机构和结构将承受强烈的振动和冲击,载荷是正反向交替作用的。 每机构均由电动机、减速传动系统及执行装置等组成。设计时应尽可能采用标准的零部件加以组合,以利于制造和维修。金属结构则要根据使用要求进行设计制造。电动机和控制设备大多是标准产品。
2.2 本课题所设计拟采用的技术方案
(1)总体方案设计:
本设计起重机结构如图二所示,由门架、小车运行机构、起升机构、大车运行机构四部分组成。

图2 总体设计
为满足不同场地、货物的需要,达到设计所需要的起吊重量的需要,最大程度节省材料等成本消耗,设计使用L型单梁门式起重机。此L型单梁门式起重机可以在门架平面内的竖直、水平方向运动与大车运行机构的来回往复运动,以满足货物在空间范围上的运动需要。单梁处的悬臂可以最大程度的利用场地,使之满足装卸,抓取的需要。
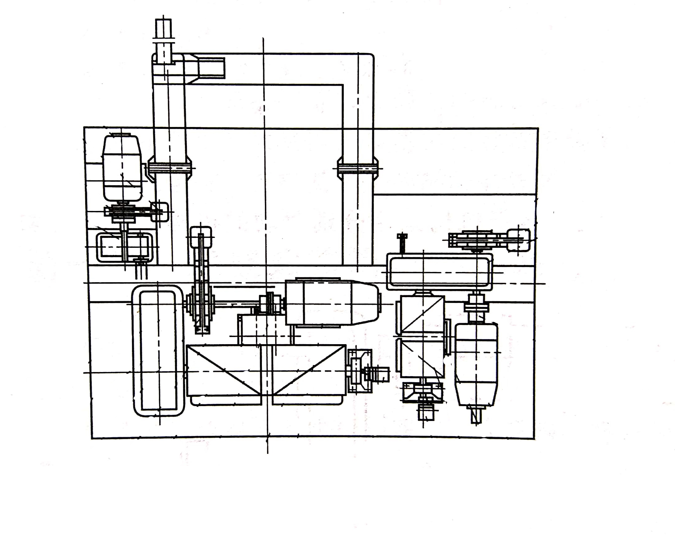
(2)传动方案设计
传动方案应满足设计的功能要求,如传递速率大小、工作平稳、传动效率较高、结构简单、使用维护方便等特点。

图3 传动方案设计
A. 主起升机构传动方案:
起升机构的额定起重量为32t,主要传动结构如下(见图3):电机通过联轴器与减速器连接;同时,考虑到传动的安全性,制动器靠近减速器一侧;减速器到卷简的传动是通过卷筒联轴器实现的;卷筒上安装有起升高度限制器;滑轮组采用双联卷筒。
B. 副起升机构传动方案:
副起升机构的额定起重量为5t,主要传动机构如下(见图3):为了紧凑布置起升机构,副起升机构与主起开机构整体相垂直;电机与减速器的连接处采用了联轴器直接连接;滑轮组采用双联卷筒;由于起重量为较小的5t,因此吊钩采用单钩的结构。
C. 小车运行机构传动方案
当起重量为20-50t时,常采用水平滚轮式小车运行机构(见图3),小车自重和物品重量引起的倾覆力矩由反滚轮与主、从动车轮组所组成的力偶承受。
D. 大车运行机构传动方案
该起重机的大车运行机构采用分别驱动的机构形式,传动路线为电机—联轴器(制动器)--减速器—联轴器—车轮,如图四。
图4 大车运行机构
| | |
| | |
3. 研究计划与安排
第1-3周:完成开题报告和英文翻译;
第4-6周:完成毕业设计相关内容的总体方案设计;
第6-8周:完成毕业设计相关内容的详细方案设计;
4. 参考文献(12篇以上)
[1] 朱绘丽,安林超. 起重机械[m]. 北京:化学工业出版社,2017.
[2] 张质文. 起重机设计手册[m]. 北京:中国铁道出版社,2013.
[3] 纪宏. 起重与运输机械[m]. 北京:冶金工业出版社,2012.


