基于光纤光栅的卡箍松动状态监测毕业论文
2020-02-19 19:01:59
摘 要
管路是液压系统中传输工作流体的管道,是现如今广泛运用在油汽化工、工程建筑、航天航空等领域的重要的运输工具。管路状态的安全对工业、产业的重要性不言而喻。
夹具在管道支撑中起着重要作用。日常管路的应用,伴随频繁的高温高压、流体冲击、剧烈的外界震荡等因素,经常导致卡箍松动、管路震动,进而使管路磨损、弯曲、断裂等严重事故。为避免此类情况,针对管路的状态监测和对状态信号处理分析是管路运行监测的重要工作。但是,传统的检测技术已经不能满足液压管道动态检测的需要。因此,为了突破传统检测技术的局限性,研究了一种基于光纤光栅传感的液压管道动态检测方法。光纤光栅应变测量主要是由纤维芯的折射率随双折射的变化引起的。通过移动或漂移波长间接地获得光栅反射的中心。利用光纤的光学特性,实现了光纤的光学应变测量,最后得到应变。
本文主要针对管路松动的特性,以油液管路为模拟实验的对象,利用FBG光纤光栅传感器采集管路松动信号,对其信号的特征进行数据分析研究。
关键词:光纤光栅,管路卡箍,松动检测
Abstract
Pipeline is the pipeline that transmits workflow in hydraulic system, and it is an important transportation tool. Nowadays, it is widely used in the fields of petrochemical industry, engineering construction, aerospace and aviation. It is self-evident that the safety of pipeline state is of great importance to industry and industry.
The clamp plays an important role in supporting and fixing the pipeline. Daily pipeline application, accompanied by frequent high temperature and pressure, fluid impact, severe external shocks and other factors, often lead to clamp loosening, pipeline vibration, and then pipeline wear, bending, fracture and other serious accidents. In order to avoid this kind of situation, state monitoring and signal processing analysis for pipelines are important work for pipeline operation monitoring. However, the traditional detection technology can not meet the needs of dynamic detection of hydraulic pipelines. Therefore, in order to break through the limitations of traditional detection technology, a dynamic detection method of hydraulic pipeline based on fiber Bragg grating sensor is studied. Detecting the looseness of pipeline is an important basis to ensure the normal operation of pipeline system. The strain measurement of FBG is mainly based on the measurement of stress. The refractive period of the fiber core varies with the change of birefringence index. The wavelength of the FBG reflection center shifts and drifts indirectly. The optical strain measurement of optical fibers is realized by using the optical characteristics of optical fibers. Finally, the strain is obtained.
In this paper, aiming at the characteristics of pipeline loosening, taking oil pipeline as the object of simulation experiment, FBG fiber Bragg grating sensor is used to collect pipeline loosening signal, and the characteristics of its signal are analyzed and studied
. Key Words:FBG, pipe clamp, loosening detection
目录
第一章 绪论 1
1.1 课题设计来源 1
1.2 研究背景与意义 1
1.3 相关领域国内外发展现状 2
1.3.1 光纤光栅传感技术现状 2
1.3.2 管路检测技术现状 4
1.3.3 常规管路监测方法介绍 5
1.4 论文主要内容组织结构 5
第二章 分布式布拉格FBG与管路研究 6
2.1 光纤光栅传感技术综述 6
2.2 光纤光栅组成与分类 7
2.3 光纤光栅传感原理简介 9
2.4 对管路系统检测的现状 9
2.5 对液压管路系统的检测技术和方法 10
第三章 光纤光栅监测管路松动实验 11
3.1 实验目的 11
3.2 实验方案设计 11
3.3 实验装备和材料 12
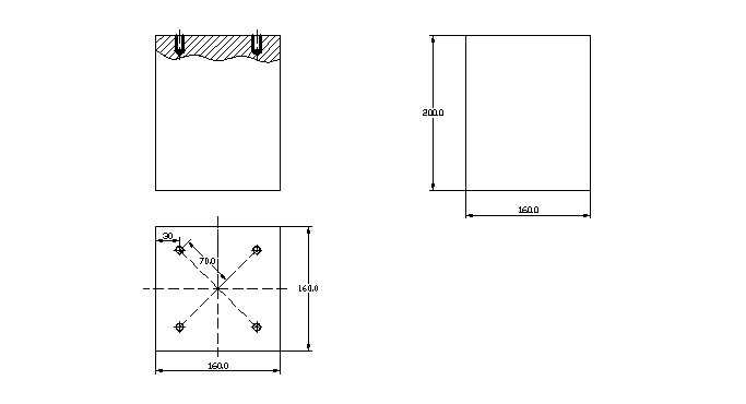
3.3.1 实验台绘制与建模 13
3.3.2 实验台装配 17
3.3.3 粘贴光纤光栅传感器 18
3.4 实验原理和步骤 18
第四章 实验结果与数据分析 20
4.1 统计学量计算与数据分析 20
4.2 实验数据分析 26
第五章 结论总结 27
5.1论文总结 27
致谢 28
参考文献 29
附录 30
第一章 绪论
1.1课题设计来源
本次设计题目来自《管理系统》
1.2 研究背景与意义
自上世纪初以来,随着科学技术的迅速发展,对航空航天,船舶运输,石化,工程建设安全性能的要求不断提高。管路系统主要包括连接支撑件、固定元件、密封件和卡箍等,作为传输液压油、空气、石油、天然气、滑油等介质的重要载体。随着电子设备的故障诊断技术不断发展和应用,管路监测理论与技术迅速发展,目前已在石油化工、工程建筑等管道的监测中取得成功。然而,目前,在液压管路系统的检测中,传统的检测技术如电阻应变仪,压电加速度传感器和超声波等主要用于国内外。为液压管道的检测,监测,设计和动态特性研究奠定了基础。然而,由于世界上目前传统的传感器,在抗电磁干扰方面能力不够强、长期稳定性差、系统集成度复杂,分布式布局困难,信号传输距离有限。液压管道系统的动态检测不能为流体管道动力学研究和状态监测提供强有力的工具。实验数据支持严重限制了液压管道系统的可靠性分析,优化设计和故障。主要靠人工进行现场检査,不能及时发现和排除泄露故障,容易影响管路的正常运行,而且对于复杂的管路系统研究较少,尚没有较为成熟的应用技术。管路系统因为其本身液体的震荡冲击,加上工作环境的恶劣性、复杂性(比如船舶上的管路一般在潮湿、振动的环境下,很容易造成腐蚀和泄漏;飞机液压管路系统容易磨损甚至断裂)由于温度、振动等原因造成管道松动断裂,使得介质泄漏,从而发生故障,造成财产损失、甚至民众伤亡,这一实际问题困扰着液压系统设计师,因此,当今环境下对于管路松动的 FBG监测研究变得非常关键,颇有重大的理论意义和项目工程价值。
1.3 相关领域国内外发展现状
1.3.1光纤光栅传感技术现状
光纤传感技术是20世纪80年代初开发的一种新技术,是一种新型的传感器技术。随着光纤的不断完善和光纤通信技术的蓬勃发展,FBG已成为光波信号的长距离传输介质,并首次应用于光通信技术。然而,全世界很快就认识到光纤对环境因素如温度变化,压力振动,电场变化和磁场非常敏感。因此,光学参数的变化,例如强度,相位,频率等,是影响通信质量的主要因素之一。很快提出了光纤传感的概念,包括频率和极化。通常,温度,应变和压力是直接影响FBG波长的独立变化的物理量。20世纪90年代西方研究人员Morri等人。已经开发了一种在紫外光侧写入光敏光栅的技术。Morri还首次研究了FBG的振动应变和温度传感特性。FBG反射波长的温度灵敏度和应变灵敏度分别为1.1×10nm / c和1.2×103nme。1993年,马格迅等人从各方面分析了FBG在均布压力下的传感特性。下表列出了光纤传感器的一些应用及其当前的技术发展水平。
表1-1 光纤光栅传感器的应用和目前水平
但是上述实验,FBG对许多物理量的反应相对较低,因此故而使用了多种封装技术目的是想提高FBG的响应灵敏度。Magser等。然而,由于光纤光栅在压缩过程中容易损坏,因此这种封装方法具有某些缺点。目前,人们对各个领域的光纤传感器进行了深入的研究,这导致了光纤传感技术的快速发展。例如,在航空和航天器的振动压力、石油化工、高压输电网电流、电压测量等电网行业、温度变化传感等在部件,声波导航,核工业辐射剂量和原子能站泄漏剂量监测等技术领域已经获得了广泛的建设性研究成果。
光纤棚传感技术作为光子学研究领域的一项新技术,近年来受到广泛关注。各国研究人员积极开展相关研究工作。温度,应变,压力,位移,压力,扭转角,扭矩(扭转应力),加速度,电流,电压,磁场,频率,浓度,热膨胀系数,振动等其中一些已在实践中得到应用。目前,基于光纤布拉格光栅( FBG)的传感器是基于长周期光纤光栅的研究和开发的主流( LPG)和啁啾光纤布拉格光栅( CFG)传感器也引起了人们的兴趣。
表1-2典型的光纤布拉格光栅传感器的研究现状
1.3.2管路检测技术现状
国外学者对管道系统问题的研究始于19世纪后期,取得了较为完善的理论成果。几十年来,国内外对管道监测的研究已经开展。可以及时发现管路故障,减少事故发生,节约修理费用,保证运输效益,降低泄漏对环境的影响。
在上个世纪末,英国的Pinitu提出了研究空管和充液管的轴向和对称功率流测量方法的过程。组合加速度传感器和聚偏二氟乙烯传感器以测量空管和液体填充管的振动能量传递规律。2001年,Herland等人。每个麦克风轴向放置在感兴趣的管的任何横截面上。同年,澳大利亚学者使用加速度传感器测量不同位置的流体管道的瞬态响应。然后,通过最小二乘法确定每个圆周模式的极坐标角,并获得每个横截面上的每个圆周形状的轴向,周向和径向加速度分量。最后,使用FLVGE薄壁壳理论计算系统的总功率流和组件。功率流。此外,密歇根州立大学Pavek等人。通过布置麦克风来测量空间倾斜压力和压力谱,获得了德国新闻等研究人员的矩形截面流管的声功率流。
近几十年来,大多数国外学者研究了单管道系统振动特性的研究,结果相对丰富。人们在管道系统的理论计算和有限元模拟技术的研究方面取得了很大的进步。然而我国在对管路研究的方面,起步相较于西方大国稍微偏晚,从上个世纪80年代末开始,之前几十年的研究,中国的许多学者也开始对管道系统进行大量的研究工作,取得了很好的研究成果。中国对液压管道系统的研究仍主要偏向于简单管道数学模型的推导和简单管道的有限元模拟。
自20世纪70年代以来,在美国,英国和法国等国外进行管道研究的国家已经开始研究管道泄漏监测,效果显着。由美国Houston Acoustics Systems公司开发的声学泄漏检测系统由多个传感器,解码器和无线发射器组成。该系统适用于气液管道,多相,多类产品和网络管道的监测。天津大学采用负压波法检测和定位泄漏系统。基于LabVIEW的开发平台,系统可以使用修改后的压力波速度公式在泄漏范围内做出反应。
随着液压管道故障诊断技术的发展,监测技术受到越来越多的关注。中国的许多大学和企业都在研究管道泄漏的判断和位置。清华大学与油气集输公司联合开发的长距离管道泄漏监测系统采用负压波监测和定位泄漏。同时,采用小波变换方法和相关分析方法判断泄漏。
1.3.3常规管路监测方法介绍
随着计算机软硬件技术,信号通信技术,人工智能和传感器技术的快速发展,目前世界上管道的监测和定位技术包括:基于信号处理的泄漏监测定位方法(负压波法,压力梯度法,流量平衡法,压力点分析法),基于模型的泄漏监测和定位方法(故障模型法)和基于人工智能泄漏监测与定位方法(神经网络方法,模糊逻辑方法)。根据监控过程中使用的不同测量方法,流水线监控方法可分为基于硬件和基于软件的方法;根据测量和分析的不同媒介,可分为直接监测方法和间接监测方法;根据监控过程中监控设备的位置,可分为内部监控方式和外部监控方式。
1.4 论文主要内容组织结构
- 绪论 研究背景与意义 相关领域的国内外发展
- 光纤光栅传感技术综述 光纤光栅传感原理简介与分类
管路研究现状与技术简介
- 实验目的 实验方案设计 装备与材料 实验台建模图纸 实验台装配
粘贴光纤光栅传感器 实验原理步骤
- 统计学量计算 数据分析 实验结果与总结 实验中的缺陷和问题
- 论文总结
第二章 分布式布拉格FBG与管路研究
2.1 光纤光栅传感技术综述
传感器的基本功能是将某些输入的变化转换为相同或其他能量(信号)的单一变化。随着20世纪80年代光纤通信技术的快速发展,光纤传感技术基于光波。光纤是介质,光纤是传感介质,是一种将测量信号传输到外界的新型传感技术。
光纤布拉格光栅是一种新型传感器系统类型,光纤作为光信号的传输介质,会受到光照强度、相位差值、压力振动、温度,应变,压力,位移,压力,肩角,扭矩(扭转),加速度,电流,电压,磁力等等因素的影响。FBG温度传递过程中的频率,浓度,热膨胀系数,振动等,温度,压力,加速度,电压、电流、位移、运动、旋转、弯曲、应变、化学量等外部因素也会影响参数。光纤可以使用这些物理或化学量来基于光学社会参数的变化来检测测量参数的变化。与传统的电传感器相比,光波充当被测信号的载体。光学液体不会引起融合干扰,也不会受到电磁干扰。它可以通过各种光学探测器轻松接收并转换成电光器件。
除了普通纤维的特性外,纤维还具有一些独特的性能。光纤带宽,宽动态范围,光纤棚的出现使得许多复杂的全光通信网络和传感器网络成为可能。它极大地扩展了光纤技术的应用范围,并产生了许多重要的应用,如遥测和遥控。FBG是一种优秀的低损耗器件。损耗传输线:光纤本身属于二氧化硅,玻璃绝缘,贴片占用空间极小,质量不大,韧性好。光纤光栅本身具有很强的抗辐射性和耐腐蚀性,特别适用于易燃,易爆,化学腐蚀等恶劣环境。光纤布拉格光栅FBG传感是光子学研究领域的一项新兴技术,近年来受到广泛关注。目前,世界上主流的研究过程是光纤缺陷是传感器技术发展的关键方向。
光纤FBG传感器作为一种具有自身独特优势的新型传感器,已进入适用阶段,逐步在复杂传感领域创造了新的分支。它不仅适用于高、细、前沿领域,也适用于传统工业领域。产品创新,充满活力。但是,光纤FBG传感技术目前还不能满足实际需要,但还有其他方法。例如,某些光纤FBG传感器的物理量会受到诸如光源波动,光纤传输损耗变化和探测器故障等因素的影响。进一步完善敏感元件的制造工艺和结构,探索新的传感机制,充分发挥微处理器技术和设计的作用。安装部件的功能可以改善和补偿光纤传感器的性能。开发了一种新型的数字集成,自动化和工程传感系统。已经开发出用于大规模干燥应用的光纤智能传感器和新型光纤传感器。从那时起,对光纤光栅及其应用的研究迅速传播到世界各地。光纤布拉格光栅和光纤光敏技术的制备取得了新的进展,其制备工艺得到了改进和完善。随着对光纤光栅更深入的探索,光纤光栅的优势慢慢表现出来,如造价便宜、稳定性上佳、所需空间小、很大程度免疫电磁干扰等,特别是,它由光纤制成,易于与光纤结合,形成全光学的一维光学。可能的光子积分。随着世界光纤光栅的不断探索,FBG在掺杂FBG放大器技术后成功发展成为光纤领域的又一次重大革命。
2.2 光纤光栅组成与分类
目前,光纤光栅FBG可以从光纤光栅FBG光波方向的角度,根据波长的周期性的分布和波长周期的长度大致分为四种类型。即光纤布拉格光栅,闪耀光纤光栅,啁啾光纤光栅和长周期光纤光栅。除了上述四种主流的 FBG外,之前十几年,人们发现在四种基本光栅类型的基础上,它可以分为各种衍生光纤光栅类型,即超结构光纤光栅,相移光纤光栅等。
目前,人们对各个领域的光纤传感器进行了深入的研究,这导致了光纤传感技术的快速发展。例如,航空航天(压力,温度传感,陀螺仪),声波导航,石化(液位,流量),电力工业(高压输电网络的电流和电压测量),核工业的辐射剂量和原子能发电站泄漏剂量监测)、现代医疗设备、 B超和血压流量、天文地理研究、人工皮肤感触等技术。在技术领域取得了大量的研究成果。光纤传感器主要由三部分组成。除了光纤之外,还必须有两个重要部件:光源和光电探测器。

图2-1 光纤传感的组成
光纤布拉格光栅(FBG:光纤布拉格光栅是世界上最常用的主流FBG光纤光栅。光纤布拉格光栅FBG的折射率通常呈现恒定的周期性排列,即调制深度和FBG周期是恒定的,并且光栅光波矢量方向与光纤轴相同。当光束通过光纤光栅FBG时,它可以匹配FBG相所需的光以产生强反射;对于与FBG相位要求不匹配的光,由于光波的相位不匹配,只有一部分光被反射回来。目前,这种光纤光栅已广泛应用于通信和传感领域。光纤布拉格光栅的折射率分布和透射反射特性如图2-2所示。
图2-2 光纤布拉格光栅的折射率分布和透射反射特性
以上是毕业论文大纲或资料介绍,该课题完整毕业论文、开题报告、任务书、程序设计、图纸设计等资料请添加微信获取,微信号:bysjorg。
相关图片展示:









