塑料袋食盐横封器的结构设计毕业论文
2020-02-19 18:57:20
摘 要
横封是在产品的包装过程中的一个非常重要的步骤,是让塑料薄膜能够成功成型变成塑料袋的关键的一步。所以横封器是让塑料袋能够成型的包装设备中的不可以缺失的一个机构。横封器的封合能力的好与不好还有它的封合速度的快慢对整个产品包装机的工作能力的好与不好有着非常重要的作用。针对食盐的塑料袋包装的横封结构进行研究设计,目前的包装机械上用的比较多的横封器的主要为往复式、旋转式和旋转往复式横封器这三种种类的横封器。通过对比这三种类型的横封器的优缺点,最后选择类型为旋转往复式的横封器来进行结构设计。通过对旋转往复式横封器进行结构设计和三维建模,设计出一种结构较为简单,运动较为稳定的旋转往复式横封器。
关键词:包装;横封器;食盐;袋成型;旋转往复式
Abstract
Horizontal sealing is a very important step in the packaging process of products. It is a key step for plastic film to be successfully shaped into plastic bags. Therefore, the transverse sealing device is an indispensable mechanism in the packaging equipment for plastic bags to be shaped. The performance and efficiency of the transverse sealing device play a key role in the performance of the whole product packaging machine. The transverse sealing structure of salt bag packaging is studied and designed. At present, the main types of transverse sealing devices used in packaging machinery are reciprocating transverse sealing device, rotary transverse sealing device and rotary reciprocating transverse sealing device. By comparing the advantages and disadvantages of these three types of transverse seals, the type of rotary reciprocating transverse seals is selected for structural design. Through the structural design and three-dimensional modeling of the rotary reciprocating transverse seal, a simple structure and stable movement of the rotary reciprocating transverse seal is designed.
Key words: Packaging; Transverse Sealer; Salt; Bag Forming; Rotary Reciprocating
目 录
摘要.......................................................................Ⅰ
abstract...................................................................Ⅱ
第1章 绪论 1
1.1 背景及意义 1
1.2 国内外现状 2
1.3 横封器概述 5
第2章 横封器 6
2.1 横封器类型 6
2.1.1 往复式横封器 6
2.1.2 旋转式横封器 7
2.1.3 旋转往复式横封器 7
2.2 横封器的组成 7
2.2.1热封部分 7
2.2.2 动力部分 8
2.3 小结 8
第3章 横封器尺寸设计 9
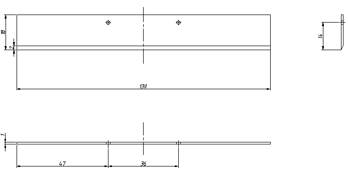
3.1 食盐袋尺寸 9
3.2 切刀尺寸 9
3.3 热封板尺寸 10
3.4 齿轮 12
3.4.1 齿轮尺寸 12
3.4.2 齿轮校核 14
3.5 齿条 15
3.5.1 齿条尺寸 15
3.5.2 齿条校核 16
3.6 支架 18
3.6.1 支架1 18
3.6.2 支架2 19
3.6.3支架3 20
第4章 动力装置选择 21
4.1 气缸的选择 21
4.1.1 小气缸 22
4.1.2 气缸 22
4.2 电机的选择 23
第5章 装配体 25
5.1 装配体 25
第6章 设计总结 27
参考文献 29
致 谢 30
- 绪论
- 背景及意义
包装是产品或者说商品流入市场,然后被顾客所选择的一个十分重要的条件,而现在实现包装的主要方式是使用包装机械。伴随着人们生活的世界的不断演化,各种生产能力的革新,包装机械在包装领域中正变得越来越重要,不能忽视。其主要作用分别有:一是能够十分有效的提高商品的产生速度。工人们直接用手进行包装要比用机器进行包装要慢得多,效率可以提高几十倍;二是能够有效地保证包装质量。机械包装可根据人们对包装的物品的要求,按照所需要的大小以及形状,得到尺寸相同的包装品,而工人们直接用手进行包装的话,这一点是无法得到保证的;三是能够实现工人们直接用手进行包装无法实现的操作。有一些包装操作,比如对产品进行贴体操作、在灌装时要求等压、要求在袋子里冲入氮气、要求袋子里没有空气等,这些都是只能用机器来进行包装的,只靠工人们手动操作包装是无法实现的;四是能够有效减少工作量,提高工作的速度。比如说工人们用手来包装重量比较重,体积比较大的商品,这时候工人们在用手进行包装时既比较浪费体力,同时也非常得不安全。而对于体积比较小的商品,由于工作量比较大,动作也比较枯燥单一,所以容易使包装工人心里出问题。所以机械包装的出现与发展是历史的必然;五是能够有利于工人们的健康安全。对于某些可以严重影响到身体健康的产品,比如对人有各种不好的影响的化学产品,有气味非常重的产品、有非常易碎的产品,如果让工人们直接用手来进行包装将很难避免出现危险,而机械包装却可以不用考虑这些不利因素;六是能够降低包装产品所需要的成本,节约储存或者运输原材料还有商品的费用。对于比如毛巾、衣服、废纸、床单等松散原料或产品,如果对它们进行压缩打包,可以明显地缩小体积,从而降低包装商品以及运输的成本;七是能够保护商品的饮食安全。比如吃的食物、喝的饮料、病人需要的医药的包装,从法律上来说是禁止用人工操作来进行包装的,因为这样会污染产品。例如粉末包装机是一种使用包装纸将粉末进行小量包装的包装机器[1],如果用手进行包装,粉末可能会散得到处都是,而且也十分的不卫生。而用机器来进行包装就不会让工人们直接接触到食物、饮料等,从而保护了饮食的安全。比如将已经杀完菌的食品在没有细菌的环境中进行包装,放在没有污染的包装中叫食品的无菌包装[2],这样才能保护食品的饮用安全;八是能够让其它的与之有关的产业更快的进步。包装机械是包括工艺、加工、设备、电子、电器等多个领域的一个复杂的专业。它需要各个领域之间的知识相互交织在一起,只有各个领域的技术一起进步,大家相互监督,共同努力,包装才能发展的越来越好。任一某一个领域的不足都将拖累整体的发展与进步。所以包装的进步就意味着各个领域都有不小的进步。
只完成一定的包装或着所有的包装全部都完成的机器就叫做包装机械。包装的步骤一般有统计数量或重量、把商品装到包装容器里、对商品进行环体包装、对包装容器进行密封、把许多的商品固定在一起等一些步骤,还有其它的一些步骤,比如把商品洗干净、确保商品里没有细菌、把商品的一些多余的水分蒸发掉、把同一种商品放在一起、把放在一起的商品分开来、在商品表面留下文字图画和粘上商标等等。有非常多的类型也是包装机械的一大特点。从各种不一样的角度来看包装机械可以有很多种不同的分类方式。按照被包装物的形态来看,有对饮品进行包装的、有对大固体进行包装的、有对小固体进行包装的、有对半固态商品进行包装的;按照包装的位置来看,有紧贴着商品进行包装的、有对小包装物品再进行包装的;按照被包装物的种类来看,有包装吃的、有包装用的、有包装生活必需品的;按照同时进行包装的数量来看,有只同时包装一份商品的、有同时包装多份商品的;按照智能程度来看,有需要有一部分由人工完成的、有可以全部由机器完成的等等。例如能够有一部分由机器完成包装或者是全部由机器完成包装的机器就叫作自动包装机[3]。包装机械应该划分在轻工业机械中,因为其包装的产品种类和应用场所繁多,使得其包装机械种类繁多和结构复杂,而且新型的包装机械会随社会的需要以及发展而不断出现,所以很难将他们的组成分类。但是包装机械是有它们的相同之处的,那就是都有包装容器的整理和提供装置、产品的数量或重量的统计和传输装置、整体的运输装置、对产品进行包装的装置、最终商品的传送装置、制动装置和输送装置、智能装置和机架八部分组成。
目前包装机的进步方向是包装速度越来越快、包装的质量越来越好和智能机械包装[4]。大多数的包装机械的结构比较复杂,运动速度比较快,动作精度比较高。为了满足包装产品的性能的要求,对包装机的零部件的强度、刚度还有尺寸精度以及表面质量等都有比较高的要求。进行包装工作时因为对产品施加的力一般都不大,所以机器在进行包装时动力装置的输出都不大。为了可以在一定的范围内随意的改变机器的工作能力,改变机器的在单位时间内生产商品的数量,包装机械通常都会用哪个随意改变速度的机构。为了能够保护饮食安全,为了人们能够吃到安全、放心、对身体无害的东西,所以用于医药还有饮食包装的包装机器要方便于用水或者其它专门用于相关清洁的东西来洗干净,同时与医药还有饮食碰着的地方要用专门制成的东西才能够触碰。
现在的社会的正在不断的发展,人们的生活质量也在不断的提高,包装与人们之间的关系正在变得越来越密切,人们与包装的距离正在不断的缩小,人们对包装的要求也变得越来越高,所以现有的一些包装设备也越来越不能满足人们的需求。为了回应人们的需求与期望,包装行业正在不停的努力,努力改进现有的包装设备或者研发新型的包装机械来满足时代与人们的需求。
- 国内外现状
在2009年,中国包装机械所生产的产品的价值已经达到了一万亿元[5]。根据《中国包装机械伺服系统行业市场调研与发展前景分析报告》显示,在2011年这一整年当中,包装的专用的设备的制造业的销售收入总金额超过了两百三十亿元,同比以往增长了超过四分之一,超过了相关业的普遍能力。在2012年的1月份至9月份,包装的专用的设备的制造业的销售收入总金额超过了一百七十亿元,同比增长超过了七分之一,超过相关业的普遍能力。而且在2012年这一整年,全国的包装机械的生产能力超过八万五千台,同期的增长超过了七分之一。
世界上最大的物品制造和物品输出国家现在已经是中国的特点之一。就在现在,所有国家的的注意力也放在了数量最多、产品更新最快、预计发展速度最快的中国包装机械行业。但是尽管国内的包装机械的发展潜力巨大,可是像单机机械化能力不足、稳定性比较差、可靠性比较差、机架外型不怎么漂亮、寿命也比较短等问题也让国内的包装机械产品表现得不怎么好,人们对现有的包装机械并不满意。同时可以看到包装机械行业中存在大量的矛盾得不到有效的解决。有很多的企业无法及时、有效的应对形势的变化,他们的运营和发展的思想观点与现实中的形势发展并不一样。公司的技术创新的能力比较弱,工艺技术的研发速度也比较慢。新产品的研发思路还没有从原来的先模仿再改进的思维方式中走出来,竞争力并不够强,公司的收入、效益的增加仍然主要靠大的规模来维持。此外,还存在着一些包装企业的管理比较粗放,没有相应的规划,没有办法来把管理落实到每一个人。并且他们的对商品趋势的预测能力不够准、对自己的要求不够高、对未来的计划与执行能力也还不够强,基本没有跟踪调查商品去向、满足顾客的要求的想法,以及发展不够着急、对公司也不够上心。一些包装企业还存在着对识人不明和用人不对的问题,并且对商品的发展趋势不能与一个准确的预测等情况出现。对于有对企业不好的情况出现这件事,重要的是改变旧的想法,要与时俱进。包装企业所需要做的事是放弃旧的不好的习惯,从新的角度去思考问题并且找到解决问题的方法,而这就需要改变一切的一些不好或者说不对的观点,在研发上面多多下功夫,多做一些实地调研,只有这样抱着企业才能改变旧的不足,获得新的活力并且有更长远的发展。包装企业要想不停地发展下去,就需要不断地求变,世界在不断地变化,行情在不断地变化,包装企业也需要不断地变化以适应时代的发展。全国乃至于全世界的包装机械的未来就是要不断地改革、研发更新的、更好的机器。研发更多的新技术,推进旧技术的普及化,攻克一个又一个的难关,让越来越多的技术能够被人们所使用。随着一个又一个困难被克服,包装机械就能得到长远的发展,甚至是突破性的发展。自动化与智能化将会在包装机械越来越多的地方得到体现。因为人们生活水平的提高,人们的消费水平也在提高,新的商品在不断地出现,而这对包装机械的要求变得越来越高,与此同时,包装机械也对于人们来说变得越来越重要。对包装机械的要求越来越高,越来越严格,所以能够机器自己机械进行加工、机器自己能够自行判断情况、机器的能力越多越好、机器的工作速度越快越好、包装过程中的损失越少越好的包装设备越来越受到包装企业的喜欢。包装机械的能力越来越强。机器自行完成工作的部分在包装机器中已占了一半以上,利用智能控制以及气动控制和电动控制,增加机器生产产品的速度、增强包装机械的稳定性和功能多样性,设计精密的机构来完成一些复杂的工作。每个单独的机构都是由电脑单独操作,并且时时注意包装机器的工作并且及时传输到控制系统来不断地修正机器的工作,从而让包装机器的质量不会出现大的波动。包装机械是一个正在蓬勃发展的行业。国外的包装机械生产制造能力比较高的国家主要有美国、德国、日本、意大利和英国等。欧洲的一个国家的包装机械在研发、生产和工作能力等方面均要高于全球大部分的国家。包装机械的改进的方式是研究并且攻克一些小的问题,然后量变产生质变,完成某个机器部分的革新,再积少成多,最后完成研发制造一个新的标准机械的目标,使得同一个产品的制造速度、机器的生产能力、机器的包装速度、机器的整体等得到了新的提升。这样的机器的大部分零件不至于失去了作用而被更换,从而让机器的成本得到降低,与此同时,因为机器的能力得到提高,所以需要的工人的数量变得更少,使得企业的成本降低。现在的包装机械的状况显示包装机械的机器的制造生产、产品的生产正变得更加的有规则、更加的有条理性、机器的功能变得越来越多、越来越全面、同时还能做到相互配合。包装机械身上所具备的功能变得越来越普及,同时不断的有新的技术运用在包装机械身上。越来越严重的行业要求将会让包装机械行业在困境中不断地突破自我,取得更好更高的成就。
根据调查结果,在2014年,世界上的所有包装产品的价值将达到新的高度,超过五千两百亿美元,其生产值的提升速度将会大于世界的平均生产提升的速度。根据中国有关部门的统计,中国的包装机械的生产值依旧保持着每一年六分之一左右的提升速度[8]。从近些年开始,中国的包装机械的研发速度有着不能忽视的速度的加快,为包装机械的提高提供了不可或缺的帮助。其中,电脑控制包装印刷可以普遍的应用到商品与网络的连接中、新技术防止假冒商品、新技术用来辨认不同的商品等大量新技术之中,且拥有接触面柔软、对人与环境无害、成本比较少等大量优势,人们对此技术乐于接受,因此该技术将拥有巨大的潜力与进步空间。现在这些年,因为包装原料的不断地研发、智能自动化的提高、电脑的研发和智能机器等相关技术的研发与突破,使得包装机械得到了一定的进步与充足的潜力。第一代智能包装技术的原理是光线感应与信息传递,关键点在于通过光线感应解决一系列需要解决的问题,其主要的是只采取一种技术。而与第一代智能包装技术不同的是,第二代智能包装技术将多种新型技术结合在一起,使其成为一个有序的整体,使人们更喜欢新的包装,使人们使用机器时感觉到十分的舒服自然,使得智能包装能够更加积极地展现其独有的特点。截至2018年,中国有关智能包装的专利申请数量共567件。最近3来,中国包装机械的研发与改革的速度在变快。根据某一个相关部门发布的《中国智能包装行业发展前景预测与投资战略规划分析报告》统计数据显示,2016年中国包装机械行业专利申请数量得到“爆发式”增长,同比增长了4.4倍,达到了136件。而后的两年内依然保持,专利申请数量依然保持高位,均在150件以上。到了2017年中国智能包装行业专利申请数量增长至155件,截止至2018年中国智能包装行业专利申请数量达到151件。
在原创发明专利方面,智能包装的发明专利数量也得到快速增长。2010-2018年,智能包装行业内发明专利申请数量占比总体有增长趋势,2018年发明专利占比提高至42%;此外,自2016年以后,发明专利数量同样得到明显增长,2018年发明专利申请数量为63件。现在的包装机械的目标是包装速度越快越好、包装质量越好越好和机器的功能越多越好。同时国外的包装机械行业的发展已经比较成熟,例如机械生产水平比较发达的美国、德国、意大利和日本,都形成了自己的包装机械体系并且正在向着专业化发展,生产出了很多在国际市场上拥有极高的竞争力的包装机械产品。
- 横封器概述
横封是包装机的一个重要步骤,袋成形包装中的一个关键工序就是横封。纵封机构下一步一般就是包装机的横封机构,它的作用是让装有物料的经过纵封的袋子横向密封。本课题主要针对食盐的袋式包装的横封进行研究。塑料袋装食盐横封器应该满足以下基本要求:1)必须可靠地完成横封动作;2)不会损坏塑料袋及酱汁;3)遵循小型、轻量、高校的原则,力求结构简单。其任务的完成需要的准备工作有:(1)充分了解各类横封器的结构和驱动方式;(2)充分理解现有袋装食盐横封器工作原理及存在的问题。

以上是毕业论文大纲或资料介绍,该课题完整毕业论文、开题报告、任务书、程序设计、图纸设计等资料请添加微信获取,微信号:bysjorg。
相关图片展示:









