钢混组合梁界面连接机理研究毕业论文
2020-04-10 16:45:27
摘 要
钢混组合桥梁研究已取得了较大的发展,钢混组合桥梁中混凝土收缩徐变效应分析已开始引起了关注。对钢混组合梁桥,组合结构中的混凝土的收缩和徐变便始终存在着,而由于组合结构结构对混凝土的变形的敏感性,凝土的收缩徐变效应分析便是钢混组合结构分析中必不可少的一部分。
本文依托某座钢混组合梁桥工程,采用有限元软件对钢混组合梁桥的收缩及徐变效应分别进行了分析。
首先,论文综述了钢混凝土组合梁收缩徐变的国内外研究现状,并介绍了收缩徐变的基本理论和影响因素。
然后运用Midas/Civil有限元软件建立钢混组合梁桥全桥模型,分析徐变对全桥的挠度及应力影响规律,并根据计算结果对预拱度设置提出了建议。在此基础上运用 Midas/Civil软件建立钢混组合梁桥的负弯矩区段缩尺模型,通过控制湿度,预应力张拉值及混凝土强度等参数分析钢混组合梁桥徐变作用的影响因素及影响规律,基于影响规律提出设计和施工的建议。
最后,运用ANSYS有限元软件建立钢混组合梁桥缩尺简支梁模型,分析了收缩对于混凝土桥面板的应力影响规律及相关的影响因素,并对实际设计和施工提出建议。
关键词:钢混组合连续梁桥;有限元;收缩徐变;参数分析
Abstract
Research on steel-mixed composite bridges has achieved considerable development. The analysis of the spatial mechanical behavior of steel-concrete composite bridges and the analysis of concrete shrinkage and creep have begun to attract attention. For steel-concrete composite girder bridges, the shrinkage and creep of the concrete in the structure always exist, and due to the sensitivity of the composite structure to the deformation of the concrete, the analysis ofthe shrinkage and creep of the clay has beenThe essential partofthe analysis of the steel-concrete composite structure.
This article relies on a certain over-the-line steel-concrete composite girder bridge project, using finite element software to analyze the shrinkage and creep effects of the steel-concrete composite girder bridge.
Firstly, this paper reviews the research status of shrinkage and creep of steel-concrete composite beams at home and abroad, and introduces the basic theory and influencing factors of shrinkage and creep.
Then use Midas/Civil finite element software to establish the full-bridge model of steel-concrete composite girder bridge, analyze the influence of creep on the deflection and stress of the full bridge, and make recommendations on the setting of pre-camber according to the calculation results. Based on this, Midas/Civil software was used to establish a scale model of the negative bending moment of the steel-concrete composite girder bridge. The influence of the humidity, prestressed tension value and concrete strength on the creep of the steel-concrete composite girder bridge was analyzed. Factors and influencing laws, proposals for design and construction based on the law of influence.
Finally, using the Ansys finite element software to establish a simplified bridge beam model of steel-concrete composite beam bridge, analyzes the effect of contraction on the stress of concrete bridge deck and related influencing factors, and put forward suggestions for actual design and construction.
Key words: steel-concrete composite continuous beam bridge; finite element; shrinkage creep; parameter analysis
目录
1.1引言 1
1.2钢混组合梁收缩徐变国内外研究现状 1
1.3本文研究目的及主要研究内容 2
2.1基本概念 4
2.1.1混凝土的收缩 4
2.1.2混凝土的徐变 4
2.2收缩徐变的影响因素 5
2.2.1混凝土收缩影响因素 5
2.2.2混凝土徐变影响因素 5
3.1工程总体概况 6
3.2有限元模型的建立 6
3.2.1基本假设 6
3.2.2 模型验证 7
3.3.3模型概述 8
3.4徐变分析结果 9
3.5本章小结 13
4.1钢混组合梁负弯矩区段缩尺模型概况 14
4.2 有限元模型的建立 14
4.3徐变影响因素分析结果 15
4.3.1 混凝土强度 15
4.3.2 张拉控制应力 17
4.3.3 环境湿度 18
4.4本章小结 20
5.1有限元模型的建立 21
5.1.1 有限元材料参数 22
5.1.2 有限元建模 23
5.2钢混组合结构收缩作用分析 24
5.2.1钢混组合结构收缩作用的应力变化规律 24
5.2.2 钢箱梁顶板厚度对收缩的影响 25
5.2.3 混凝土板纵向配筋率对收缩的影响 25
5.2.4 混凝土板厚度对收缩的影响 26
5.3本章小结 28
结论 29
展望 29
参考文献 31
致谢 32
第1章 绪论
1.1引言
钢混组合桥梁结构是继钢结构和混凝土结构之后的一种新型结构形式。通过剪力连接件将钢梁与混凝土板形成整体共同工作,钢混组合桥梁结构巧妙地发挥混凝土材料抗压和钢材料抗拉的优点,充分利用了材料特性。钢-混组合桥梁结构减小了结构高度和结构自身重量、提高了结构的跨越能力和承载力。施工时节省架设模板的工序和所需模板的总量,加快了施工速度,总体看来具有很好的结构特性和施工效率。与同等强度的钢结构方案相比,钢混组合桥梁结构可在节省百分之二十至四十钢材用量的同时使主梁挠度减小百分之三十至五十;钢混组合桥梁结构同时具有良好耐高温性和耐腐蚀性,结构中混凝土翼板的侧向约束,提高了梁的稳定性和整体性,并且能明显减小车辆行驶噪音。与混凝土结构相比,它大大减轻了结构自重,降低了地震作用带来的影响,提高了结构的强度和延性,降低了基础造价。鉴于钢混组合桥梁结构诸多优势,钢混组合桥梁已成为目前国内外高速公路常规桥梁建设中重点发展与应用的桥型。
这种新型的钢混组合结构实现了钢材与混凝土材料相互之间的取长补短,但由于钢材与混凝土在材料特性上的巨大差异。在通过剪力连接件将这两种不同的材料形成整体,共同工作之后,钢混组合结构任何一种材料的变形都会受到另外一种材料的约束,从而产生相互作用,引起结构内力的变化——即应力重分布,并在结构中产生附加变形。收缩徐变是混凝土材料固有的一种体积随时间变化的行为。收缩只与混凝土本身材料特性和周围介质相关,与本身受到的应力无关;而徐变是在不变荷载的持续作用下,混凝土结构的变形随时间不断增加的现象。收缩徐变对混凝土结构长期受力性能和变形影响很大,收缩徐变导致的混凝土变形在组合结构之间产生了相互约束作用,引起上述结构内力变化和附加变形,从而影响钢混组合桥梁结构的安全性和稳定性。而对于预应力结构,徐变引起的预应力损失导致负弯矩区的钢混组合梁变形增加,混凝土桥面板开裂等不利效应对结构的耐久性和长期受力与使用性能是极为不利的。对于钢混组合桥梁结构,结构中的混凝土的收缩和徐变便始终存在着,而由于组合结构结构对混凝土的变形的敏感性,混凝土的收缩徐变效应分析便是钢混组合桥梁结构研究中不可或缺且不容忽视的一部分
1.2钢混组合梁收缩徐变国内外研究现状
1989年,吉尔伯特使用有效弹性模量基于混凝土龄期进行调整的方法计算了钢混组合桥梁结构的徐变效应; 1991年,布拉福德编制了组合结构收缩徐变效应的计算程序,并分析了组合结构收缩徐变效应中的荷载加载时间与挠度之间的关系;1992年,罗瑟等在钢和混凝土均为线弹性材料的假定下,采用蠕变速率法分析了压弯组合梁结构;1995年,吉尔伯特与布拉福德分析钢混组合连续梁负弯矩区混凝土开裂和收缩徐变而产生的附加变形和预应力钢混组合梁的粘弹性分析,建立了收缩徐变作用下的钢混协同作用关系方程;1996年,安吉洛马塞洛提出了一种关于Flexible shear connector的组合梁连续组合梁的简化时变分析方法。1997年,安德鲁和布拉德福提出了有效弹性模量基于混凝土龄期进行调整的刚性与柔性剪力连接组合梁各自的收缩徐变效应的简化算法
国内对于对钢混凝土组合梁的相关研究进行的较晚,且研究对象多集中在组合梁的短期空间力学行为,对钢混组合桥梁收缩徐变作用下的长期受力性能的研究相对较少。
2001年,周履通过组合梁截面内力分解推导出了钢混组合结构因收缩徐变产生的结构内力变化的计算公式;2003年,薛伟辰在对预应力钢混桥梁结构长期受力性能试验的基础上,推导出了预应力组合桥梁结构的蠕变刚度矩阵和蠕变力向量,并编制了相应的时变分析程序;2004年,吴冲考虑组合结构中混凝土的收缩徐变行为,分析计算使用折减后的弹性模量对大跨度箱梁截面钢混组合斜拉桥的混凝土收缩徐变应力;2005年,邱文亮等提出了有效弹性模量基于混凝土龄期进行调整的方法部分剪力连接钢混组合梁收缩徐变分析的简化有限元模型;王广连等编制了考虑徐变的粘弹性分析数值模拟程序;程海根通过假定钢混组合界面间的滑移为线性,推导出了组合梁正截面的微分方程;2008年,谭文辉等基于现有的理论和公式,考虑选取了混凝土收缩徐变和组合梁滑移等影响挠度的主要影响因素,推导出了考虑组合梁非线性滑移情况下的结构变形计算公式。2009年,樊健生和聂建国在组合梁试验的基础上,研究了在裂缝开展情况下的混凝土收缩徐变对钢混凝土组合梁长期力学性能影响情况。
1.3本文研究目的及主要研究内容
钢混组合梁桥因其充分发挥了钢材和混凝土良好的力学性能并且具有极大社会经济效益,在桥梁结构等各个领域得到了越来越深入的发展。随着钢混组合结构的广泛应用,研究组合结构设计施工过程中存在的问题也成为不可避免的内容,在保证结构安全稳定性得的同时取得更大更高的社会经济效益。混凝土的收缩徐变效应引起的混凝土变形在钢混组合结构中产生了混凝土与钢箱梁应力应变随时间变化的现象,收缩徐变使结构整体的刚度减小,变形随时间增加,降低了结构的跨越和承载能力,因此应充分考虑设计和施工中收缩徐变对钢混组合结构的长期受力性能的影响。由此可见,研究带来钢混组合梁桥收缩徐变效的应力及挠度变化规律是必要的,在此规律的基础上来做出相应改善措施,减小收缩徐变产生的不利影响,使结构具有更好受力与变形性能,提高耐久性与适用性。
本文针对某座钢混组合桥梁工程实例,基于Midas/Civil及ANSYS有限元软件,针对不同的有限元软件及研究对象,采用不同的建模方法和边界条件,对钢混组合桥梁混凝土徐变效应进行数值分析,得出徐变作用下的钢混组合梁桥的徐变规律。同时,结合该钢混组合梁桥负弯矩区段的缩尺模型,通过变化混凝土强度、湿度、张拉控制应力、配筋率及构件厚度等参数,总结各参数变化对钢混组合桥梁的收缩徐变效应的影响规律。
第2章 混凝土收缩徐变理论
2.1基本概念
2.1.1混凝土的收缩
混凝土的收缩是混凝土本身所固有的材料特性,是混凝土在凝结硬化的过程中因为水分减少,温度降低冷缩及体内化学反应产生的水化生成物的体积比反应前要小等因素导致最终混凝土体积缩小的现象,收缩是与荷载无关,混凝土的结构变形随着时间的改变而改变,是一种时变现象。收缩除去温度作用后的主要形式有塑性收缩、自生收缩、碳化收缩和干燥收缩四种。
2.1.2混凝土的徐变
混凝土的徐变是指在不变的持荷作用下,混凝土的结构变形随着时间的增加也不断增加的现象。徐变根据产生原因可分为基本徐变和干燥徐变两种。不变荷载作用下不计水分转移发生的混凝土体积变化称为基本徐变; 不变荷载作用下试件干燥时的随时间改变而改变的变形则称为干燥变形。
通常用徐变系数、徐变度、徐变函数三个参数来描述混凝土的徐变大小:
(1)徐变系数:混凝土的计算龄期为,加载龄期为时,混凝土因徐变产生的变形与瞬时弹性变形的比值。
式中 ——计算龄期为t,加载龄期为时徐变产生的变形
——瞬时弹性变形
根据混凝土弹性模量选取的对应龄期不同,将徐变系数分为两种不同的定义方式,第一种徐变系数以混凝土t龄期时的弹性模量进行定义,即:
徐变函数的另一种定义以龄期为28天时的混凝土弹性模量为基准:
式中 ——常应力从时刻开始作用至t时刻时混凝土产生的应变
——混凝土龄期为28天时的弹性模量
——混凝土龄期为天时的弹性模量
——徐变系数
(2)徐变度是指混凝土加载龄期为时,单位应力在计算龄期t时刻产生的混凝土徐变应变,一般用表示。对于前述的两种不同定义方式的徐变系数,徐变系数和徐变度之间的关系为
不变的轴向单位应力,在龄期为t时产生混凝土的总应变,一般用符号表示。对于两种不同表达模式的徐变系数,对应的徐变函数采用如下方式表达:
2.2收缩徐变的影响因素
2.2.1混凝土收缩影响因素
(1)混凝土材料
包括选用的水泥品种、掺和料和骨料的品种及用量、混凝土配合比对收缩的影响
(2)混凝土介质条件
温度变化、相对环境湿度和覆盖在混凝土表面的介质都会对收缩产生影响
(3)养护条件的影响
高压及低压蒸汽养护对比普通的常温养护都一定程度地减少了混凝土的干缩应变。
(4)混凝土龄期的影响
收缩的速率在较早的混凝土龄期时较快,收缩的速率在龄期到达90天后逐渐减小
(5)混凝±构件特征的影响
与构件的尺寸及形状有关,一般采用构件理论厚度衡量该因素的影响程度。
2.2.2混凝土徐变影响因素
(1)混凝土材料
同混凝土的收缩效应相似,水泥品种、掺和料和骨料的品种及用量、混凝土水灰比、水浆比以及外加剂都对徐变产生影响
(2)荷载
荷载的加载大小与加载时间会对混凝土徐变产生影响
(3)相对湿度
混凝土水分流失随着环境相对湿度的增加趋于严重,徐变也相应较大
(4)构件尺寸
构件的几何特性对混凝土的失水具有影响,也在一定程度上影响徐变的大小
第三章 钢混组合梁有限元模型的建立
3.1工程总体概况
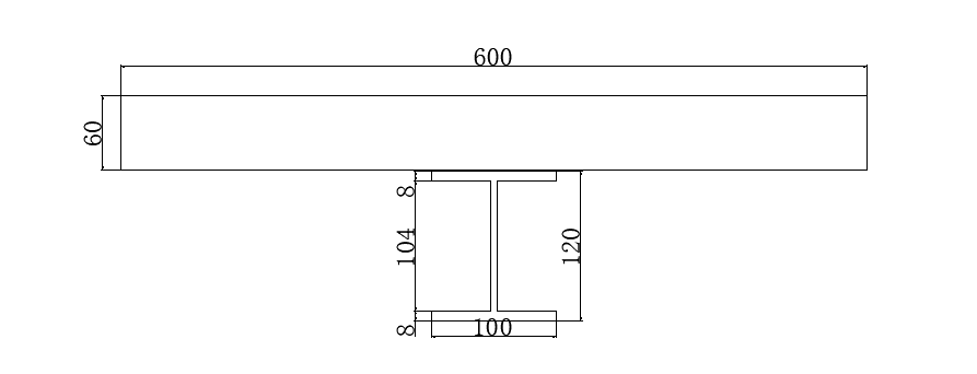
某高速公路跨线桥总长108m,跨境布置20 30 30 20m。桥梁横向分两幅,南北桥幅各宽12.235m。组合梁高1.55米,宽12.235m。上部结构采用单箱双室开口钢箱(槽型钢)—混凝土板组合截面,钢梁高1.2m,桥面板厚0.25m。桥梁总体布置图如图3-1,组合梁的截面形式如图3-2所示

图3-1 桥向总体布置图(单位:cm)

图3-2 组合梁截面图(单位:mm)
3.2有限元模型的建立
3.2.1基本假设
本桥梁采用有限元计算程序Midas/Civil来建立模型,在满足计算精度的前提下,对实际工程结构进行简化,并做出适当的假定
在本文建立有限元模型的过程中,做出的假定和简化如下:
假定:(1)考虑正常使用状态下,材料呈弹性状态;
(2)受拉和受压时材料的弹性模量保持一致;
简化:(1)采用联合截面法来模拟在组合梁中钢箱梁与桥面板发挥的作用;
(2)不考虑混凝土桥面板中普通钢筋的影响;
(3)使用联合截面的单元材料使用重度为0的C50材料,并将钢箱梁与桥面板的自重等效为梁单元均布荷载添加在单元上
3.2.2 模型验证
在Midas中应用联合截面法建立钢混组合梁单元,在SPC截面特性计算器中导入截面,基于换算截面法,按照混凝土翼缘板总力不变及应变相同条件,换算出钢等价的换算截面。将组合梁作为以换算截面为梁截面的整体单元进行计算分析。
为了验证联合截面法的可靠性,选取参考文献中实验模型,实验模型截面如图3-3所示,模型跨度两米,混凝土板采用C20混凝土,钢材采用Q235钢,在跨中位置逐级加载。本验证利用联合截面法建立相同尺寸、边界条件和加载形式的有限元模型,有限元模型如图3-4所示。通过计算后对比荷载-跨中挠度曲线,有限元模型与实验模型曲线在线弹性阶段误差不超过10%,因此认为可以使用联合截面法模拟钢混组合梁的受力特性,两个模型的荷载-跨中挠度对比曲线如图3-5所示
以上是毕业论文大纲或资料介绍,该课题完整毕业论文、开题报告、任务书、程序设计、图纸设计等资料请添加微信获取,微信号:bysjorg。
相关图片展示:









