极端荷载条件下混凝土桥梁安全性能评价毕业论文
2020-02-19 16:31:20
摘 要
近年来,随着我国经济的高速发展,我国的基础设施建设正大步向前,中国共产党第十九代表大会明确把交通运输业的发展定为我国今后的主要发展战略之一。在基础设施大力发展的浪潮下,桥梁的设计和建造也正在如火如荼的进行,目前我国已建成的桥梁就有80多万座。梁桥、拱桥、悬索桥等各类桥梁百花齐放,桥梁材料也是越来越多,钢筋混凝土、砌石、钢材等也是百家争鸣,目前我国使用最广泛的还是钢筋混凝土。同时,随着国家“一带一路”战略的提出和大力推行,中国桥梁的建设正逐步走向“一带一路”沿线诸国,“基建狂魔”的称号已经成为世界认识中国的一道靓丽的名片,桥梁也已经成为中国走向世界的一项重要枢纽。然而随着经济的大力发展,国内汽车行业在我国国力不断增强的浪潮下更是发展迅速,由此带来的车辆超载问题屡禁不止。对于一些已经建成的桥梁,实际汽车荷载可能比当初桥梁设计时采用的汽车荷载大许多,再加上其他诸多因素的影响,我国桥梁安全事故屡屡发生,由此导致的人身安全和财产的损失更是无法估量。在此情况下,对桥梁进行安全性能评估就显得非常必要了。
梁式承台具有较好的力学性能,特别是其跨越能力要显著优于普通承台,因此梁式承台在我国桥梁的设计和建造中使用非常广泛,是我国桥梁的重要构件之一。对梁式承台进行分析,从而对其进行准确的安全性能评估,这也是桥梁安全评估的重要内容之一。
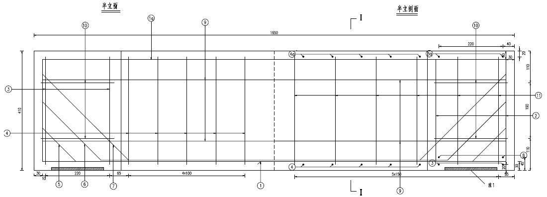
本文以对宝丰路硚口路快速化改造工程中26#地梁为对象,设计并制造26#地梁的缩尺模型,用ABAQUS对26#地梁的缩尺模型进行建模和有限元分析,得出26#地梁缩尺模型的极限承载力,再对26#地梁的缩尺模型进行极限承载力试验,得出试验下的极限承载力,再与ABAQUS分析得出的结果进行比较,得出结论。通过计算梁式承台的极限承载力,进而对桥梁进行实时监测,从而可以准确地对桥梁进行安全性能评估。
关键词:梁式承台;极限承载力;有限元分析;静载试验;桥梁安全评估
Abstract
In recent years, with the rapid development of China's economy, China's infrastructure construction is striding forward. The 19th Congress of the Communist Party of China clearly defined the development of the transportation industry as one of the main development strategies of our country in the future. With the development of infrastructure, the design and construction of bridges are in full swing. At present, more than 800,000 bridges have been built in our country. Beam bridge, arch bridge, suspension bridge and other kinds of bridges bloom a hundred flowers, bridge materials are also more and more, reinforced concrete, masonry, steel and so on are also a hundred schools of thought contend, at present, the most widely used in our country is reinforced concrete. At the same time, with the proposal and vigorous implementation of the national "Belt and Road Initiative" strategy, the construction of China's bridges is gradually moving towards the countries along the "Belt and Road Initiative" route. The title of "infrastructure maniac" has become a beautiful business card for the world to know China. The bridge has also become an important hub for China to go to the world. However, with the development of economy, the domestic automobile industry is developing rapidly under the tide of increasing national strength, which leads to the problem of vehicle overloading. For some bridges that have been built, the actual vehicle load may be much larger than that used in the original bridge design, coupled with the influence of many other factors, bridge safety accidents occur frequently in our country. The resulting loss of personal safety and property is even more inestimable. In this case, it is very necessary to evaluate the safety performance of the bridge.
The beam type bases has better mechanical properties, especially its spanning capacity is significantly better than that of ordinary bearing platform. Therefore, beam type bases is widely used in the design and construction of bridges in China and is one of the important components of bridges in China. It is one of the important contents of bridge safety assessment to analyze the girder cap and evaluate its safety performance accurately.
In this paper, taking the 26 # ground beam in the rapid reconstruction project of Baofeng Road as the object, the scale model of 26 # ground beam is designed and manufactured, and the scale model of 26 # ground beam is modeled and analyzed by ABAQUS. The ultimate bearing capacity of the scale model of 26 # ground beam is obtained. Then the ultimate bearing capacity test of the scale model of 26 # ground beam is carried out, and the ultimate bearing capacity under the test is obtained, and then the results are compared with the results of ABAQUS analysis, and the conclusion is drawn. By calculating the ultimate bearing capacity of the beam type bases, the bridge can be monitored in real time, so that the safety performance of the bridge can be evaluated accurately.
Keywords:Beam type bases; Ultimate bearing capacity; Finite element analysis; Static load test; Bridge safety assessment
目 录
摘 要 I
Abstract II
第1章 绪论 1
1.1 研究背景 1
1.2 梁式承台及桥梁极限承载力的研究现状 3
1.3 本文主要研究内容 5
第2章 梁式承台简介 6
2.1梁式承台的优缺点 6
2.2 26#地梁原型工程概况 6
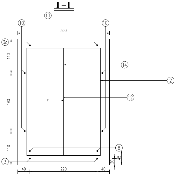
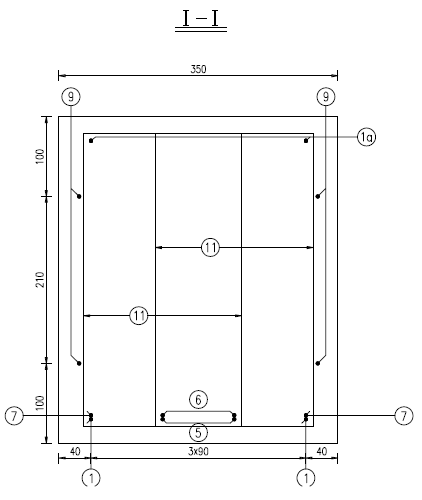
2.3 26#地梁缩尺模型概况 8
2.3.1 26#地梁缩尺模型设计及制作的说明 8
2.3.2 26#地梁缩尺模型所需的主要材料 12
第3章 26#地梁缩尺模型的建模及有限元分析 14
3.1 ABAQUS建模及有限元分析简介 14
3.1.1 ABAQUS简介 14
3.1.2 ABAQUS对简支地梁的建模及有限元分析步骤简述 14
3.2 宝丰路硚口路快速化改造工程26#地梁缩尺模型有限元分析 15
3.2.1 利用ABAQUS软件对26#地梁缩尺模型进行建模 15
3.2.2 利用ABAQUS软件对26#地梁缩尺模型进行有限元分析 18
3.3本章小结 20
第4章 梁式承台的极限承载力静载试验 22
4.1 简支地梁极限承载力静载试验简述 22
4.1.1 试验目的及内容 22
4.1.2 试验所需器具 22
4.1.3 试验步骤 22
4.2 试验要点 24
4.3 试验结果 24
4.4 26#地梁缩尺模型极限承载力有限元及试验结果总结 26
4.5 结果比较 26
第5章 结论与展望 27
5.1 结论 27
5.2 展望 28
致 谢 29
参考文献 30
附录A 荷载——位移数据表 32
第1章 绪论
1.1 研究背景
近年来,随着我国经济高速发展,基础设施建设大步向前,工业化进程不断加快,桥梁已经成为举足轻重的交通载体。根据2017年由国家交通运输部和国家铁路局等国家专业机构在湖北省武汉市举行的2017年中国桥博会的数据显示,截止到目前,我国公路桥梁总数已超过80万座,其中高铁桥梁的累积长度超过1万公里。仅自四川省宜宾市以下的长江主干流上,长江大桥总量(包括在建桥梁)就达到135座之多。中国经济以及基础设施发展到今天,我国桥梁数量之多、类型之广、跨度之大已让世界叹为观止,桥梁已成为世界走进中国的恢弘途径。周伟——时任国家交通运输部总工程师,在2017年中国桥博会上表示,截至到去年(2016年)底,我国公路桥梁(包括在建桥梁)共有80.53万座。截止到2016年底,世界各国已建成的桥梁中,主跨跨径排名前10的各类桥梁中,斜拉桥我国占有7座,悬索桥我国占有6座,拱桥我国占有6座,梁式桥我国占有5座。严贺祥——时任国家铁路局科技与法制司司长在2017年桥博会上表示,近年来我国铁路桥梁的建设正大步向前,目前已取得重大发展,并且明确表示中国铁路桥梁的建设在不久的将来定将取得世界瞩目的成就。一桥飞架南北,天堑变通途,素有“基建狂魔”之称的中国,已经把桥梁事业的建设作为我国近期发展的重要战略计划之一,并且在2017年桥博会上,各负责人均明确表示中国桥梁的设计和建设均会紧跟世界技术和理念的发展变化,中国桥梁已逐渐成为中国在世界上的象征之一。在中国共产党第十九次全国代表大会上,习主席以及其他国家领导人均明确表示,在今后的五年计划内,将交通运输业放在国家发展的重要位置上,要大力建设和完善我国的基础设施,将基础设施的发展放入我国的基本国策内,相关负责人也表示今后的几年乃至十几年时间内,我国要以高标准、高质量、高速度的精神和力度大力发展我国的基础建设行业,对基础设施尚不完善的地区,要加大力度建设,对于基础设施已相对完善的地区,要加大监测力度,保证各项工程安全运营,最终将我国建设成为“条条大路通北京”。同时,随着国家“一带一路”政策的提出和大力推进实施,我国公路桥梁的建设不仅在国内稳步发展,更是将公路桥梁的设计和建造带向了“一带一路”所联系的乌克兰、孟加拉、马来西亚等诸多国家,中国桥梁正在逐渐走向世界,成为世界认识中国的一项靓丽工程。
但是在经济大力发展,基础设施建设逐渐完善的过程中,我国公路桥梁也面临着严峻的挑战和威胁。近年来,世界各国桥梁的设计和建造技术突飞猛进,理念不断更新,各类桥梁在设计和建造过程中,无论是桥梁结构的本身跨度,还是桥墩和桥塔的高度及形状,以及各类基础的埋置深度等都在向更高层次发展,不断刷新世界的记录。但是在桥梁的建造、运营、管理、养护等过程中,由于诸多方面的原因,许多问题不断的涌现。桥梁由于各种原因病害不断,桥梁安全事故频繁发生,因此造成生命和财产损失无法简单的用数据和金钱衡量。2001年11月7日金沙江大桥(南门长江大桥)悬索及桥面部分断裂,桥面两端同时塌陷,其中大桥南头桥面垮陷20米,北头桥面垮塌10多米,4对8根钢缆吊杆断裂。一辆公交大客车和一辆出租车掉入江中,造成3死5伤,损失达两千多万元。事故后经过专家及相关负责人分析,其垮塌原因为:桥梁长期超负荷运转,有关部门在钢缆的防锈问题上未采取有效的防范措施,大桥的悬吊式设计和部分施工材料不合格等。2006年5月16日甘肃省岷县306省道北门洮河桥大桥全部垮塌,事故造成4人受伤,其中包括2名三轮车司机,更为严重的是1名84岁高龄的老人在此事故中伤势较重。经过分析后,确定其垮塌原因为:由于该桥为上世纪70年代初修建的双曲拱桥,原桥的设计荷载等级较低并且使用年限已达32年之久,车辆的长期反复作用,导致其主要结构材料力学性能降低,大桥整体承载能力下降,已无法承受严重超载的车辆行驶,超载车的长期碾压是该桥损坏的重要原因。2007年5月9日江西上饶铅山县鹅湖镇的傍罗大桥整体垮塌,只留下9个残破不堪的桥墩斜立在河中,经有关专家及负责人分析,超重是该事故发生的主要原因。
自从上世纪以来,我国桥梁安全事故屡屡发生,除开地震、洪水等偶然因素外,桥梁的施工是很重要的一个原因,但近年来与日俱增的车辆数量,以及由此产生的车辆超载、运输大型工业设备的特重车辆日益增多是导致桥梁出现安全事故的罪魁祸首。我国公路桥梁设计时,根据《公路桥涵设计通用规范》(JTG D60-2015)的规定,汽车荷载采取车道荷载和车辆荷载进行控制设计[1]。但在桥梁的实际使用及运营过程中,由于汽车尺寸的多变性,以及由超载等原因引起的汽车轴重增加,导致桥梁承受的实际荷载(特别是汽车荷载)往往超过了《公路桥涵设计通用规范》(JTG D60-2015)中采取的汽车荷载,虽然在桥梁的设计过程中,会进行一些的简化假定,以及考虑一定的安全系数,使得桥梁的实际承载能力偏大。但为减少桥梁安全事故的发生,通过有限元分析以及具体的试验,确定桥梁的极限承载能力,从而对桥梁的安全性进行评估,是具有实际意义且非常必要的。
承台在桥梁中发挥着举足轻重的作用,尤其是具有桥墩的各类桥梁,承台更是不可或缺,而梁式承台又以其优越的力学性能、显著的跨越能力在各类承台中脱颖而出,我国目前在建和已建成的各类桥梁中,梁式承台运用非常广泛,尤其以钢筋混凝土简支梁式承台为主要类型。因此,对梁式承台进行极限承载能力分析是非常必要的,对梁式承台进行极限承载力分析,再对桥梁进行实时的监测,可以准确、实时的比较承台实际承受得的荷载与极限承载力的关系,从而可以实时的对梁式承台进行安全性能评估,最后便对桥梁进行准确、实时的安全评估,该种评价方法集精确、经济、时效于一体,极大的方便了研究人员对桥梁的安全评估,因此,对梁式承台的极限承载力分析是桥梁承载能力分析的重要内容之一,具有非常大的工程实际意义。
1.2 梁式承台及桥梁极限承载力的研究现状
近年来,随着我国经济的大力发展,桥梁建设已成为我国的靓丽名片之一,与之产生的桥梁安全评估也随时代正在发展。早在20世纪中叶,便有许多国内外的学者和研究人员对桥梁承载力进行了大量的研究[2-4];在21世纪初期,国内外便已经形成了一套针对桥梁极限承载能力分析的理论和方法体系;时代发展到今天,随着一些新问题的出现,国内外的学者和研究人员正在用更准确、更完备、时效性更强、精确度更高的新方法来补充和完善已有体系,目前已取得斐然的成绩。
2010年,江宝,蒋刚,王旭东,宰金岷[5]试验了复合桩基情况下梁式承台的受力情况,得出梁式承台的受力情况与桩距有密切的关系,桩距不同,承台受力不同,该理论的提出,为我国梁式承台的受力提供了很好的理论依据,后人通过大量的实践,得出最理想的受力情况下对应的合适的桩距。
2011年,徐冬梅[6]根据规范所规定的短梁的范畴,通过具体试验,得出了短梁正截面承载力的影响因素,该理论成果的提出,弥补了新规范下我国短梁的理论研究,经过实际证明,其理论成果非常准确,具有很强的工程实际意义。
2011年,林云[7]分别用美国规范和中国规范对不同剪跨比的梁进行了极限承载力试验,并用ANSYS软件建模进行有限元分析,优化了以前深梁只能采取大量实验数据得到的回归方程进行设计的传统理念,该理论成果的提出,极大的丰富了我国深梁的设计理念,优化了传统的设计方法,为深梁的设计、使用提供了新的思路和研究方向,完善了我国梁式承台的设计体系,同时,对于规范的规定给出了自己建议,对于完善我国规范起了非常重要的推进作用,为我国规范的下次修订提供了丰富的理论知识,经过大量的实践证明,该理论非常准确,具有很强的实际工程意义。
2012年,张玲,赵明华,赵衡[8]通过理论分析,得出了桩径、承台土体的性质、荷载大小及形式等对梁式承台的影响,该理论的提出,完善了梁式承台的设计理论,得到了不同情况下梁式承台的受力情况,经过大量工程实践,证明该理论非常准确,具有很强的实际工程意义,优化了我国的承台设计理念。
以上是毕业论文大纲或资料介绍,该课题完整毕业论文、开题报告、任务书、程序设计、图纸设计等资料请添加微信获取,微信号:bysjorg。
相关图片展示:








        
            
