时间窗口约束条件下的集装箱泊位调度优化对策毕业论文
2020-02-15 23:34:40
摘 要
随着全球经济一体化的进程推进和国际贸易的迅猛发展,物流运输业也得到了迅速发展。港口运输作为物流运输的重要渠道之一,在国际物流运输中占有不可取代的重要地位。其中,集装箱运输作为港口运输的重要手段,凭借其自身高效率的优势,经过历年的发展,逐渐成为港口运输的主力军。而随着集装箱运输的快速发展带来的问题便是集装箱码头资源的日益紧张,由此也引发了一系列的码头运营调度管理问题。其中,泊位作为集装箱码头的稀缺资源,针对泊位的合理规调度与分配是提高码头运营效率和码头企业竞争力的关键点。
本文基于这样的现实背景研究了时间窗口约束条件下的集装箱泊位调度优化对策,在阅读前人的研究成果基础上,总结并学习相关研究中的优秀部分,同时结合自身研究目标进行深入探索。本文主要的研究内容概括如下:
首先,介绍本文的研究目的以及意义,阅读相关文献,对于国内外相关研究现状进行总结与分析,结合研究现状引出本文的研究问题并确定基本研究路线。
其次,介绍研究所涉及的基本理论与方法,对集装箱码头作业基本要素与环节进行介绍,对集装箱作业流程及其特点进行总结,并对泊位调度问题进行分类与概述,确定本文研究问题,建立集装箱泊位调度优化目标模型,并设计蚁群算法进行求解。
最后,引入实例数据以验证本文的模型和算法的正确性和有效性,借助MATLAB软件进行编程计算,对结论进行分析。最后,对本文的研究成果进行总结与展望。
关键词:集装箱;泊位分配;调度优化;蚁群算法
Abstract
With the advancement of global economic integration and the rapid development of international trade, logistics and transportation industry has also developed rapidly.As one of the important channels of logistics, port transportation plays an irreplaceable role in international logistics.Among them, container transport as an important means of port transport, with its own advantages of high efficiency, after years of development, gradually become the main force of port transport.However, with the rapid development of container transportation, the resources of container terminals are increasingly strained, which also leads to a series of problems in terminal operation and scheduling management.Among them, berths are the scarce resources of container terminals, and reasonable scheduling and allocation of berths are the key points to improve the operational efficiency of terminals and the competitiveness of terminal enterprises.
Based on such a realistic background, this paper studied the container berth scheduling optimization strategy under the constraint of time window. On the basis of reading the previous research results, it summarized and learned the excellent parts of related research, and combined with its own research objectives for in-depth exploration.The main research contents of this paper are summarized as follows:
First of all, this paper introduces the purpose and significance of the research, reads relevant literature, summarizes and analyzes the relevant research status at home and abroad, and combines the research status to lead to the research problems of this paper and determine the basic research route.
Secondly, introduce the basic theory and method of research involving, the container terminal operation is introduced, the basic elements and the link to the summarize of container operation process and its characteristics, and classifying the berth scheduling problem with overview, determine the research problem, this paper established the container berth scheduling optimization target model, and design of ant colony algorithm to solve.
Finally, the example data is introduced to verify the correctness and effectiveness of the model and algorithm in this paper. The programming calculation is carried out with the help of MATLAB software, and the conclusion is analyzed. Finally, the research results of this paper are summarized and prospected.
Keywords: Container; Berth allocation; Scheduling optimization; Ant colony algorithm
目录
第1章 绪论 1
1.1研究背景与研究意义 1
1.1.1研究背景 1
1.1.2研究意义 1
1.2文献综述 2
1.2.1国内外研究现状 2
1.2.2 研究现状分析与问题提出 2
1.3主要内容与技术路线 3
1.3.1 主要内容 3
1.3.2 技术路线 3
第2章 集装箱码头泊位调度优化问题概述 5
2.1 集装箱码头相关概念介绍 5
2.2 集装箱码头作业流程及其特点 6
2.2.1 集装箱码头作业流程 6
2.2.2 集装箱码头作业特点 6
2.3 调度问题概述 7
2.3.1 泊位调度问题 7
2.3.2 岸桥调度问题 8
2.3.3 时间窗口约束下的集装箱泊位与岸桥联合调度优化 8
第3章 集装箱泊位调度优化模型的建立 10
3.1 问题描述 10
3.2 模型假设 10
3.3 参数设定 10
3.4 模型建立 11
第4章 基于调度模型的蚁群算法设计与实现 13
4.1蚁群算法的基本理论 13
4.1.1 蚁群算法的基本原理 13
4.1.2 基本蚁群算法的系统学特征 13
4.2 基于本文模型的蚁群算法设计与实现 14
4.2.1 相关参数设定 14
4.2.2 蚁群算法的实现过程 15
第5章 实例分析与运算 17
5.1 算例与编程的实现 17
5.2 结论分析 19
第6章 总结与展望 20
6.1 总结 20
6.2 展望 20
参考文献 21
附录 部分matlab程序编码 22
致谢 24
第1章 绪论
1.1研究背景与研究意义
1.1.1研究背景
随着经济全球化的迅猛发展,各国的货物进出口量都在不断增加,导致全球的物流运输需求在不断地提升。其中,海洋运输是全球物流运输的重要组成部分,作为海洋物流运输中最主要的运输方式之一,集装箱运输凭借着其标准化、大容量的优势,迅速地在国际货物运输中占据了重要地位。
集装箱运输,是指以集装箱为运输载体,将要运输的货物集合组装成集装单元,以便使用大型装卸设备和运载车辆进行装卸作业的一种新型、高效的运输方式。与传统运输方式相比,集装箱运输有许多优点,首先集装箱本身作为货物包装,具有外形坚固、密封性好等优点,能够很好地保护货物,减少经济损失。除此之外,由于集装箱运输的标准化,货物以箱作为运输单位后,可以简化货运作业程序,加快货物的交接速度,有效缩短货物的在港停留时间,从而大幅提高码头工作效率。
近年来,随着集装箱船舶大型化趋势的不断推进,集装箱码头货运量不断攀升。不断增加的业务量对集装箱码头的运营效率提出了更高的要求。因此,提高集装箱港口作业熊率,是提高港口竞争力的关键手段。
1.1.2研究意义
伴随着全球经济一体化的进程推进和国际贸易的迅猛发展,集装箱运输量逐渐呈现高速增长的趋势。集装箱码头泊位的合理配置和调度优化是码头运营畅通的基础,也是影响码头企业的竞争力的主要因素。随着集装箱运输发展的逐渐广泛,集装箱码头资源日益紧张,码头的泊位调度运营管理变得越来越复杂,集装箱码头的生产运营调度问题已逐渐成为制约集装箱码头发展的主要瓶颈。
在集装箱船舶抵达港口后,码头首先需要为其安排合适的泊位供其停泊,然后再配置相应的装卸设备以及堆场空间进行装卸作业。港口吞吐量的不断增加给码头资源运营也带来了不少压力,通过扩大港口规模,增加泊位和岸桥数量可以一定程度解决该问题,但这样也意味着投资的增加。因此,比起扩大规模,更具有经济效益的一种解决办法便是对泊位配置进行优化,借助合理的调度和科学的管理做到资源利用最大化,这也是提高集装箱港口效率的关键点。
因此,本文对时间窗口约束条件下集装箱泊位调度进行研究优化,建立作业调度模型,并设计算法进行求解,为集装箱港口的泊位调度环节提供优化方案,以提高集装箱港口的工作效率和码头企业的竞争力,具有很大的现实意义。
1.2文献综述
1.2.1国内外研究现状
经过对相关论文的阅读与研究,笔者发现近年来国内外关于集装箱泊位调度的优化研究已取得多方面的进展。
在泊位配置优化问题方面,韩晓龙[1]建立了连续泊位下的泊位-吊桥配置模型,把连续泊位调度问题转化成二维装箱问题,用于解决离散泊位船舶动态靠泊问题,以船舶总在港时间最短为主要目的,设计启发式回溯算法求解,并引入实例验证,证明了模型的合理性和有效性;韩俊[2]等人建立了泊位-岸桥协调调度优化模型,该模型同时考虑泊位与岸桥调度,避免了单独调度的局限性,设计免疫遗传优化算法进行求解,通过对单独调度优化和协调调度优化的结果进行分析与比较可以看出,协调调度优化可以有效地减少船舶的在港时间;靳志宏[3]等人针对离散型泊位的调度优化问题,建立了泊位与岸桥联合动态调度模型,设计了含有双层染色体编码的遗传算法进行求解;对于码头动态资源配置优化问题,靳志宏等人[4]基于排队论,对于集装箱码头泊位数量的确定研究提出针对性的解决方案;韩笑乐[5]等研究了针对动态离散泊位的,具有不同服务优先级别的调度优化问题,以船舶总在港时间与加权延迟时间之和为目标,利用启发式算法形成初始解,在此基础上设计混合算法进行优化求解;李英等[6]研究了具有预知信息的泊位调度优化,主要针对由3个离散泊位组成的混合型泊位和4个岸桥的情形。
1.2.2 研究现状分析与问题提出
经过对于相关研究论文的阅读与总结,笔者发现这些研究大多是针对泊位与岸桥的单独调度,亦或是针对岸桥执行具体装卸时操作顺序的优化 ,其他方面相关研究甚少。
但随着集装箱泊位调度研究的越来越广泛,泊位调度问题的研究需要在单纯的泊位调度基础上考虑更多因素,本文在阅读相关文献的基础上提出时间窗口约束条件下集装箱泊位调度优化问题,考虑泊位与岸桥的联合调度。
1.3主要内容与技术路线
1.3.1 主要内容
针对时间窗口约束条件下集装箱泊位调度优化对策这一问题,在阅读前人的研究成果基础上,总结并学习相关研究中的优秀部分,同时结合自身研究目标进行深入探索。本文的结构安排如下:
第一章“绪论”,介绍本文研究背景与意义,回顾并总结国内外学者在该研究领域的研究现状,结合研究现状引出本文的研究问题并确定基本研究路线。
第二章“集装箱码头泊位调度优化问题概述”,对集装箱码头作业基本要素与环节进行介绍,对集装箱作业流程及其特点进行总结,并对泊位调度问题进行分类与概述,确定本文研究问题,对其进行详细描述。
第三章“集装箱泊位调度优化模型的建立”,建立集装箱泊位调度优化目标模型,介绍几种常见的优化方法,进行比较后确定使用蚁群算法进行后续求解。
第四章“基于调度模型的蚁群算法设计与实现”,对蚁群算法的基本理论及实现步骤进行简单介绍,运用蚁群算法[7]对本文已建立的泊位调度优化目标模型进行算法设计及求解。
第五章“实例分析与运算”,引入实例数据对前文建立的模型进行验证与运算,运用MATLAB软件进行程序编程实现,并对结论进行分析。
第六章“总结与展望”,对本文的研究结果进行总结,对不足之处进行指出,对其他研究方向进行展望。
1.3.2 技术路线
首先确定要研究的问题,即时间窗口约束条件下的集装箱调度优化对策,并阅读和参考相关国内外研究文献。
其次明确影响因素之间的关系,运用合适方法建立调度优化数学模型。
建立完数学模型之后,设计相应的算法进行求解。本文拟设计蚁群算法,结合实际情境数据资料,对模型进行求解和验证。
最后将模型和算法带入实例进行数据运算与可行性验证。具体研究技术路线见图1.1。

图1.1.研究技术路线
第2章 集装箱码头泊位调度优化问题概述
2.1 集装箱码头相关概念介绍
集装箱码头,是指能够容纳集装箱船舶进行完整的集装箱装卸作业的场所。既是集装箱的暂时存放处,同时也为集装箱提供装卸服务,是陆运和水运之间的连接纽带。
本文的研究问题是时间窗口约束条件下集装箱泊位调度优化问题,为了更好地阐述后文的优化数学模型及设计算法,在此先介绍集装箱码头泊位调度作业的基本要素及作业流程。
(1)靠泊设施:由码头岸线和码头岸壁组成。码头岸线主要为进港的集装箱船舶提供停靠场地;码头岸壁指集装箱船停靠时所需的系船设施。
(2)码头前沿:指码头岸壁到集装箱编排场之间的区域,设有集装箱起重机和运行轨道等设施。
(3)集装箱编排场:又称前方堆场,是把将要装船的集装箱排列待装以及为即将卸下的集装箱准备好场地和堆放的场所,其主要功能是确保船舶的装卸作业的快速进行。
(4)集装箱堆场:又称后方堆场,是进行集装箱移交和安全检查的地方。
(5)泊位:供集装箱船舶停靠和作业的场所。
(6)控制室:又称中心控制室,简称“中控”,是集装箱码头各类生产操作的重要枢纽,它集指挥、协调、监督和控制于一体,是重要的业务部门。
(7)闸口:指集装箱码头的出入口。
(8)维修车间:主要负责对集装箱及其机械进行检查、维修和保养等服务。
(9)集装箱清洗场:对集装箱污垢进行清洁和冲洗的场所,通常设在后方并配有多种清洁设施。
(10)集装箱货运站:主要负责装箱和拆箱,通常位于码头的后部,是集装箱码头的辅助功能。
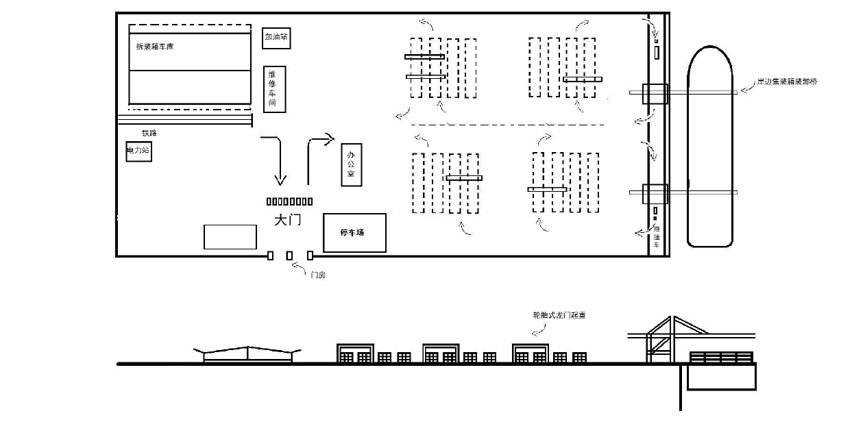
集装箱码头布局示例图见图2.1.

图2.1 集装箱码头布局图
2.2 集装箱码头作业流程及其特点
集装箱码头作业流程庞大而复杂的,需要多方面的共同协调和运作来完成。在码头的调度作业中,集装箱码头的作业流程系统可划分为:泊位子系统、堆场子系统和集装箱运输子系统。通过各系统之间相互衔接与配合,完成整个集装箱从船舶到堆场的装卸作业过程。泊位子系统由靠泊泊位、装卸岸桥和待服务船舶三部分组成。
2.2.1 集装箱码头作业流程
在实际作业情况中,由船公司提前报备靠港计划,然后码头工作人员根据集装箱船舶的具体停泊时间、装载量、吃水深度和船长船高等信息,提前准备船舶靠泊计划,待到船舶靠泊之时,调度员先帮助集装箱船舶顺利靠泊,然后根据事先先排好的计划开始装卸任务。在卸船操作中,先通过岸桥完成集装箱卸载工作,然后由集卡将对应的集装箱运到指定地点。在装船操作中,集卡将集装箱运到码头前沿,然后指派相应的岸桥将集装箱运到船舶指定区域。完成所有装卸任务和单据操作后,船舶方可驶离港口。
2.2.2 集装箱码头作业特点
(1)大型和深水化:随着集装箱运输的快速发展,集装箱货运量也在不断增加。根据规模经济原则可见,船舶越大,其单位运营成本就越低。因此,为了降低运输成本,码头企业逐渐开始投入使用越来越大的集装箱船舶,为了满足需求,码头规模随着也不断扩大。

        
            
