六合区龙池风景区游客服务中心(方案三)毕业论文
2020-04-23 20:14:17
摘 要
Tourist Service Center of Longchi Scenic Area in Liuhe District (Scheme 3)
Abscract
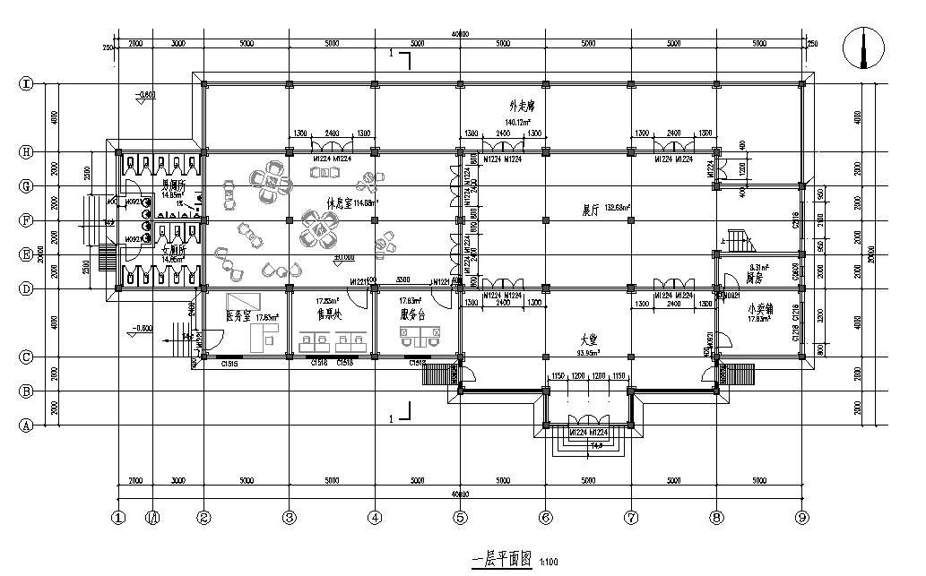
This project is a virtual application project. It is located in Liuhe District of Nanjing, and it is the tourist service center of Longchi Scenic Area of Liuhe District (scheme 3). The building site is 40m long and 20m wide. The first floor is 4m high, the second floor is 4.5m high, the slope roof is about 1200m 2, and the height difference between indoor and outdoor is 0.6m. The plywood floor (rigid floor) is used for the support of the building. The plywood frame is used for the timber frame, and the whole building component is considered according to the fire resistance limit of 2 hours. The safety grade of the building structure is grade 2, the design service life is 50 years, the design grade of the foundation is grade C, the independent foundation is adopted, and the seismic fortification category of the building is type C.
Key words: frame support plywood
目录
第一章 结构计算概括 5
1.项目基本概况 5
2.设计主要依据的规范(规程) 5
3.气象资料 5
4. 工程地质资料 6
各主要土层地基承载力特征值表 6
5. 结构和基础的安全等级 6
6.荷载取值…….........................................................................................................................7
7..施工技术条件........................................................................................................................7
8.材料供应及基本参数.............................................................................................................7
第二章 结构方案选型与布置 7
第三章 结构截面选取 9
1.梁截面尺寸拟定 10
2.柱截面尺寸拟定 10
第四章 荷载计算 12
1.永久荷载 12
2.活荷载 13
3.地震作用 15
第五章 构件计算 26
1.格栅验算 26
2.柱截面验算 31
3.梁截面验算 34
4.MIDA点算结果 38
第六章 屋架计算 49
1.屋顶屋架 49
2.齿板连接设计 56
第七章 基础的连接计算 58
1. 地基计算 58
2.柱与基础连接 63
第八章 节点设计设计 69
第九章 防火设计 70
附录 参考文献 73
致谢 75
第一章 结构计算概括


总平面图
2.设计主要依据的规范(规程)
《胶合木结构技术规范》
《轻型木桁架技术规范》
《木结构设计规范》
《建筑抗震设计规范》
《基础工程学》
《混凝土结构》
3.气象资料
1. 江苏省六合区100年基本风压;场区地面粗糙度类别为A类;风振系数βz、体型系数μs 、高度系数μz按规范选取。
2. 江苏省六合区50年基本雪压;

表1 各主要土层地基承载力特征值表
层号 | 承载力特征值fak(KPa) | 综合建议值 | |||
依据土工试验指标 | 依据静探指标 | 依据标贯指标 | 依据剪切试验 | 承载力特征值fak (kPa) | |
② | 251 | 257.75 | 239.5 | 291 | 120 |
③ | 263 | 278 | 298 | 294 | 130 |
④ | 259 | 410 | 354 | 290 | 240 |
5.结构和基础的安全等级
1. 建筑结构的安全等级:二级;
相关图片展示:









