南京市创业孵化基地办公楼设计毕业论文
2020-04-20 13:13:11
摘 要
Abstract II
第一章 建筑设计 1
1.1工程概况 1
1.2工程地质资料 1
1.3施工技术条件 1
1.4主要材料选用 2
第二章 结构选型 3
2.1确定计算简图 3
2.2 构件的截面尺寸 3
第三章 荷载计算及水平侧移验算 5
3.1 5
3.1.6恒载计算 8
3.2 10
3.3地震荷载计算 13
第四章 内力计算 20
4.1恒载内力计算 20
4.2活载内力 26
4.3 31
4. 39
4.5内力组合 43
第五章 梁柱截面设计 61
5.1设计内力 61
5.2 梁截面设计 61
5.3柱截面设计 67
第六章 现浇楼面板设计 74
6.1楼板设计 74
第七章 楼梯结构设计 80
7.1梯段板计算 80
7.2休息平台板计算 81
7.3梯段梁TL1计算 82
第八章 第④轴横向框架柱下基础设计 83
8.1工程地质概况 83
8.2基础梁设计 83
8.3 A柱独立基础设计 83
8.4 D柱独立基础设计 88
8.5B、C双柱联合基础设计 93
参考文献 98
致谢 99
摘要
本毕业设计“南京市创业孵化基地办公楼设计”为实际工程,本工程总建筑面积为4852.8m2,为,建筑高度约23.1m左右。,,设计,工程。
设计主要内容:。
建筑部分:布局、建筑选型以及防火要求,主要进行了平面布局、立面、剖面设计,同时平面布局合理并满足相应功能要求。
结构部分:采用手算一榀框架和电算相结合的办法,手算内容包括:荷载计算、内积计算、内力组合和梁柱等构建截面设计,基础则选用的柱下独立基础。
施工组织设计:完成单位工程施工组织设计,:。并绘制。
关键词:框架结构 建筑设计 结构设计 施工组织设计
Abstract
The graduation project "Nanjing Business Incubation Base Office Building Design" is a practical project. The total building area of this project is 4852.8m2, which is a six-storey with a building height of about 23.1m. Seismic intensity is 7 degrees, is 0.10g, is divided into, is II.
Main contents of design: construction organization design.
:layout, building type selection and fire protection requirements. It mainly carries out plane layout, elevation and section design. At the same time, the plane layout is reasonable and meets the corresponding functional requirements.
: The method of combining manual calculation with computer calculation is adopted. The manual calculation includes load calculation, internal area calculation, internal force combination and beam-column cross-section design. The foundation is the independent foundation under the column.
Construction organization design: Complete the unit project construction organization design, the main contents include:, progress plan, plan. And
Key words:,
第一章 建筑设计
1.1工程概况
本毕业设计“南京市创业孵化基地办公楼设计”为实际工程,工程位于江苏省南京市,,,。建筑场地长宽约51m×19m,建筑面积约4500-5500m2,,首层层高比其余层要高0.3m,室内外高差0.45m。根据勘察报告,工程场地类别II类。应建设方要求,建筑平面轮廓不应为常规的矩形,;,供单位职工交流、休闲使用,约200~300m2.
1.2工程地质资料
(1)经勘察查明,根据地层的特点自上而下共划分3层,各土层如下:
①层:主要成分。该层厚。
②层:。该层。
③层:。
基础型式:本工程;,地基
本工程地下水埋深为10米左右,地下水对钢筋混凝土结构不具侵蚀性
,其中,土层等效剪切波速的计算公式为:
对工程实际地质资料进行分析计算,最终确定工程所在场地类别为Ⅱ类。
1.3施工技术条件
本工程由大型建筑工程公司承建,设备齐全,技术良好。水、电供应由建设单位保证。
1.4主要材料选用
纵筋:,箍筋:;
柱:C30,纵筋:HRB400,箍筋:HPB300;
板:,纵筋:;
基础:,钢筋:钢筋。
第二章 结构选型
2.1确定计算简图
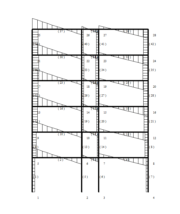
把的横向看做一个,该框架的如下图所示。柱子的高度底层为=4.75m,二到六层柱高为h=3.6m。

图2-1
2.2 构件的截面尺寸
2.1.1梁
确定原则:框架结构的主梁截面高度可按计算跨度1/18~1/10确定;在选用时,上限1/10可适用于荷载较大,跨度较大的情况。同时梁净跨与截面高度之比不宜小于4,梁的截面宽度取截面高度的1/3~1/2,不宜小于200mm.
横向框架梁:b×h=250mm×600mm
纵向框架梁:b×h=250mm×550mm
次梁:b×h=250mm×500mm
2.1.2柱
确定原则:,非,抗震设计时,一二三抗震;;柱;宜寸,以受荷面积最大的柱子为例计算::
式中:
以上是毕业论文大纲或资料介绍,该课题完整毕业论文、开题报告、任务书、程序设计、图纸设计等资料请添加微信获取,微信号:bysjorg。
相关图片展示:









