南京港某港区办公楼设计毕业论文
2020-04-19 21:20:17
毕业设计计算书
第一章 工程概况
1.1工程概况:
本工程位于江苏省南京港,为南京港七坝港区办公楼设计。实际工程的建筑层数为五层,建筑平面长宽约45m×15m,建筑高度约20.1m。结构形式为2跨框架结构。建筑结构安全等级为二级,设计使用年限为50年;建筑场地类别为II类,地基基础设计等级为丙级;建筑抗震设防类别为丙类,抗震设防烈度为7度(基本地震加速度为0.10g),设计地震分组为第一组,抗震等级为三级。
1、气象资料
(1)基本风压值=0.4 kN/m2
(2)基本雪压值=0. 4kN/m2
2、工程地质资料
(1) 经勘察查明,各土层描述如下:
①层填土,由粉质粘土、建筑垃圾、煤渣等混杂组成,厚度为0.3-0.8m。
②--1层淤泥质粉质粘土,层厚为15.2-19.8m。
--2层淤泥质粉质粘土夹粉土,层厚为10.2-15.6m。
③层粉细砂,层厚为5.1-6.0m。
④层粉质粘土、粗砂混卵砾石,层厚为0.8-1.4m。
⑤强风化泥质粉砂岩,层厚为0.3-1.3m。
(2) 根据土层情况,采用混凝土预制桩,以粉砂层作为桩端持力层,桩端承载力设计值为2200KN。
(3) 建筑场地类别:II类。
3、施工技术条件
本工程由大型建筑工程公司承建,设备齐全,技术良好。水、电供应由建设单位保证。
4、材料供应
三材及一般材料能按计划及时供应。
5、荷载取值
按《建筑结构荷载规范》GB50009-2012采用。
- 办公楼楼面活荷载标准值2.0 kN/m2,办公楼走廊活荷载标准值为2.5kN/m2。楼梯楼面活荷载标准值为3.5 kN/m2。
- 上人屋面:活荷载标准值 2 kN/m2。
- 屋面构造:
保护层:20mm厚1:2.5或M15水泥砂浆,表面应抹平压光,并设分隔缝,分隔面积宜为1m2。隔离层200g/m2聚酯无纺布。
防水层:1.2mm厚1:1.25水泥砂浆。
保温层:75mm厚挤塑板。
找坡层:膨胀珍珠岩,坡度宜为3%,最薄处不得小于30mm。
- 楼面构造:
水泥楼面:10mm厚1:2水泥砂浆面层压实抹光、15mm厚1:3水泥砂浆找平层、现浇钢筋混凝土楼面板、12mm厚纸筋石灰粉平顶。
- 围护墙:围护墙采用200mm厚混凝土空心小型砌块(重度2.36 kN/m2),M5混合砂浆砌筑,双面刷粉(重度3.6 kN/m2),每开间采用1800mm×1800mm(b×h)通长塑钢窗。

图1-1 结构布置
第二章 计算简图与荷载计算
2.1 确定计算简图

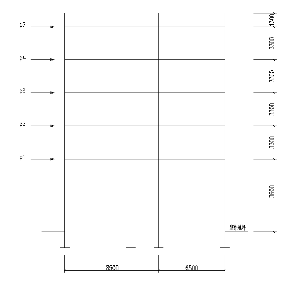
图2-1 计算简图
柱子高度底层为:h1=3.6 2.1-0.5=5.2m,二至五层柱高为h2~ h5=3.3m。 两跨的计算跨度分别为:8500mm,6500mm。
2.2 梁、柱截面尺寸
1、梁
AC跨:
∵h=(1/12~1/8)L=708mm~1062mm,取750mm
b=(1/3.5~1/2)h=214mm~375mm,取300mm
∴b×h=300mm×750mm
CD跨:
∵h=(1/12~1/8)L=541mm~812mm,取750mm
b=(1/3.5~1/2)h=214mm~375mm,取300mm
∴b×h=300mm×750mm
∵h=(1/12~1/8)L=333mm~500mm,取400mm
b=(1/3.5~1/2)h=114mm~200mm,取250mm
∴b×h=250mm×400mm
2、柱

柱采用方形截面,柱截面从底层到顶层尺寸均为550mm×550mm。
3、板厚
楼板均为双向板,h≧l/40,h≧80,取h=100mm
2.3 材料强度等级
混凝土均采用C30级;受力钢筋采用HRB400钢筋,箍筋采用HPB300钢筋。
2.4 荷载计算

图2-2 荷载计算简图
永久荷载作用下结构计算简图; (b)活载作用下结构计算简图
1、屋面横梁竖向线荷载标准值
(1)永久荷载(图2-2a)
0.035×25=0.875kN/㎡
0.4kN/㎡
0.10×25=2.5kN/㎡
0.012×16=0.192kN/㎡
4.37kN/㎡
0.75×0.3×25=5.63kN/m
2×(0.6-0.10)×0.02×17=0.34kN/m
5.97kN/m
0.75×0.3×25=5.63kN/m
2×(0.6-0.1)×0.02×17=0.34kN/m
5.97kN/m
g5Ac1= g5CD1=5.97kN/m
g5AB2= g5CD2= 4.37×4.0=17.48kN/m
g5BC2=4.37×2.5=10.93kN/m
(2)活荷载(图2-2b)
q5AB=q5CD=0.7×4=2.8kN/m q5BC= 0.7×2.5=1.75kN/m
(1)永久荷载(图2-2a)
0.025×20=0.50kN/㎡
0.1×2.5=2.5kN/㎡
0.012×16=0.192kN/㎡
3.192kN/㎡
5.97kN/m
5.97kN/m
gAc1= gCD1=5.97kN/m
gAB2= gCD2=3.192×4=12.77kN/m
gBC2=3.192×2.5=7.98kN/m
(2)活荷载(图2-2b)
qAB=qCD=2.5×4=10kN/m qBC=3.5×2.5=8.75kN/m
3、屋面框架节点集中荷载标准值(图2-3)

图2-3 恒载顶层集中力
(1)永久荷载
0.3×0.75×4×25=22.5kN
2×(0.75-0.1)×0.02×4×17=1.77kN
1.3×4×2.36=12.27kN
1.3×2×0.02×4×17=3.54kN
0.5×4×0.5×4×4.87=19.48kN
G5A=G5D=59.56kN
0.75×0.3×4×25=22.5kN
[(0.75-0.1) (0.75-0.1)]×0.02×4×17=1.77kN
0.5×4×0.5×4×4.87=19.48kN
0.5×(4 4-2.5)×2.5/2×4.37=15.02kN
G5C=58.77kN
(2)活荷载
Q5A=Q5D=0.5×4×0.5×4×0.7=2.8kN
Q5C=0.5×4×0.5×4×0.7 0.5×(4 4-2.5)×2.5/2×0.7=5.21kN
4、楼面框架节点集中荷载标准值(图2-4)

图2-4 恒载中间层节点集中力
(1)永久荷载
22.50kN
1.77kN
1.8×1.8×0.4=1.30kN
(4.-0.55)×0.9×2.36=7.33kN
2×3.45×0.9×0.02×17=2.11kN
1.8×(3.45-1.8)×2.36=7.01kN
2×1.8×1.65×0.02×17=2.02kN
0.5×4×0.5×4×3.692=14.77kN
58.81kN
GA=GD=58.81kN
G‘A=G‘D=0.55×0.55×3.3×25=24.96kN
22.50kN
1.77kN
(4-0.55)×(3.3-0.6)×2.36=21.98kN
2×3.45×2.7×0.02×17=6.33kN
以上是毕业论文大纲或资料介绍,该课题完整毕业论文、开题报告、任务书、程序设计、图纸设计等资料请添加微信获取,微信号:bysjorg。
相关图片展示:









