盐城市某厂房毕业论文
2020-04-19 21:17:54
摘 要
本毕业设计为盐城市某厂房的工程设计,位于盐城市亭湖区。该工程为钢筋混凝土框架结构,建筑物长33.5m,宽43.6m,地上5层,建筑高度约22.2米,标准层高4.2米,建筑面积约7221m2。楼板采用压型钢板混凝土组合楼盖,考虑钢筋混凝土梁与压型钢板混凝土组合板的组合作用,基础采用桩基础。
本工程抗震设防烈度为7度,设计基本地震加速度值为0.10g,设计地震分组为第一组。工程场地无液化土层,属于Ⅲ类场地土。
关键词:抗震设计 压型钢板 组合结构 截面设计
Abstract
This graduation project is a practical engineering application topic. It is located in Yancheng City. The project is a reinforced concrete frame structure. The building is 33.5m long, 43.6m wide, 5 floors above ground, with a building height of 22.2 meters and a standard floor height of 4.2 meters. About 7221m2. The floor slab adopts a pressed steel plate concrete composite floor, considering the combined action of the reinforced concrete beam and the profiled steel plate concrete composite plate, and the foundation adopts the pile foundation.
The seismic fortification intensity of this project is 7 degrees, the design basic seismic acceleration value is 0.10g, and the design earthquake group is the first group. The project site has no liquefied soil layer and belongs to Class III site soil.
Key words: seismic design;profiled steel plate;combined structure;section design
第一章 设计资料
1.1 工程地点及工程概况
该工程位于江苏省盐城市,抗震设防烈度为7度,设计基本地震加速度为0.1g,抗震设计分组第1组,建筑物场地类别为Ⅲ类。建筑物长33.5m,宽43.6m,地上5层,建筑高度约22.2米,建筑面积约7221m2,结构体系为钢筋混凝土框架结构,楼板采用压型钢板混凝土组合楼盖,考虑钢筋混凝土梁与压型钢板混凝土组合板的组合作用,基础采用桩基础。建筑条件图见附图。
1.2气象资料
1)基本风压:0.45kN/m2
2) 基本雪压:0.35 kN/m2
1.3工程地质资料
1)本工程场地较平坦,根据地质钻探,该场地土质较均匀。
2)地下水位较高,在天然地面下3.0m处,无侵蚀性。
3)场地无液化土层,场地类别为Ⅲ类。
1.4 结构和基础的安全等级
1)建筑结构的安全等级为二级。
2)拟建场地位于7度区,根据《建筑工程抗震设防分类标准》(GB50223-2008),本工程抗震设防类别为标准设防类。
3)地基基础设计等级为丙级。
1.5荷载取值
按《建筑结构荷载规范》(GB50009-2012)采用。
第二章 结构布置及初选截面尺寸
该建筑经过对建筑高度、使用要求、材料用量、抗震要求、造价因素综合考虑后,宜采用钢筋混凝土框架结构。板采用压型钢板组合楼板,实现框架结构组合楼板的创新。
混凝土等级选用见表2.1。
表2.1 各主要构件混凝土选用
楼层 | 梁 | 柱 | 板 | |
1~5F | C30 | C30 | C30 |
2.1 框架柱截面尺寸初选
根据设计规范和以往施工经验,为保证柱的延性,框架柱应符合规范对剪压比、剪跨比、轴压比的限值要求,其中轴压比起主要作用根据《建筑抗震设计规范》,6.3.6的规定柱需满足轴压比限值,本设计中,框架的抗震等级为三级,柱的最大轴压比为0.90。
查公式得:

式中: Ac —柱截面面积;
n —层数;
Nv — 重力荷载产生的轴向力值;重力荷载标准值可根据实际荷载取值,也可近似按(12~14kN/m2计算;
fc —混凝土轴心抗压强度设计值。
A=a²≥
=0.437m²
a≥0.66
因为该公式为经验公式,经过PKPM电算,选择柱尺寸为600mm×800mm。
以上尺寸满足规范关于柱截面宽度和高度的最小尺寸、柱剪跨比、截面高宽比等要求。
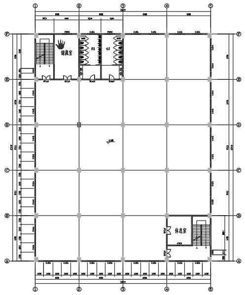
按照建筑设计确定的轴线尺寸和相应得结构布置原则进行布置,标准层结构布置图如图2-1所示。
图2-1 结构平面布置图
2.2 框架梁截面尺寸的初选
梁高取柱跨度的(
)l,梁宽取梁高的(
)h
柱的跨度主要有8400mm、8700mm,计算如下:
主梁:
h=(1/12~1/8)l=(1/12~1/8)×8400=700~1090mm,取h=700mm,
b=(1/3~1/2)h=(1/3~1/2)×700=233~400mm,取300mm。
为便于施工,其他跨度的柱距均采用300×700mm的梁。
次梁:8700mm、4800mm、4200mm
均取200mm×500mm
2.3 填充墙截面初选
本建筑采用选用200mm厚混凝土外墙,选用200mm厚混凝土内墙。
2.4板截面尺寸初选
根据建筑规范,所有楼层楼板厚度定为120mm。采用压型钢板混凝土组合楼板。
2.5压型钢板选择
选取压型钢板如下:
型号:YX 75-200-600
基材:Q235
板厚:1.0mm
压型钢板钢材强度值:


图2-2 压型钢板截面图 |
2.6压型钢板截面计算



第三章 荷载标准值计算
3.1屋面横梁竖向线荷载标准值
3.1.1永久荷载
40mm保温挤塑板
0.04×25=1
防水层
0.4 k/m2
20mm厚1:3水泥砂浆找平
20×0.02=0.4
120mm厚钢筋混凝土结构层
25×0.12=3kN/m2
15mm厚1:1:6混合砂浆打底,1:1:4混合砂浆粉面
17×0.015=0.26
屋面恒载标准值 5.06
(取5.10
)
梁自重
AB、BC、CD、DE、EF跨 0.3×0.7×25=5.25kN/m
梁侧粉刷 2×(0.7-0.12)×0.02×17=0.39 kN/m
次梁 0.2×0.5×25×3=7.5kN/m
梁侧粉刷 2×(0.5-0.12)×0.02×17×3=1.02 kN/m
14.16kN/m
作用在顶层框架梁上的线恒荷载标准值为
梁自重 g5AB1=g5BC1=g5CD1=g5DE1=g5EF1=14.16kN/m
板传来的荷载 g5AB2=g5BC2=g5CD2=g5DE2=g5EF2=5.1×8.7=44.37 kN/m
3.1.2活荷载
作用在顶层框架梁上的线活荷载标准值
q5AB=q5BC=q5CD=q5DE=0.5×8.7=4.35kN/m
3.2楼面横梁竖向线荷载标准值
3.2.1永久荷载
25×0.12=3
15厚水泥砂浆抹灰
0.015×17=0.26
楼面恒载标准值 3.76
(取4.00
)
AB、BC、CD、DE、EF跨梁自重 14.16 kN/m
以上是毕业论文大纲或资料介绍,该课题完整毕业论文、开题报告、任务书、程序设计、图纸设计等资料请添加微信获取,微信号:bysjorg。
相关图片展示:










