侧向连续开孔地下综合体地震响应分析毕业论文
2020-02-13 15:56:01
摘 要
随着城市的发展,地上建筑群逐渐区域饱和,人们开始着眼于地下结构的深入开发,地铁车站作为主要的公用建筑其运营长人流量大,往往会与周围地下空间开发结构连通形成地下综合体,为了合理开发利用以地铁车站为核心的地下综合体结构,方便人们通行,在地铁车站与地下空间开发结构中间侧墙上进行开孔,开孔必定会对结构抗震性能产生影响,因此对其地震响应分析是有必要的。
本文以相关实际工程为背景,利用有限元分析软件ABAQUS建立三维模型,分别建立了自由场/标准车站/侧向一跨开孔地下综合体/侧向两跨开孔地下综合体/侧向三跨开孔地下综合体共五类工况,分别输入0.1gEL波/0.2gEL波/0.1g上海人工波进行计算,并对各类工况的计算结果从加速度时程、峰值加速度、能量、位移以及相对位移和柱端弯矩等角度对比分析,研究了地下结构对与土体地震响应的影响同时确定其空间效应以及抗震薄弱部位,探讨不同开洞方式对结构整体抗震性能的影响。结论主要包括:
(1)地下综合体地表正中点加速度大于标准车站和自由场,地下结构对地表的水平加速度响应有影响,在本文建立的模型中表现标准车站宽度的4.5倍和地下综合体宽度的2.7倍。
(2)地下结构对沿土体纵向水平加速度响具有一定影响范围,在本文建立的模型中表现为结构纵向深度2.7倍。
(3)地下结构改变了土体的能量分布情况,具体表现为有地下结构存在的情况下,能量集中分布在地下结构附近。
(4)由于端墙的存在,会对地下结构产生空间效应影响,使结构刚度发生变化,在本文建立的模型中表现为带地下开发结构的车站结构约为2/3倍的结构宽度,标准车站受端部影响的结构空间效应范围约为2倍的结构宽度。
(5)地下综合体中车站部分的层间位移角相对于标准车站而言其值较大,侧向开孔削弱了其抗震性能。
(6)侧向开孔导致地下综合体的车站部分结构刚度削弱,其柱端弯矩响应明显增大,而不同开孔大小对地下结构的影响并不明显,但能够看出随着孔洞增大结构刚度随之削弱。
关键词:地震响应;地下综合体;一致地震动;侧向开孔
Abstract
With the development of the city, people are beginning to focus on the deeply development of underground structures because the ground buildings are gradually saturated. Metro stations, as the main public buildings, have large operating populations and often connect with the surrounding underground development structures to form underground complexes. In order to rationally develop and utilize the underground complex structure with the subway station as the core. the opening is made in the middle side wall of the subway station and the underground space development structure to facilitate the passage of people. The opening will definitely affect the seismic performance of the structure. Seismic response analysis is necessary.
Based on the relevant practical engineering, this paper uses the finite element analysis software ABAQUS to establish a three-dimensional model, and establishes a free-field /underground complex with lateral one-span openings/ underground complex with lateral two-span openings/ underground complex with lateral three-span openings. There are five types of working conditions across the open-hole underground complex, which are input with 0.1g EL-Centro waves/0.2gEL-Centro waves/0.1g Shanghai waves. The calculation results of various working conditions analysis from acceleration time history, acceleration amplitude, energy and displacement and the bending moment of the column. The influence of the underground structure on the seismic response of the soil is studied. The spatial effect and the weak parts of the structure are determined. The influence of different lateral opening methods on the overall seismic performance of the structure is discussed. The conclusions mainly include:
(1) The underground complex results in the mid-point acceleration of the surface is larger than the standard station and the free-field, and the underground structure has a certain influence range on the horizontal acceleration of the surface. In the model established in this paper, the standard station width is 4.5 times and the underground complex width is 2.7 times.
(2) The underground structure has a certain influence range on the vertical horizontal acceleration response along the soil. In the model established in this paper, the longitudinal depth of the structure is 2.7 times.
(3) The underground structure changes the energy distribution of the soil, which is manifested in the presence of underground structures, and the energy is concentrated in the vicinity of the underground structure.
(4) Due to the existence of the end wall, the spatial effect of the underground structure will be affected, and the structural rigidity will change. In the model established in this paper, the station structure with the underground development structure is about 2/3 times the structural width, and the standard station receiving end The structural spatial effects affected by the ministry are approximately 2 times the structural width.
(5) The interlayer displacement angle of the underground complex is smaller than that of the standard station, and the lateral opening weakens its seismic performance.
(6) The lateral opening causes the structural rigidity of the station part of the underground complex to be weakened, and the bending moment response of the column end is obviously increased. The influence of different opening sizes on the underground structure is not obvious. As the hole increases, the structural stiffness is weakened.
Key words: Seismic response; underground complex; uniform ground motion; lateral opening
目 录
第1章 绪论 1
1.1引言 1
1.2国内外研究现状 1
1.2.1地下结构抗震研究进展 1
1.2.2国内外对于复杂地下结构抗震的分析实例 2
1.2.3结语 2
1.3研究的基本内容、目标、拟采用的研究分析方法 3
1.3.1研究内容 3
1.3.2研究目标 3
1.3.3拟采取的技术方案 3
第2章 计算模型及计算工况 4
2.1计算模型 4
2.1.1计算范围及边界条件设置 4
2.1.2材料参数及本构模型 6
2.1.3单元类型及网格划分 6
2.1.4阻尼设置及动力时步确定 6
2.2计算工况 7
2.3监测方案 9
2.3.1自由场工况监测方案 9
2.3.2标准车站-土体工况监测方案 10
2.3.3侧向一跨开孔地下综合体-土体工况监测方案 11
2.3.4侧向两跨开孔地下综合体-土体工况监测方案 12
2.3.5侧向三跨开孔地下综合体-土体工况监测方案 12
第3章 计算结果及分析 13
3.1模态分析 13
3.2土体地震响应分析 13
3.2.1地表正中点加速度分析 13
3.2.2地表横向水平加速度幅值变化分析 15
3.2.3地表横向水平能量变化分析 17
3.2.4土体深度方向水平加速度幅值变化分析 18
3.2.5土体深度方向位移变化分析 19
3.2.6土体深度方向水平能量变化分析 20
3.3车站及地下综合体地震响应分析 21
3.3.1顶板水平加速度分析 21
3.3.2变形分析 24
3.3.3柱顶水平弯矩变化分析 27
3.4小结 34
第4章 结论与展望 35
4.1结论 35
4.2展望 35
参考文献 37
致谢 39
第1章 绪论
1.1引言
城市建设逐步发展,由于可利用地表空间资源是有限的,人们开始着眼于地下空间的开发,为了能够将城市地下空间资源得到充分利用,地下空间综合体这一建筑形式进入人们的视线,以地铁车站为核心,地下商业开发为辅助的地下空间综合体得到了大力发展。为了便于乘客在地下商业区与地铁车站之间自由走动,地下综合体的中必定存在较多的开洞,而侧墙的开洞必将削弱地下综合体的抗震能力。所以有必要研究该结构形式的抗震能力,应当对地下综合体结构进行简化分析,并建立三维计算模型,通过分析其地震响应规律得出开孔大小对于结构抗震性能的影响。
1.2国内外研究现状
1.2.1地下结构抗震研究进展
作为基础设施的重要组成部分,地下结构需要具有良好的抗震性能,为此国内外学者从各个方面对其抗震性能展开研究。
由于有关地下结构地震响应的经验数据较少,许多著名学者进行了关于地下结构地震反应特性的振动台实验研究。阪神地震后,地铁车站与区间隧道发生了破坏,通过该典型地震动破坏响应 ,Nishiyama等[1]建立单层两跨地铁车站模型输入正弦波后与经验数据进行对比分析;陈国兴等[2]通过以南京地铁车站隧道为原型结构建立的模型经过计算后得出结论变形是地下结构受地震作用后发生严重破坏的主要原因。而后,陈国兴等[3]采用自制的叠层剪切型土箱[4]来进行国内外首次基于饱和砂土以及软土地基下的模拟试验,发现了车站结构在强震作用下的空间效应、变形与破坏模式;景立平等[5]进行振动台试验后并提出增大结构延性是提高抗震性能的有效方法,同时发现试验结果为位移造成了地下结构的破坏其中具体表现为底层破坏最轻顶层破坏最为严重;杨林德等[6]在我国最早开展了软土地基地铁车站结构的系列振动台模型试验,结果表明在结构中柱的应变相比于其他结构来说较大。
基于试验基础以及经验数据,一些学者开始研究利用软件建模计算来分析地下结构的地震响应问题,其中对输入横向地震动的分析方法有:陈国兴等[10]利用ABAQUS对地下结构进行二维数值模拟,通过有限元软件建立的模型与振动台的试验结构比较后证明了该方法是可行的;修正Davidenkov本构模型由陈国兴等[11]采用并用于描述软土的动力非线性特性,经建模分析后得知该分析方法有能力对软土地基上地铁地下车站结构的地震损伤进行有效的定量评价。庄海洋等[12-13]基于新的嵌套屈服面硬化规则,改进Elgamal等[14]提出的基于塑性的液化变形本构模型,实现了基于ABAQUS的三维砂土液化大变形分析。此外,关于纵向地震反应与分析方法,JRA给出了一个类似的方法用于市政设施隧道[15],该方法采用Winker模型模拟土-结构相互作用给出地下结构的内力。
陈国兴等[16]对城市地下结构抗震研究进展这一方面总结,有关抗震试验技术的提升,为相关学者的研究夯实了基础,与此同时数值模拟也是研究城市大型地下工程结构地震破坏的一种有效方法。通过发展有效提高城市地下结构整体抗震能力的理论与方法,从而科学地认识城市大型地下工程结构系统及其依附地层的地震响应将会成为未来研究的热点。
1.2.2国内外对于复杂地下结构抗震的分析实例
城市发展迅速,单一的地下车站体已经不能满足人们的日常需求,因此各种各样的复杂地下综合体进入人们的视野,王国波[17]基于上海某实际工程地下综合体工程所建立的模型,在对试验数据进行比较分析后提出对该工程来说,当侧墙开孔面积小于其总面积的50%时对于结构而言没有显著影响,并将开孔率50%作为参考指标;张栋梁等[18]整合上述计算方法并得出进一步结论,由于侧向连续开孔削弱了结构的整体刚度,从而降低了结构的整体抗震性能;Grigorios[19]对不同的土体-矩形隧道体系进行了数值模拟,重点研究了隧道在地震作用下的复杂变形模式旨在揭示矩形隧道在横向地震作用下的动力响应特性。陶连金等[20]研究了北京某密贴地铁交叉结构与单体地铁车站在竖向地震作用下的地震响应的地震反应特性并且进行比较;陈磊等[21]利用ABAQUS软件研究了水平向强地震动作用下地铁两层交叉隧道的地震响应;基于某实际换乘站并将其作为研究对象,王国波等[22]分析了该换乘站与单体车站的地震响应规律,包括其地下结构对周围土体地震响应的影响;赵光[23]研究了城市交通节点多层交叉隧道结构的地震响应研究。
1.2.3结语
上述针对有侧向开孔的地铁车站结构及地下综合体的三维地震响应的文章仅考虑了单种开孔情况,可以建立不同开孔情况的工况以此来研究对地铁车站的地震响应规律,以及其对于地铁车站的影响。在城市大型复杂地下工程结构中,侧向开洞的大小和数量是由一定需求的,而作为城市大型建筑,抗震性能也是不可忽视的,应发掘二者之间的最优解,本文将重点从这些方面进行分析。
1.3研究的基本内容、目标、拟采用的研究分析方法
1.3.1研究内容
- 建立土体-地下综合体三维分析模型
- 具体的计算分析,确定综合体结构的空间效应及抗震薄弱部位
- 进行开洞尺寸和方式的对比分析,建议合理的开洞尺寸和方式
1.3.2研究目标
分析地下综合体复杂结构的地震响应规律,确定其空间效应以及抗震薄弱部位,探讨不同开洞尺寸和方式对结构整体抗震性能的影响,并建议合理的开洞尺寸和方式。
1.3.3拟采取的技术方案
本文拟采用理论分析和数值计算相结合的方法开展研究工作,具体研究方法包括:
- 建立土体-地下综合体三维分析模型
①熟悉地下综合体结构;
②基于工程实际,建立其三位数值分析模型;
(2)计算分析,确定综合体结构的空间效应及抗震薄弱部位
①以横向抗震分析为主,计算地下综合体的地震响应规律;
②基于响应规律,分析结构的空间效应以及确定结构抗震薄弱部位;
(3)建议合理的开洞尺寸和方式
①进行参数分析,对比分析开洞尺寸对结构地震响应的影响;
②进行参数分析,对比分析开洞方式对结构地震响应的影响;
③以开洞率作为评价指标,建议开洞率合理的取值范围。
第2章 计算模型及计算工况
2.1计算模型
本文的计算模型基于有限元分析软件ABAQUS进行分析计算。
2.1.1计算范围及边界条件设置
建立一个自由场(如图2.1.1(a))和一个经典标准车站模型(如图2.1.1(b))与地下综合体结构(如图2.1.1(c))进行对比分析。为对比分析不同开孔方式对地下综合体的影响,地下空间开发部分与车站相连的车站左上部的侧墙进行开孔,一共三种开孔方式,即每开挖一倍柱距预留一倍柱距宽度的墙体(如图2.1.1(d))、每开挖两倍柱距预留一倍柱距宽度的墙体(如图2.1.1(e))、每开挖三倍柱距预留一倍柱距宽度的墙体(如图2.1.1(f)),在下文中都简述为侧向一跨开孔、侧向两跨开孔、侧向三跨开孔。综上,共建立五个模型,自由场、标准车站、侧向一跨开孔,侧向两跨开孔、侧向三跨开孔。
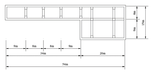
标准车站横向宽度20m,纵向长度为160m,一层层高6m、二层层高9m,车站从左到右跨度分别为5m、10m、5m,车站纵向截面如图2.1.2所示。
带空间开发地下综合体中车站部分横向宽度20m、空间开发部分宽度34m,结构总宽度54m,纵向长度为160m,车站一层层高6m、二层层高9m,空间开发部分只有一层,层高6m;空间开发部分从左到右跨度依次为9m、8m、8m、9m;考虑到采光问题,在空间开发部位第三跨顶板上沿纵向连续开孔尺寸为4mtimes;10m的天窗,沿纵向每隔2m开一个,地下综合体纵向截面如图2.1.3所示。
考虑到计算时边界效应的影响,土体的横向计算宽度一般至少应取到结构宽度的5倍,而纵向计算长度一般取结构纵向长度加上 4 倍的结构横向宽度,而深度方向则按经验取值,软土层深度为60m,基岩取10m,深度方向总长70m。为了保证后续的对比分析,按地下综合体的计算范围来考虑,即270m(宽)times;376m(长)times;70m(高)。
标准车站和地下综合体结构埋深都为3m,放置在土体中心。
关于边界条件的设置,本文采用的是侧向滑移边界,模态分析时,土体侧面竖向和纵向约束,水平横向释放使其发生剪切变形;土体底面三个方向都约束。时程分析时,土体侧面竖向和纵向约束,水平横向释放使其发生剪切变形;土体底面侧面竖向和纵向约束,在水平方向上加地震动。


(a)自由场 (b)标准车站


(c)地下综合体 (d)侧向一跨开孔


(e)侧向两跨开孔 (f)侧向三跨开孔
图2.1.1 模型示意图

图2.1.2 标准车站纵向截面示意图 图2.1.3 带空间开发地下综合体纵向截面示意图
2.1.2材料参数及本构模型
本文采用等价线性模型Davidenkov模型来模拟土体的非线性特性,Davidenkov模型可以描述为[13]:
其中:A、B、均为拟合常数,为参考剪应变;为瞬时动剪应变;、为阻尼比和瞬时动剪切模量,、为最大阻尼比和最大动剪切模量。根据相关软土动力试验结果,本文中取A=1.026,B=0.34,初始阻尼比取0.003。其他材料均采用线弹性模型,计算参数如表2.1.1所示。
表2.1.1 材料的计算参数
|
材料 |
密度kg/m3 |
弹性模量Pa |
泊松比 |
剪切波速m/s |
|
混凝土 |
2500 |
30times;109 |
0.20 |
— |
|
软土 |
1800 |
208.8times;106 |
0.45 |
200 |
|
基岩 |
2200 |
1.32times;109 |
0.20 |
500 |
2.1.3单元类型及网格划分
土体采用实体单元,车站及空间开发结构采用壳单元,柱采用梁单元。
对于网格划分的原则,为保证地震动能够在模型中传播,网格尺寸不应该过大,单元尺寸应小于波长十分之一,即
其中为剪切波速,为需考虑地震波能量范围内的最大频率,其中对于地震动分析而言,最大频率可取10Hz,,,所以应每2m划分一个网格。
2.1.4阻尼设置及动力时步确定
由于土体采用了等价非线性模型Davidenkov模型,其阻尼特性已考虑在模型中,可参考公式(2.2),其中土体的初始阻尼比按经验取值为0.001。地下综合体结构中的墙板和柱子采用瑞利阻尼,阻尼比取0.05。
对于0.1gEL波和0.2gEL波,在地震动数据点之间(即0.02s)应有10个数据点来之间近似逼近,动力时步取0.002s;对于上海人工波,在地震动数据点之间(即0.01s)应有10个数据点来之间近似逼近,动力时步取0.001s,计算时间统一取20s。


