谦迈河(89 166 89)连续刚构特大桥上部结构设计毕业论文
2020-04-12 09:03:02
摘 要
本文的内容是谦迈河连续刚构特大桥上部结构设计及验算,本次设计所采用的计算分析软件为Midas/Civil,Midas/Civil是一种在建立模型结构的基础上,施加各类恒载、活载,然后进行分析运算的软件,本文所涉及的主要内容是:设计资料分析,桥梁方案比选,截面尺寸拟定,Midas/Civil建模,施工阶段划分,预应力钢束设计和布置,内力计算和截面验算等。本桥型采用(89 166 89)m三跨连续刚构体系,桥梁全长344m,桥面宽度12.5m,单箱单室箱型截面梁,双向六车道,主桥采用悬臂施工法。连续刚构桥能够充分利用高强度材料,构件截面小,具有较大的跨越能力,还可以使桥梁显得柔和美观,但是对桥梁基础要求较高,通常宜用于地基较好的场合。
关键词:连续刚构桥;Midas/Civil;预应力。
Abstract
The content of this paper is the design and verification of the superstructure of the continuous rigid-frame super bridge of the Qianmaihe River. The calculation and analysis software used in this design is Midas/Civil. Midas/Civil is a model based on the establishment of model structures, applying various types of constants. The main contents of this paper are: analysis of design data, selection of bridge plans, drafting of section dimensions, Midas/Civil modeling, division of construction stages, design and layout of prestressed steel beams. , Internal force calculations, cross section calculations, etc. The bridge type adopts a (89 166 89) m three-span continuous rigid frame system with a total length of 344m, a bridge width of 12.5m, single-box single chamber box-section beams, two-way six-lane, and the main bridge adopts the cantilever construction method. Continuous rigid-frame bridges can make full use of high-strength materials, have small cross-sections of components, have greater spanning capacity, and can also make bridges look soft and beautiful, but require higher requirements for bridge foundations and are generally suitable for occasions with better foundations.
Key words: Continuous Rigid Frame Bridge; Midas/Civil; Prestres
目 录
第一章 绪论 1
1.1连续刚构桥概述 1
第二章 桥梁设计方案及桥梁比选 2
2.1 桥址处自然概况 2
2.1.1 地理位置、地形地貌 2
2.1.2 气象 2
2.1.3 水文地质条件 2
2.1.4 工程地质条件 2
2.2设计说明 3
2.2.1设计依据 3
2.2.2设计标准 3
2.3桥梁设计原则 3
2.3.1安全性与适用性 4
2.3.2经济性和美观性 4
2.4桥梁方案比选 4
2.4.1方案一:连续刚构桥 4
2.4.2方案二:连续梁桥 4
2.4.3方案三:悬索桥 5
2.4.4桥型方案比选 6
2.5主要材料 6
2.5.1混凝土 6
2.5.2钢材 6
2.6桥跨总体布置 7
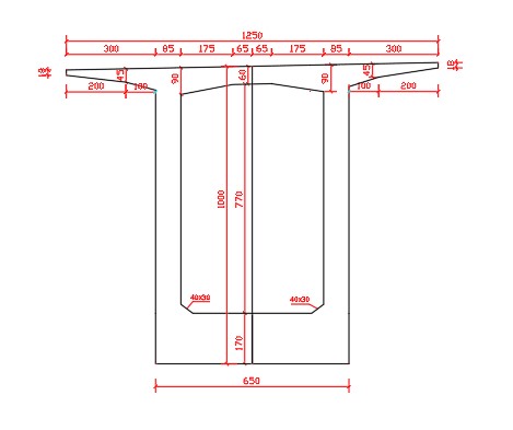
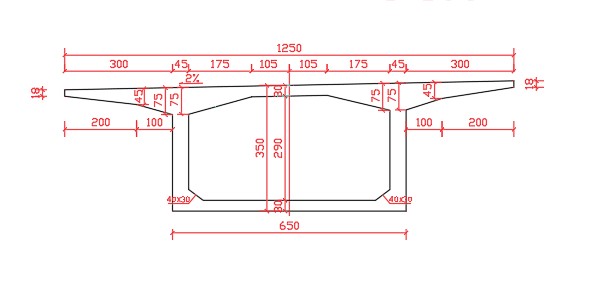
2.7桥梁上部结构尺寸拟定 7
2.7.1主梁高度 7
2.7.2横桥向尺寸拟定 8
2.7.3预应力束配筋拟定 8
第三章 Midas/Civil 建模 11
3.1 Midas/Civil建模概述 11
3.2 Midas/Civil建模 11
3.2.1设定操作环境 11
3.2.2定义材料 12
3.2.3定义截面 13
3.2.4定义变截面/变截面组 13
3.2.5建立节点 15
3.2.6建立单元 16
3.2.7定义时间依存性材料 17
3.2.8定义结构组 17
3.2.9定义变界条件及边界组 18
3.2.10建立静力荷载工况 18
3.2.11建立移动荷载工况 19
3.2.12施加预应力荷载 20
3.2.13定义荷载组 22
3.2.14划分施工阶段 23
3.3 Midas/Civil分析过程 24
3.3.1生成荷载组合 24
3.3.2模型分析结果 26
3.3.3 PSC设计 27
第四章 荷载内力计算 30
4.1 各单元截面箱梁高度 30
4.2 恒载内力计算 30
4.2.1 结构自重作用下内力 30
4.2.2二期恒载作用下内力 32
4.3移动荷载作用下内力 33
4.4整体升/降温作用下内力 35
4.5荷载内力组合 37
4.6次内力计算 37
4.6.1温度次内力计算 37
4.6.2徐变次内力计算 38
4.6.3预应力次内力计算 38
第五章 预应力钢束设计 40
5.1 纵向预应力钢束的布置 40
5.1.1预应力钢束估算 40
5.1.2纵向预应力钢束布置原则 40
5.1.3纵向预应力钢束布置 40
5.2 纵向预应力钢束损失 42
5.3 有效预应力计算 44
第六章 截面验算 45
6.1 内力组合 45
6.1.1正常使用极限状态短期效应组合 45
6.1.2正常使用极限状态长期效应组合 45
6.1.3承载力极限状态基本组合 46
6.1.4弹性阶段应力组合 47
6.2 承载能力验算 47
6.2.1正截面抗弯承载能力验算 47
6.3 抗裂能力验算 48
6.4持久状况预应力混凝土构件压应力验算 49
6.5施工阶段混凝土构件压应力及拉应力验算 52
6.6挠度验算 53
第七章 毕业设计总结 54
参考文献 55
致谢 56
第一章 绪论
毕业设计是高校毕业生在毕业之前所做的独立性的总结性的作业,因此毕业设计也是实践教学的最后一个任务。其目的是培养和提升学生综合运用所学理论知识和技能取解决实际工程问题的能力。通过毕业设计的一系列工作,使学生将在本科阶段所学的各类基础理论、专业知识以及实践认识系统性地运用于解决实际工程问题,有助于学生联系实际,更加深入的理解所学习的理论知识,为学生即将走向社会,走向工作岗位打下坚实的基础。
1.1连续刚构桥概述
桥梁一般指在交通运输领域,架设在江河湖海上,或者是有跨越障碍需求的地方所修建的供车辆行人顺利通过的建筑物,其基本结构包括上部结构、下部结构、支座和附属构造物组成[1]。随着地质地形的多样性,桥梁结构设计理论的逐步完善,以及现代建造技术的飞速发展,现代桥梁已经逐渐形成了各种结构和不同受力体系的结构形式,按照受力体系对桥梁进行分类,桥梁可分为三类,梁式桥、拱桥和悬索桥,其中,梁式桥以受弯为主,拱桥以受压为主,悬索桥以受拉为主,此外,由上述三大基本体系的相互组合,派生出在受力上也具有组合特征的多种桥型,比如刚架桥和斜拉桥等等[2]。
连续刚构的桥型理论起源于国外。主跨长208米,柔性墩宽2.8米,1956年竣工于联邦德国的本道尔夫(Bendorf)桥是世界上的第一座连续刚构桥,;而亚洲第一座刚构桥则是上世纪七十年代由日本建成的滨名大桥,该桥主跨240米;我国对于连续刚构体系的探索始于上世纪六十年代,1964年,我国建成盐河桥,一座预应力T型刚构实验桥,盐河桥的跨度为33米,拥有两个双悬臂,中跨用剪力铰连接,边跨采用自由悬臂。我国建造的第一座预应力混凝土连续刚构桥是广东洛溪大桥,该桥竣工于1988年,主跨180米,双薄壁墩高约30米,支点处梁高为10m;随着一代又一代工程师的不断探索,我国在大跨径连续刚构桥型方面的建造水平已走在世界前列,有资料显示:在世界已经建成跨度超过240m的16座预应力混凝土连续刚构桥中,中国占6座。


第二章 桥梁设计方案及桥梁比选
2.1 桥址处自然概况
2.1.1 地理位置、地形地貌
谦迈桥连续刚构特大桥的桥址位于云南省澜沧县龙塘镇境内,桥型主轴线走向的方位角大约为235°,拟建桥梁目的是为了连接思茅到澜沧公路跨越澜沧江标段,该地区属于高原,地势起伏较大,斜坡的自然坡度大致处于30°-50°范围,桥位附近中线地面的高程范围为190~278m,最高处与最低处相对高差约为88m。
桥位所在地区交通情况不良,交通不便,附近地段经济发展水平较为落后,居民生活水平地下,世代农业种植以水稻等为主,副业为种植木材于果树为主。
2.1.2 气象
该工程项目区属于南亚热带季风性气候,干湿季节性特性比较明显,春夏气候温和,雨水较多,秋冬气候凉爽,不会严寒,该区植被四季常青。年度的平均气温17~23℃,月平均气温最高 28.5℃,月平均气温最低7.6℃,极端情况下最高气温36℃ ;极端情况下最低气温为-2.1℃。一年度的平均降雨量1640mm~2430mm,降雨主要集中在3-7月,6月份降雨达到最大值,一年度降水量最大值为3050.8mm,一年度最小降雨量为1300mm,因此该地区属于多雨区域,年平均降雨天数为167天,冬季时候多偏北风,年最大风速为4.0m/s,年平均风速2.0m/s,累计年平均蒸发量1648.5mm,2月的月平均蒸发量最小,为90.8mm, 7月份的蒸发量在各月中当中最多,累计年度平均蒸发量210.4mm。
2.1.3 水文地质条件
桥位所在地区的地表水体为澜沧江,水位及流量受季节控制明显,旱季水位较低;雨季大量雨水汇入江水,水量增大,水位上涨。
以上是毕业论文大纲或资料介绍,该课题完整毕业论文、开题报告、任务书、程序设计、图纸设计等资料请添加微信获取,微信号:bysjorg。
相关图片展示:









