有轨电车作用下曲线钢-混组合连续梁桥力学性能分析开题报告
2020-04-12 08:48:12
1. 研究目的与意义(文献综述)
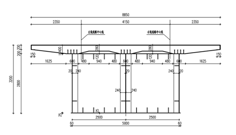
1.1概述武汉市东湖国家自主创新示范区有轨电车t2实验线工程,西起汤逊湖城铁站,沿天恒路、大学园路、三环线、武黄高速、神墩五路、光谷七路走行,终点在九峰一路。 t2线线路全长19.192km,跨武黄高速高架桥总长141m,采用小半径s形曲线钢-混凝土组合连续梁桥,单箱双室截面,桥面总宽8.85m,梁两侧翼缘为现浇钢筋混凝土结构。主梁断面图如图1所示。
2. 研究的基本内容与方案
2.1研究的基本内容小半径s形曲线钢-混凝土组合梁桥结构新颖、受力性能复杂。本选题拟以武汉市东湖国家自主创新示范区有轨电车t2试验线工程为例,运用midas/civil有限元软件,建立该桥梁结构精细化有限元模型,研究有轨电车荷载作用下曲线钢-混凝土组合梁桥成桥和运营阶段的受力性能,掌握混凝土桥面板、钢主梁的变形和内力变化规律。
主要研究内容包括:
(1)识读施工图,掌握钢-混组合连续梁桥的受力特点和计算方法;
3. 研究计划与安排
第1-2周:熟悉施工图纸,学习钢-混组合连续梁桥相关分析理论和midas/civil有限元软件,查阅国内外文献,明确研究内容和方法,确定技术路线,完成开题报告。第3-6周:建立钢-混组合连续梁桥有限元模型。
第7-9周:考虑t2线s形曲线钢-混组合连续箱梁桥实际施工和成桥状态,运用有限元软件分析不同阶段组合桥梁的力学性能。
第10-11周:整理研究成果,撰写毕业论文。
4. 参考文献(12篇以上)
[1]聂建国.钢-混凝土组合结构桥梁[m].北京:人民交通出版社,2011.[2]郑兵.钢-混组合曲线连续箱梁桥受力性能研究[d].成都:西南交通大学,2012.
[3]苏庆田,刘玉擎,曾明根.钢混组合箱梁桥受力的有限元仿真分析[j].桥梁建设,2006,2006(5):28-31.
[4]刘沐宇,李倩,黄岳斌等.港珠澳大桥钢-混组合连续梁桥超长时间收缩徐变效应[j].中国公路学报,2016,29(12):60-69.


