清水河大桥(35 60 35)m上构施工图设计毕业论文
2020-04-09 14:14:00
摘 要
此次我的毕业设计的设计对象是清水河大桥预应力混凝土变截面连续箱梁桥。我此次的设计任务是根据任务书书以及相关通用规范的规定计算本连续箱梁桥的上部结构,并且设计绘制此箱梁桥的上构施工图。
第一步,按照公路桥规的相关规范初步确定出桥梁主梁的主要构造以及相关细部尺寸,确定支点处和跨中处的梁高,确定桥宽、顶板厚度,确定底板下缘以及上缘的变化,确定腹板厚度变化的形式。
第二步,利用 MIDAS CIVIL 软件建立桥梁模型。第一步根据已经确定的结构尺寸建立几何模型,建立边界条件。第二步添加预应力钢束和荷载,第三步划分施工阶段。这个过程中最关键的步骤是预应力钢束的添加,需要进行反复的调整才能找到能满足规范要求的预应力束的数量以及形状。调试完成后就可以运行分析,成功运行后,查看各类荷载组合下的内力图和应力图,同时可以在PSC设计中可以查看模型是否满足各阶段法向压应力验算、钢筋拉应力验算、正截面和斜截面抗裂验算以及正截面抗弯验算表格。
第三步,绘制完成此箱梁桥的施工图。
总结:经过模型的分析的分析验算表明,本次设计的上部结构计算方法正确,持久状况承载能力极限状态强度满足规范要求,计算过程以及完成的工作数量符合设计任务书的要求。
关键词:箱梁桥;预应力混凝土;MIDAS CIVIL建模;设计计算;验算
Abstract
The object of my graduation project is the third prestressed concrete continuous box girder bridge with variable cross section in Qingshuihe Bridge. My design task is to calculate the superstructure of the continuous box girder bridge according to the task and the relevant general specification, and to design the construction drawing of the box girder bridge.
The first step is to determine the main structure of the bridge main beam and the related details according to the relevant specifications of the highway bridge rules, determine the beam height of the pivot point and the middle span, determine the width of the bridge and the thickness of the roof, determine the equation of the change curve of the bottom edge and the upper edge of the bottom plate, and determine the form of the change of the thickness of the web.
The second step is to build bridge model by using MIDAS CIVIL software. First, the geometric model is established according to the size of the pre-determined structure, then the prestressed steel beams and loads are added, and then the construction stage is divided. The most important step in this process is the addition of the prestressed beam, which requires repeated adjustments to find the number and shape of the prestressed beam that meets the requirements of the specification. After the completion of the debugging, we can run the analysis and check the internal force diagram and the stress diagram under various load combinations. At the same time, the PSC interface can see whether the model satisfies the normal pressure stress checking, the tensile stress checking calculation, the checking calculation of the cross section and the oblique section, and the checking calculation of the normal section.
The third step is to calculate the load-bearing capacity of the bridge deck and the local bearing capacity of the prestressed steel beam anchorage zone, and to calculate and check the cast-in-place pile of the main pier and the main pier, and draw the construction drawings of the bridge.
Summary: through the analysis of the model and the analysis and calculation of the hand calculation, the calculation method of the upper structure of this design is correct. The ultimate state strength of the endurance state bearing capacity is satisfied with the standard requirements. The calculation process and the amount of work completed are in accordance with the requirements of the design task book.
Keywords: girder bridge; Prestressed concrete; MIDAS CIVIL; Design and calculate ; Checking computation
目录
第1章 绪论 6
1.1选题设计思想及意义 7
1.2设计资料 7
1.2.1技术标准 7
1.2.2主要材料 7
第2章 桥跨总体布置及结构尺寸拟定 9
2.1尺寸拟定 9
2.1.1桥孔分跨 9
2.1.2截面形式 10
2.1.3梁高 10
2.1.4细部尺寸 11
2.1.5 桥面铺装 12
2.2建立计算模型 12
2.2.1.单元划分 12
2.2.2全桥施工分段划分 13
2.2.3.荷载信息 14
第3章 内力计算与组合 16
3.1恒载内力的计算 16
3.1.1一期恒载(结构自重) 16
3.1.2. 二期恒载 16
3.2活载内力计算 17
3.2.1横向分布系数的计算 17
3.2.2活载内力的计算 17
3.2.3计算结果 18
3.3次内力计算 20
3.3.1温度引起的内力计算 20
3.3.2支座位移引起的内力计算 21
3.3.3徐变引起的内力计算 22
3.3.4预加力产生的次内力 23
3.4承载能力极限状态的内力组合 24
3.5正常使用极限状态的内力组合 26
3.6内力组合 27
第4章 预应力钢束数量及损失计算 30
4.1预应力钢束数量的确定 30
4.2预应力束的布置 33
4.2.1布置原则 33
4.2.2钢束的布置 33
4.3预应力钢束与管道壁之间的摩擦 33
4.4锚具变形、钢束回缩和接缝压缩 34
4.5混凝土弹性压缩 35
4.6预应力钢束的应力松弛 35
4.7混凝土的收缩徐变 35
4.8预应力钢束的有效应力计算 36
第5章 主梁验算 38
5.1持久状况承载能力极限状态验算 39
5.1.1截面受压区高度 40
5.1.2正截面抗弯承载力验算 40
5.1.3斜截面抗剪承载力验算 44
5.2持久状况正常使用极限状态验算 44
5.2.1正截面抗裂验算 45
5.2.2斜截面抗裂验算 47
5.3持久状况构件应力验算 48
5.3.1正截面混凝土法向压应力验算 48
5.3.2正截面受拉区预应力钢束拉应力验算 50
5.4短暂状况构件应力验算结果 53
5.5挠度验算 57
5.6 梁端锚固区的局部承压验算 58
5.6.1局部承压尺寸要求 59
5.6.2局部承压承载力验算 60
参考文献 61
致谢 62
第1章 绪论
1.1选题设计思想及意义
本次毕业设计(论文)以清水河大桥为背景,对其进行设计总体说明、上部结构计算和主要的施工图设计。本桥梁是跨径布置为35 60 35m的预应力混凝土连续箱型梁桥,桥宽为17m,采用了双向四车道。主梁采用的是单箱单室型截面,为了提升桥梁的跨越能力、减轻结构自重、保证线形优美等采用变截面形式。连续梁桥由于是超静定结构,计算量大,且准确性难以保证,所以采用MIDAS CIVIL进行桥梁建模,这样不仅提高了效率,而且准确性也得到了保证。在施工方面,结合其地形情况及起重设备等方面的考虑,采用悬臂施工法。做好本次毕业设计(论文)可以使学生所学的基础理论知识与专业知识更加系统、巩固、延伸和拓展,从而能够提高学生的调查研究、理论分析、计算、绘图和外语翻译等各方面的综合能力,特别是提高综合运用已学的基本理论知识分析、解决工程实际的能力。
1.2设计资料
1.2.1技术标准
1)公路等级:一级;
2)设计速度:80km/h;
3) 汽车荷载:公路-I级;
4)桥梁宽度:17m;
5)
:双向2%;
6)截面形式:单箱单室;
7)高程系统:1956年黄海高程系统;
8)环境类别:I类;
9)
设计基准期:100年;安全等级:1级。
1.2.2主要材料
(1)沥青混凝土:用于桥面铺装,全桥桥面铺装厚度10cm;
(2)C50混凝土:用于箱梁主体浇筑;
(3)CF钢纤维混凝土:用于伸缩缝预留槽;
(4)C40混凝土:用于桥墩、台帽、墩身;
(5)C30混凝土:用于基桩和承台;
(6)C40小石子混凝土:用于支座垫石。
1)混凝土
设计要求混凝土技术标准应符合《公路钢筋混凝土及预应力混凝土桥涵设计规范》(JTG D62-2004)有关规定。混凝土的配合比、拌制、运输、浇筑、振捣、养护、施工缝以及混凝土配合料所采用的水泥、砂、石、水、外加剂等材料的要求,应严格按照《公路桥涵施工技术规范》执行,满足规范质量检验和质量评定标准。混凝土应采用科学的配合比,减少氯离子渗透和碱骨料反应,尽量提高混凝土的密实性,慎用早强剂,以提高混凝土的耐久性。
2)钢筋
普通钢筋采用HPB300和HRB400两种级别,钢筋应符合《钢筋混凝土用钢第一部分:热轧光圆钢筋》(GB1499.1-2008)和《钢筋混凝土用钢第二部分:热轧带肋钢筋》(GB1499.2-2007)的规定。钢筋直径
者,采用HRB400热轧带肋钢;直径lt;12mm者,采用HPB400钢。
受力主筋直径
的螺纹钢筋应采用套筒挤压连接或等直螺纹套筒连接技术。套筒挤压接头的施工与检验应符合《钢筋机械连接通用技术规范》(JGJ107-96)及《带肋钢筋套筒挤压连接技术规范》(JGJ108-96)的规定。用于等强度直螺纹连接的钢筋应符合现行国家标准,其连接技术规程与现行行业标准《钢筋机械连接通用技术规范》(JGJ107-2003)配套使用,尚应符合国家现行标准的有关规定。采用电弧焊接时,其焊条应符合《碳钢焊条》(GB/T5117-95)及《低合金钢焊条》(GB/T5118-95)的规定。
3)预应力钢束
预应力钢束采用符合国家标准《预应力混凝土用钢绞线》(GB/T 5224-2003)规定的高强度低松弛率钢绞线。其公称直径15.2mm,标准强度
,弹性模量
,松弛率小于0.035,设计锚下张拉控制应力1395Mpa。钢束应采用M15系列圆形锚具及其成套配件。预应力管道应采用圆形塑料波纹管。要求钢绞线的供货厂家必须取得ISO9002质量体系认证证书,产品质量应有部级以上鉴定证书。
- 其他材料
(1)伸缩缝:桥面伸缩缝采用D160或D240型式伸缩缝,其技术性能应符合《公路桥梁伸缩装置》(TJ/T327-2004)的要求。
(2)支座:桥梁支座采用GPZ盆式橡胶支座,其技术性能应符合《公路桥梁盆式橡胶支座》(JT 391-1999)的要求。
第2章 桥跨总体布置及结构尺寸拟定
2.1尺寸拟定
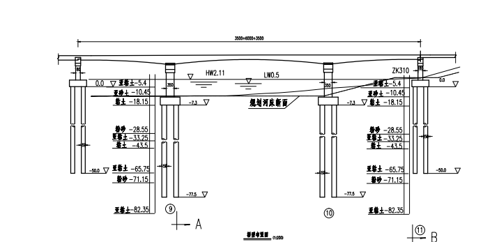
本方案采用三跨一联的预应力混凝土连续箱型梁桥,桥梁全长130m,设计主跨为60m。桥型布置图如下。
2-1.桥型布置图
2.1.1桥孔分跨
连续梁桥有很多种不同的样式,有的桥型做成三跨的桥,有的做成多跨一联的桥,但一般都不会做成超过六跨的形式。对于桥孔分跨的问题,往往受到一下这些因素的影响:地形地势、地质条件以及水文条件,通航要求和墩台基础及支座构造,力学方面的要求,美学方面的要求等。如果采用三跨一联不等的桥孔布置,一般边跨与中跨之比要求为
,这样可使跨中不会产生正弯矩,此外,边跨与中跨之比还与桥的施工方法有着一定关系。本桥的设计跨度,主要是根据设计任务书来确定的,其跨度组合为
,边跨与中跨之比为
,符合以上原理要求。
2.1.2截面形式
1)桥型布置
当连续梁的跨径接近或大于
时,在恒、活载作用下,支点截面将出现较大的负弯矩。从绝对值来看,支点截面处的负弯矩远远要大于跨中截面处的正弯矩。所以,采用增大支点高度的变截面梁可以更好的适应桥梁结构的内力分布规律。这样做不但对恒载引起的截面内力影响不大,同时也不会妨碍桥下的通航的净空要求,并且还能满足要使支点处有着较大剪力的要求。同时,变截面的立面布置能够使结构外形大方、美观。采用变截面布置尤其适用于桥梁的悬臂法施工,施工阶段的主梁的刚度大,并且与施工内力状态相吻合。
2)横截面布置
预应力混凝土连续梁桥横截面的形式主要有:板式、肋梁式以及箱型截面。板式截面一般使用于中小跨径的连续梁桥中,大多采用的是支架现浇施工,一般空心截面使用于跨径
的连续梁桥中。除此以外,连续梁桥主梁除了在跨中部分承受正弯矩外,支点处还要承受负弯矩,因此,在截面设计中支点截面往往需要加强。常常做成马蹄形的T形截面,适用跨径在
。当跨径较大时,主梁一般采用箱型截面。箱型截面的顶、底板都有比较大的面积,因而能有效抵抗正、负弯矩,并满足配筋要求。而且截面闭合抗扭刚度比较大,具有比T形截面高的截面效率指标,当桥梁承受偏心荷载时内力分布比较均匀,整体性好。另外,箱型截面构造布置灵活,适用于悬臂施工、
、支架现浇施工等。箱型截面根据桥面宽度、施工方法的不同,可以采用不同的形式,常见的截面形式有单箱单室(顶板宽度小于
);单箱双室(顶板宽度
左右);双箱单室(顶板宽度达
左右);多箱多室截面可以不受限制。
本设计采用单箱单室截面,截面宽度为
。


