换流站装配式框架-外挂式防火墙结构抗震分析方法研究毕业论文
2020-03-25 08:26:30
摘 要
换流站装配式阀厅中防火墙板的布置非常重要,它直接影响了阀厅结构中局部结构的抗侧刚度,且其受力性能复杂,因此确定换流站装配式阀厅中装配式防火墙板的布置对结构抗震性能的影响至关重要。
对于上面的一些原因,对换流站装配式结构的抗震性能等展开研究是非常有必要的。本文以某换流站阀厅实际工程为背景,用SAP2000软件去建立它的有限元模型,来分析该模型在地震作用下的动力特性,从整体角度探究这种装配式防火墙对结构抗震性能的影响。主要研究工作和结论如下:
1.利用SAP2000建立换流站阀厅整体结构模型,包含纯框架模型、框架-装配式防火墙模型,对该结构的模态进行分析,并在El-centro地震波作用下的动力响应,以及反应谱法抗震进行分析;
2.纯框架模型质量分布均匀,变形规整,结构两侧抗侧刚度相近,无明显扭转;换流站装配式框架-外挂式防火墙结构中其第一阶振型产生了扭转作用,这种扭转的幅度并不是很大,结构周期与纯框架结构相差不大;
3.在现在的换流站装配式框架-外挂式防火墙的设计和计算中,大家大多直接采用纯框架结构进行分析计算,但通过本文对纯框架模型,装配式防火墙板模型进行对比分析可知,在增加防火墙板后,防火墙一侧刚度有一些增强,整体结构出现扭转作用,但相对于纯框架结构来说其刚度增强和扭转变形都不很明显,所以在对装配式阀厅进行设计计算时,可以直接采用纯框架结构进行分析计算,但应注意结构的整体扭转。
关键词:装配式外挂式防火墙,抗震性能,地震时程分析,地震影响
Abstract
The arrangement of the firewall board in the assembly valve room of the converter station is very important. It directly affects the lateral stiffness of the partial structure in the valve hall structure, and its stress performance is complex. Therefore, the assembly type valve room in the converter station is determined. The layout of the board is crucial to the impact of the seismic performance of the structure.
For some of the above reasons, it is necessary to carry out research on the seismic performance of the prefabricated structure of the converter station. In this paper, based on the actual project of the valve hall of a converter station, SAP2000 software is used to establish its finite element model to analyze the dynamic characteristics of the model under seismic action. From the overall perspective, this kind of prefabricated firewall is used to explore the seismic performance of the structure. influences.The main research work and conclusions are as follows:
1. Using SAP2000 to establish the overall structure model of the converter station valve hall, including the pure frame model, the frame-prepared firewall model, the modal analysis of the structure, the dynamic response under the El-centro seismic wave, and the response spectrum Anti-seismic analysis of the law;
2. The mass of the pure frame model is evenly distributed, the deformation is regular, and the lateral stiffness of the two sides of the structure is similar, and there is no obvious torsion; the torsional action of the first mode shape of the prefabricated frame-external firewall structure of the converter station is generated. The magnitude of this is not very large, and the structural cycle is not much different from that of a pure frame structure;
3. In the current design and calculation of the converter station assembly frame-plug-in firewall, most of them directly use the pure frame structure for analysis and calculation, but through the comparative analysis of the pure frame model and the assembly firewall model in this paper, we can see that After the firewall board is added, the rigidity of the firewall has some strengthening, and the overall structure appears torsion. However, compared with the pure frame structure, its stiffness and torsional deformation are not obvious, so when designing the assembly valve room, The purely framed structure can be directly used for analysis and calculation, but attention should be paid to the overall torsion of the structure.
Keywords: prefabricated external firewall, seismic performance, seismic time history analysis, seismic impact
目录
第一章 绪论 1
1.1 地震的灾害与启示 1
1.2 装配式建筑的发展与研究 1
1.3 换流站阀厅的发展和研究 2
1.4 本文研究与内容 3
第二章 装配式阀厅工程背景及抗震分析理论基础 4
2.1 工程概况及结构的材料、荷载信息 4
2.1.1结构的布置信息 4
2.1.2材料的选取 7
2.1.3结构荷载 7
2.2 软件分析 8
2.3 结构抗震分析计算方法 9
2.3.1反应谱法 9
2.3.2 时程分析法 10
第三章 装配式框架结构的建立与抗震分析 12
3.1 模型的建立 12
3.1.1模型简化 12
3.1.2模型建立 12
3.2模态分析 14
3.3装配式阀厅反应谱及多遇地震时程分析 16
3.3.1 位移响应分析 17
3.3.2 内力响应分析 21
3.4本章小结 21
第四章 结论与展望 23
4.1 本文的主要结论 23
4.2 不足与展望 23
参考文献 25
致 谢 26
第一章 绪论
1.1 地震的灾害与启示
我国有史以来就是一个地震较为多发的国家,由于其地理位置在环太平洋地震带与欧亚地震带两者之间,历史上所发生的唐山大地震,汶川地震等多次大的地震给人民的生命财产安全造成了非常大的损失。
当前我国所发生的大多数的地震都是因为地壳构造运动使深部石块的应变值超过了容许值,使得岩层发生断裂、错动而产生的地面振动。强烈的构造地震影响范围大,破坏性大,发生频率高,最重要的是突然发生,以我国当前的科技发展水平还很难去掌握预测,因此通常会引起非常严重的后果,最开始最直接的就是会威胁到人的生命安全,然后就是对建筑结构的破坏,例如建筑结构的坍塌会引起的停电`、停水、通信中断等一系列反应,因此影响了人类正常的生活。此外,地震还会引起产生一些自然灾害,例如山体滑坡等等,情形较轻则会影响道路的通行,情形较重则会引发严重的交通事故。
地震的发生还会引发一些次生灾害,例如动物的瘟疫,因此,在地震发生之后,需要第一时间展开防疫工作。最后,很多人因为地震的发生会对其造成严重的心里伤害,会对其以后的生活留下严重的心里阴影。
因为地震的发生会造成上面的一系列严重后果,所以我们在建筑结构设计中必须严格执行国家设防标准,一旦突发超过7.0的大地震时,地震所带来的灾害与破坏是非常严重的也是毁灭性的,因此做好抗震的设计是眼下非常必要的,我们必须得把地震造成的损失降到最低。
1.2 装配式建筑的发展与研究
至今为止,我国建筑行业的施工方式基本都为传统的现场施工方式,这种方式存在着需求劳动力多、管理难、强度大等不好的因素。然而装配式建筑是一种新型的施工方式,这种施工方式的主要特点是需要在产房先预制构件,然后在到现场进行装配,所以这种方式的产生不仅解放了劳动力还在质量上优于传统,现在发展十分快速。
上世纪九十年代,美国和日本共同开展了一项研究,他们研究的主要内容就是预制混凝土结构对地震的抗震能力。此项目的目的在于建立计算模型以满足不同环境之下对地震的防护能力,此项目所涉及到的内容有对预制混凝土的材质、技术和概念的设计规范要求。像这样的实验还有很多,例如2003年,欧洲ELSA实验室所研究预制混凝土结构的拟动力实验,还有单双跨双榀以及不同楼板的铺设规划进行拟动力试验。其中拟动力实验要求梁柱节点使用螺栓连接,其中少数需要放置一个橡胶垫,这个实验表明,预制混凝土框架结构与现浇混凝土结构抗震能力相似,但是对于其中存在橡胶垫使用的节点,其保存的完整性更强。2005年同济大学在此基础上升级实验难度,采用三跨三层的预制混凝土结构进行振动台实验。我国还有很多的高校进行多种相似实验,例如,东南大学的实验是对装配整体的钢筋混凝土框架的接头;清华大学的实验是对预制混凝土的拟静。还有高校专门成立了研究中心,例如上海大学的装配式建筑研发中心,还有上海大学智慧城市研究院的建筑信息模型与装配式研究等。
即使装配式建筑抗震能力远强过传统建筑,但是对此投入的精力仍然不够。当前我国在装配式建筑抗震方面主要的对象是节点研究,与传统的现浇节点不同,装配式建筑节点在其力学上的特征更完整,从而影响抗震能力,所以大家对装配式建筑节点的研究仍然不能停止。还有装配式建筑的抗震研究不能只研究不节点,还应该延伸到更多的类型上面,只有实时的调整方案,才能提高抗震效果。
装配式建筑结构在建筑行业中有着很好的应用和发展前景,国内外学者对装配式RC结构做了很多研究工作,并得到了多种装配式结构形式,例如无粘结预应力装配式框架、预制结构钢纤维强混凝土框架、混合连接装配式混凝土框架、装配整体式钢骨混凝土框架等。因为我国对预制混凝土结构抗震性能研究较少,导致国内的预制混凝土结构的研究和工程应用与国外先进水平相比还有很大的差距,预制混凝土结构在地震区的应用受到限制,所以我国迫切需要展开对预制混凝土结构抗震性能的系统研究。中央曾下政策,未来十年时间要使装配式建筑占到新建建筑比例的30%。
1.3 换流站阀厅的发展和研究
换流站是指在高压直流输电系统中,为了完成将交流电变换为直流电或者将直流电变换为交流电的转换,并达到电力系统对于安全稳定及电能质量的要求而建立的站点。换流站作为高压直流输电系统中的重要一环,保证其结构的稳定性是一项重要的任务,所以之前已有很多相关方面的研究成果。目前学者们主要考虑的是阀厅中阀塔的抗震性能或阀塔对整体结构抗震性能的影响,而很少考虑防火墙的形式对结构整体的影响。新型的装配式换流站阀厅,其墙体不同于传统的填充墙,但是满足了防火墙使用功能上的要求,关于这种新型阀厅形式的相关研究国内外都比较少。
阀厅是控制换流站建设工期的关键路径之一,也是换流站内最重要的建筑物之一。当前国内换流站阀厅一般采用钢结构或钢-钢筋混凝土混合结构,阀厅与换流变间防火墙均采用钢筋混凝土剪力墙或钢筋混凝土框架填充墙结构,其中混凝土防火墙需现场浇筑,标准化和工业化程度都较低,施工周期较长,控制着换流站建设工期,这就使得国内换流站阀厅在核准后的建设工期非常紧张。现浇混凝土结构现场施工存在着噪声扰民,粉尘污染等很多缺点,钢—混凝土全预制外挂式防火墙阀厅通过工厂生产预制和现场装配安装两个阶段建设,可节省施工工期,能较好的满足业主对工期的要求。
1.4 本文研究与内容
本文在研究中,对换流站装配式框架-外挂式防火墙结构的设计和抗震性能主要采用了SAP2000有限元软件来研究,建立SAP2000结构模型,从整体角度探究装配式外挂式防火墙对阀厅整体结构抗震性能的影响。具体研究内容如下:
1.建立不同的整体模型,包含纯框架模型、框架-装配式防火墙模型;
2.对两种模型进行模态分析,对模态对比分析,探究结构形式对振型的影响。且基于模态分析对结构进行反应谱及时程分析,其中主要对不同模型的位移、内力等响应进行比较分析,探究装配式外挂式防火墙板对阀厅整体结构抗震性能的影响程度。
第二章 装配式阀厅工程背景及抗震分析理论基础
2.1 工程概况及结构的材料、荷载信息
2.1.1结构的布置信息
本文所探究的内容为某±800 千伏换流站装配式阀厅结构,本结构采用的是钢-预制混凝土装配式混合结构形式。其中,换流变压器防火墙柱采用预制钢筋混凝土柱,防火墙板采用预制钢筋混凝土板,防火墙板与防火墙一侧扣式安装。结构另一侧应用钢结构,以钢屋架相连,水平方向以钢支撑连接,得到整体的装配式阀厅结构。阀厅钢柱及预制柱插入杯口式基础中,并牢固连接。
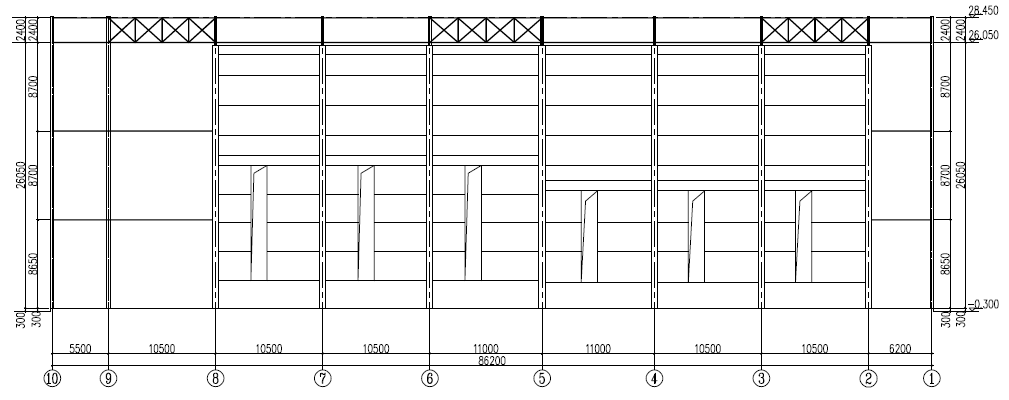
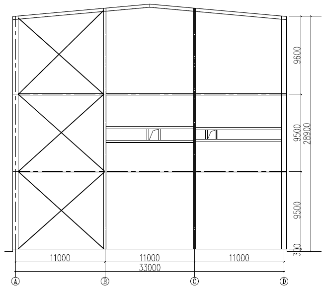
阀厅的整体跨度较大,屋架下弦悬挂换流阀塔。为减轻对屋面的荷载,阀厅屋面采用轻型屋面结构体系,其整体结构形式类似于单层工业厂房屋架体系。其中钢屋架采用梯形钢屋架,每 10.50/11.00 米布置一榀钢架,屋架主要结构是拼接双角钢构件,构件连接采用螺栓和焊接。屋架连接两侧端部,连接节点铰接。钢屋架下弦平面的换流阀、支承承力构件和设备管线及风道等的悬挂是采用H型钢梁。该阀厅整体结构总长86.20m,结构总宽51.50m,主体山墙宽33.00m。
其中凸出端防火墙长度为 18.50m,结构总高为 30.05m。屋架部分上下弦杆采用 2L200×16 的拼接双角钢,屋架腹杆采用 2L140×12 的拼接双角钢,为纯钢结构体系。阀厅的防火墙一侧采用的是预制混凝土梁、柱,其中防火板采用预制混凝土板,板厚150mm,防火板是外挂式防火墙,与预制柱两侧用扣状连接。而非防火墙一侧采用的是钢柱,两侧山墙采用的也是钢柱,钢柱之间有水平向的支撑进行连接。整体框架顶部连接有屋架,除去两侧山墙共有八榀,防火墙主要集中在②轴到⑧轴之间。预制混凝土柱与防火板、钢柱、支撑以及屋架共同组成了换流站装配式阀厅整体结构。工程整体结构布置形式如图 2-1~图 2-6 所示。
图 2‑1屋架下弦水平布置

图 2‑2屋架上弦水平布置

图 2‑3阀厅防火墙立面布置

图 2‑4纵向钢柱及柱间支撑布置

图 2‑5阀厅横向结构布置

图 2‑6山墙柱间支撑平面
2.1.2材料的选取
本文研究工程实际材料类型的选取如下表 2‑1所示:
表 2‑1本工程实用材料表格
材料或类型  | 材料重度/N/m3  | 弹性模量取值/N/m2  | |
钢柱及屋架  | Q345  | 7.85×104  | 2.00×1011  | 
混凝土梁柱  | C40  | 2.50×104  | 3.25×1010  | 
箍筋  | HPB300  | 7.85×104  | 2.00×1011  | 
纵筋  | HRB400  | 7.85×104  | 2.00×1011  | 
2.1.3结构荷载
以上是毕业论文大纲或资料介绍,该课题完整毕业论文、开题报告、任务书、程序设计、图纸设计等资料请添加微信获取,微信号:bysjorg。
相关图片展示:








        
            
