常州消防支队木结构办公楼毕业论文
2020-07-11 18:07:19
摘 要
第一章 结构设计总体介绍 2
1.1工程概况 2
1.2设计主要依据的规范(规程) 2
第二章 结构方案选型及布置 3
2.1选型依据 3
2.2基本荷载 3
2.2.1恒荷载计算 3
2.2.2活荷载计算 3
2.2.3风荷载计算 4
2.2.4.基本雪压 4
2.2.5.地震作用 4
第三章 材料构件等选取 5
3.1材料 5
3.1.1材料的供应:材料能按计划及时供应。 5
3.1.2材料基本参数 5
表3.1 5
3.2构件截面选取 5
第四章 内力计算 6
4.1荷载计算 6
4.1.1.永久荷载 6
4.1.2可变荷载 8
地震影响系数曲线 11
4.2屋架计算 12
4.2.1屋架形式 12
4.2.2荷载计算 13
屋架荷载 15
4.2.3.杆件内力 15
弯矩图 16
4.2.4.构件验算 16
4.2.5.腹杆验算 17
4.2.6.上弦杆验算 18
4.3搁栅,墙骨柱等构件计算 18
4.3.1.楼盖布置及材料 18
4.3.2.荷载 18
4.3.3.一般楼盖计算 19
4.3.4.墙骨柱计算 21
第五章 剪力墙抗侧力计算 26
5.1.三层剪力墙 26
5.1.1横向剪力墙 26
5.1.2纵向剪力墙 34
5.2.二层剪力墙 38
5.2.1横向剪力墙 38
5.2.2纵向剪力墙 46
5.3.一层剪力墙 50
5.3.1横向剪力墙 50
5.3.2纵向剪力墙 55
A.边界构件的受拉验算 56
B.边界构件的受压计算 57
第六章 墙体与楼盖的连接计算 60
6.1剪力墙与楼盖或基础连接 60
6.1.1一层C、D轴剪力墙 60
6.1.2一层其他轴剪力墙 61
6.1.3二层C、D轴剪力墙 62
6.1.4二层其它剪力墙 63
6.1.5三层所有剪力墙 64
6.2横向墙体与楼盖、基础的连接 65
6.2.1三层墙体与楼盖的连接 65
6.2.2二层墙体与楼盖的连接 66
6.2.3一层墙体与楼盖的连接 66
6.2.4墙体与基础的连接 66
6.3纵向墙体与楼盖、基础的连接 67
6.3.1三层墙体与楼盖的连接 67
6.3.2二层墙体与楼盖的连接 67
6.3.3一层墙体与楼盖的连接 67
6.3.4墙体与基础的连接 68
第七章 基础计算 69
7.1基础计算 69
7.1.1.荷载与作用 69
图7.1 基础剖面图 69
7.2.基础数据 71
7.3.基础验算 72
7.3.1墙下条形基础计算 72
摘要:
本计算书为常州市消防支队木结构办公楼的设计计算说明。消防中队是公安下属的武警部队,所以办公楼应做到外形严肃工整,内构统一规整。故本建筑门窗多采用统一规格,避免花哨的设计和多余的装饰而造成华而不实。其内部包括办公室,医疗室,监控室收发室杂物间等。
从选型布置,材料选取上皆应该依照规范合理进行。之后计算结构承受的内力荷载,包括永久荷载以及可变荷载。从常州市的亚热带季风气候环特征可确定夏季多雨,因此采用坡屋顶结构以避免雨水对屋顶的过度渗透侵蚀。根据计算可得地震荷载在所有荷载中起到关键控制作用,因此在后面算剪力墙及基础的抗侧力和承载力的时候,可直接使用地震荷载的数据来加以演算。 由于本建筑为3层轻型木结构,故不设置柱,依靠剪力墙来承担荷载。除了极少部分隔墙以外,其余皆为剪力墙。由于剪力墙较多,且分布不规律,故剪力墙的计算篇幅较长。基础只采用条形基础,不选择独立基础是因为并没设置支撑柱,③-④处及对称处的条形基础为折角连接而不是直线贯通。
关键词:轻型木结构、办公楼、剪力墙、条形基础
Summary:
This design is the calculation guide for the wooden structure office building of the Changzhou Fire Brigade. The fire squadron is an armed police force attached to the police. Therefore, the office building should be strictly clean and the internal structure should be unified and standardized. Therefore, the use of uniform and standardized building doors and windows to avoid fancy design and excess decoration caused flashy. Its interior includes offices, medical rooms, control rooms, mail rooms, utility rooms and so on.
In terms of material selection and layout, material selection should be conducted in accordance with the specifications. Then calculate the internal force loads on the structure, including permanent and variable loads. The characteristics of the subtropical monsoon climate in Changzhou can be used to determine summer rainfall. Therefore, the slope roof structure is adopted to avoid excessive infiltration and erosion of roof rainwater. Based on the calculation of available seismic loads, it plays a key role in controlling all loads. Therefore, when calculating the lateral force and bearing capacity of shear walls and foundations, they can be directly calculated using seismic load data. Since this building is a 3-story light wood structure, no columns are installed and the shear walls are used to carry the load. Except for some partition walls, the rest are shear walls. Due to the large number of shear walls and their irregular distribution, shear wall calculations take longer. The base uses only a bar-based basis instead of an independent basis because no support columns are provided. The strip basis at the 3-4 and symmetrical positions is a hinge connection rather than a straight line connection.
Keywords: light wood structure, office building, shear wall, strip foundation
第一章 结构设计总体介绍
1.1工程概况
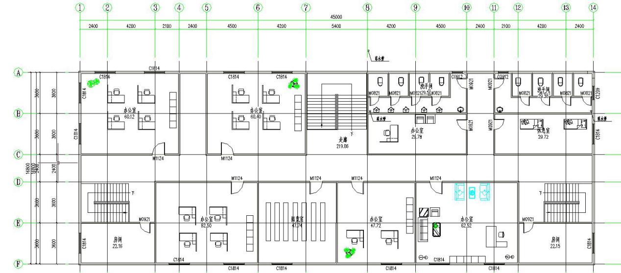
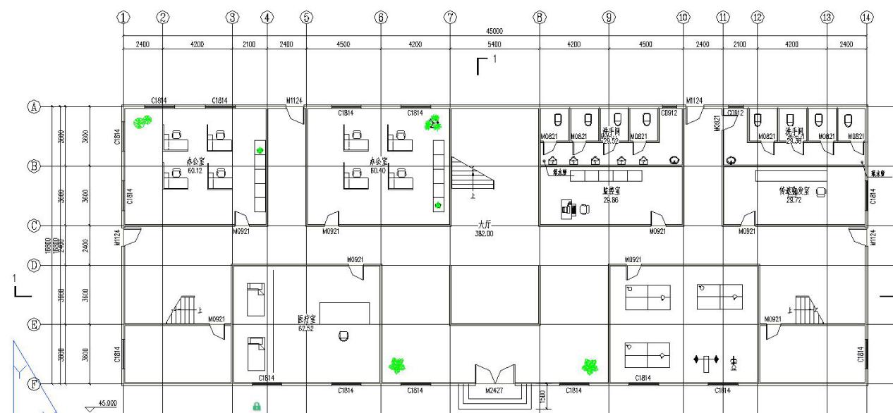
本工程为常州消防支队木结构办公楼,主体结构为三层轻型木结构建筑,层高3.6m,房屋总建筑面积约为2268m²。屋面可以采用三角形轻型木桁架,纵向承重;竖向荷载由屋面、楼面传至墙体,再传至基础;横向荷载由水平楼盖、屋盖体系、剪力墙承受,再传至基础。墙体为轻型木结构墙体。场地土为Ⅱ类。一层平面布置图见附件。
1.2设计主要依据的规范(规程)
《建筑结构可靠度设计统一标准》 (GB50068—2001)
《建筑结构荷载规范》(2006版) (GB50009—2012)
《木结构设计规范》(2017版) (GB50005—2017)
《混凝土结构设计规范》 (GB50010—2002)
《建筑地基基础设计规范》 (GB50007—2002)
《建筑抗震设计规范》 (GB50011—2010)
《钢结构设计规范》 (GB50017—2003)
《建筑工程抗震分类标准》 (GB50223—2004)
《建筑场地岩土工程勘察报告》
《轻型木桁架技术规范》
其它相关设计规范和规定。
- 结构方案选型及布置
2.1选型依据
本结构为三层轻型木结构,平面为矩形设计,屋顶采用双面坡屋顶。结构整体工整严肃,而由于常州地区雨量较大,坡屋顶更适合。图2.1图2.2为结构平面图。

图2.1
图2.2
2.2基本荷载
2.2.1恒荷载计算
恒荷载通常应按照楼面及屋面和墙体的实际材料来计算。
2.2.2活荷载计算
办公室、卫生间、会议室、休息区、接待室等 2.0kN/m2
走廊、楼梯、阳台 2.5kN/m2
屋面(不上人) 0.5kN/m2
2.2.3风荷载计算
江苏省常州市50年基本风压为0.40kN/m2;场区地面粗糙度类别为B类;风振系数
、体型系数
、高度系数
按规范选取;风荷载分项系数为
。
2.2.4.基本雪压
S0=0.40kN/m2;
2.2.5.地震作用
常州地区抗震设防烈度为7度,地面加速度为0.15g,设计地震分组为第一组,场地类别为Ⅱ类,特征周期0.35s,属于丙类建筑。
- 材料构件等选取
3.1材料
3.1.1材料的供应:材料能按计划及时供应。
3.1.2材料基本参数
规格材:有木材认证机构的质量认证记号,承重墙的墙骨柱木材采用Ⅴ级及以上级,楼板搁栅、窗过梁及屋面搁栅木材达到Ⅲc及以上。
表3.1
材料名称 | 解释 | 含水率 |
SPF | 进口云杉、松、冷杉结构材统称,强度等级TC11 | ≤18 |
ACQ | SPF经防腐处理后的木材,强度等级TC11 | ≤18 |
Glulam | 胶合高强工程木 | ≤15 |
PSL | 胶合高强工程木 | ≤15 |
OSB | 木基结构板材 | ≤16 |
胶合木:强度等级为TCT21。
螺栓:4.6级普通螺栓;锚栓:材料为Q300。
3.2构件截面选取
本标准的屋架材料主要有两种截面规格材38mm*89mm(2*4)和38mm*140mm(2*6),对规格材38mm*89mmSPFⅢc,抗弯强度设计值为
=9.4N/mm²,尺寸调整系数为1.5。顺纹抗压及承压强度设计值为
12N/m²,尺寸调整系数为1.15。
顺纹抗拉强度设计值为
=4.8kN/m²,尺寸调整系数为1.5。对规格材38mm*140mm(2*6)SPFⅢc,尺寸调整系数为1.3。顺纹抗压及承压强度设计值为
,尺寸调整系数为1.3。顺纹抗剪强度设计值
=1.4kN/m²,该强度设计值不需要尺寸调整。弹性模量
=9700kN/mm²。
相关图片展示:









