徐州某公司综合办公楼设计(方案三)毕业论文
2020-06-06 11:05:18
摘 要
框架结构的优点是建筑平面布置灵活,与其他结构相比,它是一种造价较低的结构体系。建筑物外形由单一的矩形发展到L形,弧形等很多形状。建筑物的体形也由单一体形发展到单元组合体型和复杂体型。因此,多层工业,民用和公共建筑均采用框架结构体系。
本设计主要对结构方案中第4榀框架进行结构设计,按照最初开题报告所探索的计算步骤进行结构设计,步骤大概如下:确定结构布置选型,结构层间荷载计算,竖向荷载计算,D值法进行风荷载和地震荷载运算,结构内力组合,梁和框架柱截面配筋计算,进行独基设计,最后进行PKPM设计并绘制施工图。
关键词:框架结构;分层法;独立基础;结构设计;配筋。
Abstract
Because of the advantages of frame structure of the building layout iflexible,easy to satisfy the requirements set large space, facade processing also easy to meet demand, the art of architecture, frame structure is a low cost structure compared with other structures.The figuration of the building changes from the single rectangular to L-shaped,prototypes etc. The bodily form changes from single
building to the unit combination shape size and complex shape. Therefore, the frame structure is adopted in multi-layer industrial and civil and public buildings.The 4th horizontal frame structure is designed in this design.After determining the frame layouts, the standard values of loads acting on the structure are calculated firstly.Then the internal forces of the structure caused by vertical constant load and live load are calculated by stratified sampling method. Then, the structural internal forces (moment,shear force and axial force).due to horizontal wind load is calculated by using a D value method. Secondly, the internal forces under various circumstances are combined. The security results are selected to calculate the reinforcement of frame beams and frame column.Then, the structure of the shallow foundation is designed. Finally, the shop drawing of the frame structure is drawn by PKPM and CAD software.
Key words:Frame structure;Layering method;Isolated foundation;Structure Design;Reinforcement
目录
第一章 结构选型与布置 1
1.1 气象资料 1
1.2水文地质资料 1
1.3抗震设防烈度 2
1.4荷载资料 2
第二章 计算简图和荷载计算 4
2.1框架计算简图 4
2.2梁柱截面初选 4
2.3材料强度等级 5
2.4竖向荷载计算 5
2.5 风荷载 8
2.6 水平地震作用计算 9
第三章 框架内力计算 14
3.1恒荷载作用下的内力计算 14
3.2活荷载作用下的内力计算 20
3.3 地震作用下的内力计算 35
第四章 内力组合 43
第五章 杆件截面验算 51
第六章 楼梯结构计算设计 59
6.1 梯段板计算 59
6.2 休息平台板计算 60
6.3 梯段梁 TL1计算 61
第七章 板的设计 61
7.1 支座中点最大弯矩 62
7.2 A区格 62
7.3 B区格 63
7.4 C区格 63
第八章 基础设计 65
8.1 荷载计算 66
8.2 确定基础底面积 66
8.3 地基变形验算 69
8.4 地基变形验算 71
第九章 PKPM 在框架结构中的应用 74
9.1 PKPM电算结果 74
9.2 电算与手算结果比较分析 96
结语 …………………………………………………………………………97
致谢 …………………………………………………………………………99
参考文献 …………………………………………………………………… 100
第一章 结构选型与布置
1.1 气象资料
- 基本风压及基本雪压按《建筑结构荷载规范》GB50009-2012采用
1.2水文地质资料
1.2.1工程概况
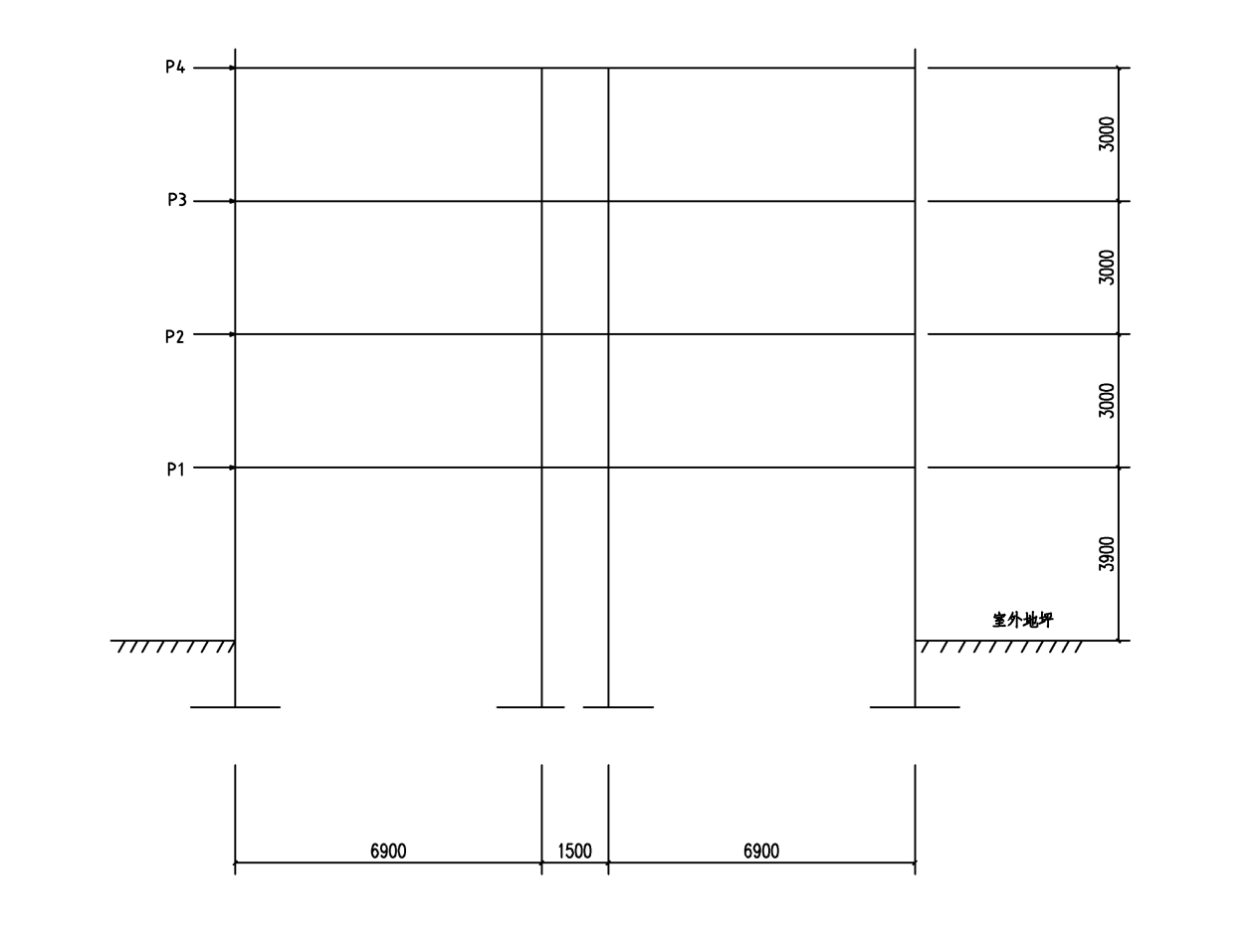
本设计为实际应用课题,工程位于徐州,为某中学办公楼(方案三)。建筑场地长宽约长45.6m 宽15.3m,建筑面积约697.68 m2,底层层高3.9m,其余各层层高均为3m,室内外高差0.45m。本工程建筑层数为四层,建筑结构安全等级为二级,设计使用年限为50年,地基基础设计等级为丙级,框架抗震等级为三级,建筑抗震设防类别为丙类,抗震设防烈度为7度(基本地震加速度为0.10g) ,地震分组为第二组。1.2.2工程地质资料
(1)经勘察查明,根据地层的沉积特点和物理力学特性自上而下共可划分为3层,各土层描述如下:
杂填土:杂色,松散。主要建筑垃圾、偶夹少量卵砾石及少量粘性土组成。系新近堆填,未经压实。该层在整个场地均有分布,主要呈层状分布于地表,揭露厚度0.65m左右。
粉质粘土:黄褐;硬塑;以粘粒及粉粒为主,含少量高岭土,稍有光泽,层理特征不明显,无摇震反应,干强度高,韧性中等。该层分布整个场区。层厚1.45米。
碎石土:浅黄色,灰黄色,中密密实,以灰岩为主,少量为砂岩,由老黄土、新黄土,中粗砂,砾石充填。 层厚6到11米。
地基土承载力特征值、压缩模量表
层号 | 压缩模量 Es(MPa) | 桩周土的摩擦力特征值Qsa(KPa) | 承载力特征值 Fak(KPa) |
1.8 | 67 | ||
5.8 | 51 | 252 | |
11.5 | 89 | 261 |
(2)本工程地下水埋深为4.5米左右,地下水对钢筋混凝土结构不具侵蚀性。
相关图片展示:









