杭州某办公楼给水排水工程设计毕业论文
2020-05-23 16:25:17
摘 要
杭州某办公楼主体建筑为地上十二层,地下一层。地下一层为车库,地上一层为营业厅,二至十二层为办公室。
市政自来水压力约为: 0.25MPa。
其他详细资料见所提供的该建筑物的平面与立面图纸,要求设计该建筑给排水工程。
具体要求如下:
1、设计该建筑给水系统;
2、设计该建筑室内排水系统;
3、设计该建筑消防系统;
4、设计该建筑室外雨水排放系统。
【关键词】设计;给水;排水;消防
Building Water Supply and Drainageand Fire Fighting Design of Experimental Center Office Building
Abstract
Hangzhou is the main building of an office building on the ground twelve stories and has basement one.Basement is garage, on the ground floor of the operating room, two to ten second floor for offices.
Municipal water pressure is about: 0.25MPa.
Other detailed information, see the drawings provided by the building of the plane and elevation, the design requirements of the building water supply and drainage works.
  Specific requirements are as follows:
1, the design of the building water supply system;
2, the design of the building interior drainage system;
3, the design of the building fire protection system;
4, the design of the construction of outdoor rainwater drainage system.
Key words: design,Water Supply,drain,Firefighting
目 录
摘要 Ⅰ
Abstract Ⅱ
1.生活给水系统 1
2.生活给水系统 1
2.1给水系统分类 1
2.1.1生活给水系统 1
2.1.2消防给水系统 1
2.2给水的方式 1
2.2.1给水方式的基本形式 2
2.2.2给水方式选择原理: 3
2.3给水管道布置与安装 3
2.4给水系统所需水量 4
2.5 生活给水系统的计算 5
2.5.1 设计秒流管量 5
2.5.2 给水管道管材的选择 6
2.5.3给水管网的水力计算 6
2.6减压阀设置 13
2.7增压设备 14
3. 建筑内部排水系统 15
3.1排水系统的分类 15
3.2污废水排水系统的类型 15
3.3排水定额及设计秒流量 15
3.4排水管道水力计算参数 16
3.5污废水排水管道水力计算 18
3.6建筑雨水系统 21
3.6.1建筑雨水排水系统的组成 21
3.6.2 雨水水量计算 22
3.6.2 雨水斗 22
3.6.3 连接管 23
3.6.4 立管 23
4、消火栓给水系统 23
4.1室内消火栓给水系统的设计原则 23
4.2消火栓给水系统的给水方式 24
4.3消火栓间距的确定 27
4.4消火栓栓口所需压力 30
4.5消防校核 31
4.6消防水力计算 32
4.7消防水泵扬程及流量 36
4.8水泵接合器 38
5. 喷淋给水系统 38
5.1喷淋系统的设置原理 38
5.2自动喷淋灭火系统工作原理 38
5.3参数确定 39
5.4喷头布置计算 40
5.4.1确定作用面积内的喷头数 41
5.4.2自喷系统水力计算 41
5.3喷淋泵的选择 45
5.4减压孔板的计算 46
5.5水泵接合器 48
5.6消防水箱 48
5.7增压稳压设备 49
5.7.1 稳压泵泵型 49
5.7.2 稳压泵的设计流量 49
5.7.3 稳压泵的设计压力 49
5.8消防水池 50
设计总结 51
参考文献 52
致谢 53
1.生活给水系统
建筑给水系统是供应建筑内部和小区范围内的生活用水、生产用水、消防用水等一系列工程设施的组合。本章节主要包括了给水方式的比较选择、管材选择、给水管网的计算、布置等相关设计项目。
2.生活给水系统
2.1给水系统分类
给水系统主要分两类:生活给水系统、消防给水系统。
2.1.1生活给水系统
供人们在在日常生活中饮用、烹饪、盥洗、淋浴、洗涤衣物、冲厕、清洗地面和其他生活用途的用水。
2.1.2消防给水系统
消防灭火设施用水,主要包括消火栓、消防卷盘和自动喷水灭火系统等设施的用水。消防用水用于灭火和控火,即扑灭火灾和控制火势蔓延。
2.2给水的方式
室内给水方式指建筑内部给水系统的供水方案。是根据建筑物的性质、高度、配水点的布置情况以及室内所需水压、室外官网水压和配水量等因素,通过综合评判法决定给水系统的布置形式。
在初步确认给水方式时,对层高不超过3.5m的民用建筑。给水系统所需压力H,可用经验法估算:1层(n=1)为100kPa,2层(n=2)为120kPa,3层(n=3)以上每增加1层,增加40kPa。
2.2.1给水方式的基本形式
依靠外网压力的给水方式  | 给水方式  | 适用范围  | 优点  | 缺点  | 
直接给水方式  | 由室外给水管网直接供水。利用室外管网压力供水,为最简单、最经济的给水方式,一般单层和层数少的建筑采用这种供水方式,适用于室外给水管网的水量、水压在一天内均能满足用水要求的建筑。  | 可充分利用室外管网水压,节约能源,且供水系统简单。投资少,充分利用室外管网的水压,节约能耗,减少水质受污染的可能性。  | 供水可靠性差  | |
设水箱的给水方式  | 宜在室外给水管网供水压力周期不足时采用,适用于多层建筑  | 水箱贮备一定量的水,在室外管网压力不足时不中断室内用水  | 需设置高位水箱,增加结构荷载,给建筑的立面和结构处理带来一定难度,若管理不当,水箱的水质易受到污染。  | |
依靠水泵升压给水方式  | 设水泵的给水方式  | 宜在室外给水管网的水压经常不足时采用。一般适用于生产车间、住宅楼或者居住小区集中加压供水系统、水泵开停采用自动控制或采用变速电机带动水泵的建筑物内。  | 充分利用室外管网压力,节约电能。  | 直接从室外管网压力,使外网压力降低,影响附近用户用水,将周围土壤中的渗漏水会吸入管网,污染水质。  | 
设水泵、水箱的给水方式  | 适用室外给水管网的水压经常不足时采用,且室内用水不均匀时采用。普遍适用于多层和高层建筑。  | 水池、水箱贮备一定量的水,在室外管网压力不足时不中断室内用水  | 水泵振动,噪音干扰  | |
气压给水方式  | 适用室外给水管网的水压经常不足时采用,室内用水不均匀,且不宜设置高位水箱时采用。普遍适用于多层和高层建筑。  | 
 2、定压式:能保证水泵始终稳定在高效范围内运行,又能保证管网始终以恒压向用户供水  | 1、因压力有波动,对保证用户用水的舒适性和泵的高效运行均是不利的。 2、需要专设空气压缩机,并且启动次数较频繁  | |
分区给水方式  | 适用当室外给水管网的压力只能满足建筑下几层供水要求时,可采用分区给水方式。适用高层建筑。  | 1、水泵并联分区给水:各分区分别设置水泵,各分区水泵采用并联方式供水,供水可靠、设备集中、省去水箱占用面积,能量消耗较少。 2、水泵串联分区给水:各分区采用串联方式供水,供水可靠、省去水箱占用面积,能量消耗较少。 3、水泵供水减压阀减压分区给水:供水可靠、设备集中、省去水箱占用面积、投资少、设备与管材少。  | 1、水泵数量多、扬程各不相同 2、设备布置不集中,维护、管理不便,使用时水泵启动顺序为自下而上,各分区水泵的能力应匹配。 3、下区水压损失打,能量损耗多。  | 
2.2.2给水方式选择原理:
- 尽量利用市政管网水压直接供水,在市政压力不满足的整个建筑物用水的情况下,则建筑物下面几层应利用外网水压直接供水,上层可设置加压供水。
 - 除高层建筑和消防要求较高的大型公共建筑和工业建筑外,一般情况消防给水系统宜与生活给水系统共用一个系统。
 - 生活给水系统中,卫生器具处的静压力不得大于0.60MPa。各分区最低卫生器具配水点静压力不得大于0.45MPa,水压大于0.35MPa,宜设置减压或调压设施。
 
本建筑建筑高度为89.10m,市政水压不满足所需整个建筑用水水压。
根据《建筑给水排水设计规范》(GB50015-2003 2009年版)3.3.6:
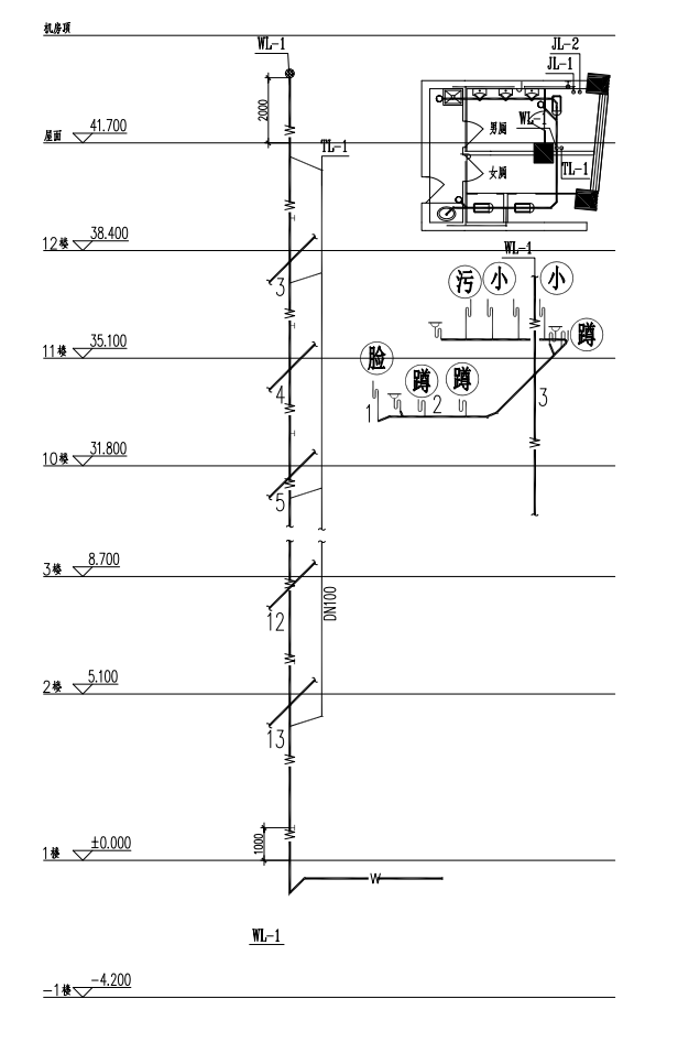
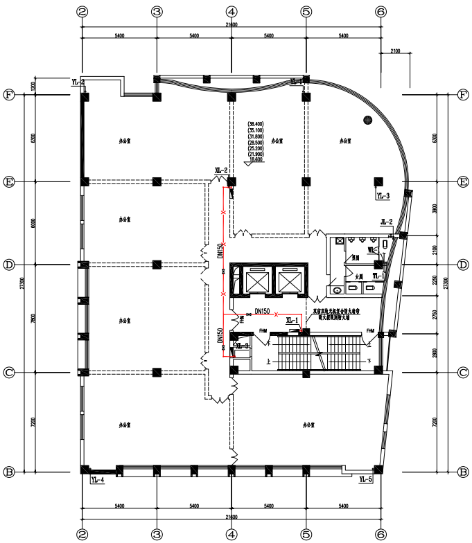
相关图片展示:








        
            
