厦门聚群广场纯地下车库设计毕业论文
2020-04-20 13:50:13
摘 要
本设计设计对象为厦门聚群广场的地下结构。该项目为商业广场下地下结构,地下结构包含两层地下室,均作为地下车库使用。其二层以上主要为商业广场,基础形式采用平板式筏板基础的形式。本设计主要对该广场的地下车库进行建筑设计,结构设计。建筑设计进行了平面设计和竖向设计。结构设计有地下室顶板的设计、地下室外墙的设计、地下室框架的设计。顶板选用不设次梁的双向板肋梁楼盖,采用基于弹性理论的弯矩系数法进行内力计算。外墙简化为双跨连续梁,采用弯矩分配法进行内力计算。地下室框架结构则简化为平面框架,取横向一榀框架,采用弯矩分配法进行内力计算。此外,本设计还对基础进行设计,采用平板式筏板基础。最后,本设计使用 PKPM 对结构进行了辅助设计计算,并与手算结果进行了比较。
关键词:地下车库 框架结构 平板式筏板基础 PKPM
Design of underground structure for the Gathering square
Abstract
This project designs the underground structure for the Gathering square in Xiamen,which has two-story basement . The underground space of the building is devised as a garage. The design is divided into two parts: the architectural design and the structural design. The former devises the garage’s plane, storey height, fireproofing and waterproofing, etc. The latter devises its roof, flank walls, frame and foundation. The roof is designed as two-way slab ribbed floor, whose internal forces and reinforcement are calculated by means of the elastic theory. The flank wall adopts the design and calculation of one-way plate by a unit width of plate simplified into a statically indeterminate beam. Plane structure analysis is applied for the design of garage’s frame by taking a transverse common framework as a computing unit. The foundation is designed as Raft foundation.In addition to manual omputation, this project analyses the structure via PKPM software to enhance the design’s accuracy.
Key Words: Underground Garage Frame Structure Raft foundation PKPM
目录
摘要 Ⅰ
Abstract Ⅱ
第一章 工程概况 1
1.1 引言 1
1.2 工程简介 2
1.3 场地岩土条件 3
1.3.1土层分布及工程特性 3
1.3.2地基土力学参数指标 4
1.4场地水文条件 5
1.5基础设计思路与基础选型 5
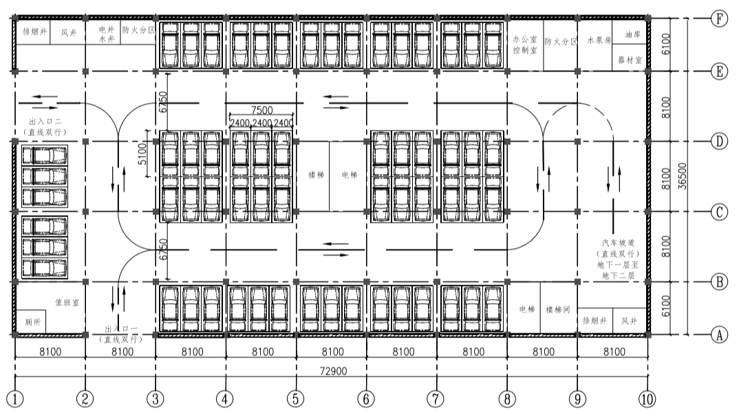
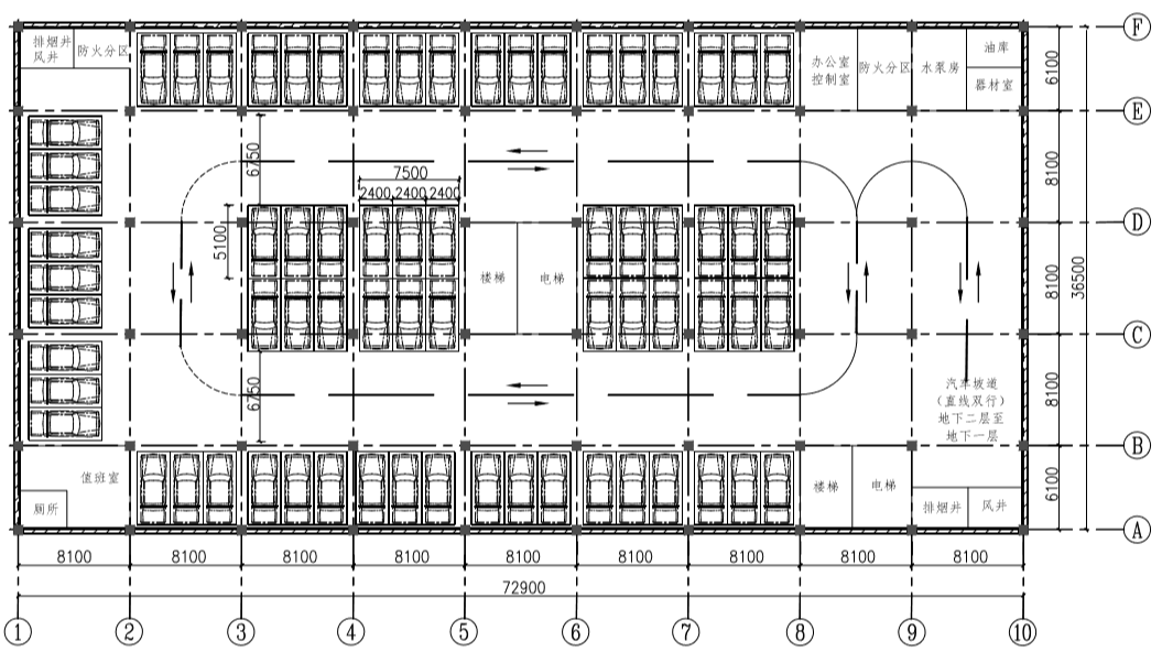
第二章 地下车库建筑设计 6
2.1 柱网设计 6
2.2 平面设计 7
2.3 竖向设计 8
2.4 防火设计 9
第三章 地下车库结构设计 10
3.1 设计依据,设计原则以及主要技术标准 10
3.1.1 设计依据 10
3.1.2 设计原则,标准采取 10
3.2 地下室顶板设计 11
3.2.1 板材料及荷载确定 12
3.2.2 板内力及配筋计算 13
3.3 负二层顶板设计 18
3.3.1 板材料及荷载确定 19
3.3.2 板内力及配筋计算 20
3.4 地下室外墙设计 25
3.4.1 侧向土压力计算 25
3.4.2 地下室外墙内力计算 28
3.4.3 地下室外墙配筋计算 31
3.4.4 地下室外墙裂缝验算 32
3.5 框架设计 33
3.5.1 梁柱截面尺寸 33
3.5.2 荷载计算 34
3.5.3 内力计算 39
3.5.4 横向框架梁配筋计算 54
3.5.5 横向框架柱配筋计算 61
3.6 基础设计 68
3.6.1 基础选型 68
3.6.2 基础计算方法 68
3.6.3 筏板基础设计 68
3.6.4 地基承载力计算 79
3.7 抗浮设计 80
3.7.1 抗浮验算 80
3.7.2 抗浮措施 80
第四章 电算 83
4.1 建筑模型 83
4.2 SATWE分析设计 84
4.2.1 平面荷载校核 84
4.2.2 设计模型前处理 84
4.2.3 PKPM计算结果 85
4.3 PKPM电算正确性判断依据 87
4.3.1 PKPM出现误差原因 87
4.3.2 PKPM正确性判断依据 87
4.4 混凝土结构施工图 88
结束语 89
参考文献 91
致谢 92
第一章 工程概况
1.1 引言
在经济不断发展的背景下,我国各个行业的发展速度也在逐渐加快,城市化进程的推进,促进人们生活水平提高的同时,也使我国城镇化建设工作有了很大的发展。随着城镇人口数量的大幅度增加,居民车辆保有量也在快速增长,不仅给居民生活配套设施的建设造成了很大的压力,也使建筑地下车库的需求加大。 |
地下车库的目的就是为了缓解地面停车空间不足和地面停车空间不足带来的交通拥挤现象。在城市中心区修建地下车库有其特有的优势,主要体现在以下几个方面:地下车库停车容量受到的限制较小;布置方式较为灵活,地下车库修建位置的可选择性很大,地下车库能节约城市中心区宝贵用地,从而为城市保留更多的绿化和公共休闲空间;地下车库能与地下交通网络连成一个整体,方便人们出行等等。由此可见,城市地下车库在解决城市停车问题方面具有很大优势。 |
本设计以厦门聚群广场纯地下车库设计开发建设过程中的实际工程项目为背景,选取合适的方案对其地下车库和基础进行设计。在此过程中,我们可以熟悉并掌握地下结构中地下室和桩基工程的基本设计方法和基本设计原则,以此来深入掌握本科阶段所学知识,并提高分析、判断工程实际资料的能力、处理实际问题的能力和计算机应用能力。 |
1.2 工程简介 |
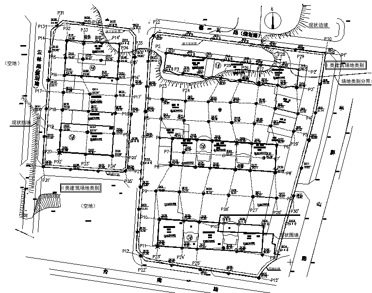
拟建聚群广场位于厦门市湖里区观音山,半屏山路与台南路交汇处的西北侧。场地原始地貌为坡残积台地,原地势总体呈北高南低趋势缓倾斜,后因开发建设需要被人工挖、填改造,致使场地北侧形成高越2~7m的土质边坡。场地需要农用大,导致钻孔之间进行加密勘探,以查明其变化情况,但因勘察期间,各孔口地面标高约为17~30m,最大相对高差约13m。 |
拟建场地位于西南侧(现为空地),本设计拟建两层纯地下车库,上部为拟建小花园,柱距为8.1m×8.1 m和8.1m×6.1 m,面积为2727平方米,拟采用平板式筏板基础。拟建工程的平面图如下: |

图1-1 厦门聚群广场的平面图
1.3 场地岩土条件 |
1.3.1土层分布及工程特性 |
据钻探揭露,拟建场地地层结构较复杂。现自上而下将各岩土体的分布及其特征分述如下: |
(1)杂填土()①:场地内大部分地段有分布,厚度为0.30~3.70m。以灰色为主,稍密,成份主要由建筑垃圾回填而成,含较多的砖、石或砼碎块等硬杂质,其间为粘性土充填。该层回填时间约5年,且未经专门的压实处理,成份较复杂,密实度及均匀性差,力学强度低。 |
(2)粉质粘土()②:坡积成因。部分地段有分布,厚度变化较大,为1.10~13.00m,顶板埋深0.40~3.70m,顶板标高17.09~25.35m(局部直接出露)。呈褐黄、砖红色,可~硬塑状,成分由粉、粘粒和砂粒组成,含砂量约10~20%。摇振无反应,切面较光滑或稍有光泽,干强度较高,韧性中等。该层标贯击数9~23击,平均标贯击数13.7击,属中等压缩性土,力学强度一般~较高。 |
(3)残积砂质粘性土③:为中粗粒花岗岩风化产物。大部分地段有揭露,顶板埋深一般为0.30~16.00m,顶板高程4.09~24.21m,厚度变化较大为3.60~19.30m。呈灰白、灰黄等色,成分主要由高岭土、石英及少量云母碎屑等组成,原岩结构特征清楚。上部大多呈可塑状,下部为硬塑,总体有随深度递增风化程度逐渐减弱,强度渐高的变化趋势。摇振无反应,切面稍有光泽,干强度中等,韧性较低。该层标贯击数9~29击,平均标贯击数20.2击,属中等压缩性土,力学强度一般~较高,但属特殊性土,具有泡水易软化、崩解的不良特性。 |
(4)全风化花岗岩④:大部分地段有揭露,顶板埋深2.00~24.20m,顶板高程-2.40~20.31m,厚度为1.50~14.00m,变化较大。呈灰白、灰黄等色,主要成分为长石、石英,长石大部分已高岭土化,为散体状结构,岩芯呈碎屑土状,岩体极破碎,属极软岩,岩体基本质量等级为Ⅴ级。该层标贯试验击数30~49击,压缩性较低,力学强度较高,但该层与上述残积土呈渐变关系,亦具有泡水易软化、崩解的不良性质。 |
(5)砂砾状强风化花岗岩⑤:大部分地段有揭露(局部未揭穿),顶板埋深6.80~32.80m(局部直接出露),顶板高程-11.91~23.42m,厚度变化较大为2.70~30.70m,岩面起伏较大,局部呈囊状或槽状风化。呈灰黄等色,主要由未尽风化的长石、石英及云母等组成。该层风化较强烈,岩体极破碎,岩芯呈砂砾状,为散体状结构,属极软岩,岩体基本质量等级为Ⅴ级。该层标贯击数gt;50击,压缩性低,力学强度较高。但与上述全风化岩呈渐变过渡关系,开挖后如遭受长时间的泡水作用,也会较快软化使强度降低。 |
(6)碎块状强风化花岗岩⑥:分布不够稳定,顶板埋深5.60~56.10m,顶板高程-34.22~17.25m,厚度变化较大为0.60~39.10m(局部未揭穿),岩面起伏大,局部呈囊状风化。呈灰黄等色,由长石、石英等矿物组成,除石英外,大部分矿物已显著风化,岩芯呈碎块状,手折可断,钻进时具有较强的拨钻声。该层岩体节理、裂隙发育,结构面间距大多≤0.20m,岩体破碎,RQD=0,呈碎裂状结构,岩石点荷载抗压强度平均为10.5MPa,属软岩~较软岩,岩体基本质量等级属Ⅴ级。该层压缩性很低,力学强度高。 |
(7)中风化岩⑦:主要在主楼部分有揭露(均未揭穿),顶板埋深0.80~67.20m,顶板高程-43.07~22.23m,揭露厚度4.00~22.50m。受区域构造作用,岩面起伏较大。呈灰黄等色,岩石矿物成分主要由长石、石英及云母组成,岩体节理裂隙较发育,结构面平均间距约0.30m,岩体较破碎~一般,岩芯呈短柱状,部分为块状,RQD一般为30-60%,呈镶嵌碎裂~裂隙块状结构,岩石饱和单轴极限抗压强度平均为48.3MPa,为较硬岩。岩体基本质量等级为Ⅲ~Ⅳ级。该层基本不可压缩,力学强度很高。 |
1.3.2地基土力学参数指标 |
土层的力学参数根据室内试验和原位测试结果统计得出,内摩擦角和粘聚力采用固结快剪试验值,具体数据见下表: |
表1-1 物理力学指标(平均值)









