梅赛德斯奔驰(中国南京)销售空间设计——店面外观销售大厅设计毕业论文
2020-04-16 15:57:23
摘 要
拥有百年历史的梅赛德斯-奔驰,不仅提供动力卓越的汽车,更致力于为顾客提供高端奢华的服务享受和消费体验。2017年,中国成为梅奔的首个单一市场,打破了几百年的销售纪录。作为世界上第一辆汽车的发明者,梅奔在汽车领域有着举足轻重的地位。
本次毕业设计课题为南京梅奔体验店设计,课题内容主要以设计体验店外观形象、空间区域的划分、人流动线合理规划、内部餐饮以及整体风格和色调的统一,通过运用各种展示设计手法让观展者直观深入的了解到奔弛企业的品牌特征、经营方向以及能给顾客带来的技术服务和奢华享受。将客户体验融入生活,体验一次除了展示以外的视觉盛宴,也将是令人难以忘怀的,同时能够带来更好的市场效应。
如何对展厅一层的展示区以及二层的洽谈休息配件区的合理规划设计就是本文的说明重点。
关键词:风格 轻奢 服务 展示
ABSTRACT
With a century-old Mercedes-Benz, it not only provides excellent driving cars, but also provides customers with high-end luxury service and consumer experience. In 2017, China became the first single market for Mei Ben, breaking the sales record for hundreds of years. As the inventor of the world's first car, Mei Ben has a pivotal position in the automotive field.
This graduation design project is designed for the Nanjing Meiben Experience Store. The content of the project is mainly based on the design and appearance of the store, the division of the space area, the reasonable planning of the human flow line, the internal catering and the unification of the overall style and color, through the use of various display designs. The technique allows the exhibitor to intuitively and deeply understand the brand characteristics, business direction and technical service and luxury that the company can bring to customers. Incorporating the customer experience into life and experiencing a visual feast besides the show will be unforgettable and at the same time bring better market effects.
How to make a reasonable planning and design of the exhibition area on the first floor of the exhibition hall and the negotiation rest area of the second floor is the key point of this article.
Key words: style ; luxury ; service ; show
目 录
摘 要 I
ABSTRACT II
第一章 绪论 1
1.1 研究背景 1
1.2 研究的目的及意义 1
1.2.1研究目的 1
1.2.2 研究意义 1
1.3 国内外研究现状 2
1.4课题研究的内容和方法 3
1.4.1研究内容 3
1.4.2研究方法 4
1.5论文框架 5
第二章 奔驰体验店设计理念的概述 6
2.1奔驰的发展历史 6
2.2 奔驰的品牌效应 6
2.3 奔驰体验店的设计原则 7
2.3.1 创新科技感 7
2.3.2 顾客体验至上 7
2.4 上海外滩梅奔案例分析 8
第三章 奔驰体验店策划方案 13
3.1 项目综述 13
3.1.1 项目背景 13
3.1.2 项目地点 13
3.1.3 设计目的 13
3.2 项目定位 14
3.2.1 产品定位 14
3.2.2 销售人群 14
3.2.3 风格基调 14
3.3 区域划分 14
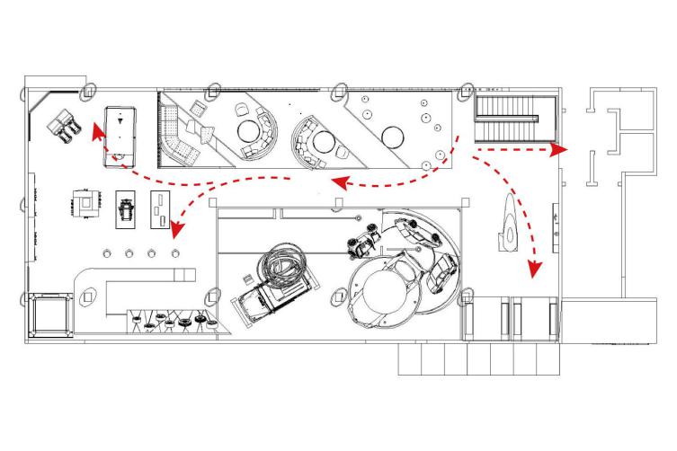
3.4 人流动线设计 15
3.5 设计方案 16
结语 19
参考文献 20
致谢 21
第一章 绪论
1.1 研究背景
拥有百年历史的梅赛德斯-奔驰,不仅提供动力卓越的汽车,更为顾客提供高端奢华的品质服务。 前年,中国成为奔驰的首个单一市场,打破了几百年的销售纪录。往后,梅赛德斯-奔驰也将一如既往的为众多中国消费者提供优质的产品,服务和品牌体验。
整个体验店让顾客能够捕捉到设计中的第一件有趣的东西,是富有创意又有科技感的整体外观。展示方法采用独特而创新的设计方法,在选择方面,明智地使用材料,并且使用集成先进的多媒体技术和交互式技术,以加强顾客之间的互动,使公司能够以更加现场和访客友好的方式展示展品。在深刻的印象下,品牌理念得到了有效传递。从参观者的角度来看,这个设计适合主题并吸引公司的展位可以满足参与者的喜爱和期望,在观众心中留下不同以往的展位印象。
1.2 研究的目的及意义
1.2.1研究目的
展厅设计就好似企业的一张名片,其目的,第一是增加企业的知名度,使公司的品牌信息能够得到有效的传递,第二通过对产品的宣传,能够高效的推广企业的产品, 第三针从消费者角度,通过产品展示,使消费者找到适合自己的产品。最后还能为企业提升技术与服务的机会,针对市场和消费反应的变化,能及时调整和修改其方案,对未来企业的发展有巨大的辅助性作用。
1.2.2 研究意义
一般来说,销售点包括车型,内饰,终身拆卸,燃油,油耗,显示,舒适性和独特零件。但是,销售此信息的方式交付给客户的点数对汽车的销售有直接影响。对于达到消费者成熟度的消费者,他们对汽车有清晰的认识,为客户提供高质量的服务,以建立强大的客户群。所以,对于那些在第一次购买客户时了解汽车的人来说,汽车活动的完整演示将很快得到改善。由于激烈的竞争和减少骑车者的利益,汽车行业的损失要弱得多。
展厅是公司与客户之间的第一个交流平台。展厅内的展览提供有关品牌产品和展览价值的独特信息。这为客户提供了无限的视觉和心理上的卓越,然后包括固体气田,并创造了更成功的企业形象质量。
以上是毕业论文大纲或资料介绍,该课题完整毕业论文、开题报告、任务书、程序设计、图纸设计等资料请添加微信获取,微信号:bysjorg。
相关图片展示:









