高淳国瓷小镇乡村旅游环境规划设计——桥头村玉泉行馆西片区民宿设计毕业论文
2020-07-09 20:19:57
摘 要
随着现代经济的发展,旅游业也随之迅速发展,人们对旅游的需求也由观赏式旅游向互动体验式旅行转变。与风景区相伴⽽⽣的民宿旅游⼩镇作为旅游地产的类型之⼀, 开始被⼈们所重视。其对当地的经济发展,⽂化传承,社会影响,⽣态变化都有巨⼤的影响。合理开发的积极作⽤不⾔⽽喻,⽽⾮合理开发对于当地的⽣态环境,⼈⽂资源等的破坏都是⽆法挽回的。所以认真深刻的研究探讨民宿旅游小镇的开发建设方式是非常重要非常有意义的。本⽂从⽼房改造茶楼为例,深⼊探讨茶楼室内改造设计。第⼀次⽐较深的接触茶,是实习的时候,当时在东建材⼀个⼯作室实习。设计师是信阳新县⼈,⾮常喜欢喝茶,对茶也很挑剔。因⽽在选题的时候我特意选择了茶楼设计。饮茶,有随性之说,符可⼼境,求⼀份真实和简单,中国的茶⽂化应有尽有,点⼀杯清淡的⾹味的茶,与茶友谈闲天论地,借⼀缕茗⾹,营造一处宁静安详的环境。现代社会中,茶楼已经不仅仅是给人一个提供喝茶的地方,它也是一种传统文化与新型时尚的一种碰撞,因此设计茶楼时不同风格不同的定位就可以展现出现代茶楼的特色,茶楼设计时应当在尊重传统文化的基础上加以创新,古老与现代相结合。对茶楼进⾏必要的装饰,加上国瓷⼩镇的历史⽂化,有助于营造传承⽂化的意味,使茶楼更符合时代意义,也使整个商业⼩镇的改造更有意义。
关键词:商业⼩镇 茶楼设计 中式风格 文化传承
Tourism environment planning in Gaochun national porcelain town Design
--the design of Interior design of bamboo garden static tea of the Yuquan office in Qiaotou Village
Abstract
With the development of tourism, the demand for tourism has changed from sightseeing tourism to interactive experiential travel. The Ethnic Tourist Town, which is accompanied by scenic spots, has been regarded as one of the types of tourism real estate. It has a huge impact on local economic development, cultural heritage, social impact and ecological change. The positive role of rational development is self- evident, rather than the rational development of the local ecological environment, the destruction of human resources and so on are irreparable. Therefore, it is of great significance to study the development and construction of ethnic tourist towns. The first deep contact of tea, is the practice, then practice in the East Building Materials in a studio. The designer is the Xinyang Xinxian County person, very like tea, also is very particular about tea. The topic I chose a restaurant design. Tea, with the said, can be mood, for a real and simple, Chinese tea culture have everything that one expects to find, a cup of delicate fragrance of tea, and tea Tanxiantian theory, a wisp of Ming, construction of a calm, China is the hometown of tea, is the birthplace of tea culture. The discovery and use of tea in China, more than four years history, and prosperous, spread all over the world. Therefore tea space design is very harsh. Teahouse drinking tea, not only is the place, different style of the restaurant, to illustrate the new restaurant is what kind of concept, its style of the design in the swing between ancient traditions and the most avant-garde, most modern image. The necessary decoration of restaurant, helps to create a warm feeling, make the business more Xinglong.
Key Words:Business town;Teahousedesign;Cultural inheritance
目 录
摘 要 I
Abstract II
引言 1
第⼀章 茶楼室内设计分析 2
1.1 茶楼室内装饰类型 2
1.2 茶楼室内设计要点 2
第⼆章 案例分析 6
2.1 亚太茶楼室内设计 6
2.2 茗⾹园室内设计 7
2.3 调研总结 7
第三章 对茶楼改造的前期调查分析 9
3.1 项目概况 9
3.2 项⽬定位 9
3.3 设计构思 10
3.3.1 设计⽅案 10
3.3.2 设计风格 10
3.4 外观设计 12
3.5 空间设计 12
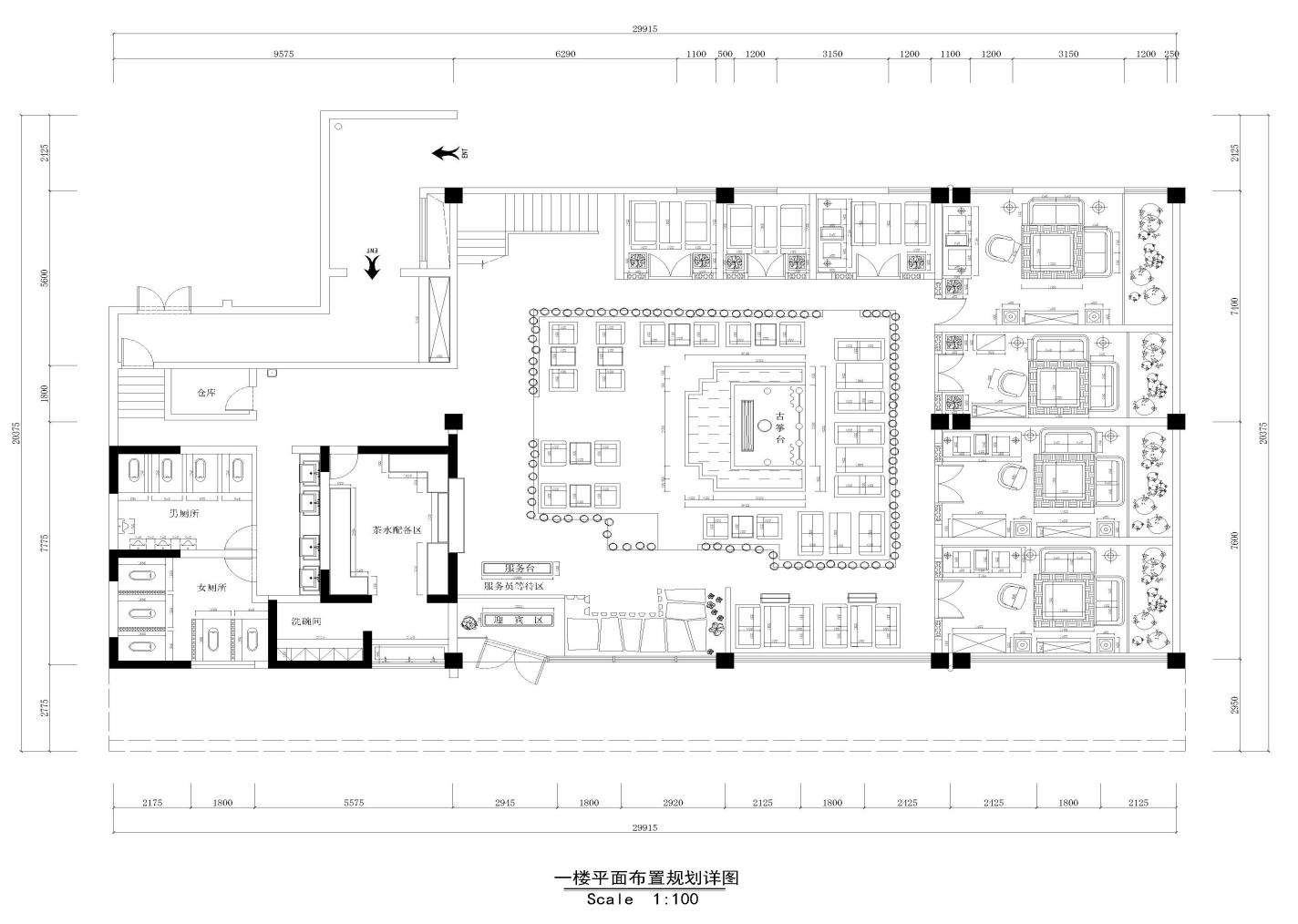
3.5.1 ⼀楼平⾯图设计 13
3.5.2 ⼆楼平⾯图设计 14
3.5.3 包间⽴⾯图设计 15
3.6 界⾯设计 16
3.6.1 ⼀楼过道设计效果图 16
3.6.2一楼古筝台设计效果图 16
3.6.3一楼包间设计效果图 16
3.6.4 一楼卫生间设计效果图 17
3.6.5 二楼大厅设计效果图 19
3.7光环境 19
3.8设计说明 19
参考文献 21
致 谢 22
引言
茶⽂化,就我所知,茶是⼀种著名的保健品,能清肝明⽬,可以让⼈保持清醒。不单是物质方面对人们有益,精神方面来说,茶的文化内涵很丰富,博大精深。所以茶文化在社会发展过程中发挥了多方面的社会功能和作用,影响深刻。人们的日常生活紧密联系着传统的茶文化,⽆论是历史⽂⼈⽣活中的“琴棋书画酒诗茶”,还是普通老百姓⽣活中的“柴⽶油盐酱醋茶”,茶都已经融入人们的生活,人们已经离不开茶。
制售茶⾏业现在⾮常⽕爆,炒作者往往将茶贴上⽂化的标签提⾼售价,他们之所以
敢这样炒作,正是因为中国茶文化历史悠久,对中华文化意义重大,而且茶不仅是物质还是精神方面,内涵都极其丰厚,才给了他们这种投机的机会。我很反对这种做法,这样不是给茶⽂化锦上添花,反⽽是抹⿊,会严重降低⼈们对茶的好感。
茶文化的深沉和凝重在漫长的历史中不断的发展积淀。所以在茶⾏或者茶楼的设计上更加要注重表现其历史性⽂化性,这是个巨⼤的挑战。
相关图片展示:








        
            
