方形锂离子电池组风冷散热方案设计毕业论文
2020-02-18 10:43:00
摘 要
随着化石能源的消耗日益加剧,全球的各大资源储备的日益紧张,将市场上的燃油汽车转变为电动汽车已经刻不容缓。虽然目前的电动汽车还存在着或这或那的缺陷,但是近几年各大车企都发布各自的燃油车停售时间表,与此同时在全球也有不少国家以法律的形式确定了各自燃油车彻底停售的时间。无论从哪个角度来看,在未来电动汽车必将得到更大的研发投入,资金投入和人员投入,电动汽车也会逐步成为汽车行业的最大热门。
电动汽车的核心便是电池,目前影响电动汽车价格的最重要因素也是电池的价格,随着我们国家对于新能源汽车补贴的下降,未来电池的发展也必须有更多更重大的突破。电池降低成本,降低重量,减小占用体积的一个措施便是寻找出更加合适更加有效的散热方式。目前市面上的散热方式主要液冷,空冷以及相变冷却,本文主要是应用comsol来探索锂离子电池风冷的散热方案。
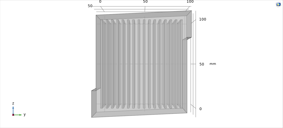
首先,建立锂离子电池的一维模型和电池包的三维模型。使用comsol建立了单体方形锂离子电池的一维模型,代入单体电池所需的各项基本数据,以及正负极和隔膜所需的材料。并建立电池包整体的三维模型,添加流动和传热模块,确定较为理想的内部和边界条件,通过改变电池放电倍率,流动室入口处的风速来得到在不同条件下的电池散热情况
随后,基于此前建立的电化学-热耦合模型添加锂电池自身散热,流动室流动,电池固体传热的稳态或瞬态的条件研究,模拟仿真计算得出流动室的温度以及电池组表面的温度分布,经过对于结果进行后处理后得到较为直观的三维模型图。
最后,通过比较此前得到的三维仿真结果图,得到电池包的散热情况和内部空气流动情况。比较在不同前提条件下的影响方形锂离子电池散热的因素以及其影响程度,分析对于此散热方案的改进方法以及在实际工作时会受到的影响。
关键词:方形锂离子电池;散热;comsol;仿真
Abstract
With the increasing consumption of fossil energy and the growing shortage of global resources, it is imperative to transform fuel vehicles on the market into electric vehicles. Although there are still defects in this or the current electric vehicles, in recent years, major auto companies have released their own fuel vehicle suspension schedules. At the same time, many countries around the world have determined their respective laws. The time when the fuel truck was completely sold out. No matter from which point of view, in the future, electric vehicles will surely receive greater Ramp;D investment, capital investment and personnel investment, and electric vehicles will gradually become the biggest hot spot in the automotive industry.
The core of electric vehicles is the battery. The most important factor affecting the price of electric vehicles is the price of batteries. With the decline of subsidies for new energy vehicles in our country, there must be more and more breakthroughs in the development of batteries in the future. One way to reduce costs, reduce weight, and reduce the size of batteries is to find a more suitable and more efficient way to dissipate heat. At present, the heat dissipation methods on the market are mainly liquid cooling, air cooling and phase change cooling. This paper mainly uses comsol to explore the cooling scheme of lithium ion battery air cooling.
First, a one-dimensional model of a lithium-ion battery and a three-dimensional model of a battery pack are established. A one-dimensional model of a single-cell lithium-ion battery was built using comsol to replace the basic data required for a single cell, as well as the materials required for the positive and negative electrodes and the separator. Then establish a three-dimensional model of the whole battery pack, add flow and heat transfer modules, determine the ideal internal and boundary conditions, and obtain the heat dissipation of the battery under different conditions by changing the spacing between the batteries and the wind speed at the inlet of the flow chamber.
Subsequently, based on the previously established electrochemical-thermal coupling model, the lithium battery's own heat dissipation, flow chamber flow, and steady-state or transient conditions of battery solid heat transfer were studied, and the temperature, pressure and battery of the flow chamber were calculated by simulation. The temperature distribution of the surface is obtained by post-processing the results to obtain a more intuitive three-dimensional model.
Finally, by comparing the previously obtained 3D simulation results, the heat dissipation of the battery pack and the internal air flow are obtained. Compare the factors affecting the heat dissipation of the square lithium-ion battery under different preconditions and the degree of its influence, and analyze the improvement method of this heat-dissipation scheme and the impact it will have in actual work.
Key words: square lithium-ion battery; heat dissipation; comsol,;simulation
目 录
摘 要 I
Abstract II
第1章 绪论 1
1.1 背景 1
1.2 新能源汽车的概况 1
1.3 锂离子电池热管理的发展概况 3
1.4 comsol软件介绍 4
第2章 锂离子电池介绍 5
2.1 锂离子电池的基本结构 5
2.2 锂离子电池的工作原理 5
2.3 锂离子电池的主要材料 6
2.3.1正极材料 6
2.3.2 负极材料 6
2.3.3 电解质材料 6
2.3.4 隔膜材料 7
2.4 小结 7
第3章 方形锂离子电池组模型的建立 8
3.1 模型建立过程 8
3.1.1 一维单电池模型 8
3.1.2 电池组的三维模型 9
3.2 条件设置 10
3.2.1 一维模型与三维模型的耦合 10
3.2.1.1 定义一维模型中的变量 10
3.2.1.2 定义三维模型中的变量 10
3.2.2 定义材料 10
3.2.3 流动域的设置 10
3.2.4 传热域的设置 11
3.3 求解方法设置 11
3.4小结 12
第4章 仿真结果 12
4.1 单电池散热仿真结果 12
4.2 三维电池组的仿真结果 13
4.2.1 温度分布结果图 13
4.2.2 结果对比分析图 18
4.3 小结 20
第5章 结论与展望 21
5.1 结论 21
5.2 展望 21
参考文献 23
第1章 绪论
1.1 背景
能源是推进人类文明进步的基石,是推进人民生活水平进步、经济提升的最重要力量。如今,我们正大量使用着煤、石油和天然气这几种化石能源。根据近些年的数据表明,以煤、石油和天然气这些为代表的化石能源几乎是人们消耗的能源的87%。然而这些化石能源并不是无限的,如果我们不加控制地使用这些资源,总会有一天,化石能源会逐步枯竭。此外,燃烧化石能源会产生大量二氧化碳,还会产生不少对环境造成大量污染的烟气,对全球的生态环境产生了巨大威胁。显然,无限地对化石能源产生依赖是远远不能满足当今我们对于生态环境的高要求的。因此,我们必须寻找更多加倍清洁、加倍高效的可再生能源。如今越来越多的汽车公司将研究方向转向了各种新能源汽车,其中更是以锂离子电池的电动汽车为盛,理所当然的,锂离子电池的热管理也随之成为一个令人重视环节。
1.2 新能源汽车的概况
随着全球化石能源供应的日益紧张,全球各大科研机构和汽车厂商都对新能源汽车的研发与制造投入了巨大的精力。
伴随着汽车行业的不断发展和规模的持续扩大,相关产业也在迅速发展。经济效益也在不断提高[1]。新能源汽车的分类并不是绝对的,但是在驱动过程中是以车辆自身使用的动力源为基础的。 新能源在汽车上被广泛使用。 在汽车的使用过程中,它更能促进汽车产业和可持续能源的发展,具有高效、速度和环保的特点。 新能源汽车是目前汽车产业中广泛试验开发的新型汽车模型。 作为汽车的燃料主要使用新能源,结合车辆的力量特性,使用先进的技术保证车辆的运行。 现在,在中国,天然气汽车、混合动力汽车、和纯电动汽车等是最普遍的使用。 近年来,伴随着整个社会经济的持续发展,新能源汽车的数目也在上升。 2018年之后,新能源汽车的总销量连续增长。与2017相比,生产量急剧增长,开发的前景比较广泛。
经过持续研究后,当局引进了支撑传统汽车的开发,促使向新能源车的转换的政策。 将来,传统的汽车还会占用一些市场份额,但明显缩小。新能源汽车进入实验阶段,正在逐步更换已经在世界范围内达成商业运行模式的传统汽车。新能源汽车中最广泛使用的便是混合动力汽车[2][3]。混合动力车以最先进的方式实现经济节约和环境目标。 混合动力汽车也在生产体制下迅速发展。 纯电动汽车的性能远远低于混合动力汽车,在成本较高的生产、运用中,清洁电动汽车的使用在新的进展中浮出水面。 由于太阳能技术的突破,几乎所有的加油站都设置了支持清洁的电动汽车开发的分布式充电桩。 与以往的石油汽车相比,电动汽车具备节能的特点。 近年来,中国通过减税战略降低新能源的电动汽车研发及制造工序降低成本,改善电池更换模式,延长电动汽车的充电时间,有效解决电动汽车的成本。 将来,电动汽车有着良好的前景,是运输的最普遍的手段。 氢具有安全性、环境保护、高效率化等诸多优点,在今后的新能源车的研究开发中,也成为新的汽车能源的焦点。 新能源汽车的研发,也面临着新能源汽车的高价、保管、运输等诸多困难。为了实现工业化,有必要持续强化新能源车的研究开发技术。
新能源汽车的类型主要分为四种:天然气双燃料汽车,电力驱动汽车,太阳能动力汽车,生物燃料汽车。
天然气双燃料汽车。市场上许多新能源汽车、天然气双燃料汽车主要通过两个燃料系统运行,一套供应天然气和石油,另一套供应不同的燃料,两种供应可通过配合促进汽车航行。这也是被认为是世界上最安全、最经济的能源汽车。
电力驱动汽车。现在的电力驱动汽车是纯电动汽车和混合电动汽车。纯电动汽车,通过充电提供动力,并可以保证汽车使用电池运行。充电驱动汽车在汽车推广上存在问题,价格高,充电时间长,实际过程当中存在各种问题。混合动力电动汽车,它利用电能来储存电能和热能,热能主要用来保证电力供应和汽车的运行。这辆电动汽车在运行过程当中比纯电动汽车更经济。如果汽车中的电源越来越少,就有可能实现作为电能的可持续运行,并且可以实现低污染,但是污染问题仍然没有完全解决。
太阳能动力汽车。太阳能汽车是通过将汽车运行中的所吸收的太阳光转换为电力来推动汽车的运行。不消耗燃料,也不产生公害,二氧化碳的排放量也能减少。 在使用太阳能汽车的过程中,与其他车辆不同,气候决定了电池的吸收。在太阳比较少的地方,汽车的使用会较为受限。
生物燃料汽车。与现有的汽车相比,生物燃料汽车具有可持续发展的优点,能够有效地减轻能源不足的状态。燃料能侵蚀汽油的供给管,这是使用过程中的实际问题。使用生物燃料,与其他气体的车相比,能有效地促进能源的再利用,实现能源的再利用,能促进生物天然气汽车的可持续发展,生物燃料受到环境的影响,不能确保生物燃料供给车的运行的问题 生物燃料的使用受到环境的限制。 在这个阶段,纯电动汽车为了内燃机的使用一直在成长的生物燃料车有可能不能在大范围内使用,但是可以用于化学领域的汽车的燃料补给[4][5][6]。
1.3 锂离子电池热管理的发展概况
锂离子电池的热管理至关重要,并且仍然是一个挑战,因为锂离子电池中过多的局部温度升高会导致循环寿命缩短并可能导致热量单个电池或整个电池模块的失控特别是在单元密集的电池模块中,电池性能的许多方面都受到它们的强烈影响工作温度,包括功率和能量的性能,可靠性,往返效率,循环寿命和成本。安全而长期稳定性要求限制了其应用大功率设备中的锂离子电池主要技术障碍是0度-40度的温度限制除了不均匀的细胞温度分布外电池模块。 因此,精心设计的电池热管理系统对于维持适当的电池温度条件和提高锂离子电池的稳定性和安全性至关重要。
基于不同冷却/加热介质的使用,电池热管理系统可分为几种类型:空气冷却/加热系统;液体冷却/加热系统;相变材料;以上系统的组合。由于简单的设备要求和可靠的系统操作,空气是最常用的冷却介质。通过简单地引导流过模块的空气,可以轻松实现冷却效果。然而,在极端条件下,特别是在高放电率下,空气冷却是不合适的。液体冷却可以以不同的方式实现,例如通过每个模块周围的离散管,在模块周围有一个护套,将模块浸入介电流体中直接接触,或将模块放置在液体冷却板(散热器)上。虽然液体冷却比空气冷却更复杂,但是在空气冷却不合适的情况下更有效。近年来,Hallaj和Selman首次提出的使用相变材料(PCM)进行电池热管理的新颖解决方案引起了越来越多的关注。放电期间产生的热量作为潜热存储在PCM中,并在放松期间传递到电池模块以保持其温度稳定。
尽管液体冷却和PCM冷却具有其优点,但是由于考虑到制造成本,寄生能量损失,完整电池系统重量和布局限制,最广泛应用的电池模块冷却方法是强制空气冷却。此外,在产生潜在危险气体的特定电池系统中需要通风。许多研究人员开展了相关工作:徐研究了48芯电池组不同气流管道模式的散热性能,以提供最佳的气流管道模式。Giuliano设计了一种采用金属泡沫热交换器板的风冷热管理系统,并测试了Altairnano 50 Ah电池的冷却能力。 Park通过数值计算引入了用于冷却电池系统的气流配置设计,其中通过采用热阻模型分析冷却性能。Fan检查了间隙间距和空气流量对现有风冷电池模块的冷却效果的影响。Mahamud提出了一种新的电池热管理方法,该方法使用往复式气流,具有二维计算流体动力学(CFD)和用于电池单元的集总电容热模型。Zhu研究了电动汽车电池组的热管理系统,分析了丰田RAV-4电动汽车的冷却结构设计。 Karimi提出了基于分布式强制对流的棱柱形电池组的冷却策略,以实现电池单元在温度和电压分布方面的均匀性。此外,制造商还为工业应用开发了冷却系统。
现有的空气冷却电池模型的工作一直专注于数字建模复杂,具有针对特定商用电池组的电化学和数学计算。迫切需要一种通用且直接的模型,为研究人员和制造商提供一种明确的方法来预测不同类型电池模块/电池组在不同工作条件下的热行为。在实际应用中,冷却故障偶尔会发生在电池模块/组件中,例如冷却风扇的损坏,在这种情况下电池的热性能是制定维护计划的必要基础。不幸的是,动态热模型能够模拟这种情况还没有开发出来。虽然到目前为止没有太多的研究,但由于其直观和准确的结果,三维计算流体动力学(CFD)方法在电池模块/包瞬态热学研究领域中处于上升趋势。
1.4 comsol软件介绍
COMSOL公司是全世界多物理场建模与仿真解决方案的发起者和领导者,其旗舰产物COMSOL Multiphysics,使工程师和科学家们可以经由仿真,赋予他们的想法以生命。它拥有无与伦比的能力,使所有的物理现象可以在计算机上完美重现。COMSOL的用户使用它提升了手机的接收能力,应用它改良医疗设备的性能并提供更精确的诊断,利用它使汽车和飞机变得加倍安全和节能,利用它寻觅新能源,利用它探索宇宙,甚至利用它去培养下一代的科学家[7][8]。
第2章 锂离子电池介绍
以上是毕业论文大纲或资料介绍,该课题完整毕业论文、开题报告、任务书、程序设计、图纸设计等资料请添加微信获取,微信号:bysjorg。
相关图片展示:








        
            
