菩提苑二期3号楼建筑结构设计毕业论文
2020-02-18 10:01:26
摘 要
本文是一篇完整且详细的菩提苑二期3号楼建筑结构设计,根据规范要求,利用AUTOCAD、天正以及结构力学求解器完成相应的绘图和计算工作。
在设计的过程中,首先是按照要求来进行结构布置,并绘制相应的建筑施工图;第二是估算梁板柱的尺寸,绘制结构简图,紧接着完成恒载、活载、风荷载、地震作用四种荷载的统计,以及绘制框架的竖向、横向受荷图,根据受荷图来进行内力计算、组合,近而得到最不利内力,根据所得的最不利内力来对梁板柱进行配筋计算;最后是对楼梯和基础进行设计,计算荷载大小,内力组合和配筋计算,绘制相关结构施工图。
关键词:荷载统计;内力计算;内力组合;截面设计;配筋计算
Abstract
This paper is a complete and detailed structural design of building no.3, phase ii, bodak court. According to the requirements of the code, the corresponding drawing and calculation are completed by AUTOCAD,TZ and structural mechanics solver.
In the design process, first of all, according to the requirements of structural layout, and draw the corresponding building construction drawings;The second is to estimate the size of the beam plate column, draw the structure diagram, and then complete the dead load, live load, wind load and earthquake action of four kinds of load, and the map framework of vertical, horizontal load, according to the load diagram for internal force calculation and combination, close and get the most adverse internal force, according to the most adverse internal force of reinforcement for the beam column is calculated;Finally, the stair and foundation are designed to calculate the load size, internal force combination and reinforcement calculation, and draw the construction drawings of related structures.
Key Words:Load statistics;Internal force calculation; Combination of internal forces;Section design;Reinforcement calculation
目 录
第1章 绪论 1
第2章 设计资料、内力统计与组合 2
2.1设计资料 2
2.2梁柱板截面尺寸初步计算 3
2.3荷载计算 4
2.3.1恒载标准值计算 4
2.3.2活载标准值计算 5
2.4竖向荷载统计 5
2.5地震作用统计 15
2.6风荷载统计 20
2.7侧移验算 22
2.8内力计算 23
2.8.1恒载标准值作用下框架内力计算 23
2.8.2风荷载作用下框架内力计算 37
2.8.3活载标准值作用下框架内力计算 43
2.8.4地震作用下框架内力计算 46
2.9内力组合 50
2.9.1竖向荷载作用下梁端弯矩调幅 50
2.9.2内力组合 52
2.9.3重力二阶效应 73
第3章 各构件的计算与设计 74
3.1框架柱截面计算 74
3.1.1轴压比计算 74
3.1.2截面尺寸复合 74
3.1.3正截面受弯承载力计算 74
3.1.4垂直于弯矩作用平面的受压承载力计算 79
3.1.5斜截面受剪承载力计算 79
3.1.6裂缝宽度验算 80
3.2框架梁截面计算 80
3.2.1正截面受弯承载力计算 80
3.2.2斜截面受剪承载力计算 80
3.2.3裂缝宽度验算 82
3.3楼面板的计算设计 83
3.3.1荷载计算 83
3.3.2弯矩计算 83
3.3.3配筋计算 84
3.4楼梯计算设计 84
3.4.1踏步板计算 85
3.4.2楼梯斜梁计算 86
3.4.3平台板计算 87
3.4.4平台梁计算 87
3.5基础设计 89
3.5.1作用于基础顶面的荷载计算 89
3.5.2基础地面尺寸和埋置深度 90
3.5.3基础高度验算 91
3.5.4基础底板配筋计算 93
第4章 结束语 95
参考文献 96
致 谢 97
第1章 绪论
随着经济的发展,各类建筑也在随之“翻新”。而在所有的建筑中,楼房建筑占主导地位,地球大约七十五亿人口,可见住宅楼的需求量是很大的。但是需要注意的是,作为人类休息的重要场所,布局、经济、安全等问题是要着重考虑的。布局的合理性可以显得美观大方,每天都可以生活的很舒适;经济是出于减小目前购房的负担;安全则是最重要的,在正常使用情况下,不会出现破坏的情况,在遇到中、小型地震时,可以保证不会出现整体坍塌的情况。
建筑结构功能的要求,就是要保证结构的安全、适用、耐久和可靠性[1]。钢筋和混凝土在力学性能方面完全不同,但是二者之所以可以相互结合是因为混凝土结硬以后,能和钢筋牢牢的粘在一起,进行内力传递,而当温度改变时,钢筋混凝土之间不会产生较大的相对应变,温度应力也随之不会造成粘结上的破坏,与钢结构相比,节省钢材,使用年限长,耐火, 由于目前混凝土采用现浇的方法,可模性好,变形小[1]。所以大多选用钢筋混凝土结构,经过一系列的计算,确定好梁板柱的截面尺寸以及配筋量,达成我们需要的效果。
在设计过程中,需要有混凝土结构设计、工程结构抗震和高层建筑结构等专业的知识,同时需要AUTOCAD和天正来绘制建筑施工图(包括建筑平面图、立面图,楼梯处剖面图)和结构施工图(包括平面布置图,梁板柱、楼梯、基础配筋图),需要结构力学求解器来计算框架的内力并绘制内力图。
第2章 设计资料、内力统计与组合
2.1设计资料
工程名称:菩提苑二期3号楼建筑结构设计。
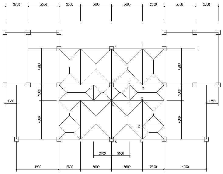
工程概况:工程位于四川省雅安市,建筑高:18.5m,建筑层数:6层,首层层高:3.5m,其余层高:3m。结构平面布置图如图2.1所示。

图2.1 结构平面布置图
气候数据:基本风压
,基本雪压
[2]。
地质条件:地面粗糙度类别:B类,场地类别:Ⅱ类[2]。
抗震条件:设防烈度:7度,设计基本地震加速度:0.10g,设计地震分组:第三组[3]。
材料确定:混凝土:梁板柱采用C30;楼梯基础采用C20。钢筋:梁板柱受力钢筋选用HRB400,箍筋选用HPB300;楼梯斜梁、平台梁受力钢筋选用HRB335,踏步板、平台板选用HPB300,箍筋选用HPB300;基础钢筋选用HRB400[4]。
2.2梁柱板截面尺寸初步计算
本工程楼盖和屋盖的材料均选用的是钢筋混凝土,由于每个板的边长比都小于2,故应按双向板设计[5]。
楼板的厚度应大于等于80mm且不应小于l/40(l为次梁间距),故板厚可取120mm。
主梁的截面高度应按梁跨度的1/18—1/8估算[5],
主梁
,
故主梁高度h取600mm。
而矩形梁的高宽比应于2—4之间,且不得小于200mm,
故主梁宽度b取300mm。
最终主梁的截面尺寸选用
。
次梁的截面高度应按梁跨度的1/18—1/12估算[5],
次梁
,
故次梁高度h取400mm。
而矩形梁的高宽比应于2—4之间,且不得小于200mm,
故次梁宽度b取200mm。
最终次梁的截面尺寸选用
。
图中仅有3根次梁跨度偏小,为了施工方便,所有次梁均选用
。
柱的截面尺寸可按下式估算:

考虑地震时的柱轴向压力增大系数,边柱取1.3,不等跨内柱取1.25,等跨内柱取1.2[3]。
柱的负载面积。
竖向荷载代表值,近似取12—15
。
计算截面以上的楼层数。
框架柱轴压比限值,框架结构对一、二、三级分别选用0.65、0.75、0.85。
按上式计算,尺寸需要符合以下两个要求:
1.对于需要考虑抗震的设计,四级时不宜小于300mm,一级、二级、三级时不宜小于400mm。
2.柱截面高宽比不宜大于3。
因为本设计是框架结构,设防烈度:7度,高度小于24m,
故是三级抗震等级。
算得柱截面尺寸为:

故柱的截面尺寸选用
。
2.3荷载计算
2.3.1恒载标准值计算
1.屋面
30mm厚细石混凝土保护层 
三毡四油防水层 
120mm厚钢筋混凝土板 
20mm厚水泥砂浆找平层 
80mm水泥蛭石保温层 
40mm厚水泥石灰焦渣砂浆3‰找平 
合计 
2.楼面
120mm厚钢筋混凝土板 
瓷砖地面(包括水泥粗砂打底) 
合计 
3.梁自重
计算楼面屋面荷载时已算板的自重,故在梁的自重计算中,高度需减掉板的厚度0.12m,由于梁上时板,梁下是墙,故抹灰只考虑梁的两侧[2]。
主梁b×h=300mm×600mm
梁自重 
抹灰(两侧) 
合计 
次梁b×h=200mm×400mm
梁自重 
抹灰(两侧) 
合计 
4.柱自重
b×h=600mm×600mm
柱自重 
抹灰 
合计 
5.外墙自重
250mm厚水泥空心砖 
外墙面贴砖,内墙面20mm厚抹灰 
合计 
6.内墙自重
200mm厚水泥空心砖 
外墙面、内墙面20mm厚抹灰 
合计 
7.轻质女儿墙自重 
2.3.2活载标准值计算
上人屋面 
楼面 
以上是毕业论文大纲或资料介绍,该课题完整毕业论文、开题报告、任务书、程序设计、图纸设计等资料请添加微信获取,微信号:bysjorg。
相关图片展示:









