武汉恒大御景湾5号楼建筑结构设计毕业论文
2020-04-08 12:39:21
摘 要
本设计的题目为武汉恒大御景湾5号楼建筑结构设计,总建筑面积约为3000平方米,建筑层数为6层。
根据住宅楼的设计规范和其他相关标准,以及设计要求和提供的地质资料,设计该框架结构住宅楼。设计内容主要包括建筑设计部分和结构设计部分。建筑设计部分主要是平面布局设计和交通联系设计,要考虑到足够的活动空间、出入方便、良好的采光和通风、紧急事故人员疏通等因素;而结构设计部分主要完成以下内容:结构平面布置以及计算简图的确定;荷载统计;内力计算;内力组合;主梁截面设计及配筋计算;框架柱截面设计和配筋计算;标准层现浇楼板的内力分析和设计;现浇楼梯的内力分析与设计;通过手算与机算的结果对比,进行结构内力分析;基础形式的确定、及其内力分析与设计;绘制结构各构件的施工图等。
关键词:住宅;框架结构;荷载统计;内力组合;配筋
Abstract
This design topic is the architectural design of No. 5 Building of Imperial Bay in Wuhan Hengda, with a total construction area of approximately 3,000 square meters and a total of 6 floors.
According to the residential building design specifications and other relevant standards, as well as the design requirements and the geological data provided, design the framework of residential buildings. The design content mainly includes the architectural design part and the structural design part. The architectural design part is mainly the plane layout design and traffic connection design, taking into account sufficient activity space, convenient access, good lighting and ventilation, emergency personnel clearing and other factors; and the structural design part mainly completes the following: Standard layer structure Plane layout and determination of calculation diagrams; load statistics; internal force calculation; internal force combinations; section design and reinforcement calculation of main girder; calculation of frame column section and reinforcement calculation; analysis and design of internal force of standard floor cast-in-place floor slab; cast-in-place staircase The analysis and design of internal forces; through the comparison of the results of hand calculations and mechanical calculations, analysis of structural internal forces; determination of basic forms, analysis and design of their internal forces; drawing of construction drawings of structural components, etc.
Key Words:Housing; Frame Structure; Load Statistics; Internal Force Combination;
Reinforcement
目录
第1章 绪论 1
第2章 设计资料 2
第3章 结构选型及梁柱板截面尺寸估算 3
3.1 结构选型 3
3.2 梁柱板截面尺寸估算 3
3.2.1 梁截面尺寸估算 3
3.2.2 柱截面尺寸估算 3
3.2.3 板截面尺寸估算 4
第4章 计算简图的确定 5
4.1 确定框架计算简图 5
4.2 框架梁柱的线刚度计算 5
第5章 荷载计算 7
5.1 恒载标准值计算 7
5.2 活荷载标准值计算 8
5.3 竖向荷载下框架受荷总图 9
5.3.1
轴间框架梁 11
5.3.2
轴间框架梁 12
5.3.3
轴柱纵向集中荷载的计算 14
5.3.4
轴柱纵向集中荷载的计算 14
5.3.5
轴柱纵向集中荷载的计算 15
5.4 风荷载计算 17
5.5 水平地震荷载计算 19
第6章 风荷载作用下的位移验算 22
6.1 侧移刚度D 22
6.2 风荷载作用下框架侧移计算 22
第7章 内力计算 24
7.1 恒载标准值作用下的框架内力计算 24
7.1.1 分层系数计算 24
7.1.2 固端弯矩计算 26
7.1.3 跨中弯矩计算 28
7.1.4 框架梁柱剪力计算及剪力图 30
7.1.5 框架梁柱轴力计算及轴力图 31
7.2 活荷载标准值作用下的框架内力计算 32
7.3 风荷载标准值作用下的内力计算 35
7.3.1 各柱反弯点高度的计算 35
7.3.2 风荷载作用下框架各柱的杆端弯矩及梁端弯矩的计算 36
7.3.3 风荷载作用下框架柱轴力与梁端剪力的计算 39
7.4 地震作用下的内力计算 43
7.4.1 各柱反弯点高度的计算 43
7.4.2 地震作用下框架各柱的杆端弯矩及梁端弯矩的计算 43
7.4.3 地震作用下框架柱轴力与梁端剪力的计算 45
第8章 内力组合 49
8.1 竖向荷载作用下的梁端弯矩调幅计算 49
8.2 控制截面处内力值的计算 50
8.3 内力组合 50
第9章 重力二阶效应计算 56
第10章 截面设计与配筋计算 59
10.1 框架柱截面设计 59
10.1.1 轴压比验算 59
10.1.2 截面尺寸复核 59
10.1.3 正截面受弯承载力计算 59
10.1.4 垂直于弯矩作用平面的受压承载力验算 62
10.1.5 斜截面受剪承载力计算 62
10.1.6 裂缝宽度验算 62
10.2 框架梁截面设计 63
10.2.1 正截面受弯承载力计算 63
10.2.2 斜截面受剪承载力计算 63
10.2.3 裂缝宽度验算 65
第11章 楼面板设计 66
11.1 荷载计算 66
11.2 配筋计算 66
11.2.1 弯矩计算 66
11.2.2 配筋计算 67
第12章 楼梯设计 68
12.1 踏步计算 69
12.1.1 荷载计算: 69
12.1.2 内力计算 69
12.1.3 截面承载力计算 69
12.2 楼梯斜梁计算 70
12.2.1 荷载计算: 70
12.2.2 内力计算 70
12.2.3 承载力计算 70
12.3平台板计算 71
12.4 平台梁计算 72
第13章 基础设计 74
13.1 作用于基础顶面上的荷载计算 74
13.2 基础底面尺寸及埋置深度 75
13.2.1 求地基承载力特征值 75
13.2.2 初步选择基底尺寸 75
13.2.3 验算持力层地基承载力 75
13.3 冲切验算 76
13.3.1 计算基底净反力 76
13.3.2 冲切验算 77
13.4 配筋计算 78
13.4.1 基础长边方向 78
13.4.2 基础短边方向 79
第14章 结束语 80
参考文献 81
致谢 82
第1章 绪论
毕业设计在我们的大学生涯中扮演着一个非常重要的角色,是大学本科教育培养目标实现的重要方式,是对我们大学四年学习成果的一种检验与巩固,是深化和综合教学的重要过程。
我所做的毕业设计的题目是:武汉恒大御景湾5号楼建筑结构设计。总建筑面积约为3000平方米,建筑层数为6层,每层层高为3米,抗震烈度为6度,基本风压为
,地面粗糙度
类,基础场地类别为Ⅱ类,建筑使用年限为50年。结构采用整体式现浇钢筋混凝土框架结构,基础采用柱下独立基础[1]。
在做毕业设计的前期,我对于大学所学的相关课程进行了一次整理。在设计过程中主要涉及到了《结构力学》、《混凝土结构设计》、《工程结构与抗震》、《土力学》等专业课的基本知识,同时还涉及到了许多相关的基本规范;同时在设计过程中,还需要借助CAD、PKPM、天正以及结构力学求解器等相关计算机绘图和计算软件。在做毕业设计的整个过程中,计算工作量很大,主要是手算,然后辅助一些计算软件的校正。但是由于自己所学的很多都是书面上的知识,实际工程接触不多,所以很多地方不够完善,敬请各位老师批评指正。
第2章 设计资料
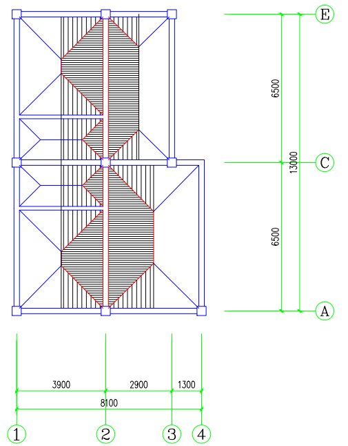
- 工程名称:武汉恒大御景湾5号楼建筑结构设计。
- 建设地点:湖北省武汉市。
- 工程概况:建筑总高18m,共6层,每层层高3m,室内外高差0.45m。具体情况参见结构平面布置图
及剖面图
。 - 气象资料:基本风压
;基本雪压
。 - 地质条件:地面粗糙度类别为
类,基础场地类别为Ⅱ类[2]。 - 抗震设防:抗震烈度为
度,设计基本地震加速度值为
[3]。 - 材料选用:
混凝土:框架梁柱和楼面板采用
混凝土,基础采用
混凝土,楼梯采用
混凝土。
钢筋:框架梁柱纵向受力钢筋采用热轧钢筋
,楼梯斜梁、平台梁中纵向受力钢筋采用
,其余采用热轧钢筋
。
墙体:外墙、分户墙采用灰砂砖,其尺寸为
,重度
。
窗:钢塑门窗,
。
门:木门,
。
图2.1 结构布置图
第3章 结构选型及梁柱板截面尺寸估算
3.1 结构选型
进行结构设计时,首先要选择各类结构的形式。根据结构选型的基本原则,本工程选择如下结构类型:
(1)结构体系:采用钢筋混凝土现浇框架结构体系。
(2)屋面结构: 采用现浇钢筋混凝土屋盖,刚柔性相结合的屋面[4]。
(3)楼面结构:全部采用现浇钢筋混凝土楼盖。
(4)楼梯结构:采用钢筋混凝土梁式楼梯。
3.2 梁柱板截面尺寸估算
3.2.1 梁截面尺寸估算
一般情况下,框架梁的截面尺寸可按以下两式估算:

式中
—梁的计算跨度;
—梁的截面高度;
—梁的截面宽度。
根据结构计算简图可知,主梁
最大值为
,可得到主梁的高度为
,则可选主梁的高度为
;则可得到主梁的宽度为
,则可选主梁的截面宽度为
。次梁
最大值为
,可得到次梁的高度为
,则可选次梁的高度为
;则可得到次梁的宽度为
,则可选次梁的截面宽度为
。
3.2.2 柱截面尺寸估算
框架柱截面一般都采用矩形或方形截面,在框架结构中,可按下式估算:

式中
—混凝土轴心抗压强度设计值;
—柱中轴向力;可近似按下式计算:
,
—柱支承的楼面荷载面积上竖向荷载产生的轴向力设计值,求
时,可近似将楼面板沿柱轴线之间的中线划分,恒载和活荷载的分项系数均取
或近似取
进行计算。 由结构布置图可知,

,
则取
则可得

综上可知可取
。
3.2.3 板截面尺寸估算
一般不做刚度验算时板的最小厚度
(
为双向板的短向计算跨度),且应满足
。根据结构布置图2.1可知,
,则可得
,根据构造要求可知板厚取为
。
第4章 计算简图的确定
4.1 确定框架计算简图
我们在计算时,取轴上的一榀框架作为框架的计算单元。我们假定框架柱嵌固于基础的顶面,框架梁与柱刚接,由于各层柱的截面尺寸不变,故梁跨等于柱截面形心轴线之间的距离[4]。底层柱高从基础的底面算至二层楼面,基顶标高根据地质条件、室内外高差,定为-1.0m,二层楼面标高3.0m,故底层柱高为4.0m。其余各层柱高从楼面算至上一层楼面,均为3.0m。由此可绘出框架的计算简图,如图4.1所示。

以上是毕业论文大纲或资料介绍,该课题完整毕业论文、开题报告、任务书、程序设计、图纸设计等资料请添加微信获取,微信号:bysjorg。
相关图片展示:









