高压输电线路感应取电装置的设计开题报告
2020-04-13 11:45:52
1. 研究目的与意义(文献综述)
1.目的及意义(含国内外的研究现状分析)
1.1 选题的背景
随着国民经济的飞速发展和人民生活水平的提高,人们对电能的需求越来越高,不仅仅体现在数量需求上的急剧增长,也在质量上提出了更高的要求,尤其是对电网的稳定性和可靠性提出了更高的要求。越来越多的电机投入生产,提高了生产的机械化和效率,极大的提高了生产效率,越来越多的电子产品投入生活,提高了人们的生活水平。信息化时代的到来更是为生产和生活提供了极大的便利。然而信息的存储和传输,电子产品的工作,电机的长期运转都离不开稳定的电能供给。电网是电能传输的核心和关键,一旦发生大面积,长时间停电得不到有效的恢复,造成的损失不可估量。
电网的自动化和智能化一直是各国电力系统工作者关注的重点课题,现阶段电网正在经历一个由自动化向智能化发展的过程。在环境和资源压力及用户对电能稳定性和可靠性要求面前,未来的电网必须更加安全、可靠。为此,美国和欧盟为代表的国家和组织一致提出了要建设灵活、清洁、安全、经济、友好的智能电网。而智能电网也必将是今后电网的发展方向。
智能电网是一个将信息、通信、计算机技术运用在原有电网设施上,形成的新型的效率高、污染少、安全可靠的电网。智能电网的优点主要体现在:可观测、可控制、嵌入式自主处理技术、实时分析、自适应、自愈等方面。
2. 研究的基本内容与方案
2研究的基本内容、拟采用的技术方案及措施
本次研究的基本思路是基于电容串联分压取电原理,但并不是传统意义上的电容串联,而是采用文献【1】类似的收集器原理,通过对采集的电能进行相应的电力电子变换,转换成为设备用电,解决户外电力检测设备供电难问题。
2.1 研究内容
1.了解高压输电线路感应取电的基本原理,能够准确分析不同取电方式的特点和影响高压输电线路下感应取电的因素。
2.将取电电路按照功能分成几大模块,熟悉掌握各个模块的功能及作用,并对各个模块中所用到的的元器件选型。
3.设计出取电装置的硬件电路图并进行仿真。
2.2 拟采用的技术方案及措施
2.2.1取电模块
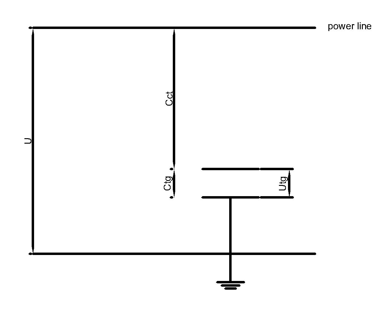
基于电场的能量收集装置可以作为电容分压器工作,并且不管负载电流的幅度总是能够获得能量。其基本思路是利用一个简单的能量收集器(由两块金属板构成)从电场中提取能量。收集器的原理如图4所示。当一个能量收集器被放置于高压输电线周围的电场中的时候,系统可以被视为两个串联的等效电容,
代表高压输电线路和收集器上面板之间的电容,
代表收集器上面板和地球之间的等效电容(为方便操作,收集器下面板与大地相连接)。通过前面介绍的电容串联分压原理,在收集器上下面板之间可以获得一个电压,作为取电模块获取电压
。
图4 收集器原理图
2.2.2信号处理电路
对于取电模块所获得的电能,由于电压过高,输出不稳定,并且其受负载的影响较大,不能直接作为稳定的设备电源输入。为了使采集到的电能转换为稳定的直流电压输入,设计了信号处理电路,包括变压器模块、整流电路模块、稳压电路模块、蓄电池模块。具体流程图如图5所以。
|
图5 信号处理电路流程图
3. 研究计划与安排
3. 进度安排(按周次填写)
第一周:下发本科毕业设计任务,仔细阅读并理解相关任务要求。
第二周:查阅国内外相关文献,掌握毕设基本框架流程;完成外文翻译任务 。
第三周:根据毕业设计任务要求,撰写开题报告,简单介绍相关背景及毕设思路。
4. 参考文献(12篇以上)
4.参考文献
[1] s. kang, j. kim, s. yang, t. yun and h. kim;electric field energy harvesting under actual three-phase 765 kv power transmission lines for wireless sensor node,the institution of engineering and technology 2017,page(s):1135-1136
[2] cui haoyang; fang yong; tang zhong; liu .iun; ye 80: a fault diagnosis method for power transformer using bayesian data analysis, computer science and information technology (iccsit), 2010 3rd ieee international conference on volume: 6, 2010 , page(s):567 - 570
[3] wenqing zhao, yongli zhu, power transformer fault diagnosis based on rough set theory and support vector machine, proc. of int. conf. on fuzzy systems and knowledge discovery, pp389-393, 2007
您可能感兴趣的文章
- 一种确定磁探针集总电路参数的标定方法外文翻译资料
- 一种人体可接触的大气压低温等离子体射流装置研究(适合电气B方向)毕业论文
- 氩氧中大气压DBD放电特性研究(适合电气B方向)毕业论文
- 大气压氩等离子体射流放电影响因素的仿真研究(适合浦电气B方向)毕业论文
- 含氧高活性均匀DBD改性聚合物薄膜研究(适合浦电气B方向)毕业论文
- 反应器结构对气液两相DBD放电特性的比较(适合浦电气B方向)毕业论文
- 南京某公司研发楼电气设计毕业论文
- 金帆北苑地块经济适用住房——02栋商住楼电气设计(适用于浦电气1004~06A方向学生)毕业论文
- 扬州人武部大楼电气设计毕业论文
- 金帆北苑地块经济适用住房——04栋商住楼电气设计(适用于浦电气1004~06A方向学生)毕业论文


