遮蔽航区400客位双体旅游船方案设计毕业论文
2020-04-12 16:32:29
摘 要
本文主要介绍了沿海遮蔽航区舟山群岛海域400客位双体旅游船方案设计,其中主要的内容有主尺度的确定,型线设计,三维建模,总布置设计,浮态校核,螺旋桨设计,舱容计算,完整稳性和干舷的校核。通过从双体船的特点,母型船的资料和舟山群岛海域的调查出发,设计出了这样的一条安全,舒适,经济,美观的双体旅游船。经过各种校核,该船舶在以上方面都符合法规规范的要求,希望设计过程在对以后双体船的设计中能够有一定的影响。
关键词:双体船;主尺度;总布置;完整稳性
Abstract
窗体顶端
This paper mainly introduces the design of the 400-hull double-hull tourist boat in the ZhouShan archipelago of the coastal sheltered navigation area. The main contents include the determination of the main scale, the line design, the three-dimensional modeling, the general layout design, the floating state verification, and the propeller design. , Computation of tank capacity, complete stability and check of freeboard. From the characteristics of the catamaran, the information of the mother ship and the investigation of the ZhouShan archipelago, a safe, comfortable, economical and beautiful catamaran is designed. After various checks, the ship meets the requirements of laws and regulations in the above aspects. It is hoped that the design process will have a certain influence on the design of future catamarans.
窗体底端
Keywords:catamaran; main scale; general arrangement; complete stability
目 录
第0章 绪论 1
第一章 设计书分析 3
1.1 船型与航速 3
1.2 本船的设计任务书要求 3
1.2.1 船型 3
1.2.2. 航速\客位数 3
1.2.3 主机、辅机及燃料 3
1.2.4 舱室布置 3
1.2.5设备 3
1.3 设计中的矛盾的分析 4
1.3.1 舒适性和经济性的讨论 4
1.3.2 船舶重量的船长船宽之间的矛盾 4
1.3.3 稳性和摇荡平稳性之间的矛盾 4
第二章 全船设计说明 5
2.1 概述 5
2.1.1 用途和航区 5
2.1.2 船型 5
2.1.3 规范 5
2.2 主要尺度及性能 5
2.2.1 主尺度 5
2.2.2 梁拱及舷弧 6
2.2.3 动力装置 6
2.2.4 航速 6
2.2.5 续航力 6
2.2.6 人员定额 7
2.2.7 船舶的总布置概况 7
2.2.8 液舱容积 7
2.2.9 吨位 7
2.3 舾装设备 7
2.3.1 锚泊系泊设备 7
2.3.2 操舵设备 8
2.3.3 救生设备的配备 8
第三章 主要要素确定 9
3.1 主尺度设计思路 9
3.1.1 船长 10
3.1.2 船宽 11
3.1.3 片体宽b 12
3.1.4 片体间距K 12
3.1.5 吃水d 13
3.1.6 型深与连接桥 13
3.1.7 方形系数Cb 14
3.1.8 浮心纵向位置 14
3.1.9 主机功率的选取 14
3.2 重力浮力稳性等的校核 15
3.2.1 重力浮力校核 15
3.2.2 性能校核 17
3.3 船舶的主要要素总结 19
第四章 型线设计 20
4.1 概论 20
4.2 棱形系数Cp的选取 20
4.3 浮心纵向位置Xb的选择 21
4.4 平行中体 22
4.5设计水线及横剖线形状特征 22
4.5.1设计水线 23
4.5.2首部横剖线形状,尾部横剖线 23
4.5.3侧面轮廓线 23
4.6 型线设计步骤 24
第五章 静水力计算 29
5.1 三维模型图 29
5.2 静水力曲线图 29
5.2.1 计算结果 29
5.2.2 检验 29
5.2.3 画图 30
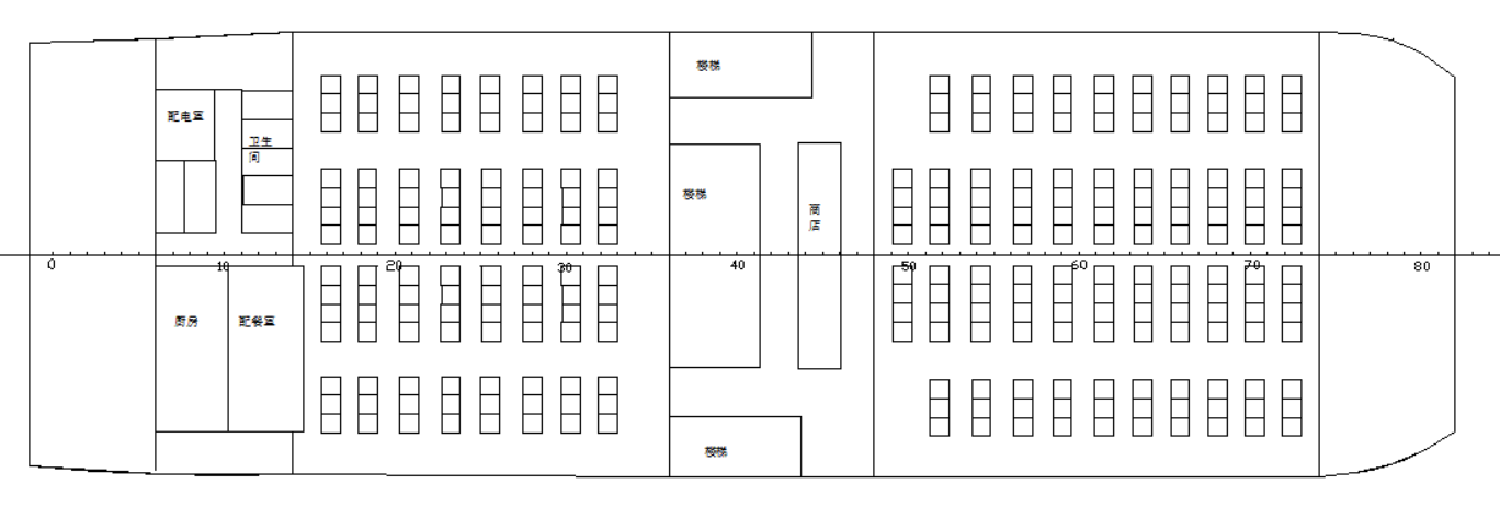
第六章 总布置设计 31
6.1 概述 31
6.2 船舶总体和上层建筑规划 31
6.2.1 船舱的纵向划分 32
6.2.2机舱确定 32
6.2.3压载水舱确定 32
6.2.4燃油、淡水舱确定 32
6.2.5船员舱室确定 33
6.2.6船舶上层建筑布置 33
6.2.7 舱室高度确定 33
6.2.8客舱内梯道布置 33
6.2.9餐厅及厨房布置 33
6.2.10本船二层甲板长度 34
6.2.11卫生间布置 34
6.3舾装数计算 34
6.4 救生设备的配备 35
6.4.1 气胀救生筏的配备 35
6.4.2 个人救生设备的配备 35
6.4.3 信号设备的配备 36
6.5 浮态计算 36
6.5.1 满载出港 36
6.5.2满载到港 37
6.5.3压载出港 38
6.5.4压载到港 38
6.6 各载况下的船舶首尾吃水 39
第七章 螺旋桨图谱设计 41
7.1 螺旋桨设计概述 41
7.2螺旋桨基本参数 41
7.2.1 螺旋桨数目 41
7.2.2螺旋桨叶数 41
7.2.3有效功率计算 41
7.2.4 推进因子的确定 44
7.3初步设计 45
7.4终结设计 47
7.5空泡校核 48
7.6舵设计 50
7.6.1 舵 50
7.6.2 舵面积 50
7.6.3 展弦比 50
7.6.4 厚度比 50
第八章 舱容要素的计算 51
8.1 液舱舱容要素曲线图的绘制 51
8.2 燃油舱的舱容的计算 51
8.3 淡水舱舱容要素计算 52
第九章 完整稳性计算 53
9.1 概述 53
9.2各个载况下自由液面对初稳性的修正 53
9.3进水角的计算 54
9.4横摇角的计算 54
9.5 静稳性臂和动稳性臂的计算 55
9.6 稳性曲线 57
9.7 风压倾覆力臂的计算 59
9.8 最小倾覆力臂 59
9.9 稳性衡准数的计算 61
9.10 船在全速回航时的稳性校核 61
9.11 旅客集中于一舷时的稳性计算 62
9.12 稳性汇总 63
第十章 吨位、干舷和舾装数计算 64
10.1 吨位丈量 64
10.1.1 总吨位 GT 64
10.1.2 净吨位 65
10.2 干舷校核 65
10.2.1 基本干舷 65
10.2.2 方形系数对干舷的修正 65
10.2.3 有效上层建筑和凸形甲板对干舷的修正 65
10.2.4 非标准舷弧对干舷的修正 65
10.2.5 夏季干舷校核 66
参考文献 67
致 谢 68
绪论
随着旅游景区的大力开发,舟山市的景区越来越受到海内外游客的喜爱,水上旅游越来越成为人们喜欢的旅游方式。舟山是我国第一个以群岛建制的地级市,属于浙江省的范围,地处中国东部黄金海岸线与长江黄金水道的交汇处,地理位置优越,背靠长三角广阔经济腹地,经济发展快速,如果把长江比作跃向东海的一条巨龙,把上海比作龙首,舟山就是龙首上那颗璀璨的龙珠。舟山紧靠上海、杭州、宁波等大城市和长江三角洲等辽阔腹地,面临太平洋,水运交通便利,具有较强的地缘优势,踞我国南北沿海航线与长江水道交汇枢纽,是长江流域和长江三角洲对外开放的海上门户和通道,因为独特的地理位置,交通方便,所以吸引了一大批中外游客的喜欢,很多上海附近的人们因为紧领上海,生活压力大等,更喜欢去旅游放松,所以给舟山群岛的旅游业带来了极大的发展。
舟山群岛的旅游区众多,有佛教圣地普陀山,中国佛教四大名山之一,既有悠久的佛教文化,又有丰富的海岛风光,有“海天佛国”、“人间第一清静境”之称;金庸小说里面的美景桃花岛,岛上的风景旅游资源丰富多样,门类齐全,品位较高,集各种景观与一体,自然景观与人文景观数不胜数。还有蓬莱仙岛之称的岱山;中国著名渔港沈家门;华东地区乃至全国最大的组合沙滩群朱家尖;我国东部领海最边远的岛屿;毗邻公海的东极等等。
舟山群岛独特的地理位置和美丽的名胜古迹为旅游业的大力发展创造了极大的优势。在群岛之间的水上旅游无疑是给舟山的旅游带来了别样的旅游乐趣和独特的吸引力。而现在的旅游业还没有进行到岛屿之间的水上观光,这样建设一条满足水上旅游的中高层次的双体旅游船就显得尤其重要了。拥有这样的一条或者几条旅游船对景区的发展,对舟山市的旅游业的发展起到了巨大的作用,对舟山市的发展起到了巨大的推动。
中国经济的不断发展,中国人民对物质需求,精神需求的提高,低层次的旅游船已经不能满足人们对高层次的物质文化要求,所以,设计一条满足于舟山群岛航区的旅游船已经迫在眉睫了,本次我设计的就是一条中高层次的舟山群岛航区的双体旅游船。
本次设计的船舶要满足舟山群岛的各种岛屿之间的安全航行,在满足载客的同时,还要有观光旅游的要求,设计要满足观光旅游船的特点。本文参考一艘同样为双体旅游船的300客位的客船进行改造设计,设计时参考《国内航行海船法定检验技术规则(2011)》,《钢质海船入级与建造规范(2012)》等相关法律法规,结合本专业所学的《船舶原理》《船舶设计原理》等专业知识,设计的一艘400客位的舟山海域的双体旅游船,以满足岛屿之间的旅游。
第一章 设计书分析
1.1 船型与航速
因为双体船能够提供更大的舱容和甲板面积,满足我们观光和舒适性的要求,稳性条件也比其他船型好,所以设计的船型是双体船型。因为我们的目的是观光旅游,所以对航速的要求不大,并且考虑到经济型等的问题,所以我们设计船的设计航速为11kn。
因为旅客的位置位于船中部分,机舱布置地位要求较多等原因,所以本船采用中尾机型。
1.2 本船的设计任务书要求
1.2.1 船型
本船为单甲板单底全电焊钢质结构,采用双体船型。
1.2.2. 航速\客位数
设计吃水时的航速≥10.4Kn;航程设定:25海里左右。航时设定:2小时左右;船员及服务人员8人;乘客400人。
以上是毕业论文大纲或资料介绍,该课题完整毕业论文、开题报告、任务书、程序设计、图纸设计等资料请添加微信获取,微信号:bysjorg。
相关图片展示:









